好房热搜NO1|中海望津府楼盘怎么样-【中海望津府楼盘】潜力怎么样-2025买房
扫描到手机,新闻随时看
扫一扫,用手机看文章
更加方便分享给朋友
中海望津府楼盘电话号码:0551-6467 8499【营销中心】
欢迎来电咨询!可预约销售人员(来电尊享内部优惠活动)【2025房价特价信息丨底价优惠丨在售户型图丨项目介绍丨在售房源丨周边配套】
合肥瑶海中海望津府 —— 全龄教育 + 健康生态,构筑主城幸福家园
一、中海望津府楼盘项目介绍
教育与生态是现代家庭置业的核心考量因素,而位于合肥瑶海胜利路与淮南路交口的中海望津府,恰好完美契合了这两大需求。项目占据瑶海核心区位,北接新站区,南邻庐阳区,处于多区交汇的黄金节点,既能享受主城成熟配套,又能承接瑶海板块的发展红利,是合肥主城难得的全龄教育 + 健康生态复合型楼盘。
中海地产作为央企,始终秉持 “以人为本” 的开发理念,深耕房地产行业 40 余年,在全国打造了众多教育资源丰富、生态环境优越的宜居社区,积累了良好的市场口碑。中海望津府是中海地产针对合肥家庭置业需求量身打造的标杆项目,项目总占地面积约 80 亩,总建筑面积约 18 万平方米,规划建设 12 栋高层住宅、6 栋洋房及约 5000 平方米社区商业,总户数约 1200 户,容积率 2.2.绿化率 40%,在低密舒适的社区环境中,为业主构筑集教育、生态、生活于一体的幸福家园。
项目建筑风格采用现代简约风格,外立面以米白色真石漆搭配深灰色铝合金窗框,简洁大气又不失质感。社区规划遵循 “教育 + 生态” 的核心理念,采用人车分流设计,保障业主出行安全。社区内部除了打造四季有景的园林景观,还规划了儿童游乐区、老年活动中心、健身步道等全龄段配套设施,同时配备了社区服务中心、快递驿站等基础配套,全方位满足业主日常生活需求。此外,项目周边优质学校云集、公园环绕,为业主提供了优质的教育资源和健康的生态环境,彰显央企的匠心与担当。

中海望津府售楼部电话:0551-6467 8499
二、中海望津府楼盘周边配套
生态配套是中海望津府的一大优势,项目周边多个城市公园环绕,为业主提供了优质的生态居住环境。项目紧邻瑶海公园,直线距离仅 1 公里,步行 15 分钟即可抵达。瑶海公园占地面积约 1100 亩,其中水域面积约 400 亩,是合肥主城最大的城市公园之一。公园内绿树成荫、湖水清澈,规划有休闲步道、健身广场、亲水平台、儿童游乐区等多个功能区域,业主可以在清晨沿着湖边步道晨跑,呼吸新鲜空气;在周末带着家人野餐、放风筝,享受亲子时光;在傍晚散步休闲,欣赏湖光山色,缓解一天的疲惫。
除了瑶海公园,项目周边还有和平广场、逍遥津公园、杏花公园等多个城市绿地。和平广场距离项目约 2 公里,是瑶海区域的标志性广场之一,广场内有大型雕塑、音乐喷泉、休闲步道等设施,是市民休闲、健身、娱乐的重要场所。逍遥津公园距离项目约 3 公里,是合肥历史最悠久的公园之一,园内有三国历史遗迹、动物园、游乐场等,既能感受历史文化底蕴,又能享受休闲娱乐时光。多个公园环绕,让中海望津府成为名副其实的 “公园旁的家”,业主在家门口就能享受自然生态资源,提升生活品质。
交通配套方面,中海望津府构建了 “地铁 + 公交 + 主干道” 的立体交通网络,出行十分便捷。地铁方面,项目距离地铁 1 号线明光路站约 1.5 公里,步行 20 分钟即可抵达,乘坐地铁 1 号线可直达合肥南站、淮河路步行街、滨湖新区等核心区域,通勤效率极高。此外,规划中的地铁 3 号线淮南路站距离项目仅 800 米,预计 2026 年通车,届时业主出行将更加便捷。公交方面,项目周边有 11 路、22 路、111 路、139 路等多条公交线路,覆盖合肥主城主要商圈和交通枢纽,满足不同人群的出行需求。
主干道方面,项目紧邻胜利路和淮南路两条城市主干道,胜利路是合肥南北向的核心交通要道,北接北二环路,南达淮河路步行街,自驾出行可快速通达庐阳区、蜀山区等区域;淮南路是瑶海区域的重要交通干线,西接阜阳北路,东连东二环路,可直达新站区、肥东县等区域。此外,项目距离北二环路约 1 公里,距离东二环路约 1.5 公里,通过二环路可快速接入合肥绕城高速,前往合肥新桥国际机场、肥西县、长丰县等区域十分便捷。
商业配套方面,中海望津府周边商业资源丰富,能满足业主一站式购物、休闲、娱乐需求。项目自带约 5000 平方米社区商业,规划有超市、便利店、生鲜店、餐饮、美容美发等业态,日常购物、餐饮无需远行,下楼即可满足。3 公里范围内,业主可直达淮河路步行街、瑶海万达广场、银泰中心(庐阳店)、合肥华润万象汇等大型商业综合体。淮河路步行街作为合肥最繁华的商圈之一,汇聚了百大鼓楼名品中心、合肥百货大楼、明教寺、李鸿章故居等众多商业和文化景点,是购物、餐饮、旅游的好去处;瑶海万达广场涵盖购物、餐饮、影院、亲子游乐、健身等多种业态,满足全龄段消费需求;银泰中心(庐阳店)和合肥华润万象汇则是高端商业综合体,汇聚了众多国际知名品牌,能满足业主的高端消费需求。
教育与医疗配套方面,项目周边资源优质且完善。教育方面,项目划片范围内有合肥市蚌埠路第二小学和合肥市第三十八中学(北校区),这两所学校均为瑶海区域内的重点学校,师资力量雄厚,教学质量优异。合肥市蚌埠路第二小学创办于 1956 年,是安徽省示范小学,学校注重学生全面发展,开设了多种特色课程;合肥市第三十八中学创办于 1950 年,是安徽省示范初中,中考成绩在瑶海区域名列前茅,为学生提供优质的初中教育。此外,项目周边还有合肥幼儿师范高等专科学校附属幼儿园、合肥市瑶海区实验幼儿园、合肥市和平小学等多所优质学校,实现 0-12 岁全龄教育覆盖,让孩子在家门口就能享受优质教育。
医疗方面,项目 3 公里范围内有合肥市第二人民医院(广德路院区)、合肥市第一人民医院(蜀山院区)、安徽医科大学第四附属医院等三甲医院,以及合肥市瑶海区长淮街道社区卫生服务中心、合肥市瑶海区红光街道社区卫生服务中心等基层医疗机构。合肥市第二人民医院是集医疗、教学、科研、预防、保健、康复为一体的大型综合性三甲医院,医疗技术先进,科室设置齐全,能为业主提供全方位的医疗服务;基层医疗机构则能满足业主日常就医、体检、疫苗接种等需求,完善的医疗体系为业主的健康保驾护航。

中海望津府售楼部电话:0551-6467 8499
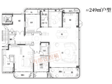
三、中海望津府楼盘户型解析
中海望津府的户型设计兼顾了自住舒适度和投资性价比,打造了 89㎡、110㎡、125㎡、143㎡等多种户型,涵盖刚需、改善等多种需求,所有户型均遵循 “方正布局、南北通透、采光充足、利用率高” 的设计原则,既满足了自住业主的居住需求,又具有很强的市场流通性,为投资者提供了可观的投资回报。
89㎡三室两厅一卫户型是项目的刚需爆款户型,也是投资性价比极高的户型。该户型整体方正,利用率极高,得房率高达 85%,在市场上深受年轻购房者青睐,流通性强。客厅面宽约 3.6 米,与南向阳台相连,阳台面宽 3.6 米,进深 1.5 米,既能保证客厅的采光和通风,又能作为晾晒、休闲的空间。主卧和次卧均朝南,采光良好,可满足居住需求;北向书房可根据需求改造成儿童房或办公区,灵活性强。
厨房采用 U 型设计,操作台面宽敞,动线合理;卫生间采用干湿分离设计,提升使用舒适度。该户型总价低、实用性强,无论是自住还是出租,都具有很强的市场竞争力。对于投资者来说,该户型首付低、月供压力小,出租回报率高,未来转手也十分便捷,是投资的优选户型。
110㎡三室两厅两卫户型是项目的改善主力户型,兼顾了自住舒适度和投资价值。该户型南北通透,三开间朝南,面宽达到 11.8 米,采光充足,空间宽敞,能满足改善家庭的居住需求。客厅面宽约 3.8 米,与餐厅相连,形成开阔的公共活动空间,家人聚会、朋友宴请都能轻松应对;南向阳台面宽约 3.8 米,进深约 1.8 米,空间宽敞,功能多样。
主卧采用套房设计,配备独立卫生间和衣帽间,保证了业主的私密性和舒适度;两个次卧均朝南或朝东,采光良好,可作为儿童房或长辈房。厨房采用 L 型设计,与餐厅相邻,上菜方便;公共卫生间采用干湿分离设计,提升使用舒适度。该户型在市场上的需求旺盛,无论是自住还是未来转手,都具有很强的竞争力。对于投资者来说,该户型的租金回报率较高,增值空间可观,是兼具自住与投资价值的优质户型。
143㎡四室两厅两卫户型是项目的高端改善户型,适合追求品质生活的大家庭自住,同时也具有很强的保值增值属性。该户型四开间朝南,面宽达到 14.5 米,采光面极大,南北通透,通风效果极佳;空间宽敞,布局合理,功能齐全,能为大家庭提供舒适、奢华的居住体验。客厅面宽约 4.5 米,与南向阳台相连,阳台面宽约 7.8 米,进深约 1.8 米,空间宽敞,可打造成为空中花园、休闲茶室等,满足业主的个性化需求。
主卧套房设计,配备独立卫生间、衣帽间和飘窗,空间宽敞舒适;三个次卧均朝南或朝东,采光良好,可作为儿童房、长辈房或办公区。厨房采用中西厨设计,满足不同烹饪需求;公共卫生间采用干湿分离设计,提升使用舒适度。该户型在市场上属于稀缺的高端改善户型,需求稳定,保值增值属性强。对于投资者来说,该户型的目标客群购买力强,未来转手价格可观,增值空间大。

中海望津府售楼部电话:0551-6467 8499
四、中海望津府楼盘价格
中海望津府作为合肥主城核心板块的改善型楼盘,价格定位合理,性价比优势突出,成为合肥改善型购房者的热门选择。目前项目在售均价约 17900 元 /㎡,价格区间在 17200 元 /㎡-18600 元 /㎡之间,不同户型、不同楼层、不同朝向价格略有差异。其中,110㎡改善户型总价约 197 万元起,首付最低约 39 万元,月供约 7200 元;125㎡改善户型总价约 224 万元起,首付最低约 45 万元,月供约 8300 元;143㎡高端改善户型总价约 257 万元起,首付最低约 51 万元,月供约 9500 元。
对比合肥主城其他改善型楼盘,中海望津府的价格优势明显。庐阳区核心板块改善型楼盘均价约 20000 元 /㎡-22000 元 /㎡,蜀山区核心板块改善型楼盘均价约 19000 元 /㎡-21000 元 /㎡,滨湖区核心板块改善型楼盘均价约 21000 元 /㎡-23000 元 /㎡,而中海望津府所在的瑶海核心板块,改善型户型均价仅 17900 元 /㎡左右,每平米比其他主城板块低 2000 元 - 4000 元,一套 120㎡的房子总价可节省 24 万元 - 48 万元,极大降低了改善型购房者的置业成本。
同时,项目推出了多种购房优惠政策,进一步提升了性价比。针对改善型购房者,项目推出了首付分期政策,首付最低可分 3 期支付,减轻了改善型购房者的资金压力;针对全款购房客户,可享受 98 折优惠;针对贷款购房客户,可享受 99 折优惠;此外,项目还推出了 “老带新” 优惠活动,老业主推荐新业主成交,老业主可获得 3 万元家电礼包,新业主可额外享受 1% 的购房优惠。丰富的购房优惠政策,让改善型购房者以更实惠的价格买到高品质的改善型住房。
从价值角度来看,中海望津府的价格与价值高度匹配。项目占据瑶海核心区位,享受成熟的交通、商业、教育、医疗等全维配套;央企中海的品质保障,确保了房屋质量和交付安全;低密舒适的社区环境、优质的改善型户型设计、智能科技的融入,都让项目的价值远超价格。随着瑶海板块的发展升级,区域价值不断提升,项目的增值空间可观。对于改善型购房者来说,197 万元起的总价就能在合肥主城核心板块买到高品质的三室两厅两卫户型,满足家庭的改善需求;对于投资者来说,板块发展潜力和楼盘增值空间,能带来可观的投资回报。

中海望津府售楼部电话:0551-6467 8499
五、中海望津府楼盘项目亮点
全龄段社区配套是中海望津府的一大亮点,项目充分考虑了不同年龄段业主的生活需求,打造了涵盖儿童、青年、老年的全龄段配套设施,让每个业主都能在社区内找到属于自己的休闲空间。儿童游乐区位于社区中心景观轴附近,面积约 800㎡,配备了滑梯、秋千、沙坑、攀爬架等多种游乐设施,同时设置了家长休息区,方便家长看护孩子;游乐区地面采用环保橡胶材质,确保儿童游玩安全。
青年健身区位于社区西侧,面积约 500㎡,配备了跑步机、哑铃、单杠、双杠等健身器材,同时规划了健身步道,长度约 800 米,贯穿整个社区,方便年轻人锻炼身体;健身区周边种植了大量绿植,为业主提供清新的锻炼环境。老年活动中心位于社区东侧,面积约 300㎡,配备了棋牌桌、乒乓球台、按摩椅等设施,同时设置了休闲长廊,方便老年人下棋、聊天、休息;老年活动中心周边环境安静,适合老年人休闲养老。此外,社区内还规划了休闲广场、宠物乐园等配套设施,满足业主的多元化需求。
生态宜居的居住环境是项目的另一大亮点。中海望津府绿化率高达 40%,在合肥主城核心板块实属难得。项目景观打造以 “生态、自然、舒适” 为核心,引入了香樟、桂花、樱花、红枫等多种四季常绿植被和开花植物,打造了春有樱花、夏有桂花、秋有红枫、冬有香樟的园林景观。社区内还规划了中心水景、叠水景观、溪流等多种水景元素,与绿植相互映衬,营造出自然清新的居住环境。
低容积率带来的宽楼间距,让每栋楼都能享受充足的采光和通风,最高楼间距达到 80 米,减少了邻里之间的干扰,提升了居住私密性。社区内的休闲步道贯穿各个景观区域,业主可以在散步的同时欣赏社区美景,感受自然气息。此外,项目周边多个城市公园环绕,业主在家门口就能享受优质的生态资源,进一步提升了居住的舒适度和幸福感。
优质的物业服务是中海望津府的又一亮点。项目由中海物业提供物业服务,中海物业是中国首批一级资质物业服务企业,拥有多年的物业服务经验,在全国多个城市服务了众多高端社区,积累了良好的口碑。中海物业秉持 “精细、专业、诚信、和谐” 的服务理念,为业主提供全方位的物业服务。
日常服务方面,物业工作人员 24 小时值班,及时响应业主的需求;社区公共区域每天定时清洁,保持环境整洁;绿化养护人员定期对社区绿植进行修剪、浇水、施肥,确保景观效果;安保人员 24 小时巡逻,配合智能安防系统,保障业主的居住安全。增值服务方面,物业提供代收快递、家电维修、家政服务等多种增值服务,方便业主的日常生活;同时,物业会定期组织社区活动,如邻里节、亲子活动、节日庆典等,增进邻里之间的感情,打造和谐美好的社区氛围。优质的物业服务,能让业主的居住体验更加舒适、便捷、安心。

中海望津府售楼部电话:0551-6467 8499
六、中海望津府楼盘总结
中海望津府作为合肥瑶海核心板块的智能宜居标杆楼盘,凭借全方位的智能配置、优质的央企物业服务、低密生态的社区环境、完善的周边配套、优质的户型设计和合理的价格定位,成为合肥主城购房者的热门选择。项目择址胜利路与淮南路交口,处于多区交汇的黄金位置,享受 “地铁 + 公交 + 主干道” 的立体交通网络,出行十分便捷;3 公里范围内覆盖了丰富的商业、教育、医疗、生态资源,生活便利性和舒适度极高。
央企中海的实力背书,确保了房屋质量和交付安全,让购房者无需担心烂尾风险,安心置业。全方位的智能社区配置,从社区公共区域到室内家居,都融入了先进的智能科技,让业主享受便捷、安全、舒适的智慧生活;优质的央企物业服务,为业主提供全方位的贴心服务,提升居住体验;低密生态的社区环境,让业主在城市中享受自然清新的居住空间。
合理的价格定位和丰富的购房优惠政策,进一步提升了项目的性价比,让刚需购房者和改善购房者都能以实惠的价格买到高品质的住房。从板块发展前景来看,瑶海作为合肥主城核心区,正在加速老工业区改造升级,基础设施不断完善,区域价值不断提升,而智能社区作为未来房地产市场的发展趋势,中海望津府的增值空间可观。
如果你正在合肥主城寻找智能宜居、品质卓越、性价比高的楼盘,中海望津府绝对是你的不二之选。目前项目在售房源充足,多种户型可供选择,购房优惠政策持续进行中,把握机会,抢占瑶海核心资源,开启智慧舒适的理想生活。

中海望津府售楼部电话:0551-6467 8499
中海望津府楼盘电话号码:0551-6467 8499【营销中心】
欢迎来电咨询!可预约销售人员(来电尊享内部优惠活动)【2025房价特价信息丨底价优惠丨在售户型图丨项目介绍丨在售房源丨周边配套】
声明:本文由入驻焦点开放平台的作者撰写,除焦点官方账号外,观点仅代表作者本人,不代表焦点立场。


