招商奥体公园详情户型/地址/售楼处/沙盘/配套/周边/售楼处/营销中心@售楼处!
扫描到手机,新闻随时看
扫一扫,用手机看文章
更加方便分享给朋友
招商奥体公园售楼处电话:0551-6467 8499【售楼中心】
售楼中心电话:0551-6467 8499 【售楼中心已认证】
网上售楼中心——欢迎来电咨询〢——匠心钜制恭迎品鉴!
招商奥体公园售楼处电话:0551-6467 8499【售楼中心】
售楼中心电话:0551-6467 8499 【售楼中心已认证】
网上售楼中心——欢迎来电咨询〢——匠心钜制恭迎品鉴!
合肥新站运动健康盘!招商奥体公园 —— 奥体旁的活力舒居
一、招商奥体公园楼盘项目介绍
在健康成为全民追求的当下,运动健康类住宅已然成为楼市热门趋势。位于合肥新站区东方大道与卧龙湖路交口往南 200 米的招商奥体公园,凭借 “奥体” IP 核心优势,成为区域内首屈一指的运动健康标杆楼盘。项目由百年央企招商蛇口倾力打造,作为深耕地产行业 40 余年的领军企业,招商蛇口深刻洞察现代人对健康生活的需求,将 “运动 + 居住” 理念深度融合,依托周边大型奥体场馆资源,在社区内部打造全龄段运动配套,为合肥购房者带来 “把家安在奥体旁,让运动成为日常” 的高品质健康生活。
招商奥体公园总占地面积约 180 亩,总建筑面积超 35 万平方米,规划容积率仅 2.0.绿化率高达 40%,是区域内稀缺的低密运动生态社区。项目整体规划遵循 “运动赋能生活,健康融入日常” 的设计理念,将住宅、商业、教育、运动休闲等业态有机融合,打造集居住、运动、休闲、购物于一体的一站式运动健康社区。
项目住宅部分由 18 栋高层和 12 栋洋房组成,高层层数 18-24 层,洋房层数 6-8 层,总户数约 2200 户,车位配比 1:1.2.充分满足业主居住与停车需求。建筑风格采用现代简约风格,外立面选用真石漆与玻璃幕墙组合材质,线条流畅利落,既美观大方,又能最大化引入自然光线,为室内运动、休闲空间提供良好采光。
社区内部规划了丰富的运动配套设施,包括约 800 米环形健身步道、健身广场、羽毛球场、乒乓球场、儿童运动游乐区、老年健身区、室内健身驿站等,覆盖全年龄段运动需求。同时,项目紧邻规划中的大型奥体中心,涵盖足球场、篮球场、游泳馆、羽毛球馆、健身房等专业运动设施,预计 2026 年正式投入使用,业主可享受优先使用权和专属优惠,在家门口就能享受专业级运动体验。
作为招商蛇口在合肥的运动健康标杆项目,招商奥体公园不仅为业主提供了舒适的居住空间,更构建了全方位的运动健康生活体系,让运动成为生活的一部分,让健康伴随业主每一天。
招商奥体公园售楼处电话☎:0551-6467 8499
二、招商奥体公园楼盘周边配套
生态宜居不仅需要社区内部的低密规划,更离不开周边丰富的生态资源和完善的生活配套。招商奥体公园凭借优越的区位优势,坐拥 “一湖多园” 的生态格局和全方位的醇熟生活配套,让业主既能享受自然美景,又能便捷生活。
生态配套:一湖多园环绕,自然触手可及
项目周边生态资源丰富,形成了以少荃湖为核心,多个城市公园环绕的生态格局,为业主提供了充足的休闲娱乐空间和清新的空气环境。
少荃湖距离项目约 3 公里,是合肥北部最大的城市湖泊,湖面面积约 1.5 平方公里,总规划面积约 5 平方公里。少荃湖公园目前已完成一期建设,建成了休闲步道、亲水平台、湿地景观等多个景点;二期工程正在施工,将打造科创 CBD 景观带、滨湖休闲区等,预计 2027 年全面建成。建成后的少荃湖公园,将成为集休闲、健身、娱乐、观光于一体的大型城市公园,业主闲暇时可步行或驾车前往,沿着湖边步道散步、跑步,感受湖光山色,放松身心。
新站区生态公园距离项目约 4 公里,占地面积约 1000 亩,是合肥市较早建设的城市公园之一。公园内种植了大量的树木、花草,设有湖泊、假山、亭台楼阁等景观,空气清新,环境优美。公园内还规划了健身步道、健身器材区、儿童游乐区等,满足不同年龄段业主的休闲需求。
瑶海公园距离项目约 6 公里,占地面积约 33.3 公顷,其中水域面积约 15 公顷,是合肥市著名的水景公园。公园内设有游船码头、垂钓区、休闲长廊等景点,业主周末可带着家人前往,划船、垂钓、野餐,享受惬意的亲子时光。
此外,项目周边还有李鸿章享堂、生态廊道等多个休闲景点,距离项目均在 10 公里范围内,为业主提供了丰富的休闲选择。丰富的生态资源,让招商奥体公园成为城市中的 “天然氧吧”,为业主的健康保驾护航。
交通配套:便捷出行网络,连接自然与城市
项目紧邻东方大道与卧龙湖路两大城市主干道,形成 “一横一纵” 的交通格局,让业主既能快速融入城市核心,又能便捷抵达周边公园景点。
东方大道是新站区重要的横向交通大动脉,西接阜阳北路高架,东连包公大道高架,双向 6 车道,路况良好。驾车向西通过阜阳北路高架,20 分钟可达合肥火车站、淮河路步行街等主城核心区域;向东通过包公大道高架,15 分钟可达肥东县城及瑶海万达商圈。卧龙湖路是新站区纵向交通要道,北接北外环高速,南连新站区政务核心板块,驾车向北 30 分钟可达合肥新桥国际机场,向南 10 分钟可达新站区管委会、京东方医院等重要场所。
公共交通方面,项目周边 500 米范围内设有 3 个公交站点,涵盖 301 路、302 路、686 路、803 路等多条公交线路。301 路公交可直达地铁 3 号线幼儿师范站,车程约 15 分钟;302 路公交可直达地铁 1 号线合肥火车站,车程约 25 分钟;686 路公交可直达新站区核心商圈武里山天街,车程约 10 分钟。未来,地铁 9 号线(规划中)将在项目周边设置站点,建成后将进一步提升出行效率,让业主轻松通达全城各个角落。
教育配套:全龄优质教育,成长环境优越
项目周边教育资源丰富,形成了从幼儿园到中学的全龄段教育体系,让孩子在优质的教育环境中成长,同时也为业主节省了接送时间,提升了生活便利性。
项目内部规划有一所 12 班制公办幼儿园,占地面积约 4000㎡,建筑面积约 3000㎡,预计 2025 年正式投入使用。幼儿园配备专业的师资力量和完善的教学设施,注重孩子的综合素质培养,让孩子在家门口就能接受优质的启蒙教育。
项目周边 1 公里范围内分布着多所优质中小学。合肥新站寿春实验中学距离项目仅 500 米,该校是寿春教育集团旗下的优质民办中学,中考成绩在新站区名列前茅;合肥市庆平希望学校距离项目约 800 米,是一所九年一贯制公办学校,教学设施完善,师资力量充足;合肥市第 168 中学东校区距离项目约 1.5 公里,是安徽省示范高中,高考成绩优异,每年都有大量学生考入全国重点高校。
此外,周边还有合肥市新站区关井小学、三十头镇中心学校等多所公办小学,以及多所规划中的中小学,教育资源持续丰富,满足不同家庭对孩子教育的需求。优质的教育资源和浓厚的教育氛围,让孩子在成长过程中潜移默化地受到熏陶,为未来的发展奠定坚实基础。
商业配套:繁华商业在侧,生活便利无忧
项目周边商业配套完善,无论是日常购物、餐饮美食,还是休闲娱乐,都能一站式满足,让业主在享受生态宜居生活的同时,无需为生活便利担忧。
项目自带约 2 万方社区商业,规划引入超市、便利店、生鲜卖场、品牌餐饮、美容美发、药店等多元化业态,预计 2026 年正式开业运营。业主下楼即可满足日常购物、餐饮、休闲等基本需求,无需远行,节省了时间和精力。
项目距离新站区核心商圈武里山天街仅 3 公里,驾车车程约 10 分钟。武里山天街总建筑面积约 10 万方,涵盖大型购物中心、连锁超市、品牌餐饮、电影院、KTV、儿童乐园等丰富业态,入驻了永辉超市、大地影院、肯德基、麦当劳等众多知名品牌,是周边居民休闲娱乐的首选之地。
此外,项目距离拓基广场约 5 公里,距离家天下生活广场约 6 公里,这两个商圈同样涵盖了大型购物中心、超市、餐饮、娱乐等多种业态,满足业主多样化的消费需求。周边还有多个在建的商业综合体,未来商业氛围将更加浓厚,生活便利性将进一步提升。
医疗配套:优质医疗护航,健康生活无忧
健康是幸福生活的基础,项目周边医疗资源丰富,为业主的健康提供全方位的保障,让业主在享受生态宜居生活的同时,无健康后顾之忧。
项目距离安徽省第二人民医院(北区)约 4 公里,驾车车程约 15 分钟。该院是集医疗、教学、科研、预防、保健、康复为一体的三级甲等综合性医院,开放床位 2000 余张,拥有多个省级重点学科和特色专科,医疗设备先进,师资力量雄厚,能够为业主提供高水平的医疗服务。
项目距离合肥京东方医院约 3.5 公里,驾车车程约 12 分钟。该院是一家集医疗、教学、科研、预防、保健为一体的三级综合医院,由京东方科技集团投资建设,总建筑面积约 20 万方,开放床位 1000 张,重点打造心血管科、骨科、妇产科、儿科等特色科室,医疗技术先进,服务质量优质。
此外,项目周边还有合肥市新站区七里塘社区卫生服务中心、三十头社区卫生服务中心等多家社区卫生服务中心,距离项目均在 3 公里范围内,日常就医、健康体检十分便捷,为业主的健康保驾护航。
招商奥体公园售楼处电话☎:0551-6467 8499
三、招商奥体公园楼盘户型解析
户型的实用性、流通性是房产保值增值的关键,招商奥体公园深入洞察合肥房产市场的需求趋势,打造了 89㎡、105㎡、128㎡、143㎡四款主力户型,涵盖刚需、改善全需求,每款户型都具备高空间利用率、强流通性的特点,无论是自住还是投资,都能满足市场需求。
89㎡三室两厅一卫:刚需爆款,流通性极强
89㎡三室两厅一卫户型是合肥楼市的刚需爆款,也是投资客首选的小户型产品,该户型整体布局方正,南北通透,空间利用率高达 85%,无浪费面积,在二手房市场中流通性极强。
入户独立玄关设计,宽度 1.2 米,深度 1.5 米,既保障隐私又提供充足收纳空间,可放置鞋柜、衣帽架等。客厅面宽 3.6 米,进深 4.2 米,与南向 3.6 米宽阳台相连,阳台采用全景落地窗设计,采光通风极佳。客厅、餐厅一体化布局,空间开阔,可满足日常起居与待客需求。
厨房采用 U 型设计,操作台面长 3.5 米,洗切炒动线合理,预留双开门冰箱位置,满足日常烹饪需求。三个卧室分布合理,动静分离,主卧面宽 3.2 米,带南向飘窗,可放置 1.8 米床与衣柜;两个次卧面宽 2.7 米,可作为儿童房或书房,满足刚需家庭居住需求。卫生间干湿分离设计,提升使用效率,避免潮湿问题。这款户型总价低、门槛低,且能满足刚需家庭的核心居住需求,在二手房市场中需求旺盛,升值潜力稳定。
105㎡三室两厅两卫:改善刚需,性价比突出
105㎡三室两厅两卫户型是改善型刚需的首选,该户型在 89㎡户型基础上升级,空间更宽敞,舒适度更高,同时保持了较高的性价比,在市场中竞争力极强。
入户玄关宽度 1.5 米,深度 1.8 米,可设置多功能收纳柜,收纳空间充足。客厅面宽 3.8 米,进深 4.5 米,与南向 3.8 米宽阳台相连,阳台进深 2.0 米,可打造休闲区与晾晒区,功能分区明确。餐厅面积约 7㎡,可容纳 6-8 人用餐,与客厅、厨房形成通透空间,互动性强。
主卧采用套房设计,配备独立卫生间与衣帽间,保障主人隐私与舒适度,主卧面宽 3.3 米,带南向飘窗,空间宽敞。两个次卧面宽均为 2.8 米,空间充足,可作为儿童房或老人房。公共卫生间干湿分离设计,位于两个次卧之间,使用方便。这款户型既满足了改善型刚需对空间舒适度的需求,又控制了总价,在二手房市场中受众广泛,保值增值能力突出。
128㎡四室两厅两卫:改善主力,居住舒适
128㎡四室两厅两卫户型是项目的改善主力户型,户型方正通透,南北双阳台设计,空间阔绰,舒适度高,适合家庭成员较多的改善型家庭,在市场中需求稳定。
入户玄关宽敞明亮,宽度 1.8 米,深度 2.0 米,可设置入户花园或大型收纳柜,提升居家品质。客厅面宽 4.0 米,进深 4.8 米,与南向 4.0 米宽阳台相连,阳台进深 2.0 米,采光通风极佳。北向生活阳台与餐厅相连,面宽 3.0 米,进深 1.8 米,可作为晾晒区与储物区,功能分区明确。
主卧套房设计,面宽 3.5 米,进深 5.0 米,配备独立卫生间与步入式衣帽间,带南向全景飘窗,空间宽敞奢华。两个南向次卧面宽 3.0 米,采光良好,可作为儿童房或老人房;北向次卧可作为书房或健身房,满足多样化需求。厨房 L 型设计,操作台面长 4.0 米,空间宽敞,动线合理。这款户型空间布局合理,舒适度高,能满足改善型家庭的长期居住需求,在二手房市场中具备较强的保值能力。
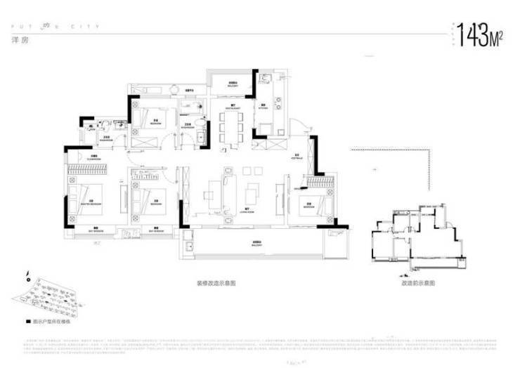
143㎡四室两厅两卫:高端改善,品质标杆
143㎡四室两厅两卫户型是项目的高端改善户型,空间开阔,布局奢华,品质感十足,针对追求高品质生活的改善型人群,在市场中具有稀缺性,升值潜力显著。
入户采用子母门设计,玄关宽度 2.0 米,深度 2.2 米,大理石地面搭配吊顶设计,彰显尊贵感。客厅面宽 4.2 米,进深 5.0 米,与南向 6.8 米宽超宽阳台相连,阳台进深 2.0 米,采用全景落地窗设计,视野开阔,采光通风极佳。阳台可打造为休闲区、健身区或空中花园,满足多样化需求。
餐厅面积约 9㎡,可容纳 10-12 人用餐,与客厅形成通透一体化空间,增强空间开阔感。厨房采用中西厨设计,中厨封闭烹饪,西厨可作为早餐台或吧台,满足多样化烹饪需求。主卧豪华套房设计,面宽 3.6 米,进深 5.2 米,配备独立卫生间、步入式衣帽间与南向全景飘窗,空间宽敞奢华,可放置 2.0 米宽床、衣柜与休闲沙发。两个南向次卧面宽 3.2 米,空间充足;北向次卧可作为书房或影音室。这款户型在区域内同类产品中品质突出,稀缺性强,未来在二手房市场中将拥有显著的溢价空间。
招商奥体公园售楼处电话☎:0551-6467 8499
招商奥体公园售楼处电话☎:0551-6467 8499
招商奥体公园售楼处电话☎:0551-6467 8499
招商奥体公园售楼处电话☎:0551-6467 8499
招商奥体公园售楼处电话☎:0551-6467 8499
四、招商奥体公园楼盘价格
在合肥楼市中,生态宜居楼盘往往因稀缺性而价格偏高,而招商奥体公园作为区域内少有的低密生态标杆楼盘,不仅拥有优越的生态环境和完善的生活配套,价格还极具竞争力,为购房者提供了高性价比的生态宜居选择。
主力户型价格区间
目前,招商奥体公园的销售均价为 13500 元 /㎡-15000 元 /㎡,根据户型、楼层、朝向的不同,价格有所差异,具体主力户型价格区间如下:
89㎡三室两厅一卫:总价约 120 万元 - 130 万元,单价约 13500 元 /㎡-14600 元 /㎡。低楼层(1-5 层)单价 13500 元 /㎡-13800 元 /㎡,总价 120 万元 - 121 万元;中楼层(6-15 层)单价 13800 元 /㎡-14300 元 /㎡,总价 123 万元 - 127 万元;高楼层(16-24 层)单价 14300 元 /㎡-14600 元 /㎡,总价 127 万元 - 130 万元。
105㎡三室两厅两卫:总价约 140 万元 - 155 万元,单价约 13300 元 /㎡-14800 元 /㎡。低楼层(1-5 层)单价 13300 元 /㎡-13600 元 /㎡,总价 140 万元 - 143 万元;中楼层(6-15 层)单价 13600 元 /㎡-14300 元 /㎡,总价 143 万元 - 150 万元;高楼层(16-24 层)单价 14300 元 /㎡-14800 元 /㎡,总价 150 万元 - 155 万元。
128㎡四室两厅两卫:总价约 170 万元 - 190 万元,单价约 13200 元 /㎡-14800 元 /㎡。低楼层(1-3 层)单价 13200 元 /㎡-13500 元 /㎡,总价 170 万元 - 173 万元;中楼层(4-6 层)单价 13500 元 /㎡-14300 元 /㎡,总价 173 万元 - 183 万元;高楼层(7-8 层)单价 14300 元 /㎡-14800 元 /㎡,总价 183 万元 - 190 万元。
143㎡四室两厅两卫:总价约 190 万元 - 215 万元,单价约 13300 元 /㎡-15000 元 /㎡。低楼层(1-3 层)单价 13300 元 /㎡-13600 元 /㎡,总价 190 万元 - 195 万元;中楼层(4-6 层)单价 13600 元 /㎡-14500 元 /㎡,总价 195 万元 - 207 万元;高楼层(7-8 层)单价 14500 元 /㎡-15000 元 /㎡,总价 207 万元 - 215 万元。
价格优势分析
相比周边同类型生态宜居楼盘,招商奥体公园的价格优势显著。周边同类低密生态楼盘均价普遍在 14500 元 /㎡-16000 元 /㎡,而项目均价仅 13500 元 /㎡-15000 元 /㎡,每平米价格低 1000 元 - 1500 元。以 128㎡改善户型为例,总价可节省约 13 万元 - 19 万元,性价比极高。
此外,项目还推出了多项购房优惠政策,进一步降低了购房门槛:
团购优惠:3 人及以上成团购房,可享受总房款 98 折优惠;
按时签约优惠:认购后 7 天内签订购房合同,可享受总房款 99 折优惠;
首付分期优惠:首付最低可分 3 期支付,首期仅需支付总房款的 10%,剩余首付在 6 个月内付清,无需支付利息;
老带新优惠:老业主介绍新客户成功购房,老业主可获得 2 万元家电礼包或物业费减免,新业主可享受总房款 99.5 折优惠。
这些优惠政策让购房者以更低的成本,就能享受到低密生态宜居生活,对于追求生态居住的购房者而言,极具吸引力。
生态价值与价格匹配度
招商奥体公园的价格与生态价值高度匹配,甚至呈现 “价值高于价格” 的特点。项目容积率仅 2.0.绿化率高达 40%,在城市核心区极为稀缺,这样的低密生态规划,意味着业主能享受更宽敞的公共空间、更清新的空气和更舒适的居住体验。
周边丰富的生态资源,如少荃湖公园、新站区生态公园等,为业主提供了充足的休闲娱乐空间,提升了居住的幸福感。同时,生态宜居属性让项目在二手房市场中更具竞争力,保值增值能力更强。相比周边高密度楼盘,招商奥体公园的生态价值优势明显,而价格却更具竞争力,让购房者以亲民的价格,就能拥有高品质的生态宜居生活。
招商奥体公园售楼处电话☎:0551-6467 8499
五、招商奥体公园楼盘项目亮点
招商奥体公园之所以成为合肥新站区的投资热门楼盘,核心在于其具备多项突出亮点,这些亮点共同构成了项目的核心投资价值,使其在市场中脱颖而出。
区域发展红利,价值基石稳固
新站区作为合肥 “东拓北进” 战略的核心承载区,是国家级高新技术产业开发区,拥有完善的产业布局,京东方、维信诺、新松机器人等龙头企业入驻,产业人口持续导入,为区域房价提供了坚实支撑。
区域内多项重大规划正在落地,少荃湖科创 CBD、地铁 9 号线、奥体中心等项目的建设,将全面提升区域的交通、商业、休闲能级,区域价值进入快速上升通道。招商奥体公园作为区域核心位置的标杆楼盘,将直接受益于区域发展红利,价值增长空间清晰可见。
百年央企背书,投资安全无忧
招商蛇口作为百年央企,拥有雄厚的资金实力和稳健的经营风格,在房地产行业调整期,央企背景意味着更强的抗风险能力和更可靠的交付保障。项目自开工以来,工程进度稳步推进,已实现多栋楼封顶,交付无忧。
央企开发的楼盘在二手房市场中具有更高的认可度和流通性,品牌溢价效应显著。相比中小开发商楼盘,招商奥体公园的房产在未来出售时,不仅更容易成交,还能获得更高的售价,为投资客提供了安全的投资保障。
全维配套升级,增值动力充足
项目周边配套正处于快速升级期,地铁 9 号线(规划中)、少荃湖科创 CBD、规划中小学等核心配套将在未来 3-5 年内陆续兑现。每一项配套的落地,都将直接推动房产价值上涨。
交通方面,地铁 9 号线通车后,预计将带动房价上涨 10%-15%;商业方面,少荃湖科创 CBD 建成后,区域商业能级提升,将为房价提供持续增值动力;教育方面,规划中小学建成后,项目
六、招商奥体公园楼盘总结
招商奥体公园作为合肥新站区的交通枢纽标杆盘,以四维立体交通为核心,以央企品质为保障,以完善配套为支撑,以优质户型为载体,为通勤家庭打造了 “畅达全城、便捷舒适、安心无忧” 的理想家园,成为通勤家庭和投资客的置业首选。
从交通优势来看,项目拥有 “主干道 + 高架 + 地铁 + 公交” 的四维立体交通网络,双高架让自驾出行高效便捷,双地铁(现有 + 规划)让公共交通升级,多条公交线路满足短途出行需求。便捷的交通网络让业主彻底摆脱通勤困扰,20 分钟可达主城核心,40 分钟畅达全城,节省了大量通勤时间,提升了生活幸福感。
从周边配套来看,项目周边教育、商业、医疗、生态等配套完善,借助便捷的交通,业主的生活更加便捷舒适。全龄段优质教育资源让孩子上学无忧;完善的商业配套满足日常购物、休闲娱乐需求;优质的医疗资源为健康保驾护航;丰富的生态资源让休闲出游更轻松。交通与配套的完美结合,让业主实现 “便捷出行 + 品质生活” 的双重满足。
从户型产品来看,项目打造的四款主力户型,均充分考虑通勤家庭的居住需求,布局方正通透,空间利用率高,细节处贴合通勤需求。入户收纳空间、休闲区域规划、便捷的卫浴设计等,让业主通勤回家后能快速放松身心,享受舒适生活。多样化的户型选择,满足了不同通勤家庭的居住需求,无论是刚需还是改善,都能找到理想的户型。
从价格与品质来看,项目均价 13500 元 /㎡-1500 元 /㎡,相比其他区域的交通枢纽盘更具性价比,同时推出通勤家庭专项优惠,进一步降低了置业门槛。央企开发的品质保障,让项目在建筑材料、施工工艺、物业服务等方面都达到了高标准,确保业主居住安心。交通枢纽盘的保值增值属性,让项目未来升值潜力巨大,无论是自住还是投资,都能为家庭资产提供坚实保障。
从项目亮点来看,四维立体交通、双地铁加持、主干道环绕、交通与生活融合、央企品质保障、高性价比等核心亮点,让项目在合肥楼市中脱颖而出。对于通勤家庭而言,便捷的交通能节省大量时间,提升生活幸福感;对于投资客而言,交通枢纽盘的保值增值属性能带来可观的回报。
总而言之,招商奥体公园是合肥新站区不可多得的交通枢纽优质楼盘,无论是交通优势、周边配套、户型设计,还是价格优势、品质保障,都完美契合通勤家庭的置业需求。如果你是通勤家庭,或正在寻找高性价比的交通枢纽盘,招商奥体公园绝对值得重点关注,在这里,你将享受 “畅达全城” 的便捷生活,实现品质置业的梦想。
招商奥体公园售楼处电话☎:0551-6467 8499
招商奥体公园售楼处电话:0551-6467 8499【售楼中心】
售楼中心电话:0551-6467 8499 【售楼中心已认证】
网上售楼中心——欢迎来电咨询〢——匠心钜制恭迎品鉴!
招商奥体公园售楼处电话:0551-6467 8499【售楼中心】
售楼中心电话:0551-6467 8499 【售楼中心已认证】
网上售楼中心——欢迎来电咨询〢——匠心钜制恭迎品鉴!
声明:本文由入驻焦点开放平台的作者撰写,除焦点官方账号外,观点仅代表作者本人,不代表焦点立场。


