可以洋房何必高层 | 理想主义者的理性洋房
扫描到手机,新闻随时看
扫一扫,用手机看文章
更加方便分享给朋友
“世界大同的理想生活,是住在花园洋房里。”

△万达大都会·公元效果图
一处理想人居,承载着当代人对美好生活的渴望。从洋房到高层,人们总是希望在同等的价值内选择更优渥的生活空间。在土地寸土寸金的当下,洋房作为一种理想生活状态,被精英人士所推崇。

万达大都会·公元,洞察当代理想主义者的居住需求,匠筑11层亲地洋房,让居者出则繁华,入则繁花,与雅致景色共生联动,与都会生活倾心相见,一笔一划勾勒出都会低密的迷人画卷。

万达大都会·公元

——理性的选择 是品质生活——

△万达大都会·公元效果图
低密宽境舒居,不仅是对人居环境的考量,更是对生活品质的甄选。万达大都会·公元深谙生活的优雅与浪漫,将更多的空间退让给花草浓荫。11层电梯洋房,不仅让栖居更亲近大地,近享宝格丽现代风情花园,约40米超宽楼间距更拉开了建筑之间的距离。明媚阳光、清风鲜氧,让生活回归本真。拉开窗帘,阳光倾泻而入,往外望去,楼下花园里,缱绻满园。

——理性的选择 是健康鲜氧——

△万达大都会·公元效果图
容积率是衡量社区舒适度的重要指标,要知道,每降低0.1的容积率,带来的改变将超乎想象。可能是楼间距增加2米,日照增加15分钟,被邻居吵到的机会减少20%,绿化率增加1%,小区新增100棵树,活动区域扩大10.5㎡.......万达大都会·公元,以2.0容积率,高达35%绿化率,给生活更多的自然绿意和阳光清风。

——理性的选择 是公摊更小——

△万达大都会·公元效果图
洋房公摊少,得房率高,套内面积大,高层公摊面积约为25%,也就是说100㎡的房子套内面积只有约75㎡。而洋房公摊面积一般为10%-18%,同样的面积洋房比高层套内面积多出10%-15%。
万达大都会·公元洋房得房率高达86%左右,公摊系数仅为14%左右!同样的房子,同样的价格,跟周边高层楼盘相比,实用面积多出更多,性价比不言而喻。

——理性的选择 是宜居户型——

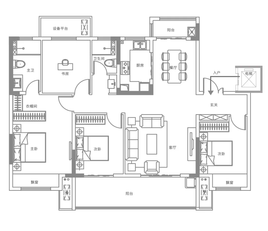
△万达大都会·公元户型图
为了给业主带来更舒适的生活享受,万达大都会·公元精研业主居住习惯,结合行业先进案例总结,打造出建筑面积约143㎡的宽境洋房。
约143㎡户型,具有超高性价比。拥有约7.5米超长景观阳台、超大飘窗,解锁了自然与人居的限制,让生活场景无限延伸;同时,四室设计可以满足二胎家庭、三代同堂多种家庭结构,是极为稀缺的一步到位洋房户型。


我们喜爱洋房,不只是因为洋房是“少数派”的代表,更多的是对洋房里生活的喜爱。空间的舒适、环境的惬意,城市的人文气韵,生活的优雅内涵,都蕴藏在洋房的点滴生活中。人生进阶时,当选万达大都会·公元理想洋房。
声明:本文由入驻焦点开放平台的作者撰写,除焦点官方账号外,观点仅代表作者本人,不代表焦点立场。


