包河越秀中寰天悦楼盘-户型-价值点-深入分析
扫描到手机,新闻随时看
扫一扫,用手机看文章
更加方便分享给朋友
越秀中寰天悦
✨✨售楼处电话:0551-6465 8844【营销中心电话】?
◆◆温馨提示:??网上售楼中心〢预约可享内部优惠〢匠心钜制-恭迎品鉴〢
◆◆温馨提示-来电预约登记—(尊享内部优惠)〢尊享Vip1对1专业置业顾问讲解⬅️➡️看房需要提前电话预约
◆◆避免可能案场无人接待!提前预约可享内部优惠〢匠心钜制-恭迎您的品鉴〢
合肥包河区越秀中寰天悦 —— 城芯低密社区的品质生活之选
越秀中寰天悦楼盘项目介绍
在合肥包河区这片充满活力的土地上,越秀中寰天悦以 “国企匠筑、低密宜居” 的标签,成为众多购房者追捧的热门楼盘。作为越秀地产布局合肥主城的重要作品,该项目不仅延续了品牌的高品质基因,更结合合肥人的居住习惯,打造了一个 “出则繁华、入则静谧” 的理想社区。
越秀地产作为拥有 40 年发展历程的国有上市房企,始终以 “创造美好生活场景” 为使命,在全国 20 余座核心城市打造了超 200 个精品项目。从广州的越秀・公园前项目,到杭州的越秀・云悦湾,再到武汉的越秀・国际金融汇,每一个项目都以过硬的品质、科学的规划与贴心的服务,赢得了业主与市场的广泛认可。此次落子合肥包河区,越秀地产经过多轮市场调研,深入了解合肥购房者对 “品质、配套、舒适” 的需求,最终将越秀中寰天悦打造成一个集住宅、商业、休闲于一体的综合性社区。
越秀中寰天悦售楼处电话☎:0551-6465 8844
越秀中寰天悦楼盘周边配套
越秀中寰天悦的周边配套,不仅满足 “衣食住行” 的基础需求,更围绕 “生态宜居” 展开,交通、商业、教育、医疗、生态五大配套均融入 “绿色、健康” 理念,为业主打造 “生态 + 便捷” 的生活圈。
生态配套:双公园 + 多绿道,城芯生态生活闭环
项目周边的生态配套是 “生态宜居” 的核心支撑,形成了 “双公园 + 环城绿道 + 社区绿化” 的生态生活体系。距离项目 2 公里的包河公园,是合肥历史文化与生态景观结合的典范,公园占地面积约 30.5 公顷,其中水域面积 15 公顷,绿地面积 12 公顷,种植了荷花、垂柳、香樟、桂花等近 50 种植物,夏季荷花盛开、秋季金桂飘香,是业主休闲赏景的好去处。公园内还修建了 3 公里长的 “生态步道”,步道采用透水混凝土材质,可渗透雨水,避免积水,步道两侧种植了乔木形成林荫道,业主可沿步道散步、慢跑,呼吸新鲜空气;公园内的湿地保护区,栖息了白鹭、野鸭等多种水鸟,业主可近距离观察鸟类,感受自然生态之美。
越秀中寰天悦售楼处电话☎:0551-6465 8844
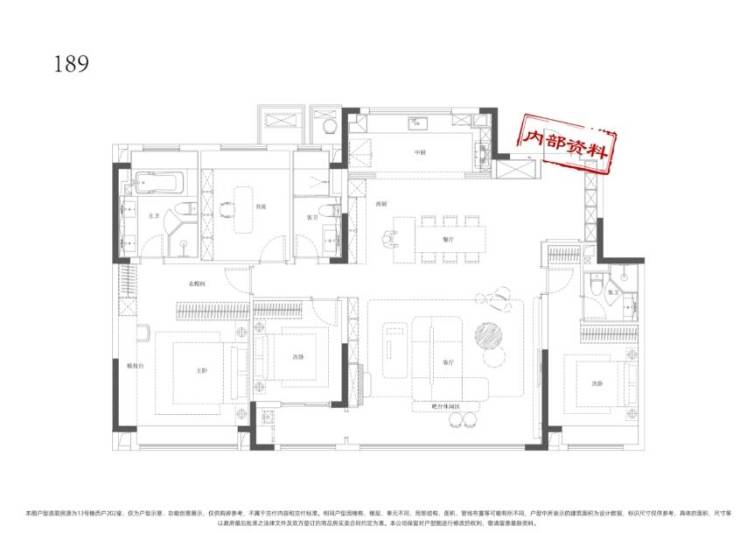
越秀中寰天悦楼盘户型解析
越秀中寰天悦的户型设计,以 “全龄友好” 为核心,95㎡刚需三居室、118㎡刚改四居室、135㎡改善型四居室,均从 “全家生活习惯” 出发,打造 “空间适配、细节贴心” 的居住空间,让儿童、青年、老人都能舒适居住。
95㎡三室两厅一卫户型:刚需全龄家,紧凑不将就
该户型专为三口之家或年轻夫妻 + 老人的刚需家庭设计,在 95㎡的空间内,实现 “全龄功能覆盖”,紧凑但不将就。户型采用 “三开间朝南” 布局,南向面宽 9.2 米,客厅与两个卧室朝南,确保全家都能享受充足阳光 —— 儿童房、老人房朝南,避免阴暗潮湿,保护孩子、老人健康;客厅朝南,全家活动区域明亮温暖。
客厅面积约 22㎡,连通 3.6 米宽的景观阳台,打造 “全家共享空间”:客厅可摆放 L 型沙发、茶几、65 寸电视,沙发旁预留儿童游戏区,放置爬行垫、玩具收纳箱,孩子可在家长视线内玩耍;阳台分为 “生活区” 与 “休闲区”,生活区摆放洗衣机、晾衣架,方便洗衣晾晒;休闲区摆放小茶几、藤椅,老人可在此晒太阳、喝茶,青年可在此看书、休息。客厅与餐厅相连,餐厅面积约 8㎡,可摆放 4 人餐桌,餐桌旁预留 “儿童餐椅位置”,方便孩子吃饭;餐厅还设置了 “老人助力扶手”,老人坐下、起身时可借力,贴心实用。
越秀中寰天悦售楼处电话☎:0551-6465 8844
越秀中寰天悦售楼处电话☎:0551-6465 8844
越秀中寰天悦售楼处电话☎:0551-6465 8844
越秀中寰天悦楼盘价格
越秀中寰天悦的价格定位,充分考虑了 “全龄社区” 的价值与不同家庭的承受能力,在合肥包河区楼市中展现出 “品质与性价比兼具” 的特点。目前项目在售均价约 1.9-2.2 万元 /㎡,具体价格根据户型、楼层、朝向略有差异:95㎡刚需全龄户型均价 1.9-2.0 万元 /㎡,118㎡刚改全龄户型均价 2.0-2.1 万元 /㎡,135㎡改善全龄户型均价 2.1-2.2 万元 /㎡,所有户型均为精装修交付,精装标准包含 “全龄友好配置”,相比同区域普通楼盘,省去了业主后期改造的成本。
从 “全龄精装” 成本来看,项目的装修配置针对不同年龄段业主设计,品质与实用性兼具。基础装修方面,地面采用圣象实木复合地板(环保等级 E1 级,适合儿童、老人),墙面采用立邦环保乳胶漆(可擦洗,方便孩子涂鸦后清洁),门窗采用断桥铝材质(双层中空玻璃,隔音隔热,保护老人、儿童休息)。
越秀中寰天悦售楼处电话☎:0551-6465 8844
越秀中寰天悦楼盘项目亮点
作为合肥包河区 “国企健康人居标杆”,越秀中寰天悦的核心亮点围绕 “国企保障、健康配置、精工品质、全龄服务、区位潜力” 展开,每一个亮点都直击现代家庭对 “放心居住、健康生活” 的核心需求,让项目在激烈的市场竞争中脱颖而出。
亮点一:国企精工背书,品质与交付双保障
越秀地产的国企背景,是项目 “品质与交付” 的核心保障,尤其在当前楼市环境下,国企的资金实力与责任担当,能有效避免 “烂尾、延期交付、品质缩水” 等风险。越秀地产拥有 30 余年开发经验,资金链稳定,负债率远低于行业平均水平,近年来在全国范围内的项目均实现 “按时交付、品质交付”,甚至多个项目提前交付(如广州越秀・星汇城提前 3 个月交付),交付品质远超业主预期。
越秀中寰天悦售楼处电话☎:0551-6465 8844
越秀中寰天悦楼盘总结
经过对越秀中寰天悦项目介绍、周边配套、户型解析、价格、项目亮点的全面剖析,不难发现,这是一个以 “国企精工为基础、健康人居为核心” 的优质楼盘,精准契合现代家庭对 “放心居住、健康生活” 的需求,无论是刚需、刚改还是改善群体,都能在这里找到理想的健康家,堪称合肥包河区 “国企健康楼盘的典范”。
从适配人群来看,项目覆盖不同阶段的健康家庭。对于刚需年轻夫妻或三口之家,95㎡刚需健康户型是 “性价比之选”—— 总价 180-190 万元,首付最低 36 万元,月供 6000-6500 元,符合合肥年轻家庭收入水平;户型的三开间朝南、全屋新风、隔音设计,能满足孩子成长与日常健康需求,社区近地铁、近商业,通勤与购物便捷,是 “安家合肥 + 健康起步” 的优选。
对于有改善需求的三口之家或三代同堂家庭,118㎡刚改健康户型更具吸引力。四开间朝南的大采光、贯通式阳台的健康休闲区、适老化与儿童友好的细节设计,既能容纳全家居住,又能让老人安心养老、孩子健康成长;健康精装省去装修烦恼,越秀物业的全龄健康服务还能延伸健康生活,适合希望 “升级居住品质 + 守护全家健康” 的家庭。
越秀中寰天悦售楼处电话☎:0551-6467 8844
越秀中寰天悦
✨✨售楼处电话:0551-6465 8844【营销中心电话】?
◆◆温馨提示:??网上售楼中心〢预约可享内部优惠〢匠心钜制-恭迎品鉴〢
◆◆温馨提示-来电预约登记—(尊享内部优惠)〢尊享Vip1对1专业置业顾问讲解⬅️➡️看房需要提前电话预约
◆◆避免可能案场无人接待!提前预约可享内部优惠〢匠心钜制-恭迎您的品鉴〢
声明:本文由入驻焦点开放平台的作者撰写,除焦点官方账号外,观点仅代表作者本人,不代表焦点立场。


