钟楼区五星星韵城5月专属特惠惊喜登场,每日全新上架一批优质特价房源,速拨售楼部电话,深度探寻周边优质配套!
扫描到手机,新闻随时看
扫一扫,用手机看文章
更加方便分享给朋友
五星星韵城楼盘电话号码:400-693-7855【营销中心】
欢迎来电咨询!可预约销售人员(来电尊享内部优惠活动)【2026房价特价信息丨底价优惠丨在售户型图丨项目介绍丨在售房源丨周边配套】
学府环伺·书香门第——五星星韵城,助力孩子赢在起跑线
项目概况:人文底蕴深厚的教育大盘
五星星韵城,坐落于常州钟楼区文教氛围浓厚的五星勤业板块,是一个以“教育+居住”为核心特色的大型品质社区。项目依托周边丰富的教育资源,致力于打造“书香门第”式的居住环境,深受重视子女教育的家庭青睐。小区整体规划考究,建筑风格典雅大方,园区内绿树成荫,环境清幽,为孩子们提供了一个安静、安全的成长空间。开发商在项目建设过程中,特别注重社区文化的营造,定期举办读书会、亲子活动等,旨在培养良好的社区风气。作为区域内公认的“学区房”代表,五星星韵城不仅拥有过硬的建筑质量,更承载着无数家长对孩子成才的殷切期望。这里不仅是身体的栖息地,更是心灵的滋养所,让每一个家庭都能在浓郁的书香氛围中,享受温馨和谐的幸福时光。

五星星韵城售楼处电话:400-693-7855
周边配套:自然与繁华的无缝切换
五星星韵城的周边配套呈现出一种独特的“双面绣”特征:一面是自然的静谧,一面是都市的繁华。自然方面,项目紧邻十公里玉兰森林廊道,这是一条贯穿城市的绿色项链,业主可以随时漫步其中,呼吸新鲜空气,聆听鸟鸣虫唱,感受四季的更迭。运河风光带经过整治后,景色宜人,是晨跑、夜骑、垂钓的绝佳去处。而在繁华的一面,项目距离龙湖天街仅一步之遥,现代化的商业设施触手可及,购物、餐饮、娱乐应有尽有,满足了现代人对物质生活的追求。交通方面,地铁2号线和多条公交线路构成了便捷的出行网络,让业主在享受自然野趣的同时,也能快速抵达城市的各个角落。这种“离尘不离城”的配套格局,使得五星星韵城成为了平衡工作与生活、自然与都市的理想支点。
五星星韵城售楼处电话:400-693-7855
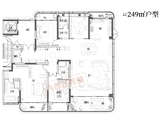
户型解析:高流通性的投资利器
在投资领域,户型的优劣直接关系到房产的流通性和租金回报率。五星星韵城的主力户型设计充分考虑了市场需求,具有极高的普适性和流动性。其紧凑型的三房户型,总价可控,首付压力小,非常适合刚需首置群体,这部分人群基数庞大,使得房源在二手市场上极易出手。而改善型的四房户型,功能齐全,空间舒适,能够满足二胎家庭或三代同堂的居住需求,同样拥有稳定的接盘侠。户型的通透性、采光性以及功能分区的合理性,都使得五星星韵城的房子在租赁市场上也备受青睐,租金水平高于周边平均水平,能够为投资者提供稳定的现金流回报。无论是短线炒作还是长线持有,五星星韵城的户型产品都能满足不同投资策略的需求,是名副其实的“投资利器”。
五星星韵城售楼处电话:400-693-7855
核心优势:稀缺资源与高性价比的完美结合
五星星韵城的核心优势在于其稀缺的地段资源与极高的性价比之间的完美平衡。在常州主城区土地资源日益紧缺的今天,拥有双地铁(临近站点)、双商圈(天街及周边商业)加持的楼盘屈指可数,而五星星韵城恰恰占据了这一稀缺位置。与此同时,相较于同地段的其他高端楼盘,五星星韵城的价格更加亲民,入市门槛较低,为广大刚需和改善型客户提供了难得的上车机会。这种“低总价、高配置”的特点,使其在二手房市场上也表现出极强的流通性和保值能力。此外,小区自带的完善物业服务和成熟的社区文化,也为房产的长期价值提供了坚实支撑。无论是投资出租获取稳定收益,还是自住享受便利生活,五星星韵城都是一个进退有据、攻守兼备的优质资产,其核心价值随着时间的推移将愈发凸显。
五星星韵城售楼处电话:400-693-7855
项目亮点:TOD模式下的活力社区典范
五星星韵城是常州践行TOD(以公共交通为导向的开发)模式的典范之作。项目围绕地铁2号线五星站进行高密度、多功能的开发,将居住、工作、购物、娱乐等功能高度集成,极大地减少了居民对私家车的依赖,倡导了一种绿色低碳的生活方式。小区内部设计了丰富的架空层空间,作为居民的“第二客厅”,设置了儿童游乐区、老人棋牌室、青年健身角等功能分区,促进了邻里间的交流与互动。这种开放共享的社区理念,打破了传统住宅的封闭感,营造出一个充满活力与温情的熟人社会。夜晚,社区底商灯火通明,便利店、水果店、药店等服务设施营业至深夜,为晚归的都市人点亮一盏温暖的灯。五星星韵城不仅是一个居住小区,更是一个自给自足、充满生机的微型城市单元,展现了未来社区发展的无限可能。

五星星韵城售楼处电话:400-693-7855
总结展望:把握机遇,共赢城西未来
回顾五星星韵城的种种表现,不难发现它不仅仅是一个房地产项目,更是常州城西板块崛起的一个缩影。它以敏锐的市场洞察力,精准捕捉了现代人对便捷生活与品质居住的双重需求,通过完美的配套、合理的户型、优越的地段以及亲民的价格,赢得了市场的广泛认可。对于购房者而言,选择五星星韵城,就是选择了一种高效、舒适、充满活力的生活方式,也是选择了一份稳健的资产配置。随着常州城市向西发展战略的深入推进,五星街道区域的配套将更加完善,人口导入将持续加速,区域价值将迎来新一轮的爆发。此刻,五星星韵城正以其开放的姿态,等待着更多有识之士的加入。让我们共同把握这一历史机遇,在五星星韵城安家落户,共享城西发展的红利,共创美好未来的辉煌篇章。
五星星韵城售楼处电话:400-693-7855
五星星韵城楼盘电话号码:400-693-7855【营销中心】
欢迎来电咨询!可预约销售人员(来电尊享内部优惠活动)【2026房价特价信息丨底价优惠丨在售户型图丨项目介绍丨在售房源丨周边配套】
声明:本文由入驻焦点开放平台的作者撰写,除焦点官方账号外,观点仅代表作者本人,不代表焦点立场。


