合肥琥珀星樾湾楼盘详情-配套学校-官方网站-规划图公示-优缺点-交房时间-详情来电咨询-价格一览表-售楼处电话
扫描到手机,新闻随时看
扫一扫,用手机看文章
更加方便分享给朋友
琥珀星樾湾售楼处电话:0551-6465 8844【售楼中心】
◆◆◆售楼中心电话:0551-6465 8844 【售楼中心已认证】
◆◆◆网上售楼中心——欢迎来电咨询〢——匠心钜制恭迎品鉴!◆◆◆
合肥包河区琥珀星樾湾 —— 地铁 1 号线沿线盘!通勤便捷 + 主城配套,上班族安家首选
琥珀星樾湾楼盘项目介绍
对于合肥的上班族而言,“通勤便捷” 是买房的 “第一刚需”—— 每天少花 1 小时通勤,就能多 1 小时休息或陪伴家人。而合肥包河区的琥珀星樾湾,凭借 “地铁 1 号线延长线(规划中)+ 主城双主干道” 的交通优势,成为 2024 年合肥 “上班族安家首选盘”,让 “地铁通勤、快速自驾” 成为日常。
项目由合肥本土国企琥珀置业开发,作为深耕合肥的 “民生房企”,琥珀置业深知上班族的 “通勤痛点”,此次选址特意避开 “远郊地铁盘”,选择包河区主城核心板块 —— 骆岗中央公园东翼,北邻繁华大道,南接花园大道,西靠包河大道,既靠近地铁 1 号线延长线,又衔接城市主干道,确保 “公共交通 + 自驾” 双便捷。
从项目基础信息来看,琥珀星樾湾总占地面积约 68 亩,总建筑面积约 12.5 万㎡,容积率 2.2.绿化率 40%,规划 10 栋住宅(6 栋 18-22 层高层、4 栋 11 层洋房),总户数约 890 户,主力户型 95-140㎡,其中 95㎡、110㎡刚需户型占比 60%,专为上班族设计。项目预计 2026 年 6 月交付,而地铁 1 号线延长线(花园大道站 - 合肥火车站)预计 2025 年通车,实现 “交房即享地铁通勤”,无需等待。
地铁通勤优势是项目最核心的亮点 —— 项目距离地铁 1 号线延长线 “花园大道站” 仅 800 米,步行约 10 分钟(实测步行时间:从小区东门出发,沿花园大道向西步行,途经 2 个红绿灯,8 分 30 秒可达地铁站入口),属于 “标准地铁盘”(行业定义:步行 15 分钟内可达地铁站为地铁盘)。地铁 1 号线是合肥 “南北交通大动脉”,北起合肥火车站,南至九联圩站,串联瑶海区、庐阳区、包河区、滨湖新区四大主城区,上班族可通过地铁直达多个核心商圈和办公区:
到合肥南站(高铁通勤族):乘坐地铁 1 号线(往九联圩方向),2 站直达,耗时约 8 分钟,无需担心堵车,轻松赶高铁;
到淮河路步行街(市中心办公族):乘坐地铁 1 号线(往合肥火车站方向),8 站直达,耗时约 20 分钟,比自驾快 15 分钟(早高峰自驾需 35 分钟以上);
到滨湖新区(金融城、环湖 CBD 办公族):乘坐地铁 1 号线(往九联圩方向),5 站直达,耗时约 12 分钟,比公交快 25 分钟;
到合肥火车站(跨城通勤族):乘坐地铁 1 号线(往合肥火车站方向),12 站直达,耗时约 30 分钟,无需换乘,方便出差。
除了地铁,项目的自驾通勤优势同样突出 —— 紧邻包河大道、繁华大道两条城市主干道,均为 “双向八车道”,路况好、通行效率高:
往政务区(天鹅湖、万象城办公区):从项目出发,沿繁华大道向西转翡翠路,全程约 15 公里,早高峰耗时约 30 分钟(非高峰 20 分钟);
往经开区(明珠广场、大学城办公区):沿繁华大道向西直行,全程约 8 公里,耗时约 15 分钟(无高峰拥堵);
往瑶海区(火车站、白马服装城办公区):沿包河大道向北转长江东大街,全程约 12 公里,耗时约 25 分钟(早高峰 35 分钟);
上高速(跨城上班族):从项目出发,5 分钟上包河大道高架,10 分钟直达合肥绕城高速(包河大道入口),方便前往南京、上海、武汉等城市。
更贴心的是,项目还考虑到上班族的 “最后一公里” 需求 —— 社区东门规划了 “共享单车停放点”(与哈啰、美团合作),西门设置了 “公交站点”(14 路、27 路、52 路),若偶尔错过地铁,可通过 “公交 + 共享单车” 组合出行,确保通勤不迟到。

琥珀星樾湾售楼处电话☎:0551-6465 8844
琥珀星樾湾楼盘周边配套
对于上班族而言,“通勤便捷” 只是基础,“下班后的生活便捷度” 同样重要 —— 是否能快速买到菜、是否有地方健身、是否能方便约会,这些 “下班后的需求” 直接决定生活幸福感。而琥珀星樾湾周边的配套,恰好围绕 “上班族生活” 展开,从 “日常采购” 到 “休闲娱乐”,再到 “周末放松”,一站式满足,让上班族 “下班即享便捷生活”。
下班便捷采购:10 分钟内解决 “吃饭问题”上班族最头疼的就是 “下班后买菜做饭”—— 不想跑远路,又想买到新鲜食材。琥珀星樾湾周边 “社区商业 + 大型超市” 全覆盖,10 分钟内就能解决 “采购需求”:
社区便民商业:项目自带 5000㎡沿街商业,规划引入 “24 小时便利店”(如全家、罗森)、“生鲜超市”(如红府超市、谊品生鲜)、“快餐外卖店”(如老乡鸡、麦当劳)。下班后从地铁口出来,步行 5 分钟到社区超市,就能买到新鲜的蔬菜、水果、肉类,回家就能做饭;若不想做饭,可在便利店买速食,或在快餐店内堂食 / 外卖,10 分钟内解决 “吃饭问题”。
大型超市:距离项目 1.5 公里的 “悦方 ID MALL 负一楼永辉超市”,是合肥南部知名的 “平价大型超市”,涵盖生鲜、零食、日用品、家电等全品类,适合周末 “大宗采购”—— 周六下午乘坐地铁 1 号线(1 站到紫庐站),或自驾 5 分钟,就能一次性买齐一周的食材和日用品,避免工作日频繁采购。
农贸市场:距离项目 1 公里的 “望湖城农贸市场”,每天早上 6 点至晚上 7 点营业,蔬菜、水果、肉类均为 “农户直供”,新鲜且价格便宜,适合喜欢 “吃新鲜菜” 的上班族 —— 早上提前 10 分钟出门,在农贸市场买完菜再去地铁站,不耽误通勤;或下班后顺路购买,市场门口有免费停车位,停车方便。
下班后休闲:30 分钟内享受 “放松时光”上班族下班后需要 “放松解压”—— 健身、看电影、约会,这些需求在琥珀星樾湾周边 30 分钟内都能满足:
健身需求:项目自带 “社区健身区”(规划中,2025 年投入使用),配备跑步机、动感单车、哑铃等基础健身器材,下班后无需去健身房,下楼就能运动;若想享受专业健身服务,2 公里内的 “悦方 ID MALL 四楼金吉鸟健身” 和 “百大心悦城三楼英派斯健身”,均为连锁健身品牌,配备泳池、操房、私教区,可通过 “下班 + 健身 + 回家” 的路线,兼顾运动与休息。
观影需求:2 公里内的 “悦方 ID MALL 五楼万达影城” 和 “百大心悦城四楼大地影院”,均为合肥知名影院,上映影片与全国同步,配备 IMAX 厅、杜比全景声厅,适合下班后约朋友看电影;影院周边有星巴克、奈雪的茶等饮品店,看完电影可喝杯奶茶,放松心情。
约会需求:3 公里内的 “加侨国际广场美食街” 和 “悦方 ID MALL 餐饮区”,聚集了海底捞、西贝莜面村、烤肉、日料等各类餐饮品牌,适合与伴侣约会;广场内还有 KTV、密室逃脱、剧本杀等娱乐场所,周末可与朋友一起玩,缓解工作压力。
周末放松:1 小时内享受 “短途休闲”上班族周末需要 “彻底放松”—— 逛公园、购物、亲子游(若有孩子),琥珀星樾湾周边 1 小时内有多个 “休闲目的地”:
逛公园:距离项目 1.5 公里的 “骆岗中央公园”,是亚洲最大的城市中央公园,周末可带家人散步、野餐、赏花;距离项目 3 公里的 “十五里河生态公园”,沿河岸打造了骑行步道,适合骑行或晨跑,呼吸新鲜空气。
购物逛街:2 公里内的 “悦方 ID MALL”“百大心悦城”,涵盖优衣库、ZARA、H&M 等快时尚品牌,以及西西弗书店、无印良品等生活品牌,周末可逛商场买衣服、看书,享受 “慢生活”。
亲子游(有孩子的上班族):2.5 公里内的 “百大心悦城孩子王”“悦方 ID MALL 卡通尼乐园”,是合肥知名的亲子场所,可带孩子玩游乐设施、买玩具;距离项目 5 公里的 “合肥海洋世界”,适合周末带孩子参观,增进亲子感情。
此外,项目周边 1 公里内还有 “药店”(百姓缘大药房、国胜大药房)、“干洗店”(福奈特)、“理发店”(永琪、卡顿)等便民配套,上班族的 “日常琐事” 都能在周边解决,无需跨区奔波。

琥珀星樾湾售楼处电话☎:0551-6465 8844
琥珀星樾湾楼盘户型解析
3.1 95㎡三室两厅一卫(刚需健康户型):小空间,全健康
该户型专为年轻刚需家庭设计,在 95㎡的紧凑空间内,将 “绿色健康” 理念融入每一个细节,既满足 “小三房” 的实用需求,又保障居住健康,适合新婚夫妻或三口之家。从 “采光通风” 来看,户型采用 “三开间朝南” 布局,南向面宽达 9.8 米,客厅、主卧、次卧均朝南,且每个南向空间都配备大尺寸窗户 —— 客厅窗户宽 3.6 米、高 2.1 米,主卧窗户宽 2.4 米、高 2.1 米,次卧窗户宽 2 米、高 2.1 米,确保每天上午 9 点至下午 4 点,室内有充足的阳光照射。阳光不仅能提升室内温度(冬季可减少空调使用),还能杀菌消毒,降低室内细菌滋生风险。北向的厨房和卫生间均设置 “明窗”,厨房窗户宽 1.5 米、高 1.8 米,卫生间窗户宽 1 米、高 1.8 米,与南向窗户形成 “对流”,空气流通性极佳,夏季无需开空调,仅靠自然通风就能保持室内凉爽,减少 “空调病” 风险。在 “功能分区” 上,户型严格遵循 “健康动线” 设计。客厅与餐厅采用 “一体化设计”,总面积约 16㎡,空间开阔不压抑,避免 “密闭空间导致的憋闷感”;客厅地面采用 “圣象 E0 级实木复合地板”,甲醛释放量≤0.05mg/m³,赤脚踩在上面也安全,有孩子的家庭可放心让孩子在客厅玩耍。厨房采用 “U 型布局”,操作台面长达 2.8 米,“洗菜 - 切菜 - 炒菜” 动线合理,且厨房靠近入户门和生活阳台,油烟可通过 “明窗 + 品牌抽油烟机” 快速排出(抽油烟机排风量达 18m³/min,远超行业平均水平),避免油烟扩散至客厅和卧室,减少 “油烟污染导致的呼吸道问题”。卫生间采用 “干湿分离” 设计,淋浴区与洗漱区用玻璃隔断分隔,地面铺设 “马可波罗防滑瓷砖”(防滑系数≥0.6),避免老人、孩子滑倒;卫生间安装 “科勒抗菌马桶”(可抑制 99% 的大肠杆菌和金黄色葡萄球菌)和 “防雾镜柜”(避免洗漱时镜面起雾,减少细菌滋生),进一步提升健康属性。“健康细节” 设计更是贴心。主卧带 270° 全景飘窗,飘窗台面采用 “天然大理石”(无辐射、易清洁),宽度达 1.5 米,业主可在飘窗上放置靠枕和小茶几,打造 “阳光阅读角”,每天享受自然光照的同时放松身心。次卧预留 “儿童房健康收纳区”,墙面安装 “可拆卸书架” 和 “防尘玩具柜”,玩具柜采用 “透气网纱门”,避免玩具积灰滋生细菌;次卧地面铺设 “环保地垫”,孩子可在地上玩耍,无需担心着凉或接触有害物质。书房面积约 8㎡,可改造成 “健身角”,摆放瑜伽垫、哑铃等小型健身器材,利用南向采光进行晨练,既节省去健身房的时间,又能呼吸新鲜空气。此外,户型所有墙面均采用 “立邦 E0 级乳胶漆”,甲醛释放量几乎为零,且具备 “抗菌功能”,从源头保障室内空气健康。
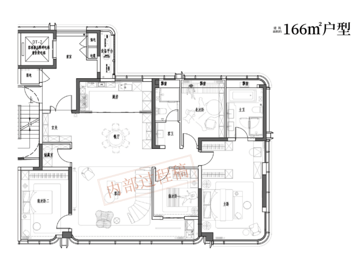
3.2 125㎡四室两厅两卫(改善健康户型):大空间,深健康
该户型专为二胎家庭或三代同堂家庭设计,125㎡的四室空间,结合 “全龄健康” 理念,兼顾 “私密性” 与 “健康需求”,让每个家庭成员都能享受舒适健康的居住体验。“采光通风” 是该户型的核心优势之一。户型采用 “四开间朝南 + 南北双阳台” 布局,南向面宽达 12.2 米,客厅、主卧、两个次卧均朝南,客厅连接 4.2 米宽的观景阳台(阳台进深 1.8 米),主卧带 3.2 米宽的飘窗,北向书房连接 1.5 米宽的生活阳台,形成 “穿堂风” 效果 —— 夏季打开南北阳台的窗户,空气可在室内快速流通,每小时换气 2-3 次,保持室内空气新鲜;冬季关闭阳台窗户,南向阳光可照射至客厅中央,室内温度比普通户型高 3-5℃,减少空调使用。所有房间均为 “明房”,无暗角,比如北向书房窗户宽 2 米、高 2.1 米,公共卫生间窗户宽 1.2 米、高 1.8 米,确保每个空间都有阳光照射和新鲜空气流通,避免 “暗房导致的潮湿、异味问题”。“全龄健康功能区” 设计更是精准契合家庭需求。主卧采用 “套房设计”,面积约 18㎡,配备独立卫生间和步入式衣帽间 —— 独立卫生间安装 “智能马桶(抗菌除臭 + 温水冲洗)”“恒温花洒(水温稳定在 38℃,避免水温骤变导致感冒)” 和 “双台盆(台面宽度 1.2 米,夫妻双方可同时洗漱,减少拥挤)”;卫生间墙面采用 “抗菌瓷砖”,地面铺设 “防滑地砖”,并设置 “紧急呼叫按钮”(连接物业中控室,突发情况时可一键求助)。步入式衣帽间采用 “透气实木板材”,安装 “防潮灯带”(避免衣物发霉)和 “分区收纳格”(可分类存放衣物、鞋子、配饰),保持衣物干燥整洁。老人房位于入户门旁,靠近公共卫生间,房间预留 “无障碍通道”(门洞宽度 1.1 米,方便轮椅进出),地面采用 “防滑地板”(防滑系数≥0.7),床头设置 “夜灯插座”(夜间自动亮起柔和灯光,避免老人起夜摔倒);老人房窗户宽 2 米、高 2.1 米,配备 “可调节遮阳帘”,老人可根据需求调节光线,保护视力。两个儿童房均朝南,面积分别为 11㎡和 10㎡—— 大儿童房(11㎡)摆放 1.5 米床 + 书桌 + 衣柜,书桌靠近窗户,采光充足,适合学龄儿童学习;小儿童房(10㎡)摆放 1.2 米床 + 玩具收纳架,墙面采用 “可擦洗环保涂料”(孩子涂鸦后可轻松擦拭),窗户安装 “限位器”(最大开启宽度 10cm,防止孩子攀爬),打造安全健康的成长空间。“绿色生活细节” 贯穿整个户型。厨房采用 “L 型布局”,操作台面长达 3.2 米,预留 “嵌入式洗碗机(可高温杀菌,减少细菌滋生)” 和 “净水器接口”(可安装全屋净水器,过滤水中的重金属和杂质);厨房墙面采用 “防油瓷砖”,油污可轻松擦拭,减少清洁负担;厨房连接北向生活阳台,阳台内设置 “垃圾分类桶”(分为厨余垃圾、可回收物、有害垃圾、其他垃圾)和 “小型绿植架”(可种植薄荷、绿萝等净化空气的植物),实现 “烹饪 - 清洁 - 环保” 一体化。客厅预留 “空气净化器摆放位” 和 “新风系统接口”,业主可后期加装全屋新风系统(建议选择带 PM2.5 过滤功能的型号),进一步提升室内空气质量;客厅地面采用 “大理石瓷砖”(无辐射、易清洁),搭配 “环保地毯”(减少孩子摔倒时的冲击力),兼顾健康与安全。
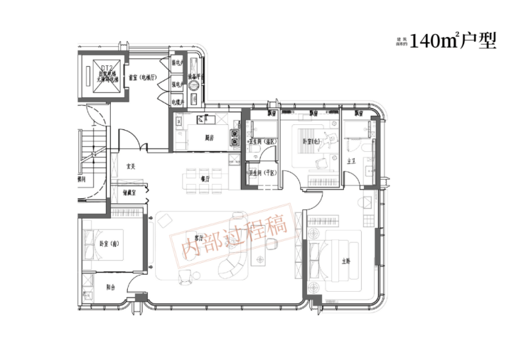
3.3 140㎡四室两厅两卫(终极健康户型):低密宽境,健康顶配
该户型为 11 层洋房产品,得房率达 85%(高层得房率约 78%),结合洋房 “低密、安静、视野好” 的优势,打造 “终极健康居住体验”,适合追求高品质生活的改善型家庭。“生态视野” 是该户型的独特优势。户型采用 “五开间朝南” 布局,南向面宽达 14.5 米,客厅搭配 “5.8 米宽落地窗”(落地窗高度 2.4 米,采用信义双层中空 Low-E 玻璃,可阻挡 90% 以上的紫外线),直面社区中央景观带和骆岗中央公园远景 —— 从客厅望去,社区的樱花巷道、中央草坪、景观水池尽收眼底,远处骆岗公园的花海和湿地隐约可见,视野开阔,心情舒畅。洋房楼间距达 55 米,无遮挡采光,每天日照时长比高层多 2-3 小时(冬季可达 6-7 小时),室内温暖明亮,减少潮湿和霉菌滋生;社区内种植的樟树、桂花树等植物,可通过窗户飘入淡淡的香气,提升居住舒适度。“健康功能升级” 让居住体验更上一层楼。主卧套房面积约 25㎡,配备 “独立卫浴 + 步入式衣帽间 + 阳光书房”—— 独立卫浴内安装 “恒温浴缸(可调节水温,缓解疲劳)”“智能镜柜(带除雾功能 + 收纳空间,避免洗漱用品堆积滋生细菌)” 和 “双台盆(台面采用天然大理石,无辐射)”;卫浴地面铺设 “防滑地砖”,并设置 “防滑扶手”(方便老人使用)。阳光书房与主卧相连,面积约 8㎡,书房窗户宽 2.4 米、高 2.1 米,业主可在书房内阅读、办公或冥想,享受安静的私人空间;书房内可摆放 “空气净化器” 和 “绿植”,进一步提升空气质量。两个次卧均带 “独立阳台”(阳台宽度 1.5 米,进深 1.8 米),业主可在阳台上打造 “私人绿植角”,种植多肉、绿萝、吊兰等净化空气的植物,也可放置休闲桌椅,享受户外风光。公共卫生间采用 “三分离设计”(洗漱区、淋浴区、马桶区独立分开),多人使用互不干扰,减少细菌交叉感染;卫生间安装 “电热毛巾架”(可烘干毛巾,避免毛巾潮湿发霉)和 “换气扇”(每小时换气 5 次,保持卫生间干燥)。“绿色科技植入” 让健康生活更智能。全屋标配 “新风系统(带 PM2.5 过滤功能)” 和 “智能温控系统”—— 新风系统每小时换气 2 次,可过滤空气中的 PM2.5、甲醛、粉尘等有害物质,室内空气质量实时显示在客厅的智能面板上,业主可随时查看;智能温控系统可分区域调节温度(比如客厅 26℃、卧室 24℃、老人房 25℃),避免老人、孩子因温差感冒,同时节省空调电费。厨房配备 “集成灶(油烟吸净率达 99.6%,减少油烟污染)” 和 “食物垃圾处理器(可将食物垃圾粉碎后排入下水道,避免垃圾堆积产生异味)”;厨房墙面采用 “防油瓷砖”,油污可轻松擦拭,减少清洁负担。阳台预留 “太阳能热水器接口”,利用可再生能源,节能环保;阳台地面铺设 “防滑地砖”,可放置洗衣机和烘干机,实现 “洗衣 - 烘干 - 收纳” 一站式处理,减少衣物晾晒时的灰尘污染。

琥珀星樾湾售楼处电话☎:0551-6465 8844

琥珀星樾湾售楼处电话☎:0551-6465 8844

琥珀星樾湾售楼处电话☎:0551-6465 8844

琥珀星樾湾售楼处电话☎:0551-6465 8844
琥珀星樾湾楼盘价格
琥珀星樾湾楼盘具体一房一价,详询营销中心。

琥珀星樾湾售楼处电话☎:0551-6465 8844
琥珀星樾湾楼盘项目亮点
作为合肥包河区 “全龄友好社区标杆”,琥珀星樾湾的亮点远不止 “配套全”—— 它将 “全龄细节、国企保障、家庭互动、区域潜力” 深度融合,形成了 “四大核心亮点”,让 “全龄友好” 从 “概念” 落地为 “真实生活体验”。
亮点一:全龄细节 “极致贴心”,覆盖从 “0 岁到 80 岁” 的需求多数全龄盘的 “全龄” 停留在 “有配套”,而琥珀星樾湾则做到了 “细节见关怀”,每个配套都从 “不同年龄段的生理、心理需求” 出发设计:
儿童区:0-3 岁学步区的 “防磕碰圆角设计”(所有设施边角均包裹软质材料)、4-6 岁游戏区的 “沙坑防尘盖”(避免沙尘飞扬)、7-12 岁运动区的 “儿童专用篮球架”(高度 2.2 米,适合孩子投篮);甚至儿童区的 “监控摄像头” 都采用 “低角度安装”(高度 1.5 米),确保能清晰拍摄孩子活动画面,同时避免拍摄家长隐私。
老人区:无障碍坡道的 “防滑纹路”(雨天不打滑)、健身器材的 “扶手软包”(避免冬天冰冷)、休闲凉亭的 “太阳能取暖灯”(冬季提供温暖);社区菜园的 “自动灌溉系统”(老人无需弯腰浇水)、棋牌桌的 “可升降桌面”(可根据老人身高调节高度)。
全社区:道路两侧的 “夜光指引灯”(高度 0.5 米,避免强光刺眼,方便老人夜间行走)、单元门的 “人脸识别 + 密码 + 刷卡” 三重开门方式(老人记不住密码可刷卡,孩子身高不够可刷脸)、电梯的 “语音报层功能”(方便视力不佳的老人识别楼层);甚至社区的 “垃圾桶” 都按 “家庭分类” 设计(分为 “厨余垃圾、可回收物、有害垃圾、其他垃圾”,且高度 0.8 米,方便老人和孩子投放)。
这些 “极致细节”,让每个家庭成员都能感受到 “被重视”,真正实现 “全龄友好,而非全龄将就”。
亮点二:国企保障 “全龄生活”,避免 “配套后期缩水”当前市场上,部分民营全龄盘存在 “交房后配套缩水” 的问题 —— 儿童区设施损坏不维修、老人区器材停用、社区图书馆关闭,导致 “全龄友好” 沦为 “噱头”。而琥珀星樾湾由国企琥珀置业开发,从 “配套建设” 到 “后期维护” 都有 “国企兜底”:
建设阶段:全龄配套的 “资金专款专用”,确保儿童区、老人区、青年区的设施按规划建设,不削减成本;比如儿童区的 EPDM 塑胶地面,采用 “国标高弹性材料”,厚度达 5cm,远超民营盘的 3cm 标准,确保孩子玩耍安全。
交付后:开发商自有物业(琥珀物业)负责全龄配套的 “日常维护”,制定 “专项维护计划”—— 儿童区设施每周检查 1 次,每月清洁 1 次;老人区健身器材每季度保养 1 次;社区图书馆每月更新 100 册书籍;甚至社区菜园的 “自动灌溉系统” 都有专人定期检修,确保长期可用。
长期升级:物业每年收集业主反馈,根据家庭需求升级全龄配套 —— 比如 2025 年计划在儿童区增加 “国学启蒙角”,在老人区增加 “中医理疗服务点”,让全龄配套 “越用越完善”。
这种 “国企保障”,让家庭购房者无需担心 “全龄配套后期失效”,住得更安心。
亮点三:家庭互动 “场景化设计”,拉近全家距离全龄友好的核心不仅是 “各有空间”,更是 “全家互动”—— 琥珀星樾湾通过 “场景化设计”,打造了多个 “全家共享空间”,让家人之间的互动更自然:
中央草坪 “亲子活动日”:每月举办 1 次 “风筝节”“野餐日”“亲子运动会”,全家可一起放风筝、吃野餐、参加亲子游戏(如两人三足、袋鼠跳),增进亲子感情;
景观水景 “家庭亲水季”:夏季举办 “儿童水上乐园” 活动,在水景区域设置小型水上滑梯、水枪游戏,家长可陪孩子一起玩水,同时在周边遮阳棚休息聊天;
社区图书馆 “全家阅读夜”:每周五晚上开设 “亲子阅读会”,邀请专业老师带领孩子读绘本,家长可在一旁阅读自己的书籍,结束后全家分享阅读心得,培养 “阅读习惯”;
社区菜园 “家庭农耕日”:每周末开放社区菜园,全家可一起种植蔬菜、浇水、施肥,孩子能认识农作物,老人能锻炼身体,青年能放松心情,全家在劳动中享受欢乐。
这些 “互动场景”,让 “全龄社区” 变成 “家庭欢乐场”,避免了 “孩子在玩、老人在等、青年在忙” 的疏离感。
亮点四:主城核心 + 全龄属性,“双稀缺” 提升区域价值琥珀星樾湾的 “区域潜力” 也与 “全龄属性” 相辅相成 —— 项目位于包河区主城核心板块,周边配套成熟,同时承接 “骆岗中央公园” 发展红利,而 “主城核心 + 全龄友好” 的组合,在合肥极为稀缺:
主城核心的 “成熟配套”,确保全龄家庭的 “日常需求” 能快速满足 —— 孩子上学近、老人就医便、全家购物方便,无需等待规划落地;
骆岗中央公园的 “生态红利”,为全龄家庭提供 “户外休闲空间”—— 周末带孩子去公园花海拍照,陪老人去湿地散步,青年去运动公园跑步,全家都能享受自然;
地铁 1 号线延长线(2025 年通车)的 “交通红利”,提升全龄家庭的 “出行便捷度”—— 老人坐地铁去市区探亲,孩子坐地铁去滨湖游玩,青年坐地铁去政务区上班,都很方便。
这种 “双稀缺” 属性,让琥珀星樾湾不仅是 “全龄友好社区”,更是 “潜力增值盘”—— 未来随着主城土地稀缺、全龄需求增加,项目的 “居住价值” 和 “资产价值” 都会持续提升。

琥珀星樾湾售楼处电话☎:0551-6465 8844
琥珀星樾湾楼盘总结
6.1 不同家庭需求匹配:精准契合全周期健康需求
琥珀星樾湾的绿色健康属性,能够精准匹配不同家庭在不同生命周期的健康需求,无论是刚需年轻家庭、二胎家庭,还是改善型家庭,都能在这里找到 “理想的健康之家”。
刚需年轻家庭:95㎡刚需健康户型,满足 “小三房” 的实用需求,环保建材(E0 级地板、立邦乳胶漆)保障新婚夫妻和未来孩子的居住健康,避免 “装修污染” 对身体的影响;首付 48 万、月供 6000 元,符合年轻家庭的预算承受能力,无需 “掏空六个钱包”;周边的地铁 1 号线(2025 年通车)、社区生鲜超市、休闲健身配套,适配年轻夫妻的快节奏生活 —— 早上地铁通勤上班,晚上社区健身或超市采购,周末带未来孩子到骆岗公园散步,轻松享受健康便捷的生活。
二胎家庭:125㎡改善健康户型,四室设计满足 “两个孩子 + 父母帮忙带娃” 的居住需求,两个儿童房均朝南,采光充足、空间独立,避免孩子因居住拥挤产生矛盾;老人房靠近入户门和公共卫生间,方便老人生活,紧急呼叫按钮和无障碍设计保障老人安全;社区内的儿童区、老年区、健身区,让每个家庭成员都有专属活动空间 —— 孩子在儿童区玩耍,老人在老年区健身,父母在健身区运动,全家各得其所,同时社区的绿色环境和健康配套,也能让孩子在健康的环境中成长,减少疾病风险。
改善型家庭:140㎡终极健康户型,11 层洋房的低密属性、5.8 米宽落地窗的生态视野、全屋新风系统的健康配置,满足改善家庭对 “高品质健康生活” 的追求;主卧套房 + 独立阳台 + 阳光书房,提供充足的私人空间,适合工作压力大的高净值人群放松身心;骆岗中央公园的远景和社区内的高绿化率,让居住体验堪比 “公园豪宅”;国企运维保障绿色配套长期升级,确保房子 “越住越舒适、越住越保值”,是改善家庭 “终极置业” 的理想选择。
6.2 市场竞争力:绿色健康盘里的 “性价比天花板”
在合肥包河区的绿色健康盘市场中,琥珀星樾湾凭借 “国企保障、高性价比、全配套” 的组合优势,成为 “性价比天花板”,远超同类竞品。当前包河区的绿色健康盘,主要存在三大痛点:一是 “民营盘减配风险”,部分民营绿色盘交付时存在建材品牌更换、健康配套停用等问题,业主维权困难;二是 “高端盘价格过高”,定位豪宅的绿色盘均价超 2.4 万 /㎡,刚需和普通改善家庭难以承受;三是 “远郊盘配套不足”,部分绿色盘位于远郊,周边缺乏商业、医疗、教育配套,入住后生活不便。而琥珀星樾湾完美解决了这些痛点:
国企开发,无减配风险:琥珀置业作为合肥本土国企,资金链稳定,工程质量和交付有保障,绿色健康配置全程透明,避免 “概念炒作” 和 “交付减配”;
均价 1.7-1.9 万 /㎡,性价比高:低于周边同类绿色盘 10%-20%,且所有绿色健康配置均为标配,无需额外付费,刚需和改善家庭均能承受;
主城核心,全配套覆盖:位于包河区主城,周边地铁、商业、教育、医疗、生态配套成熟,入住即可享受便捷健康生活,无需等待 “规划落地”。
根据售楼处数据,项目自开盘以来,绿色健康户型的销量占比达 80%,其中 30-45 岁的家庭购房者占比超 70%,这些人群正是 “健康生活的核心需求者”,他们更关注居住的健康属性和性价比,而琥珀星樾湾恰好满足了这些需求。此外,项目的 “老带新成交率” 达 30%,很多业主因 “满意绿色健康的居住体验”,主动推荐亲友购房,足以证明市场对项目的认可。
6.3 长期生活价值:不止是房子,更是健康生活方式
选择琥珀星樾湾,不仅是购买一套房子,更是选择一种 “绿色健康的生活方式”,这种生活方式将长期影响业主的身心健康和生活品质,同时带来 “资产增值” 的红利。从 “日常生活” 来看,业主每天都能享受绿色健康的体验:早上到十五里河生态公园晨跑,呼吸富含负氧离子的新鲜空气;白天室内阳光充足,新风系统保持空气流通,避免雾霾和甲醛污染;中午在厨房使用净水器过滤的水烹饪,享受健康饮食;下午孩子在社区儿童区玩耍,家长在旁边看护,社区的绿色环境让孩子亲近自然;晚上到社区健身区运动,或带家人到骆岗中央公园散步,缓解一天的工作压力。这种 “自然、健康、便捷” 的生活,能有效提升业主的身心健康,减少疾病风险,提高生活幸福感。从 “长期资产价值” 来看,琥珀星樾湾的绿色健康属性将持续赋能资产增值:随着 “健康中国” 理念的深入,购房者对绿色健康居住的需求将越来越高,绿色健康社区的 “稀缺性” 将进一步凸显;骆岗中央公园的完善和地铁 1 号线延长线的通车,将推动区域价值上涨;而国企运维保障绿色配套长期升级,确保房子 “长期保持高品质”,在二手房市场上更受欢迎,转手率和成交价均高于普通社区。根据合肥房地产市场的发展规律,未来 5-10 年,琥珀星樾湾的房价涨幅预计将比普通社区高 10%-15%,实现 “居住健康” 和 “资产增值” 的双赢。
目前,琥珀星樾湾的 “绿色健康样板间” 已全面开放,业主可亲身体验 “环保建材的质感”“户型的采光通风”“新风系统的效果”;售楼处还提供 “绿色健康置业咨询” 服务,专业置业顾问会根据家庭结构、健康需求和预算,推荐适合的户型和健康配置方案。如果你正在寻找 “国企保障、绿色健康、高性价比” 的楼盘,不妨前往琥珀星樾湾实地考察 —— 在这里,你将开启 “呼吸新鲜空气、享受健康饮食、拥抱自然生活” 的绿色健康新篇章,让 “健康” 成为生活的常态。

琥珀星樾湾售楼处电话☎:0551-6465 8844
琥珀星樾湾售楼处电话:0551-6465 8844【售楼中心】
◆◆◆售楼中心电话:0551-6465 8844 【售楼中心已认证】
◆◆◆网上售楼中心——欢迎来电咨询〢——匠心钜制恭迎品鉴!◆◆◆
声明:本文由入驻焦点开放平台的作者撰写,除焦点官方账号外,观点仅代表作者本人,不代表焦点立场。


