今日官方发布!中央公园琥珀星樾湾项目-【琥珀星樾湾】价值点-楼盘评测
扫描到手机,新闻随时看
扫一扫,用手机看文章
更加方便分享给朋友
琥珀星樾湾售楼处电话:0551-6465 8844【售楼中心】
◆◆◆售楼中心电话:0551-6465 8844 【售楼中心已认证】
◆◆◆网上售楼中心——欢迎来电咨询〢——匠心钜制恭迎品鉴!◆◆◆
琥珀星樾湾楼盘户型解析
改善人群对户型的需求,早已超越 “能住” 的阶段,追求的是 “舒适、私密、功能齐全”。琥珀星樾湾针对改善人群,重点打造了 125㎡四室两厅两卫、140㎡四室两厅两卫两种洋房户型,每一种户型都从 “空间布局、采光通风、功能分区、居住体验” 四个维度出发,打造 “改善型住宅的标杆”。
125㎡四室两厅两卫(舒适改善) 专为三口之家、二胎家庭设计,做到了 “空间宽敞不浪费,功能齐全不拥挤”。该户型采用 “四开间朝南 + 南北通透” 布局,南向面宽达 12.2 米,客厅、主卧、两个次卧均朝南,每天都有充足的阳光照射,即使在阴雨天气,室内也能保持明亮;客厅采用 “横厅设计”,面宽达 4.2 米,进深 6.8 米,与餐厅相连形成 “餐客一体” 空间,总面积约 30㎡,无论是家庭聚会还是朋友宴请,都能轻松容纳;客厅连接 4.2 米宽的观景阳台,阳台进深 1.8 米,可分为 “休闲区” 和 “晾晒区”,休闲区摆放藤椅、茶几,晾晒区安装隐形晾衣架,既不影响美观,又能满足实用需求。
主卧采用 “套房设计”,面积约 18㎡,配备独立卫生间和步入式衣帽间。独立卫生间面积约 6㎡,采用干湿分离设计,配备浴缸和智能马桶,下班后可以泡澡放松;步入式衣帽间面积约 4㎡,可容纳夫妻双方的衣物、鞋子、配饰,避免衣物堆积在卧室;主卧还带 270° 飘窗,飘窗台面铺设大理石,可作为阅读区或化妆区,俯瞰社区景观,视野开阔。
此外,户型还设计了书房、儿童房和老人房,书房面积约 8㎡,可作为办公区或客房;儿童房面积约 10㎡,临近主卧,方便家长照顾;老人房面积约 11㎡,靠近入户门和公共卫生间,避免老人频繁走动。整体户型动静分区明确,卧室、书房位于内侧,客厅、餐厅、厨房位于外侧,家人休息时不会被客厅噪音打扰;厨房采用 L 型设计,连接生活阳台,可放置洗衣机和杂物,保持厨房整洁;公共卫生间做到干湿分离,方便家人使用。
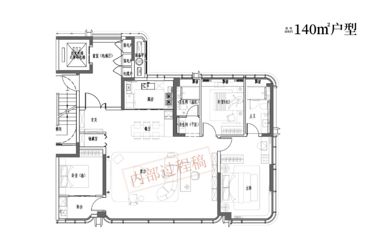
140㎡四室两厅两卫(终极改善) 则是琥珀星樾湾的 “明星户型”,专为追求 “高品质生活” 的高净值家庭设计,在 125㎡户型的基础上,进一步提升了空间尺度和居住舒适度。该户型采用 “五开间朝南” 布局,南向面宽达 14.5 米,客厅、主卧、两个次卧、书房均朝南,采光效果堪称 “极致”;客厅面宽达 5.8 米,进深 7.2 米,餐客一体空间总面积约 42㎡,搭配大落地窗,视野开阔,站在客厅就能看到社区中央景观;阳台长度达 7.8 米,贯通客厅和书房,进深 2 米,可打造 “空中花园”,摆放绿植、秋千、茶桌,成为家人休闲的核心区域。
主卧套房面积约 25㎡,配备独立卫生间、步入式衣帽间和梳妆台。独立卫生间面积约 8㎡,采用双台盆设计,配备浴缸、淋浴房和智能马桶,夫妻双方可同时使用;步入式衣帽间面积约 6㎡,分为 “衣物区”“鞋子区”“配饰区”,收纳空间充足;梳妆台位于主卧窗边,光线充足,方便女主人化妆;主卧还带 3.2 米宽的飘窗,飘窗台面延伸至墙面,可作为休闲区,摆放软垫、靠枕,享受午后阳光。
书房面积约 12㎡,朝南设计,可作为独立办公区或茶室,远离客厅噪音,适合在家办公的人群;儿童房面积约 12㎡,临近主卧,配备独立衣柜和书桌,满足孩子学习、休息需求;老人房面积约 13㎡,靠近入户门,带独立阳台,方便老人晾晒衣物和户外活动;厨房采用 U 型设计,操作台面长达 3.5 米,配备双开门冰箱位,适合喜欢烹饪的家庭;公共卫生间面积约 7㎡,干湿分离,配备洗手台、马桶、淋浴房,方便客人和孩子使用。
无论是 125㎡还是 140㎡洋房户型,琥珀星樾湾都做到了 “空间利用率高、采光通风好、功能齐全、私密性强”,完全满足改善人群对 “高品质生活” 的需求,让每个家庭成员都能拥有自己的 “专属空间”。

琥珀星樾湾售楼处电话☎:0551-6465 8844

琥珀星樾湾售楼处电话☎:0551-6465 8844

琥珀星樾湾售楼处电话☎:0551-6465 8844

琥珀星樾湾售楼处电话☎:0551-6465 8844
琥珀星樾湾楼盘周边配套
对于购房者而言,“配套” 直接决定了未来的生活便捷度,而琥珀星樾湾在这一点上堪称 “满分”,交通、商业、教育、医疗、生态五大配套全方位覆盖,无需等待 “规划落地”,入住即可享受成熟生活。
交通配套方面,项目属于 “地铁 + 主干道” 双交通枢纽。距离地铁 1 号线延长线(规划中,预计 2025 年通车)花园大道站仅 800 米,步行约 10 分钟,未来可直达合肥南站、滨湖新区、淮河路步行街,轻松实现 “地铁通勤”;地面交通则依托包河大道、繁华大道两条城市主干道 —— 从项目自驾出发,5 分钟可上包河大道高架,15 分钟直达合肥南站,20 分钟抵达滨湖新区,30 分钟可到蜀山产业园,无论是日常通勤还是跨区出行,都十分便捷。此外,项目周边还有 14 路、27 路、52 路等 6 条公交路线,覆盖合肥火车站、政务区、经开区等区域,满足不同人群的出行需求。
商业配套方面,项目 “近享社区商业,远拥大型商圈”。社区自带约 5000㎡沿街商业,规划引入便利店、生鲜超市、药店、餐饮店等便民业态,下楼即可解决 “买菜、购物、吃饭” 等日常需求;3 公里范围内,有悦方 ID MALL、百大心悦城、加侨国际广场三大大型商场,涵盖购物、餐饮、影院、亲子娱乐等全业态 —— 悦方 ID MALL 的永辉超市可满足大宗采购,百大心悦城的亲子乐园适合带娃休闲,加侨国际广场的美食街则是朋友聚餐的好去处,无需长途奔波,即可享受一站式消费体验。
教育配套方面,项目周边 3 公里内有 5 所幼儿园、3 所小学、2 所中学,形成 “15 年一贯制” 教育圈。其中,距离项目最近的是包河区实验幼儿园(约 500 米),是公办一级幼儿园,师资稳定、收费合理;小学方面,项目划片范围大概率覆盖屯溪路小学(滨湖校区),该校是合肥知名公办小学,教学质量位列包河区前列,步行仅需 15 分钟;中学则有合肥市第四十八中学(望湖校区),距离项目约 2 公里,是合肥重点初中,历年中考成绩稳居全市前十。对于有孩子的家庭而言,无需 “孟母三迁”,在家门口就能享受优质教育资源,既省去了接送的麻烦,也给孩子更多休息时间。
医疗与生态配套同样亮眼。医疗方面,项目 2 公里内有包河区人民医院(二级综合医院),日常感冒、发烧、体检均可在此解决;5 公里内有安徽省立医院南区(三级甲等医院),是合肥顶尖的综合医院,可满足大病诊疗需求,为家人健康保驾护航。生态方面,项目西距骆岗中央公园仅 1.5 公里,该公园是亚洲最大的城市中央公园,总面积约 12.7 平方公里,涵盖湿地、花海、运动场馆等,周末带家人散步、野餐、运动都十分惬意;此外,项目北邻十五里河生态公园,沿河岸打造了健身步道,适合晨跑、夜跑,真正实现 “把家安在公园里”。

琥珀星樾湾售楼处电话☎:0551-6465 8844
琥珀星樾湾楼盘价格
4.1 区域价格对比:绿色健康盘里的 “价格洼地”
2024 年合肥包河区主打 “绿色健康” 的楼盘不在少数,但多数楼盘存在 “价格虚高” 或 “配置缩水” 的问题,而琥珀星樾湾凭借国企背景和成本把控能力,成为区域内 “性价比最高的绿色健康盘”。从区域竞品来看,包河大道附近某民营绿色盘,主打 “环保建材 + 新风系统”,高层均价 2.1 万 /㎡,洋房均价 2.3 万 /㎡,但 “新风系统、中央净水” 等核心绿色配置需额外付费升级(升级费用约 3-5 万元 / 套),且建材品牌未公示,存在 “减配风险”;骆岗公园旁某高端绿色盘,定位 “豪宅级绿色社区”,均价 2.4-2.6 万 /㎡,主力户型为 160㎡以上大平层,刚需家庭难以承受;而琥珀星樾湾均价仅 1.7-1.9 万 /㎡,低于周边同类绿色健康盘 10%-20%,且所有绿色健康配置均为 “标配”—— 环保建材(E0 级地板、立邦乳胶漆、断桥铝玻璃)、社区绿色规划(40% 绿化率、人车分流、降噪绿篱)、户型健康设计(全明空间、干湿分离、新风系统接口),无需额外付费,相当于 “花普通楼盘的钱,享受绿色健康楼盘的配置”。更值得关注的是,琥珀星樾湾的价格不仅低于 “绿色健康盘”,还低于部分 “普通非绿色盘”。比如包河区望湖城附近某普通民营盘,无环保建材和绿色配套,高层均价却达 1.8-1.9 万 /㎡,与琥珀星樾湾的高层均价持平;而琥珀星樾湾作为 “国企绿色盘”,在品质和健康属性上远超该普通盘,性价比优势一目了然。
4.2 具体户型价格:全周期覆盖,刚需改善均适配
琥珀星樾湾的户型价格充分考虑不同家庭的预算需求,从刚需到改善均有适配选择,且每个户型的 “健康价值” 都远超价格本身。
95㎡刚需健康户型:单价 1.7-1.8 万 /㎡,总价约 160-171 万,首付最低 48 万(按 30% 首付计算),月供约 6000 元(按 LPR+20BP,贷款 30 年计算)。这个价格对于合肥年轻刚需家庭而言,压力较小 —— 以夫妻双方月薪合计 1.5 万元为例,扣除月供 6000 元,剩余 9000 元可覆盖生活费、物业费、交通费等,无需 “降低生活品质”。对比周边同面积绿色盘(如包河大道某绿色盘,95㎡总价约 180-190 万),一套房可省 20-19 万,相当于普通家庭 1-2 年的生活费;且该户型的环保建材和健康设计,是同价位普通盘 “减配” 的重点,比如同价位普通盘多采用 E1 级地板(甲醛释放量≤0.124mg/m³),而琥珀星樾湾采用 E0 级地板,健康属性更优。
125㎡改善健康户型:单价 1.8-1.9 万 /㎡,总价约 225-237.5 万,首付最低 67.5 万,月供约 8500 元。该户型为四室设计,满足 “二胎家庭” 或 “三代同堂” 需求,对比周边同类型绿色改善盘(如骆岗公园旁某绿色盘,125㎡总价约 250-260 万),可省 25-22.5 万;且洋房得房率达 85%,比周边绿色盘高层得房率(约 75%)高 10 个百分点,以 125㎡户型为例,实际使用面积约 106㎡,比同面积高层多 12.5㎡,相当于 “额外赠送一间书房”,空间利用率更高。
140㎡终极健康户型:单价 1.85-1.95 万 /㎡,总价约 259-273 万,首付最低 77.7 万,月供约 9800 元。作为 11 层洋房产品,该户型对比周边同面积洋房绿色盘(如政务区某绿色洋房盘,140㎡总价约 290-300 万),可省 31-27 万;且洋房的 “低密、安静、高采光” 属性,是绿色健康生活的 “核心加分项”—— 社区内洋房区的居住人口密度仅为高层区的 1/3.噪音污染少,绿化覆盖率更高(洋房区绿化率达 45%),居住体验远超高层产品。
4.3 绿色健康专属优惠:降低购房门槛,助力健康安家
为让更多家庭享受 “绿色健康生活”,琥珀星樾湾针对 “关注健康的购房者” 推出专属优惠政策,进一步降低购房成本,让 “健康安家” 不再是 “高门槛”。
绿色安家礼包:即日起购房,可免费升级 “全屋健康套餐”,包含品牌空气净化器 1 台(价值 3000 元,可过滤 PM2.5、甲醛)、智能净水器 1 台(价值 2000 元,过滤水中重金属和杂质)、绿植大礼包 1 份(包含绿萝、吊兰、多肉等净化空气植物),市场价值约 8000 元,无需额外付费;对于选择 140㎡洋房户型的业主,还可免费升级 “全屋新风系统”(价值 1.5 万元),进一步提升室内空气质量。
健康人群补贴:教师、医生、护士、健身教练等 “健康相关职业” 从业者,凭工作证明可额外享 0.8% 房款优惠;携带 60 岁以上老人或 3 岁以下儿童购房的家庭,凭户口本可享 0.5% 房款优惠(两项优惠可叠加)。比如某医生家庭购买 125㎡户型,总价 230 万,可享受 0.8%+0.5%=1.3% 的优惠,合计节省 2.99 万,相当于 1 年的物业费和水电费。
付款优惠:全款购房享 97 折优惠,商业贷款享 98 折优惠,公积金贷款享 98.5 折优惠,支持 “组合贷” 和 “公积金异地贷款”(如外地工作的合肥人,可使用异地公积金贷款)。以 140㎡户型总价 270 万为例,公积金贷款享 98.5 折后,总价约 265.95 万,节省 4.05 万;若采用 “公积金 + 商业组合贷”,还可进一步降低月供压力。
绿色特价房:每月推出 8 套 “健康特价房”,涵盖 95㎡、125㎡户型,均为中间楼层(采光好、噪音小,比如 9-12 层),单价可低至 1.65 万 /㎡。以 95㎡特价房为例,单价 1.65 万 /㎡,总价约 156.75 万,首付仅 47.025 万,月供约 5800 元,比普通房源节省 3.25 万,适合预算有限但追求健康生活的刚需家庭。
4.4 长期价值:绿色属性赋能资产保值增值
从 “长期居住成本” 和 “资产价值” 来看,琥珀星樾湾的绿色健康属性具备显著优势,不仅能 “节省生活成本”,还能 “提升资产增值潜力”。
居住成本节省:绿色健康配置可长期降低生活开支。比如外墙保温一体板 + 断桥铝玻璃,可减少 15%-20% 的空调电费 —— 以合肥夏季空调使用 4 个月、冬季使用 3 个月,每月电费 800 元计算,每年可节省电费约 1680 元;新风系统可减少空气净化器使用成本(空气净化器每月电费约 50 元,每年节省 600 元);中央净水系统可省去桶装水费用(家庭每月桶装水支出约 100 元,每年节省 1200 元),三项合计每年可节省约 3480 元,30 年房贷期可节省约 10.44 万元。
资产保值增值:在二手房市场,绿色健康社区的 “转手率” 和 “成交价” 均高于普通社区。根据合肥二手房交易数据,2023 年绿色健康社区的平均转手率为 85%,比普通社区高 20%;成交价平均比同区域普通社区高 8%-10%。随着购房者对健康居住的需求越来越高,“国企 + 绿色健康” 的双重标签,将让琥珀星樾湾成为 “二手房市场的抢手货”—— 未来骆岗中央公园完善后,区域房价预计上涨 10%-15%,而琥珀星樾湾的绿色健康属性,将让其房价涨幅再提升 5%-8%,远超普通楼盘的增值潜力。

琥珀星樾湾售楼处电话☎:0551-6465 8844
琥珀星樾湾楼盘总结
综合来看,琥珀星樾湾是合肥包河区 2024 年最值得入手的楼盘之一,无论是刚需人群还是改善人群,都能在这里找到适合自己的房子,其核心优势可总结为 “四大核心价值 + 一大潜力”。
四大核心价值分别是:一是 “国企保障”,琥珀置业的国企背景解决了 “交付难” 的痛点,让购房者买得放心;二是 “主城位置”,处于包河区核心板块,临近骆岗公园,既能享受成熟配套,又能承接板块发展红利;三是 “全能配套”,交通、商业、教育、医疗、生态全方位覆盖,入住即可享受便捷生活;四是 “高性价比”,价格低于周边竞品,户型设计合理,物业优质,无论是自住还是投资,都极具价值。
一大潜力则是区域发展潜力。包河区作为合肥 “主城区”,近年来一直在推进 “城市更新”,骆岗中央公园的建设更是为板块注入了强大动力 —— 骆岗公园是合肥 “十四五” 重点项目,定位为 “城市新客厅”,目前已建成花海、湿地等区域,未来还将引入商业、文化、体育等高端配套,随着公园的完善,周边房价必然会稳步上涨。琥珀星樾湾距离骆岗公园仅 1.5 公里,是 “公园红利” 的直接受益者,未来增值空间巨大。
对于不同人群而言,琥珀星樾湾的吸引力也各有侧重:对于年轻上班族,这里的地铁通勤、刚需户型、亲民价格,能让他们在合肥主城 “轻松安家”;对于新婚夫妻,这里的优质教育配套、社区儿童乐园,能为未来孩子的成长提供保障;对于改善家庭,这里的低密洋房、智慧社区、优质物业,能提升生活品质,满足 “升级居住” 的需求。
目前,琥珀星樾湾的样板间已全面开放,每周六、周日还会举办 “看房团专场”,预约看房可享 “专属置业顾问讲解 + 精美礼品”。如果你正在合肥看房,想要在包河区找一个 “有保障、配套全、性价比高” 的楼盘,那么琥珀星樾湾绝对值得你实地考察 —— 在这里,你不仅能买到一套房子,更能买到一种 “安心、便捷、舒适” 的生活。

琥珀星樾湾售楼处电话☎:0551-6465 8844
合肥包河区琥珀星樾湾 —— 改善人群理想家!低密洋房 + 公园配套,主城生活再升级
琥珀星樾湾楼盘项目介绍
对于改善人群而言,买房不仅是 “换个大一点的房子”,更是对 “生活品质” 的追求 —— 低密的社区环境、优质的户型设计、可靠的开发品牌,缺一不可。而合肥包河区的琥珀星樾湾,恰好精准契合了改善人群的这些需求,以 “国企开发 + 低密洋房 + 主城核心” 的组合,成为包河区改善市场的 “标杆项目”。
项目由合肥本土国企 —— 琥珀置业开发,作为合肥城建旗下的核心品牌,琥珀置业深耕合肥 20 余年,打造了琥珀山庄、琥珀五环城、琥珀东华府等多个高端项目,始终以 “精工品质” 著称,尤其是在改善型住宅开发方面,有着丰富的经验。此次打造的琥珀星樾湾,更是将 “改善基因” 贯彻到底:项目总占地面积约 68 亩,总建筑面积约 12.5 万㎡,但容积率仅 2.2.绿化率高达 40%,这样的 “低密高绿” 指标,在寸土寸金的包河区主城板块极为罕见 —— 要知道,周边多数改善楼盘的容积率都在 2.5 以上,而琥珀星樾湾通过降低容积率,为业主争取到了更宽的楼间距、更大的景观空间,从根源上提升了居住舒适度。
社区规划上,琥珀星樾湾采用 “高层 + 洋房” 的高低配布局,共 10 栋住宅,其中 4 栋为 11 层洋房(占比 40%),6 栋为 18-22 层高层,总户数约 890 户,洋房户型面积为 125-140㎡,专为改善家庭设计。洋房产品采用 “一梯两户” 设计,相比高层的 “两梯四户”,不仅等待电梯的时间更短,而且居住人口更少,社区更安静,私密性更强;同时,洋房的得房率高达 85%,比高层高出 7 个百分点,以 140㎡洋房为例,实际使用面积比同面积高层多近 10㎡,相当于多了一个书房,空间利用率更高。
建筑品质上,琥珀星樾湾更是 “不计成本”:洋房外立面采用 “干挂石材 + 真石漆” 组合,不仅美观大气,而且耐老化、抗腐蚀,多年后依然能保持崭新的外观;高层外立面采用 “保温一体板”,隔音隔热效果优于普通涂料,冬季室内温度比周边小区高 3-5℃,夏季更凉爽,节省空调费用;社区公共区域如入户大堂、电梯间、地下车库均采用 “精装标准”,大堂吊顶采用石膏线装饰,地面铺设大理石,电梯间墙面贴瓷砖,地下车库采用环氧地坪,从细节处彰显改善盘的品质。

琥珀星樾湾售楼处电话☎:0551-6465 8844
琥珀星樾湾楼盘项目亮点
琥珀星樾湾作为包河区改善市场的 “标杆项目”,之所以能吸引众多改善人群关注,除了 “低密洋房、优质配套” 外,还有四大独特亮点,精准击中改善人群的 “核心需求”。
亮点一:低密洋房社区,居住舒适度拉满。改善人群买房,最看重的就是 “居住舒适度”,而琥珀星樾湾的 “低密洋房” 恰好满足了这一点。项目容积率仅 2.2.绿化率 40%,洋房产品占比 40%,是包河区主城板块少有的 “以洋房为主的社区”。洋房总高 11 层,一梯两户,居住人口密度低,社区更安静;最大楼间距达 55 米,即使是低楼层也能保证充足采光,避免 “采光不足” 的问题;社区内部景观以 “洋房区” 为核心,打造了 “樱花巷道”“中央草坪”“水景花园” 等高端景观,洋房业主推窗就能看到美景,下楼就能享受 “公园般的环境”。相比周边 “高层扎堆” 的楼盘,琥珀星樾湾的洋房社区能让改善人群真正享受 “慢生活”,远离城市的拥挤与喧嚣。
亮点二:高端智慧社区,科技赋能品质生活。改善人群对 “生活便捷度” 的要求更高,琥珀星樾湾打造的 “高端智慧社区”,让科技融入日常生活,提升居住体验。社区入口采用 “双目人脸识别系统”,识别速度快、准确率高,无需带卡,刷脸即可进入,同时支持 “远程授权”,朋友来访时可通过手机 APP 授权进入,无需下楼迎接;社区内部安装了 “智能安防系统”,包括高空抛物监控(可精准定位抛物楼层)、24 小时智能巡逻机器人、电子围栏等,全方位保障业主安全;地下车库配备 “智能寻车 + 反向寻车系统”,通过手机 APP 即可查询车辆位置,离开时可导航到电梯口,避免 “找车难” 的问题;此外,社区还配备了 “全屋智能控制系统”,业主可通过手机 APP 控制家中的灯光、空调、窗帘、热水器等设备,实现 “远程控制”,如下班前提前打开空调,回家就能享受舒适温度。
亮点三:专属洋房配套,彰显改善品质。为了匹配洋房业主的 “高品质生活需求”,琥珀星樾湾打造了一系列 “专属配套”,区别于普通高层社区。社区内为洋房业主规划了 “专属会所”,面积约 800㎡,配备健身房、瑜伽室、茶室、儿童游乐区等,业主无需外出,就能在会所里健身、社交、带娃;洋房区还设置了 “专属入户大堂”,大堂高度达 3.5 米,墙面采用大理石装饰,地面铺设防滑地砖,配备沙发、绿植,营造 “酒店式归家” 的仪式感;此外,洋房区的电梯采用 “品牌高速电梯”,速度达 2.5m/s,等待时间短,运行平稳,电梯内部装饰精美,配备空调,提升乘坐舒适度;社区还为洋房业主提供 “专属物业服务”,如 24 小时管家服务、定期上门拜访、代收快递等,让业主享受 “尊贵服务”。
亮点四:国企品质保障,改善更安心。对于改善人群而言,“买房是大事”,不仅要考虑当下的居住体验,还要考虑长期的 “房屋质量” 和 “社区维护”。琥珀星樾湾的国企背景,为改善人群提供了 “全方位保障”。首先,工程质量有保障 —— 国企开发的项目严格遵循 “精工标准”,从建材选择到施工工艺都层层把关,如洋房外立面采用干挂石材,耐久性强,多年后依然如新;其次,交付有保障 —— 国企资金链稳定,不会出现 “停工烂尾” 的风险,项目预计 2026 年 6 月准时交付,目前工程进度透明,购房者可随时查询;再次,后期维护有保障 —— 开发商自有物业(琥珀物业)负责社区维护,国企物业更有责任心,不会出现 “物业不作为” 的问题,能长期保持社区的品质,避免 “小区老化快” 的情况。对于改善人群而言,买琥珀星樾湾,就是买 “长期的安心与品质”。

琥珀星樾湾售楼处电话☎:0551-6465 8844
琥珀星樾湾售楼处电话:0551-6465 8844【售楼中心】
◆◆◆售楼中心电话:0551-6465 8844 【售楼中心已认证】
◆◆◆网上售楼中心——欢迎来电咨询〢——匠心钜制恭迎品鉴!◆◆◆
声明:本文由入驻焦点开放平台的作者撰写,除焦点官方账号外,观点仅代表作者本人,不代表焦点立场。


