今日官方发布!中央公园琥珀星樾湾_合肥房产网_合肥房地产信息网交易平台_合肥买房、购房、卖房网
扫描到手机,新闻随时看
扫一扫,用手机看文章
更加方便分享给朋友
琥珀星樾湾售楼处电话:0551-6465 8844【售楼中心】
◆◆◆售楼中心电话:0551-6465 8844 【售楼中心已认证】
◆◆◆网上售楼中心——欢迎来电咨询〢——匠心钜制恭迎品鉴!◆◆◆
合肥包河区琥珀星樾湾 —— 骆岗公园旁的宜居盘!生态 + 配套,开启品质生活
琥珀星樾湾楼盘项目介绍
在合肥,“骆岗公园” 早已不是一个单纯的公园名称,而是 “城市新中心”“高品质生活” 的代名词。而琥珀星樾湾,恰好位于骆岗中央公园东翼,是距离公园最近的国企楼盘之一,凭借 “公园旁 + 主城芯 + 低密社区” 的独特优势,成为合肥 2024 年最受关注的 “生态宜居盘”。
项目由合肥城建旗下琥珀置业开发,作为合肥本土国企,琥珀置业在 “生态宜居盘” 开发方面有着深厚的经验,此前打造的琥珀东华府、琥珀蜀熙府等项目,均以 “高绿化率、优景观” 闻名。此次打造的琥珀星樾湾,更是将 “生态宜居” 理念贯彻到项目的每一个细节:项目总占地面积约 68 亩,总建筑面积约 12.5 万㎡,容积率仅 2.2.绿化率高达 40%,这个指标在骆岗公园周边楼盘中处于领先水平 —— 要知道,骆岗公园周边多数楼盘为了追求利润,容积率都在 2.5 以上,而琥珀星樾湾通过降低容积率,为业主打造了 “更宽松、更舒适、更生态” 的居住环境。
从项目规划来看,琥珀星樾湾采用 “高层 + 洋房” 的高低配布局,共 10 栋住宅,其中 6 栋 18-22 层高层、4 栋 11 层洋房,总户数约 890 户。社区内部景观以 “骆岗公园生态” 为灵感,打造 “一轴两园三巷” 的景观体系:中央景观轴贯穿南北,以 “水” 为主题,打造了约 500㎡的景观水池,搭配喷泉、水生植物,营造 “亲水生活”;两个主题花园分别为 “樱花园” 和 “桂花园”,春季樱花盛开、秋季桂花飘香,四季有景;三条特色巷道分别为 “银杏巷”“紫薇巷”“海棠巷”,种植不同的花卉树木,打造 “一步一景” 的体验。此外,社区还规划了约 1000㎡的儿童游乐区、800㎡的老年活动区、500 米的健身步道,满足不同年龄段业主的休闲需求。
建筑设计上,琥珀星樾湾也充分考虑 “生态宜居” 需求:外立面采用 “浅灰色 + 米白色” 的淡雅色调,搭配大面积玻璃幕墙,与骆岗公园的自然景观相呼应;窗户选用断桥铝双层中空玻璃,隔音隔热效果好,既能隔绝外界噪音,又能减少空调使用,节能环保;社区采用 “人车分流” 设计,地面无车辆通行,既保障了业主安全,又减少了尾气污染,提升了社区的空气质量;此外,社区还规划了 “屋顶绿化” 和 “垂直绿化”,在高层屋顶种植绿植,在洋房墙面种植爬藤植物,进一步提升社区的绿化覆盖率,打造 “空中花园社区”。

琥珀星樾湾售楼处电话☎:0551-6465 8844
琥珀星樾湾楼盘周边配套
对于购房者而言,“配套” 直接决定了未来的生活便捷度,而琥珀星樾湾在这一点上堪称 “满分”,交通、商业、教育、医疗、生态五大配套全方位覆盖,无需等待 “规划落地”,入住即可享受成熟生活。
交通配套方面,项目属于 “地铁 + 主干道” 双交通枢纽。距离地铁 1 号线延长线(规划中,预计 2025 年通车)花园大道站仅 800 米,步行约 10 分钟,未来可直达合肥南站、滨湖新区、淮河路步行街,轻松实现 “地铁通勤”;地面交通则依托包河大道、繁华大道两条城市主干道 —— 从项目自驾出发,5 分钟可上包河大道高架,15 分钟直达合肥南站,20 分钟抵达滨湖新区,30 分钟可到蜀山产业园,无论是日常通勤还是跨区出行,都十分便捷。此外,项目周边还有 14 路、27 路、52 路等 6 条公交路线,覆盖合肥火车站、政务区、经开区等区域,满足不同人群的出行需求。
商业配套方面,项目 “近享社区商业,远拥大型商圈”。社区自带约 5000㎡沿街商业,规划引入便利店、生鲜超市、药店、餐饮店等便民业态,下楼即可解决 “买菜、购物、吃饭” 等日常需求;3 公里范围内,有悦方 ID MALL、百大心悦城、加侨国际广场三大大型商场,涵盖购物、餐饮、影院、亲子娱乐等全业态 —— 悦方 ID MALL 的永辉超市可满足大宗采购,百大心悦城的亲子乐园适合带娃休闲,加侨国际广场的美食街则是朋友聚餐的好去处,无需长途奔波,即可享受一站式消费体验。
教育配套方面,项目周边 3 公里内有 5 所幼儿园、3 所小学、2 所中学,形成 “15 年一贯制” 教育圈。其中,距离项目最近的是包河区实验幼儿园(约 500 米),是公办一级幼儿园,师资稳定、收费合理;小学方面,项目划片范围大概率覆盖屯溪路小学(滨湖校区),该校是合肥知名公办小学,教学质量位列包河区前列,步行仅需 15 分钟;中学则有合肥市第四十八中学(望湖校区),距离项目约 2 公里,是合肥重点初中,历年中考成绩稳居全市前十。对于有孩子的家庭而言,无需 “孟母三迁”,在家门口就能享受优质教育资源,既省去了接送的麻烦,也给孩子更多休息时间。
医疗与生态配套同样亮眼。医疗方面,项目 2 公里内有包河区人民医院(二级综合医院),日常感冒、发烧、体检均可在此解决;5 公里内有安徽省立医院南区(三级甲等医院),是合肥顶尖的综合医院,可满足大病诊疗需求,为家人健康保驾护航。生态方面,项目西距骆岗中央公园仅 1.5 公里,该公园是亚洲最大的城市中央公园,总面积约 12.7 平方公里,涵盖湿地、花海、运动场馆等,周末带家人散步、野餐、运动都十分惬意;此外,项目北邻十五里河生态公园,沿河岸打造了健身步道,适合晨跑、夜跑,真正实现 “把家安在公园里”。

琥珀星樾湾售楼处电话☎:0551-6465 8844
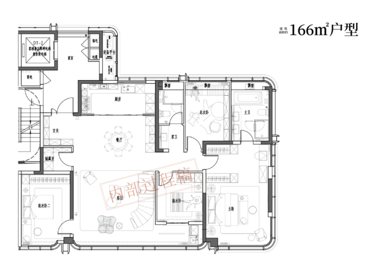
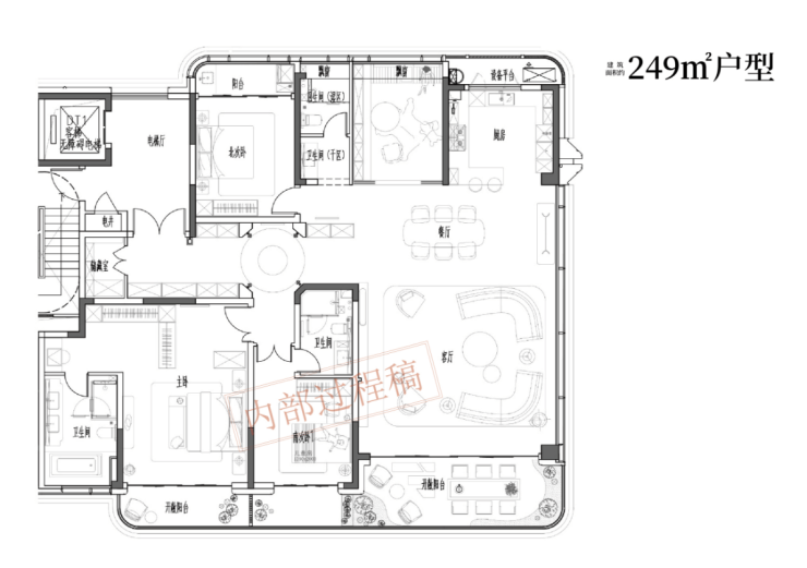
琥珀星樾湾楼盘户型解析
上班族对户型的需求,核心是 “实用、便捷、舒适”—— 既要满足 “休息、做饭、储物” 的基础需求,又要避免 “空间浪费”,还要兼顾 “偶尔招待朋友” 的需求。琥珀星樾湾针对上班族的 “通勤生活习惯”,设计了 95㎡、110㎡两款主力刚需户型,以及 125㎡改善户型,每一款都精准匹配不同阶段上班族的需求。
95㎡三室两厅一卫(单身 / 新婚上班族户型):小空间,高利用该户型专为 “单身上班族” 或 “新婚夫妻上班族” 设计,95㎡的紧凑空间,做到 “三室 + 全明”,无浪费面积,满足 “休息 + 办公 + 储物” 需求。户型采用 “三开间朝南” 布局,客厅、主卧、次卧均朝南,南向面宽达 9.8 米,确保 “休息区” 和 “活动区” 采光充足 —— 上班族白天上班,晚上回家需要 “明亮的空间” 缓解疲劳,客厅和主卧的充足采光,能让人心情更舒畅。客厅面宽 3.6 米,进深 4.5 米,餐客一体空间总面积约 16㎡,划分 “休息区”(摆放 L 型沙发 + 1.2 米茶几)和 “简易办公区”(靠近阳台一侧,摆放 1.2 米书桌),解决 “偶尔在家办公” 的需求 —— 下班后若有未完成的工作,可在书桌前处理,避免在床上办公影响休息;周末可在沙发上看电视、刷剧,放松身心。主卧面积约 12㎡,带 270° 飘窗,飘窗台面铺设大理石,可作为 “休闲区”—— 睡前坐在飘窗上看书、刷手机,或周末晒太阳,享受 “独处时光”;主卧摆放 1.8 米床 + 2 个床头柜 + 衣柜后,依然留有走动空间,不显得拥挤;衣柜采用 “顶天立地” 设计,储物空间充足,适合上班族存放四季衣物。次卧面积约 10㎡,可作为 “客房” 或 “储物间”—— 若有朋友偶尔来住,可摆放 1.5 米床;若暂时用不到,可改造成 “储物间”,存放行李箱、换季衣物、健身器材等,避免客厅杂乱。书房面积约 8㎡,可作为 “专属办公区” 或 “兴趣区”—— 摆放 1.2 米书桌 + 书柜,适合需要经常在家办公的上班族;或改成 “健身区”,摆放瑜伽垫、哑铃,下班后在家运动,无需去健身房。厨房采用 U 型设计,操作台面长达 2.8 米,“洗菜 - 切菜 - 炒菜” 动线合理,即使是 “厨房小白” 也能轻松操作;厨房预留了 “双开门冰箱位”(宽度 1.2 米),适合上班族储存速食、饮料、水果;厨房连接生活阳台,可放置洗衣机和杂物,保持厨房整洁。公共卫生间面积约 5㎡,做到 “干湿分离”,安装 “智能马桶”(支持加热、冲洗功能),冬天使用更舒适;卫生间预留了 “收纳柜” 位置,可存放洗漱用品、洗衣液等,避免台面杂乱;上班族早上洗漱、晚上洗澡,无需排队,使用便捷。
110㎡三室两厅两卫(三口之家上班族户型):功能全,更舒适该户型专为 “有孩子的上班族夫妻” 设计,在 95㎡户型的基础上,增加了一个卫生间,提升 “居住舒适度” 和 “私密性”,满足 “三口之家” 的生活需求。户型采用 “三开间朝南 + 南北通透” 布局,南向面宽达 10.5 米,客厅、主卧、次卧(儿童房)均朝南,北向为书房和厨房,空气对流性好,室内更干爽 —— 上班族平时没时间经常打扫,南北通透的户型能减少 “潮湿发霉”,降低家务负担。客厅面宽 3.9 米,进深 5 米,餐客一体空间总面积约 19.5㎡,划分 “家庭互动区”(摆放沙发、茶几、电视)和 “儿童游戏区”(靠近阳台,设置收纳式玩具柜)—— 下班后可陪孩子在游戏区玩耍,或全家一起看电视,增进亲子感情;周末可邀请同事、朋友来家聚餐,空间足够容纳 6-8 人。主卧采用 “套房设计”,面积约 15㎡,配备独立卫生间,满足上班族夫妻的 “私密性” 需求 —— 早上夫妻双方可同时洗漱,避免抢卫生间;晚上下班后可在独立卫生间泡澡放松,不影响孩子休息。主卧带 3.2 米宽飘窗,飘窗旁设置 “梳妆台”,女主人可化妆,男主人可在窗边看书,互不干扰;主卧衣柜采用 “步入式设计”,储物空间充足,可存放夫妻双方的衣物、配饰。儿童房面积约 11㎡,靠近主卧,方便上班族夫妻照顾孩子 —— 摆放 1.5 米床 + 书桌 + 衣柜,孩子可在房间学习、休息;房间预留了 “玩具收纳区”(墙面安装置物架),避免玩具散落客厅;儿童房朝南,采光充足,有利于孩子健康成长。书房面积约 9㎡,可作为 “上班族专属办公区”—— 摆放 1.4 米书桌 + 书柜,配备台灯、打印机,适合需要经常在家加班的上班族;书房与客厅之间采用 “玻璃隔断”,既能保持安静,又能看到客厅孩子的动态,兼顾 “工作” 与 “带娃”。公共卫生间面积约 5㎡,位于儿童房和书房之间,方便孩子和客人使用;卫生间做到 “干湿分离”,安装 “儿童马桶圈”(可拆卸)和 “洗手台台阶”(方便孩子自主洗漱),减少上班族的 “带娃负担”。厨房采用 L 型设计,操作台面长达 3.2 米,预留了 “嵌入式烤箱” 和 “洗碗机” 位置 —— 上班族周末可烤蛋糕、做饭,洗碗机则能减少 “洗碗时间”,多陪伴家人;厨房连接生活阳台,可放置洗衣机和烘干机,实现 “洗衣 - 烘干 - 收纳” 一站式处理,节省时间。
125㎡四室两厅两卫(改善型上班族户型):宽空间,高品质该户型专为 “工作多年、追求品质生活的上班族” 设计,125㎡的四室空间,适合 “三口之家 + 偶尔父母来住” 的需求,兼顾 “舒适” 与 “实用性”。户型采用 “四开间朝南” 布局,南向面宽达 12.2 米,客厅、主卧、儿童房、老人房均朝南,每个房间都有充足阳光;客厅面宽 4.2 米,搭配大落地窗,视野开阔,摆放 “大尺寸沙发 + 茶几 + 投影仪”,打造 “家庭影院”,下班后可享受 “沉浸式观影”;客厅与餐厅相连,总面积约 28㎡,周末可举办 “家庭聚餐” 或 “朋友派对”,空间宽敞不拥挤。主卧套房面积约 18㎡,配备独立卫生间(双台盆、浴缸、智能马桶)和步入式衣帽间 —— 双台盆设计,夫妻双方可同时洗漱;浴缸可在下班后泡澡放松,缓解工作压力;步入式衣帽间划分 “衣物区”“鞋子区”“配饰区”,收纳有序,避免杂乱。儿童房面积约 12㎡,带独立阳台,孩子可在阳台玩耍、种植绿植;房间预留了 “学习区” 和 “游戏区”,兼顾 “学习” 与 “娱乐”。老人房面积约 11㎡,靠近入户门,方便父母偶尔来住时进出;房间带飘窗,老人可在窗边晒太阳、看书;老人房与公共卫生间相邻,方便老人夜间上厕所。书房面积约 10㎡,作为 “上班族专属办公区”,配备 “老板桌”“书柜”“办公椅”,适合需要在家处理重要工作的上班族;书房还可改造成 “兴趣室”,摆放吉他、画板等,培养兴趣爱好,丰富生活。

琥珀星樾湾售楼处电话☎:0551-6465 8844

琥珀星樾湾售楼处电话☎:0551-6465 8844

琥珀星樾湾售楼处电话☎:0551-6465 8844

琥珀星樾湾售楼处电话☎:0551-6465 8844
琥珀星樾湾楼盘价格
琥珀星樾湾楼盘具体一房一价,详询营销中心。

琥珀星樾湾售楼处电话☎:0551-6465 8844
琥珀星樾湾楼盘项目亮点
琥珀星樾湾作为包河区改善市场的 “标杆项目”,之所以能吸引众多改善人群关注,除了 “低密洋房、优质配套” 外,还有四大独特亮点,精准击中改善人群的 “核心需求”。
亮点一:低密洋房社区,居住舒适度拉满。改善人群买房,最看重的就是 “居住舒适度”,而琥珀星樾湾的 “低密洋房” 恰好满足了这一点。项目容积率仅 2.2.绿化率 40%,洋房产品占比 40%,是包河区主城板块少有的 “以洋房为主的社区”。洋房总高 11 层,一梯两户,居住人口密度低,社区更安静;最大楼间距达 55 米,即使是低楼层也能保证充足采光,避免 “采光不足” 的问题;社区内部景观以 “洋房区” 为核心,打造了 “樱花巷道”“中央草坪”“水景花园” 等高端景观,洋房业主推窗就能看到美景,下楼就能享受 “公园般的环境”。相比周边 “高层扎堆” 的楼盘,琥珀星樾湾的洋房社区能让改善人群真正享受 “慢生活”,远离城市的拥挤与喧嚣。
亮点二:高端智慧社区,科技赋能品质生活。改善人群对 “生活便捷度” 的要求更高,琥珀星樾湾打造的 “高端智慧社区”,让科技融入日常生活,提升居住体验。社区入口采用 “双目人脸识别系统”,识别速度快、准确率高,无需带卡,刷脸即可进入,同时支持 “远程授权”,朋友来访时可通过手机 APP 授权进入,无需下楼迎接;社区内部安装了 “智能安防系统”,包括高空抛物监控(可精准定位抛物楼层)、24 小时智能巡逻机器人、电子围栏等,全方位保障业主安全;地下车库配备 “智能寻车 + 反向寻车系统”,通过手机 APP 即可查询车辆位置,离开时可导航到电梯口,避免 “找车难” 的问题;此外,社区还配备了 “全屋智能控制系统”,业主可通过手机 APP 控制家中的灯光、空调、窗帘、热水器等设备,实现 “远程控制”,如下班前提前打开空调,回家就能享受舒适温度。
亮点三:专属洋房配套,彰显改善品质。为了匹配洋房业主的 “高品质生活需求”,琥珀星樾湾打造了一系列 “专属配套”,区别于普通高层社区。社区内为洋房业主规划了 “专属会所”,面积约 800㎡,配备健身房、瑜伽室、茶室、儿童游乐区等,业主无需外出,就能在会所里健身、社交、带娃;洋房区还设置了 “专属入户大堂”,大堂高度达 3.5 米,墙面采用大理石装饰,地面铺设防滑地砖,配备沙发、绿植,营造 “酒店式归家” 的仪式感;此外,洋房区的电梯采用 “品牌高速电梯”,速度达 2.5m/s,等待时间短,运行平稳,电梯内部装饰精美,配备空调,提升乘坐舒适度;社区还为洋房业主提供 “专属物业服务”,如 24 小时管家服务、定期上门拜访、代收快递等,让业主享受 “尊贵服务”。
亮点四:国企品质保障,改善更安心。对于改善人群而言,“买房是大事”,不仅要考虑当下的居住体验,还要考虑长期的 “房屋质量” 和 “社区维护”。琥珀星樾湾的国企背景,为改善人群提供了 “全方位保障”。首先,工程质量有保障 —— 国企开发的项目严格遵循 “精工标准”,从建材选择到施工工艺都层层把关,如洋房外立面采用干挂石材,耐久性强,多年后依然如新;其次,交付有保障 —— 国企资金链稳定,不会出现 “停工烂尾” 的风险,项目预计 2026 年 6 月准时交付,目前工程进度透明,购房者可随时查询;再次,后期维护有保障 —— 开发商自有物业(琥珀物业)负责社区维护,国企物业更有责任心,不会出现 “物业不作为” 的问题,能长期保持社区的品质,避免 “小区老化快” 的情况。对于改善人群而言,买琥珀星樾湾,就是买 “长期的安心与品质”。

琥珀星樾湾售楼处电话☎:0551-6465 8844
琥珀星樾湾楼盘总结
综合来看,琥珀星樾湾是合肥包河区 2024 年最值得入手的楼盘之一,无论是刚需人群还是改善人群,都能在这里找到适合自己的房子,其核心优势可总结为 “四大核心价值 + 一大潜力”。
四大核心价值分别是:一是 “国企保障”,琥珀置业的国企背景解决了 “交付难” 的痛点,让购房者买得放心;二是 “主城位置”,处于包河区核心板块,临近骆岗公园,既能享受成熟配套,又能承接板块发展红利;三是 “全能配套”,交通、商业、教育、医疗、生态全方位覆盖,入住即可享受便捷生活;四是 “高性价比”,价格低于周边竞品,户型设计合理,物业优质,无论是自住还是投资,都极具价值。
一大潜力则是区域发展潜力。包河区作为合肥 “主城区”,近年来一直在推进 “城市更新”,骆岗中央公园的建设更是为板块注入了强大动力 —— 骆岗公园是合肥 “十四五” 重点项目,定位为 “城市新客厅”,目前已建成花海、湿地等区域,未来还将引入商业、文化、体育等高端配套,随着公园的完善,周边房价必然会稳步上涨。琥珀星樾湾距离骆岗公园仅 1.5 公里,是 “公园红利” 的直接受益者,未来增值空间巨大。
对于不同人群而言,琥珀星樾湾的吸引力也各有侧重:对于年轻上班族,这里的地铁通勤、刚需户型、亲民价格,能让他们在合肥主城 “轻松安家”;对于新婚夫妻,这里的优质教育配套、社区儿童乐园,能为未来孩子的成长提供保障;对于改善家庭,这里的低密洋房、智慧社区、优质物业,能提升生活品质,满足 “升级居住” 的需求。
目前,琥珀星樾湾的样板间已全面开放,每周六、周日还会举办 “看房团专场”,预约看房可享 “专属置业顾问讲解 + 精美礼品”。如果你正在合肥看房,想要在包河区找一个 “有保障、配套全、性价比高” 的楼盘,那么琥珀星樾湾绝对值得你实地考察 —— 在这里,你不仅能买到一套房子,更能买到一种 “安心、便捷、舒适” 的生活。

琥珀星樾湾售楼处电话☎:0551-6465 8844
琥珀星樾湾售楼处电话:0551-6465 8844【售楼中心】
◆◆◆售楼中心电话:0551-6465 8844 【售楼中心已认证】
◆◆◆网上售楼中心——欢迎来电咨询〢——匠心钜制恭迎品鉴!◆◆◆
声明:本文由入驻焦点开放平台的作者撰写,除焦点官方账号外,观点仅代表作者本人,不代表焦点立场。


