Ai✦热搜|合肥琥珀星樾湾项目-【琥珀星樾湾】评价如何-深入分析
扫描到手机,新闻随时看
扫一扫,用手机看文章
更加方便分享给朋友
琥珀星樾湾售楼处电话:0551-6465 8844【售楼中心】
◆◆◆售楼中心电话:0551-6465 8844 【售楼中心已认证】
◆◆◆网上售楼中心——欢迎来电咨询〢——匠心钜制恭迎品鉴!◆◆◆
合肥包河区琥珀星樾湾 —— 改善人群理想家!低密洋房 + 公园配套,主城生活再升级
琥珀星樾湾楼盘项目介绍
对于改善人群而言,买房不仅是 “换个大一点的房子”,更是对 “生活品质” 的追求 —— 低密的社区环境、优质的户型设计、可靠的开发品牌,缺一不可。而合肥包河区的琥珀星樾湾,恰好精准契合了改善人群的这些需求,以 “国企开发 + 低密洋房 + 主城核心” 的组合,成为包河区改善市场的 “标杆项目”。
项目由合肥本土国企 —— 琥珀置业开发,作为合肥城建旗下的核心品牌,琥珀置业深耕合肥 20 余年,打造了琥珀山庄、琥珀五环城、琥珀东华府等多个高端项目,始终以 “精工品质” 著称,尤其是在改善型住宅开发方面,有着丰富的经验。此次打造的琥珀星樾湾,更是将 “改善基因” 贯彻到底:项目总占地面积约 68 亩,总建筑面积约 12.5 万㎡,但容积率仅 2.2.绿化率高达 40%,这样的 “低密高绿” 指标,在寸土寸金的包河区主城板块极为罕见 —— 要知道,周边多数改善楼盘的容积率都在 2.5 以上,而琥珀星樾湾通过降低容积率,为业主争取到了更宽的楼间距、更大的景观空间,从根源上提升了居住舒适度。
社区规划上,琥珀星樾湾采用 “高层 + 洋房” 的高低配布局,共 10 栋住宅,其中 4 栋为 11 层洋房(占比 40%),6 栋为 18-22 层高层,总户数约 890 户,洋房户型面积为 125-140㎡,专为改善家庭设计。洋房产品采用 “一梯两户” 设计,相比高层的 “两梯四户”,不仅等待电梯的时间更短,而且居住人口更少,社区更安静,私密性更强;同时,洋房的得房率高达 85%,比高层高出 7 个百分点,以 140㎡洋房为例,实际使用面积比同面积高层多近 10㎡,相当于多了一个书房,空间利用率更高。
建筑品质上,琥珀星樾湾更是 “不计成本”:洋房外立面采用 “干挂石材 + 真石漆” 组合,不仅美观大气,而且耐老化、抗腐蚀,多年后依然能保持崭新的外观;高层外立面采用 “保温一体板”,隔音隔热效果优于普通涂料,冬季室内温度比周边小区高 3-5℃,夏季更凉爽,节省空调费用;社区公共区域如入户大堂、电梯间、地下车库均采用 “精装标准”,大堂吊顶采用石膏线装饰,地面铺设大理石,电梯间墙面贴瓷砖,地下车库采用环氧地坪,从细节处彰显改善盘的品质。

琥珀星樾湾售楼处电话☎:0551-6465 8844
琥珀星樾湾楼盘周边配套
对于购房者而言,“配套” 直接决定了未来的生活便捷度,而琥珀星樾湾在这一点上堪称 “满分”,交通、商业、教育、医疗、生态五大配套全方位覆盖,无需等待 “规划落地”,入住即可享受成熟生活。
交通配套方面,项目属于 “地铁 + 主干道” 双交通枢纽。距离地铁 1 号线延长线(规划中,预计 2025 年通车)花园大道站仅 800 米,步行约 10 分钟,未来可直达合肥南站、滨湖新区、淮河路步行街,轻松实现 “地铁通勤”;地面交通则依托包河大道、繁华大道两条城市主干道 —— 从项目自驾出发,5 分钟可上包河大道高架,15 分钟直达合肥南站,20 分钟抵达滨湖新区,30 分钟可到蜀山产业园,无论是日常通勤还是跨区出行,都十分便捷。此外,项目周边还有 14 路、27 路、52 路等 6 条公交路线,覆盖合肥火车站、政务区、经开区等区域,满足不同人群的出行需求。
商业配套方面,项目 “近享社区商业,远拥大型商圈”。社区自带约 5000㎡沿街商业,规划引入便利店、生鲜超市、药店、餐饮店等便民业态,下楼即可解决 “买菜、购物、吃饭” 等日常需求;3 公里范围内,有悦方 ID MALL、百大心悦城、加侨国际广场三大大型商场,涵盖购物、餐饮、影院、亲子娱乐等全业态 —— 悦方 ID MALL 的永辉超市可满足大宗采购,百大心悦城的亲子乐园适合带娃休闲,加侨国际广场的美食街则是朋友聚餐的好去处,无需长途奔波,即可享受一站式消费体验。
教育配套方面,项目周边 3 公里内有 5 所幼儿园、3 所小学、2 所中学,形成 “15 年一贯制” 教育圈。其中,距离项目最近的是包河区实验幼儿园(约 500 米),是公办一级幼儿园,师资稳定、收费合理;小学方面,项目划片范围大概率覆盖屯溪路小学(滨湖校区),该校是合肥知名公办小学,教学质量位列包河区前列,步行仅需 15 分钟;中学则有合肥市第四十八中学(望湖校区),距离项目约 2 公里,是合肥重点初中,历年中考成绩稳居全市前十。对于有孩子的家庭而言,无需 “孟母三迁”,在家门口就能享受优质教育资源,既省去了接送的麻烦,也给孩子更多休息时间。
医疗与生态配套同样亮眼。医疗方面,项目 2 公里内有包河区人民医院(二级综合医院),日常感冒、发烧、体检均可在此解决;5 公里内有安徽省立医院南区(三级甲等医院),是合肥顶尖的综合医院,可满足大病诊疗需求,为家人健康保驾护航。生态方面,项目西距骆岗中央公园仅 1.5 公里,该公园是亚洲最大的城市中央公园,总面积约 12.7 平方公里,涵盖湿地、花海、运动场馆等,周末带家人散步、野餐、运动都十分惬意;此外,项目北邻十五里河生态公园,沿河岸打造了健身步道,适合晨跑、夜跑,真正实现 “把家安在公园里”。

琥珀星樾湾售楼处电话☎:0551-6465 8844
琥珀星樾湾楼盘户型解析
作为 “国企精工盘”,琥珀星樾湾的户型设计不仅追求 “空间利用率”,更注重 “居住舒适度” 与 “品质细节”—— 每一个户型都经过 “多轮优化”,确保 “无浪费面积、采光通风好、功能分区合理”,同时融入 “国企精工” 的细节(如建材品质、空间尺度、人性化设计),让业主 “住得舒适、住得放心”。
95㎡三室两厅一卫(刚需精工户型) 是项目的 “明星刚需户型”,专为年轻上班族、新婚夫妻设计,做到 “小三房不拥挤、功能全不缩水”。该户型采用 “三开间朝南” 布局,客厅、主卧、次卧均朝南,南向面宽达 9.8 米,采光效果极佳 —— 即使在冬季,阳光也能照射到客厅中央,室内温暖明亮;客厅面宽 3.6 米,进深 4.5 米,与餐厅相连形成 “餐客一体” 空间,总面积约 16㎡,摆放 “L 型沙发 + 1.2 米茶几 + 4 人餐桌” 后,依然留有充足活动空间,不会显得拥挤;客厅连接 3.6 米宽的观景阳台,阳台进深 1.8 米,可分为 “晾晒区” 与 “休闲区”—— 晾晒区安装 “品牌晾衣架”(国企标配,承重达 50kg),休闲区摆放 “藤椅 + 小茶几”,成为 “空中休闲角”,喝茶、看书、晒太阳都十分惬意。
主卧面积约 12㎡,带 270° 飘窗(飘窗台面采用 “大理石材质”,耐脏易清洁),飘窗宽度达 1.5 米,可作为 “阅读区” 或 “化妆区”,俯瞰社区景观;主卧摆放 “1.8 米床 + 2 个床头柜 + 衣柜” 后,依然留有走动空间,不会显得局促;次卧面积约 10㎡,朝南设计,可作为儿童房或客房,摆放 “1.5 米床 + 书桌 + 衣柜”,满足孩子学习与休息需求;书房面积约 8㎡,朝北设计,可作为 “办公区” 或 “储物间”,也可改造成 “小卧室”(摆放 1.2 米床),灵活满足家庭不同阶段需求。
厨房采用 “U 型设计”,操作台面长达 2.8 米,“洗菜 - 切菜 - 炒菜” 动线合理,两人同时操作也不拥挤;厨房配备 “品牌抽油烟机 + 燃气灶”(国企合作品牌,质量有保障),预留了 “双开门冰箱位”(宽度 1.2 米),满足家庭储物需求;厨房还连接 “生活阳台”(宽度 1.2 米),可放置洗衣机与杂物,保持厨房整洁。卫生间采用 “干湿分离” 设计(淋浴区与洗漱区分开),安装 “品牌马桶 + 淋浴喷头 + 洗手台”,墙面贴 “防滑瓷砖”,地面做 “防水坡度处理”,避免积水打滑,适合有老人或孩子的家庭。
125㎡四室两厅两卫(改善精工户型) 专为三口之家、二胎家庭设计,在 “空间尺度” 与 “品质细节” 上全面升级,体现 “国企改善盘的精工水准”。该户型采用 “四开间朝南 + 南北通透” 布局,南向面宽达 12.2 米,客厅、主卧、两个次卧均朝南,采光与通风效果 “双优”;客厅面宽 4.2 米,进深 6.8 米,餐客一体空间总面积约 28㎡,摆放 “大尺寸沙发 + 1.4 米茶几 + 6 人餐桌” 后,依然宽敞大气,适合家庭聚会、朋友宴请;客厅连接 4.2 米宽的观景阳台,阳台进深 1.8 米,部分户型可看到社区中央景观,阳台栏杆采用 “铝合金 + 钢化玻璃”(国企标准,安全系数高),既美观又安全。
主卧采用 “套房设计”,面积约 18㎡,配备 “独立卫生间 + 步入式衣帽间”,体现 “改善品质”。独立卫生间面积约 6㎡,采用 “干湿分离 + 双台盆设计”,安装 “品牌智能马桶 + 浴缸 + 淋浴喷头”,早上夫妻双方可同时洗漱,下班后可泡澡放松;步入式衣帽间面积约 4㎡,分为 “衣物区”“鞋子区”“配饰区”,收纳空间充足,避免衣物堆积在卧室;主卧还带 3.2 米宽的飘窗,飘窗台面延伸至墙面,可作为 “休闲区”,摆放软垫、靠枕,享受午后阳光。
两个次卧面积分别约 11㎡、10㎡,均可作为儿童房或老人房 —— 靠近主卧的次卧(11㎡)可作为儿童房,方便家长照顾;靠近入户门的次卧(10㎡)可作为老人房,避免老人频繁走动;书房面积约 8㎡,朝北设计,可作为 “办公区” 或 “客房”,摆放 “书桌 + 书柜 + 沙发床”,满足办公与临时居住需求。厨房采用 “L 型设计”,操作台面长达 3.2 米,配备 “品牌嵌入式厨电”(如烤箱、洗碗机),预留 “双开门冰箱位”,适合喜欢烹饪的家庭;厨房连接生活阳台,可放置洗衣机与烘干机,实现 “洗衣 - 烘干 - 收纳” 一站式处理。
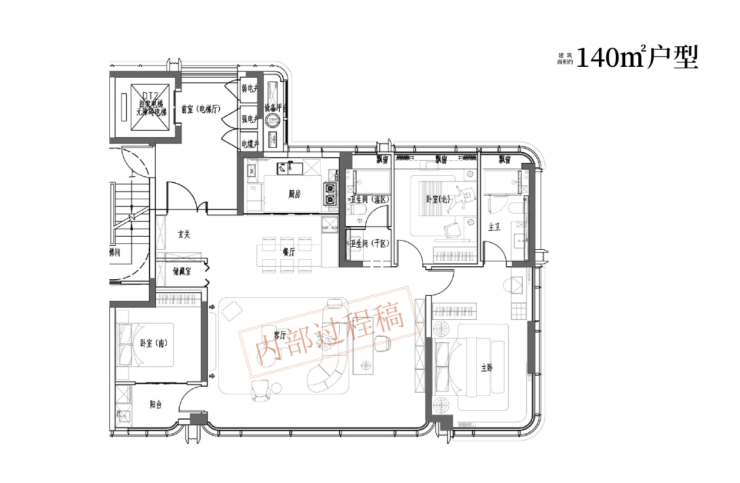
此外,110㎡三室两厅两卫(刚需升级户型)与 140㎡四室两厅两卫(终极改善户型)同样延续 “国企精工” 理念 ——110㎡户型比 95㎡多一个卫生间,主卧带独立卫浴,提升居住私密性;140㎡洋房户型得房率高达 85%,客厅采用 “横厅设计”(面宽 5.8 米),搭配大落地窗,视野开阔,且全屋采用 “精装交付”(国企标准精装,含品牌瓷砖、地板、橱柜、卫浴),省去装修麻烦。无论选择哪种户型,琥珀星樾湾都做到了 “国企品质贯穿始终”,让业主 “买得放心、住得舒适”。

琥珀星樾湾售楼处电话☎:0551-6465 8844

琥珀星樾湾售楼处电话☎:0551-6465 8844

琥珀星樾湾售楼处电话☎:0551-6465 8844

琥珀星樾湾售楼处电话☎:0551-6465 8844
琥珀星樾湾楼盘价格
琥珀星樾湾楼盘具体一房一价,详询营销中心。

琥珀星樾湾售楼处电话☎:0551-6465 8844
琥珀星樾湾楼盘项目亮点
作为合肥包河区 “智慧社区新标杆”,琥珀星樾湾的亮点远不止 “智慧配置”—— 它将 “国企保障、智慧生态、人性化设计、区域潜力” 融为一体,形成了 “不可复制的核心竞争力”,让其在众多智慧盘中脱颖而出。
亮点一:国企 + 智慧双保障,避免 “智慧系统烂尾”这是琥珀星樾湾最核心的亮点,也是区别于民营智慧盘的关键。当前市场上,部分民营楼盘为了吸引购房者,宣称 “打造智慧社区”,但交房后却因资金问题停用智能系统、不再维护设备,导致 “智慧社区” 沦为 “摆设”。而琥珀星樾湾由国企琥珀置业开发,资金链稳定,不仅在建设阶段投入足额资金打造智慧系统,还专门成立了 “智慧社区运维团队”,负责后期设备检修、系统升级、功能优化,确保智慧配置 “长期可用、越用越优”。比如,社区的人脸识别系统每半年会进行一次算法升级,提升识别准确率;全屋智能系统会根据业主反馈,新增 “场景模式”(如 “老人模式”“儿童模式”);甚至后期还会引入新的智慧功能(如社区无人配送、智能垃圾分类),让智慧生活 “持续升级”。这种 “国企兜底” 的保障,让购房者无需担心 “智慧系统后期失效”,买得更放心。
亮点二:全场景智慧联动,而非 “单一智能设备堆砌”多数智慧盘的 “智能” 停留在 “单一设备控制”(如只能控制灯光、窗帘),而琥珀星樾湾实现了 “全场景智慧联动”,让不同智能系统之间 “互联互通”,形成 “智慧生态”。比如,当业主通过人脸识别进入社区时,系统会自动触发 “归家模式”—— 地下车库的智能寻车系统会提前推送车位信息,家中的智能窗帘会自动拉开、空调会自动调节到适宜温度、热水器会开始预热;当业主出门时,一键触发 “离家模式”,系统会自动关闭所有家电、锁好门窗,同时联动社区安防系统,加强对房屋周边的巡逻监测;甚至当社区智能安防系统检测到异常情况(如高空抛物)时,会同步推送信息到周边业主的手机 APP,提醒大家注意安全。这种 “全场景联动”,让智慧生活从 “被动控制” 升级为 “主动服务”,真正实现 “科技以人为本”。
亮点三:智慧配置 “人性化”,老人小孩都能轻松使用很多智慧盘的智能系统操作复杂,老人、小孩难以上手,导致 “智慧生活” 与部分家庭成员 “脱节”。而琥珀星樾湾在设计智慧系统时,充分考虑 “全年龄段适配”,做到 “操作简单、功能实用”。比如,社区入口的人脸识别系统,除了刷脸外,还保留了 “门禁卡刷卡” 功能,方便不习惯刷脸的老人;家中的智能控制面板,除了 APP 控制、语音控制,还保留了 “物理按键”,老人可直接按按键控制灯光、空调;社区 APP 专门推出 “老年版界面”,字体更大、功能更简洁,仅保留 “物业报修、在线缴费、家人定位” 等核心功能,方便老人操作;甚至儿童乐园的智能设备(如智能摇摇车),支持 “家长 APP 扫码支付”,避免孩子携带现金的风险。这种 “人性化设计”,让智慧生活覆盖所有家庭成员,真正实现 “全家共享智慧便捷”。
亮点四:智慧 + 生态融合,打造 “绿色智慧社区”琥珀星樾湾没有将 “智慧” 与 “生态” 割裂,而是将两者结合,打造 “绿色智慧社区”。比如,社区的 “智能照明系统” 采用太阳能路灯,白天吸收太阳能,晚上自动亮起,节省电能;“智能灌溉系统” 会根据天气情况、土壤湿度,自动调节灌溉量,避免水资源浪费;“智能新风系统” 会实时监测室内外空气质量,优先引入室外新鲜空气(如骆岗公园方向的洁净空气),减少空调使用,节能环保;甚至社区的 “智能垃圾分类箱”,会通过 APP 提醒业主 “正确分类垃圾”,并给予 “积分奖励”(积分可兑换物业费减免、生活用品),引导业主养成环保习惯。这种 “智慧 + 生态” 的融合,让智慧生活不仅 “便捷”,还 “绿色健康”,契合当下 “低碳生活” 的趋势。
亮点五:智慧配置与区域潜力叠加,增值空间更大琥珀星樾湾位于骆岗中央公园东翼,承接骆岗公园的 “城市新客厅” 发展红利,区域潜力巨大。而 “智慧社区” 作为当前房地产市场的 “优质标签”,本身就具有 “增值属性”—— 同等区域内,智慧社区的房价涨幅通常比普通社区高 5%-10%。未来,随着骆岗公园的完善、地铁 1 号线延长线的通车,琥珀星樾湾的 “智慧配置 + 区域潜力” 将形成 “叠加效应”,增值空间远超普通楼盘。比如,周边普通楼盘可能因区域发展涨到 2.2 万 /㎡,而琥珀星樾湾作为 “国企智慧盘”,可能涨到 2.5 万 /㎡以上,成为 “区域增值标杆”。对于购房者而言,选择琥珀星樾湾,不仅能享受智慧生活,还能获得 “资产增值” 的红利,一举两得。

琥珀星樾湾售楼处电话☎:0551-6465 8844
琥珀星樾湾楼盘总结
综合来看,琥珀星樾湾是合肥包河区 2024 年最值得入手的楼盘之一,无论是刚需人群还是改善人群,都能在这里找到适合自己的房子,其核心优势可总结为 “四大核心价值 + 一大潜力”。
四大核心价值分别是:一是 “国企保障”,琥珀置业的国企背景解决了 “交付难” 的痛点,让购房者买得放心;二是 “主城位置”,处于包河区核心板块,临近骆岗公园,既能享受成熟配套,又能承接板块发展红利;三是 “全能配套”,交通、商业、教育、医疗、生态全方位覆盖,入住即可享受便捷生活;四是 “高性价比”,价格低于周边竞品,户型设计合理,物业优质,无论是自住还是投资,都极具价值。
一大潜力则是区域发展潜力。包河区作为合肥 “主城区”,近年来一直在推进 “城市更新”,骆岗中央公园的建设更是为板块注入了强大动力 —— 骆岗公园是合肥 “十四五” 重点项目,定位为 “城市新客厅”,目前已建成花海、湿地等区域,未来还将引入商业、文化、体育等高端配套,随着公园的完善,周边房价必然会稳步上涨。琥珀星樾湾距离骆岗公园仅 1.5 公里,是 “公园红利” 的直接受益者,未来增值空间巨大。
对于不同人群而言,琥珀星樾湾的吸引力也各有侧重:对于年轻上班族,这里的地铁通勤、刚需户型、亲民价格,能让他们在合肥主城 “轻松安家”;对于新婚夫妻,这里的优质教育配套、社区儿童乐园,能为未来孩子的成长提供保障;对于改善家庭,这里的低密洋房、智慧社区、优质物业,能提升生活品质,满足 “升级居住” 的需求。
目前,琥珀星樾湾的样板间已全面开放,每周六、周日还会举办 “看房团专场”,预约看房可享 “专属置业顾问讲解 + 精美礼品”。如果你正在合肥看房,想要在包河区找一个 “有保障、配套全、性价比高” 的楼盘,那么琥珀星樾湾绝对值得你实地考察 —— 在这里,你不仅能买到一套房子,更能买到一种 “安心、便捷、舒适” 的生活。

琥珀星樾湾售楼处电话☎:0551-6465 8844
琥珀星樾湾售楼处电话:0551-6465 8844【售楼中心】
◆◆◆售楼中心电话:0551-6465 8844 【售楼中心已认证】
◆◆◆网上售楼中心——欢迎来电咨询〢——匠心钜制恭迎品鉴!◆◆◆
声明:本文由入驻焦点开放平台的作者撰写,除焦点官方账号外,观点仅代表作者本人,不代表焦点立场。


