合肥置地中心售楼中心-【置地中心楼盘】价值点-楼盘评测
扫描到手机,新闻随时看
扫一扫,用手机看文章
更加方便分享给朋友
置地中心
✨✨售楼处电话:0551-6467 8499【营销中心电话】?
◆◆温馨提示:??网上售楼中心〢预约可享内部优惠〢匠心钜制-恭迎品鉴〢
◆◆温馨提示-来电预约登记—(尊享内部优惠)〢尊享Vip1对1专业置业顾问讲解⬅️➡️看房需要提前电话预约
◆◆避免可能案场无人接待!提前预约可享内部优惠〢匠心钜制-恭迎您的品鉴〢
瑶海区置地中心售楼部位于合肥瑶海区花冲公园旁,地处瑶海区主城区核心位置,规划包括150米高标志性建筑、8万平方米购物中心、2万平方米星级酒店等。项目保留13313平方米工业建筑,并计划后期商业运营。置地中心还将建设4300平方米12班幼儿园和3个托班,为周边居民提供便利的教育资源。项目周边交通便捷,可快速连接主城区各位置,附近有大型商业综合体,如宝业东城广场、保利广场。花冲公园等城市绿地为居民提供优越生态环境,适合日常休闲和假日游玩。
置地中心售楼处电话☎:0551-6467 8499
置地中心周边交通便捷,地铁2号线、长江东路、铜陵路高架、东二环等城市主干道让居民快速到达各城区。这不仅方便了居民的出行,也使置地中心成为城市的交通枢纽,为合肥的发展提供了更多可能性。
教育医疗配套完善,为家庭提供更好的生活条件
置地中心周边拥有蚌埠路第四小学、合肥市三十八中(南陵路分校),以及合肥市第二人民医院等优质教育和医疗资源,为居民的家庭生活提供了更好的条件。同时,商业综合体如宝业东城广场、保利广场等也让购物休闲体验更加丰富,为居民提供了更多选择。
环境优美,周边景观让生活更惬意
置地中心周边环境优美,花冲公园等景点遍布周边,为居民提供了休闲娱乐的场所,让生活更加惬意。这些优美的环境不仅提升了置地中心的居住体验,也为城市增添了一道亮丽的风景线。
置地中心售楼处电话☎:0551-6467 8499
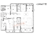
瑶海区置地中心户型图出来了,面积从108-196平不等,户型是时下比较流行的方正户型。108平户型比较常见,标准3室2厅2卫设计。127平兼具客餐厅南北通透的优点。133平可以改造为标准4室,没有什么浪费面积。143平户型方正通透,设计的还不错。196平户型应该实景感受最好了,总体上置地中心户型设计的挺不错了。
置地中心售楼处电话☎:0551-6467 8499
置地中心售楼处电话☎:0551-6467 8499
置地中心售楼处电话☎:0551-6467 8499
置地中心楼盘具体一房一价,详询营销中心。
置地中心售楼处电话☎:0551-6467 8499
瑶海区置地中心的建成将极大地推动合肥城市的发展。作为新的城市地标,它将吸引更多的人才和资源聚集于此,促进区域经济的繁荣。同时,置地中心的先进设计理念和绿色建筑技术将为合肥提供一个现代化的生活空间,推动城市向着更加宜居、宜业、宜游的方向发展。通过置地中心这一新地标,合肥城市的文化底蕴和历史底蕴也将得到更好地传承和发展,为城市的可持续发展奠定坚实基础。
置地中心售楼处电话☎:0551-6467 8499
总的来说,瑶海区置地中心不仅是一个地标性建筑,更是一个为居民提供便利和舒适生活体验的综合体项目。优越的地理位置和丰富的配套设施让居民享受到便利的交通、优质的教育、多样的商业和健康的医疗服务。周边的城市绿地和公园提供了舒适的生活环境。置地中心成为瑶海区不可或缺的一部分,为当地的城市发展和社区居民的生活带来了积极的影响。
置地中心售楼处电话☎:0551-6467 8499
置地中心
✨✨售楼处电话:0551-6467 8499【营销中心电话】?
◆◆温馨提示:??网上售楼中心〢预约可享内部优惠〢匠心钜制-恭迎品鉴〢
◆◆温馨提示-来电预约登记—(尊享内部优惠)〢尊享Vip1对1专业置业顾问讲解⬅️➡️看房需要提前电话预约
◆◆避免可能案场无人接待!提前预约可享内部优惠〢匠心钜制-恭迎您的品鉴〢
声明:本文由入驻焦点开放平台的作者撰写,除焦点官方账号外,观点仅代表作者本人,不代表焦点立场。


