中央公园琥珀星樾湾官方发布最新消息:欢迎来电咨询〢——匠心钜制恭迎品鉴!
扫描到手机,新闻随时看
扫一扫,用手机看文章
更加方便分享给朋友
琥珀星樾湾售楼处电话:0551-6465 8844【售楼中心】
◆◆◆售楼中心电话:0551-6465 8844 【售楼中心已认证】
◆◆◆网上售楼中心——欢迎来电咨询〢——匠心钜制恭迎品鉴!◆◆◆
琥珀星樾湾楼盘户型解析
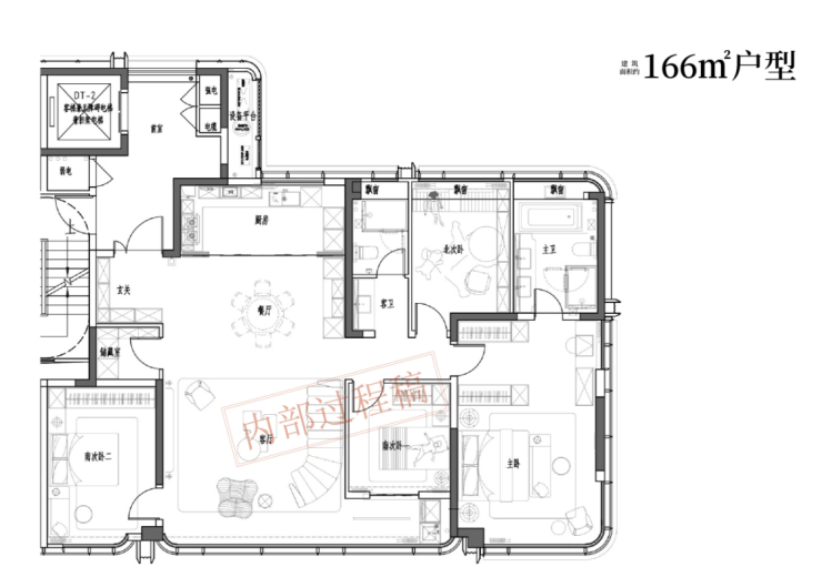
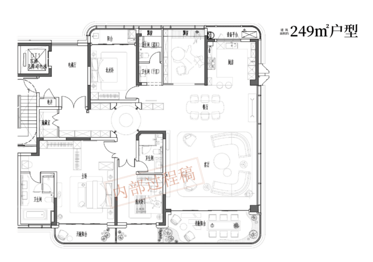
作为 “生态宜居盘”,琥珀星樾湾的户型设计不仅要 “舒适”,更要 “与自然融合”—— 通过合理的空间布局,让业主在室内就能享受 “公园景观” 和 “充足阳光”。项目针对不同人群的需求,设计了 95㎡、110㎡、125㎡、140㎡四种主力户型,每种户型都做到了 “南北通透、采光充足、景观视野好”,让 “公园生活” 延伸到室内。
95㎡三室两厅一卫(刚需生态户型) 专为年轻刚需人群设计,在满足 “低总价、小三房” 需求的同时,融入了 “生态宜居” 理念。该户型采用 “三开间朝南” 布局,客厅、主卧、次卧均朝南,南向面宽达 9.8 米,每天有充足的阳光照射,即使在冬季也能保持室内温暖;客厅连接 3.6 米宽的观景阳台,阳台进深 1.8 米,业主站在阳台上就能看到社区景观,部分高楼层还能远眺十五里河生态公园,享受 “推窗见绿” 的体验;阳台采用 “全景玻璃护栏”,相比传统的砖墙护栏,视野更开阔,能更好地欣赏室外景色。
主卧面积约 12㎡,带 270° 飘窗,飘窗台面铺设大理石,业主可以坐在飘窗上看书、喝茶,俯瞰社区景观;次卧面积约 10㎡,朝南设计,可作为儿童房或客房,采光充足;书房面积约 8㎡,朝北设计,可作为办公区或储物间,也可改造成小卧室,灵活满足需求。厨房采用 U 型设计,操作台面长达 2.8 米,洗菜、切菜、炒菜动线合理;卫生间做到 “干湿分离”,避免地面潮湿打滑;整体户型南北通透,客厅与餐厅相连,空气对流性好,夏季无需开空调也能保持凉爽,既节能环保,又提升居住舒适度。
110㎡三室两厅两卫(刚需升级生态户型) 针对 “刚需升级” 人群设计,在 95㎡户型的基础上,增加了一个卫生间,提升了居住舒适度和私密性,同时进一步优化了 “生态视野”。该户型采用 “三开间朝南 + 南北通透” 布局,南向面宽达 10.5 米,客厅、主卧、次卧朝南,书房、厨房朝北;客厅面宽达 3.9 米,连接 3.9 米宽的观景阳台,阳台进深 1.8 米,部分户型可看到骆岗公园的花海景观,视野极佳;客厅与餐厅形成 “竖厅” 设计,南北对流,空气流通性好,室内空气质量高。
主卧采用 “套房设计”,面积约 15㎡,配备独立卫生间和衣帽间。独立卫生间面积约 5㎡,干湿分离设计,方便业主使用;衣帽间面积约 3㎡,可容纳业主的衣物和配饰;主卧带 3.2 米宽的飘窗,飘窗朝向社区花园,业主可以在飘窗上欣赏花园景色,享受 “自然与生活的融合”。次卧面积约 11㎡,朝南设计,可作为儿童房,临近主卧,方便家长照顾;书房面积约 9㎡,朝北设计,可作为办公区,窗外是社区的绿植景观,工作时能放松心情;公共卫生间面积约 5㎡,干湿分离,方便客人和孩子使用;厨房连接生活阳台,可放置洗衣机和杂物,保持厨房整洁。
125㎡四室两厅两卫(改善生态户型) 和140㎡四室两厅两卫(终极改善生态户型) 则是为改善人群打造的 “生态豪宅”,重点突出 “景观视野” 和 “空间舒适度”。125㎡户型采用 “四开间朝南” 布局,南向面宽达 12.2 米,客厅、主卧、两个次卧朝南,书房朝北;客厅面宽达 4.2 米,连接 4.2 米宽的观景阳台,阳台进深 1.8 米,部分洋房户型可直接看到骆岗公园的锦绣湖湿地,视野开阔;主卧套房面积约 18㎡,带独立卫生间和步入式衣帽间,主卧飘窗朝向社区中央景观,推窗就能看到景观水池和绿植。
140㎡户型则采用 “五开间朝南” 布局,南向面宽达 14.5 米,客厅、主卧、两个次卧、书房均朝南;客厅面宽达 5.8 米,连接 7.8 米长的贯通式阳台,阳台进深 2 米,业主可以在阳台上摆放藤椅、茶桌、绿植,打造 “空中花园”,部分高楼层户型可远眺骆岗公园全景,享受 “把家安在公园里” 的体验;主卧套房面积约 25㎡,配备独立卫生间、步入式衣帽间和梳妆台,主卧飘窗宽 3.2 米,朝向骆岗公园方向,清晨醒来就能看到公园的美景,开启一天的好心情。
无论是刚需户型还是改善户型,琥珀星樾湾都做到了 “让自然融入生活”,通过合理的空间布局和景观设计,让业主在室内就能享受 “公园景观” 和 “新鲜空气”,真正实现 “生态宜居” 的生活理念。

琥珀星樾湾售楼处电话☎:0551-6465 8844

琥珀星樾湾售楼处电话☎:0551-6465 8844

琥珀星樾湾售楼处电话☎:0551-6465 8844

琥珀星樾湾售楼处电话☎:0551-6465 8844
琥珀星樾湾楼盘价格
琥珀星樾湾楼盘具体一房一价,详询营销中心。

琥珀星樾湾售楼处电话☎:0551-6465 8844
琥珀星樾湾楼盘总结
综合来看,琥珀星樾湾是合肥 2024 年 “最适合上班族安家的地铁盘”—— 它以 “地铁 1 号线通勤为核心,国企保障为根基,上班族配套为支撑,亲民价格为优势”,完美解决了上班族 “通勤远、预算紧、生活烦” 三大核心痛点,无论是单身上班族、新婚夫妻,还是三口之家,都能在这里找到 “便捷、舒适、安心” 的家。
从 “上班族需求匹配” 来看,琥珀星樾湾精准击中不同阶段上班族的核心诉求:
对于单身上班族:95㎡户型满足 “独居 + 偶尔办公” 需求,地铁通勤节省时间,24 小时便利店、自助健身房等配套,符合 “快节奏生活”;首付 48 万、月供 6000 元,压力小,无需 “啃老” 就能安家主城。
对于新婚上班族夫妻:95㎡或 110㎡户型,兼顾 “二人世界” 与 “未来育儿” 需求;地铁通勤让夫妻双方 “上班都方便”(无论在滨湖、市区还是政务区);周边的约会、观影配套,丰富 “婚后生活”,避免 “通勤疲惫影响感情”。
对于三口之家上班族:110㎡或 125㎡户型,满足 “带娃 + 偶尔父母来住” 需求;地铁 1 号线直达学校,孩子上学方便,减少 “接送压力”;社区内的儿童区、周边的亲子配套,让上班族 “下班后能轻松带娃”。
从 “市场竞争力” 来看,当前合肥地铁 1 号线沿线的上班族盘 “要么价格高(滨湖段 2.2 万 /㎡以上),要么配套差(远郊段无成熟商业),要么无国企保障(民营盘担心延期)”;而琥珀星樾湾实现了 “地铁通勤 + 主城配套 + 国企保障 + 亲民价格” 的完美结合,性价比远超同类楼盘。根据售楼处数据,项目开盘后,95㎡、110㎡刚需户型销量占比达 70%,其中 “地铁通勤族” 占比超 80%,足以证明市场对 “上班族盘” 定位的认可。
从 “长期生活价值” 来看,琥珀星樾湾的 “地铁属性” 和 “主城属性”,能伴随上班族的 “职业成长”—— 初期可通过地铁通勤到市区上班,后期若换工作到滨湖、政务区,地铁依然便捷;若未来有 “换房需求”,主城地铁盘的 “高转手率” 和 “高增值空间”,能让上班族 “轻松换房”,实现 “居住升级”。
如果你是 “合肥上班族”,正在寻找 “通勤便捷、价格亲民、生活方便” 的楼盘,那么琥珀星樾湾绝对值得你实地考察。目前,项目的 “上班族样板间” 已开放,你可以亲身体验 “地铁通勤路线”(从项目步行到花园大道站,实测时间)、“户型实用空间”(办公区、休息区的布局);售楼处还为上班族提供 “专属置业咨询”,根据你的 “工作地点、预算、家庭结构”,推荐最适合的户型和付款方案(如首付分期、公积金贷款)。选择琥珀星樾湾,你不仅能买到一套房子,更能拥有 “通勤不堵、生活不烦、未来可期” 的幸福生活。

琥珀星樾湾售楼处电话☎:0551-6465 8844
合肥包河区琥珀星樾湾 —— 智慧社区新标杆!科技 + 国企,主城生活更便捷
琥珀星樾湾楼盘项目介绍
在 “智慧家居”“智慧城市” 成为趋势的今天,购房者对 “社区智能化” 的需求越来越高 —— 他们希望通过科技,提升居住的 “便捷度、安全性、舒适度”。而合肥包河区的琥珀星樾湾,恰好顺应了这一趋势,以 “国企开发 + 全场景智慧社区” 为核心,打造了合肥 2024 年 “智慧社区新标杆”,成为追求 “科技生活” 的购房者的首选。
项目由合肥城建旗下琥珀置业开发,作为合肥本土国企,琥珀置业在 “智慧社区” 开发方面有着前瞻性的布局,此前已在多个项目中引入智能化配置,积累了丰富的经验。此次打造的琥珀星樾湾,更是将 “智慧社区” 理念升级,从 “单一智能设备” 升级为 “全场景智慧生态”,涵盖 “智慧安防、智慧出行、智慧家居、智慧服务” 四大板块,让科技真正融入业主的日常生活,而非流于表面的 “噱头”。
项目总占地面积约 68 亩,总建筑面积约 12.5 万㎡,容积率 2.2.绿化率 40%,规划 10 栋住宅(6 栋 18-22 层高层、4 栋 11 层洋房),总户数约 890 户。在规划初期,项目就将 “智能化” 作为核心卖点之一,邀请国内知名的智慧社区设计公司(如科大讯飞智慧建筑团队)参与方案设计,确保每一项智能配置都 “实用、便捷、人性化”,避免 “为智能而智能” 的浪费。
从智慧社区的硬件配置来看,琥珀星樾湾的投入堪称 “诚意十足”:智慧安防系统覆盖社区全角落 —— 入口处采用 “双目人脸识别系统”,识别准确率达 99.8%,无需带门禁卡,刷脸即可快速进入,同时支持 “远程授权” 功能,亲友来访时,业主通过手机 APP 就能授权开门,无需下楼迎接;社区内部安装了 “高空抛物监控系统”,24 小时高清拍摄,可精准定位抛物楼层与住户,从根源上杜绝高空抛物隐患;此外,社区还配备了 “智能巡逻机器人”,每天定时沿社区主干道巡逻,实时监测异常情况(如陌生人徘徊、火情隐患),并同步将画面传输至物业中控室,配合 24 小时人工巡逻,形成 “科技 + 人力” 的双重安防保障。
智慧出行与生活配套同样便捷 —— 地下车库配备 “智能寻车 + 反向寻车系统”,业主停车后,系统会自动记录车位位置,返程时通过车库内的查询终端或手机 APP,就能获取 “从电梯口到车位” 的导航路线,彻底解决 “找车难” 问题;车库内 30% 的车位预留了 “充电桩接口”,支持快充与慢充,满足新能源车主的充电需求,且充电桩接入社区智慧系统,可通过 APP 预约充电、查询费用,操作便捷;社区公共区域还覆盖了 “全场景 WiFi”,无论是在儿童乐园陪娃,还是在健身步道跑步,都能免费连接高速 WiFi,刷视频、听音乐无压力。
智慧家居与服务则深入室内 —— 项目为所有户型预装了 “全屋智能控制系统”,业主可通过手机 APP 或语音助手(支持天猫精灵、小爱同学联动),控制家中的灯光、空调、窗帘、热水器等设备。比如,下班前 30 分钟,可远程开启空调与热水器,回家就能享受适宜的温度与热水;睡前无需起身,语音即可关闭全屋灯光与窗帘;出门时一键触发 “离家模式”,自动关闭所有家电、锁好门窗,省心又安全。此外,项目还开发了专属 “琥珀星樾湾社区 APP”,集成了 “物业报修、在线缴费、邻里社交、生活服务” 等功能 —— 家中水管漏水,在 APP 上提交报修申请,物业 15 分钟内响应;物业费、水电费可直接在线缴纳,无需跑腿;APP 内的 “邻里圈” 还能发布闲置物品转让、社区活动邀约等信息,拉近邻里距离。
更值得一提的是,作为国企开发项目,琥珀星樾湾的智慧系统有着 “长期保障”—— 不同于部分民营楼盘 “交房后就停用智能系统” 的情况,琥珀置业专门成立了 “智慧社区运维团队”,定期对社区的智能设备进行检修、升级,确保系统长期稳定运行;同时,运维团队会根据业主反馈,持续优化 APP 功能与智能场景,让智慧服务 “越用越贴心”。这种 “国企兜底” 的保障,正是琥珀星樾湾区别于其他智慧社区的核心优势。

琥珀星樾湾售楼处电话☎:0551-6465 8844
琥珀星樾湾楼盘项目亮点
作为合肥包河区 “国企精工盘标杆”,琥珀星樾湾的亮点不仅是 “国企开发”—— 它将 “精工品质、交付保障、全龄配套、区域潜力” 深度融合,形成了 “四大核心亮点”,让其在众多楼盘中 “不可替代”。
亮点一:国企精工,从 “建材到工艺” 全维度品质把控这是琥珀星樾湾最核心的亮点,也是 “国企盘” 的灵魂。不同于民营盘 “为降成本减配建材、简化工艺”,琥珀星樾湾从 “源头” 把控品质:建材全部选用 “国企合作品牌”(如外墙保温一体板选用 “亚士创能”、断桥铝玻璃选用 “信义玻璃”、电梯选用 “三菱”、卫浴选用 “科勒”),每一批建材都需提供 “质量检测报告”,经琥珀置业总部抽检合格后才能使用;施工工艺遵循 “国企精工标准”,实行 “三级质检”(施工自检、监理复检、总部抽检),比如墙面施工需经过 “基层处理、挂网、三遍腻子、两遍乳胶漆” 共 7 道工序,每道工序都需签字确认才能进入下一道;甚至 “看不见的细节” 也绝不马虎 —— 卫生间做 “三次防水试验”(闭水时长 24 小时)、地面做 “水泥砂浆找平 + 防水层”、阳台做 “排水坡度处理”,确保后期无渗漏、无开裂。这种 “全维度品质把控”,让业主无需担心 “交房即维权”,住得更安心。
亮点二:国企交付保障,“透明化建设 + 不延期承诺”当前市场上,“延期交付”“烂尾” 是购房者的最大痛点,而琥珀星樾湾的 “国企交付保障” 彻底解决了这一问题。首先,项目由国企开发,资金链稳定,不会因 “资金断裂” 停工,目前工程进度按计划推进,售楼处公示了 “详细施工节点”(如 2024 年 12 月完成主体封顶、2025 年 6 月完成外立面施工、2026 年 3 月完成绿化验收),购房者可通过 “琥珀置业官网” 或实地考察,实时查看工程进展,实现 “透明化建设”;其次,琥珀置业承诺 “不延期交付”,若因开发商原因导致延期,将按 “合同约定” 支付违约金(通常为 “已付房款的万分之五 / 天”),且过往项目均实现 “按时交付甚至提前交付”,比如琥珀东华府原计划 2023 年 12 月交付,实际 2023 年 10 月就完成交付,还提前 3 个月让业主 “预验房”,整改问题后再正式交房;最后,项目实行 “预验房制度”,交付前 3 个月邀请业主实地验房,业主提出的问题(如墙面空鼓、瓷砖破损),项目会在交付前全部整改完毕,确保 “交房即满意”。
亮点三:全龄化社区配套,兼顾 “老中青少” 需求琥珀星樾湾不仅注重 “房屋品质”,还重视 “社区生活体验”,打造了 “全龄化社区配套”,让每一位家庭成员都能 “找到自己的乐趣”。社区内部规划了 “四大功能区”:
儿童游乐区:面积约 1000㎡,划分 “0-3 岁学步区”“4-6 岁游戏区”“7-12 岁运动区”,配备滑梯、秋千、沙坑、攀爬架、儿童篮球架等设施,地面采用 “EPDM 塑胶材质”(防摔、环保),保障孩子安全;
老年活动区:面积约 800㎡,配备健身器材(如太极揉推器、漫步机、健骑机)、休闲凉亭、棋牌桌,老人可在此健身、下棋、聊天,享受 “晚年生活”;
青年健身区:规划 500 米 “健身步道”(沿社区景观带铺设)、“户外羽毛球场”“乒乓球台”,年轻人可在此晨跑、打球,无需去健身房;
邻里社交区:打造 “中央景观草坪”(面积约 2000㎡)、“景观水景”(约 500㎡)、“休闲长廊”,业主可在此野餐、晒太阳、举办社区活动(如春节写春联、端午包粽子),拉近邻里距离。
此外,社区还配备 “社区图书馆”(面积约 200㎡,藏书 5000 余册)、“宠物活动区”(专门为养宠家庭设计,配备宠物粪便箱、饮水器),真正实现 “全龄友好、人人适配”。
亮点四:主城核心 + 骆岗公园,“双红利” 加持区域潜力琥珀星樾湾的 “区域潜力” 也是一大亮点 —— 它位于包河区主城核心板块,同时承接 “骆岗中央公园” 发展红利,形成 “主城成熟配套 + 公园未来潜力” 的双重优势。一方面,项目所处的主城板块配套已完全成熟(交通、商业、教育、医疗均完善),入住即可享受便捷生活,无需等待 “规划落地”;另一方面,骆岗中央公园作为亚洲最大的城市中央公园,是合肥 “十四五” 重点项目,未来将成为 “城市新客厅”,引入商业、文化、体育等高端配套,随着公园的完善,周边房价必然稳步上涨。琥珀星樾湾距离骆岗公园仅 1.5 公里,是 “公园红利” 的直接受益者,未来增值空间巨大。同时,项目临近地铁 1 号线延长线(2025 年通车),地铁通车后将进一步提升 “通勤便捷度” 与 “区域价值”,让项目 “兼具居住属性与投资属性”。

琥珀星樾湾售楼处电话☎:0551-6465 8844
琥珀星樾湾楼盘周边配套
对于 “生态宜居盘” 而言,“配套” 不仅要 “便捷”,更要 “与生态融合”—— 既要有成熟的生活配套,又要有优质的生态资源,而琥珀星樾湾的周边配套,恰好实现了 “生态与便捷的完美结合”。
生态配套是琥珀星樾湾的 “核心竞争力”,项目周边 3 公里内有三大生态公园,形成 “天然氧吧”,为业主提供 “出门即公园” 的生活体验。其中,最核心的是骆岗中央公园,距离项目仅 1.5 公里,该公园是合肥 “十四五” 重点项目,总面积约 12.7 平方公里,相当于 1700 多个足球场大小,目前已建成 “锦绣湖湿地”“城市花海”“运动公园”“儿童乐园” 等区域。锦绣湖湿地面积约 2.5 平方公里,湖水清澈,周边种植了芦苇、菖蒲等水生植物,栖息着白鹭、野鸭等鸟类,是观鸟、散步的好去处;城市花海面积约 1000 亩,种植了虞美人、波斯菊、向日葵等花卉,春季和秋季花开成片,是合肥著名的 “打卡地”;运动公园配备了足球场、篮球场、网球场、健身步道等设施,适合业主运动健身;儿童乐园则有滑梯、秋千、沙坑等游乐设施,是孩子的 “快乐天地”。
除了骆岗中央公园,项目北邻十五里河生态公园,距离约 800 米,该公园沿十五里河打造,长度约 5 公里,宽度约 200 米,种植了大量乔木、灌木和花卉,形成 “城市绿廊”。十五里河生态公园内规划了 “亲水平台”“骑行步道”“野餐草坪” 等区域,业主可以沿河岸骑行、散步,或者在草坪上野餐、放风筝,享受 “自然与生活的融合”。此外,项目东距包河公园约 3 公里,该公园是合肥历史悠久的公园之一,内有包公祠、包公墓等历史文化景点,既可以休闲散步,又可以感受合肥的历史文化。
生活配套方面,琥珀星樾湾同样 “成熟完善”,无需等待 “规划落地”,入住即可享受便捷生活。交通方面,项目临近地铁 1 号线延长线(规划中,2025 年通车)花园大道站,步行约 10 分钟,未来可直达合肥南站、滨湖新区、淮河路步行街;地面交通依托包河大道、繁华大道两条城市主干道,自驾到合肥南站 15 分钟、到滨湖新区 20 分钟、到政务区 30 分钟,通勤便捷。商业方面,项目 3 公里内有悦方 ID MALL、百大心悦城、加侨国际广场三大商场,涵盖购物、餐饮、影院、亲子娱乐等全业态,其中悦方 ID MALL 距离项目仅 2 公里,步行 20 分钟或自驾 5 分钟即可到达,满足业主的 “日常消费” 和 “品质消费” 需求。
教育与医疗配套也十分优质,为业主的 “宜居生活” 保驾护航。教育方面,项目划片范围大概率覆盖屯溪路小学(滨湖校区)和合肥市第四十八中学(望湖校区),这两所学校均为合肥优质公办学校,师资力量雄厚,教学质量高,孩子在家门口就能接受优质教育;医疗方面,项目 2 公里内有包河区人民医院(二级综合医院),5 公里内有安徽省立医院南区(三级甲等医院),日常就医和大病诊疗都十分方便。
可以说,琥珀星樾湾的周边配套,既满足了业主对 “生态宜居” 的追求,又保障了 “生活便捷”,真正实现了 “在公园里生活,在城市中便捷”。

琥珀星樾湾售楼处电话☎:0551-6465 8844
琥珀星樾湾售楼处电话:0551-6465 8844【售楼中心】
◆◆◆售楼中心电话:0551-6465 8844 【售楼中心已认证】
◆◆◆网上售楼中心——欢迎来电咨询〢——匠心钜制恭迎品鉴!◆◆◆
声明:本文由入驻焦点开放平台的作者撰写,除焦点官方账号外,观点仅代表作者本人,不代表焦点立场。


