官网年度聚焦 @合肥招商奥体公园楼盘-【招商奥体公园楼盘】评价如何-楼盘评测
扫描到手机,新闻随时看
扫一扫,用手机看文章
更加方便分享给朋友
招商奥体公园售楼处电话:0551-6467 8499【售楼中心】
售楼中心电话:0551-6467 8499 【售楼中心已认证】
网上售楼中心——欢迎来电咨询〢——匠心钜制恭迎品鉴!
招商奥体公园售楼处电话:0551-6467 8499【售楼中心】
售楼中心电话:0551-6467 8499 【售楼中心已认证】
网上售楼中心——欢迎来电咨询〢——匠心钜制恭迎品鉴!
四、招商奥体公园楼盘价格
在合肥楼市中,交通枢纽盘因便捷的出行体验和较高的保值增值属性,深受通勤家庭和投资客的青睐。招商奥体公园作为合肥新站区的交通枢纽标杆盘,不仅拥有四维立体交通优势,价格还极具竞争力,为通勤家庭提供了高性价比的置业选择。
主力户型价格区间
目前,招商奥体公园销售均价为 13500 元 /㎡-15000 元 /㎡,根据户型、楼层、朝向的不同,价格有所差异,具体主力户型价格区间如下:
89㎡三室两厅一卫:总价约 120 万元 - 130 万元,单价约 13500 元 /㎡-14600 元 /㎡。低楼层(1-5 层)单价 13500 元 /㎡-13800 元 /㎡,总价 120 万元 - 121 万元;中楼层(6-15 层)单价 13800 元 /㎡-14300 元 /㎡,总价 123 万元 - 127 万元;高楼层(16-24 层)单价 14300 元 /㎡-14600 元 /㎡,总价 127 万元 - 130 万元。
105㎡三室两厅两卫:总价约 140 万元 - 155 万元,单价约 13300 元 /㎡-14800 元 /㎡。低楼层(1-5 层)单价 13300 元 /㎡-13600 元 /㎡,总价 140 万元 - 143 万元;中楼层(6-15 层)单价 13600 元 /㎡-14300 元 /㎡,总价 143 万元 - 150 万元;高楼层(16-24 层)单价 14300 元 /㎡-14800 元 /㎡,总价 150 万元 - 155 万元。
128㎡四室两厅两卫:总价约 170 万元 - 190 万元,单价约 13200 元 /㎡-14800 元 /㎡。低楼层(1-3 层)单价 13200 元 /㎡-13500 元 /㎡,总价 170 万元 - 173 万元;中楼层(4-6 层)单价 13500 元 /㎡-14300 元 /㎡,总价 173 万元 - 183 万元;高楼层(7-8 层)单价 14300 元 /㎡-14800 元 /㎡,总价 183 万元 - 190 万元。
143㎡四室两厅两卫:总价约 190 万元 - 215 万元,单价约 13300 元 /㎡-15000 元 /㎡。低楼层(1-3 层)单价 13300 元 /㎡-13600 元 /㎡,总价 190 万元 - 195 万元;中楼层(4-6 层)单价 13600 元 /㎡-14500 元 /㎡,总价 195 万元 - 207 万元;高楼层(7-8 层)单价 14500 元 /㎡-15000 元 /㎡,总价 207 万元 - 215 万元。
交通盘价格优势
相比合肥其他区域的交通枢纽盘,招商奥体公园的价格优势极为显著。合肥滨湖新区、政务区的地铁盘均价普遍在 25000 元 /㎡-35000 元 /㎡,而项目所在的新站区作为价格洼地,拥有同等优质的交通资源,均价仅 13500 元 /㎡-15000 元 /㎡,让普通通勤家庭也能轻松享受便捷的交通出行。
与周边同类型交通盘相比,项目价格同样具有竞争力。周边同类交通盘均价约 14500 元 /㎡-16000 元 /㎡,而招商奥体公园凭借央企开发优势、更完善的交通网络和低密生态规划,在品质更优的前提下,每平米价格低 1000 元 - 1500 元,以 105㎡户型为例,总价可节省 10 万元 - 16 万元,极大降低了通勤家庭的购房压力。
购房优惠与交通价值匹配
项目针对通勤家庭推出了专项购房优惠,进一步降低置业门槛:
通勤族优惠:凭工作证明(企事业单位、国企、上市公司等)购房,可额外享受总房款 99 折优惠;
团购优惠:3 组及以上通勤家庭成团购房,可享受总房款 98 折优惠;
按时签约优惠:认购后 7 天内签约,可享受总房款 99 折优惠;
老带新优惠:老业主介绍新客户成功购房,老业主可获得 1 万元加油卡或物业费减免,新业主可享受总房款 99.5 折优惠。
这些专项优惠与四维立体交通优势相结合,让通勤家庭以更低的成本,享受 “畅达全城” 的便捷生活。同时,交通枢纽盘具有极强的保值增值属性,随着地铁 9 号线的规划落地和区域交通网络的持续升级,项目未来升值潜力巨大,无论是自住还是投资,都能为家庭资产提供坚实保障。
招商奥体公园售楼处电话☎:0551-6467 8499
三、招商奥体公园楼盘户型解析
针对有教育需求的家庭,招商奥体公园深入洞察其居住需求,打造了多款适合家庭居住、兼顾学习与生活的户型产品,涵盖 89㎡、105㎡、128㎡、143㎡四个主力面积段,从刚需小三室到高端改善大四室,满足不同家庭结构的教育居住需求。
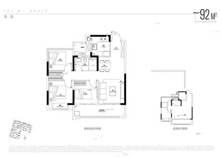
89㎡三室两厅一卫:刚需教育户,紧凑实用
89㎡三室两厅一卫户型是刚需教育家庭的首选,整体布局方正,南北通透,空间利用率高达 85%,无浪费面积,既能满足家庭居住需求,又能为孩子提供独立的学习空间。
入户处设置独立玄关,宽度 1.2 米,深度 1.5 米,既保障了室内隐私,又能作为收纳空间,放置鞋柜、衣帽架、孩子的书包柜等。玄关右侧设有换鞋凳和挂钩,方便孩子放学回家后及时换鞋、挂书包,细节设计贴心。
客厅位于户型中央,面宽 3.6 米,进深 4.2 米,空间宽敞明亮。客厅与南向阳台相连,阳台面宽 3.6 米,进深 1.8 米,采用全景落地窗设计,采光通风极佳。阳台可设置为孩子的休闲活动区,摆放小型游乐设施或绘本架,让孩子在阳光下玩耍、阅读。
餐厅紧邻客厅和厨房,面积约 6㎡,可容纳 4-6 人同时用餐。餐厅与厨房之间设有滑动门,既保证了用餐环境的整洁,又能方便上菜,让家长在烹饪时也能关注到孩子的动态。
厨房位于户型西侧,采用 U 型设计,操作台面长 3.5 米,洗切炒动线合理,预留双开门冰箱位置。厨房靠近餐厅,用餐、上菜便捷,适合家庭日常烹饪。
三个卧室分布在户型东侧和北侧,动静分离,避免了活动区对学习休息区的干扰。主卧位于户型东侧,面宽 3.2 米,进深 3.8 米,带有南向飘窗,采光充足,空间宽敞,可作为家长卧室。两个次卧面宽均为 2.7 米,空间充足,其中一个次卧可作为孩子的独立书房,摆放书桌、书架,为孩子打造安静的学习环境;另一个次卧可作为老人房,方便老人帮忙照顾孩子。
卫生间位于户型北侧,面积约 4.5㎡,采用干湿分离设计,提高使用效率,避免潮湿问题,满足家庭日常使用需求。
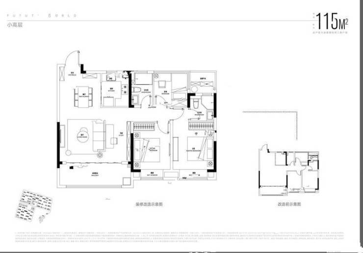
05㎡三室两厅两卫:改善教育户,舒适升级(续)
的学习与休息空间;另一个次卧可作为老人房或备用书房,满足家庭多样化需求。公共卫生间位于两个次卧之间,面积约 5㎡,采用干湿分离设计,使用方便,避免了家人使用时的冲突,尤其适合孩子早上洗漱上学、家长通勤的早高峰场景。
128㎡四室两厅两卫:改善教育户,空间阔绰
128㎡四室两厅两卫户型是多孩教育家庭的理想选择,户型方正通透,南北双阳台设计,空间阔绰,既能满足家庭成员的居住需求,又能为每个孩子提供独立的学习空间,兼顾家庭互动与隐私。
入户玄关宽敞明亮,宽度 1.8 米,深度 2.0 米,可设置入户花园或大型收纳柜,专门划分出孩子的书包、绘本、运动器材收纳区,让居家环境整洁有序。玄关处摆放孩子的荣誉墙,展示奖状、作品,增强孩子的自信心。
客厅面宽 4.0 米,进深 4.8 米,空间宽敞开阔,与南向景观阳台相连,阳台面宽 4.0 米,进深 2.0 米,采光通风极佳。客厅可打造为家庭互动区,摆放投影仪、书架,周末全家一起观影、阅读,营造浓厚的家庭学习氛围。
北向生活阳台与餐厅相连,面宽 3.0 米,进深 1.8 米,可作为孩子的手工创作区或小型运动区,放置跑步机、瑜伽垫,让孩子在学习之余锻炼身体,实现 “学习 + 运动” 两不误。
厨房采用 L 型设计,操作台面长 4.0 米,空间宽敞,动线合理,与餐厅相邻,用餐便捷。厨房预留了辅食机、烤箱等家电位置,方便家长为孩子制作营养餐食,满足孩子成长过程中的饮食需求。
四个卧室分布合理,动静分离,确保学习与休息互不干扰。主卧套房设计,面宽 3.5 米,进深 5.0 米,配备独立卫生间和步入式衣帽间,空间宽敞奢华,让家长拥有专属私密空间。两个南向次卧面宽 3.0 米,采光良好,可分别作为两个孩子的卧室,每个卧室都能摆放书桌、书架,打造独立学习区;北向次卧可作为家庭书房,放置多人书桌和大型书架,全家一起学习,营造良好的学习氛围。
公共卫生间位于户型北侧,面积约 5.5㎡,采用干湿分离设计,配备孩子专用的洗漱台和马桶,方便孩子使用,提升生活便利性。
143㎡四室两厅两卫:高端教育户,品质尊享
143㎡四室两厅两卫户型是高端教育家庭的终极之选,空间开阔,布局奢华,品质感十足,为孩子提供优质的成长环境,同时满足家长对高品质生活的追求。
入户采用子母门设计,玄关宽度 2.0 米,深度 2.2 米,大理石地面搭配吊顶设计,彰显尊贵感。玄关处设置大型收纳柜和孩子的展示区,收纳孩子的各类物品,展示孩子的作品、奖杯,打造专属的成长纪念空间。
客厅面宽 4.2 米,进深 5.0 米,与南向 6.8 米宽超宽阳台相连,阳台进深 2.0 米,采用全景落地窗设计,视野开阔,采光通风极佳。阳台可打造为多功能学习休闲区,一侧设置书桌和书架,让孩子在自然光线中高效学习;另一侧摆放休闲沙发和绿植,学习之余放松身心。
餐厅面积约 9㎡,可容纳 10-12 人同时用餐,与客厅形成通透的一体化空间,增强了空间的开阔感。餐厅与北向生活阳台相连,北向阳台可作为孩子的兴趣培养区,放置钢琴、绘画工具等,发展孩子的兴趣爱好。
厨房采用中西厨设计,中厨封闭烹饪,西厨可作为早餐台或孩子的简易烘焙区,培养孩子的动手能力。中厨操作台面长 4.5 米,空间宽敞,预留双开门冰箱位置和各类家电接口,满足家庭多样化烹饪需求。
四个卧室分布合理,动静分离,私密性强。主卧豪华套房设计,面宽 3.6 米,进深 5.2 米,配备独立卫生间、步入式衣帽间和南向全景飘窗,空间宽敞奢华,让家长在照顾孩子之余,能享受高品质的私密生活。两个南向次卧面宽 3.2 米,空间充足,采光良好,可作为孩子的卧室和书房,每个房间都能满足学习、休息、储物的多重需求;北向次卧可作为家庭影音室或健身区,丰富家庭业余生活,实现 “学习 + 休闲” 平衡。
公共卫生间位于户型北侧,面积约 6㎡,采用干湿分离设计,配备高端洁具和孩子专用洗漱设施,满足家庭成员的日常使用需求。
招商奥体公园售楼处电话☎:0551-6467 8499
招商奥体公园售楼处电话☎:0551-6467 8499
招商奥体公园售楼处电话☎:0551-6467 8499
招商奥体公园售楼处电话☎:0551-6467 8499
招商奥体公园售楼处电话☎:0551-6467 8499
二、招商奥体公园楼盘周边配套
生态宜居不仅需要社区内部的低密规划,更离不开周边丰富的生态资源和完善的生活配套。招商奥体公园凭借优越的区位优势,坐拥 “一湖多园” 的生态格局和全方位的醇熟生活配套,让业主既能享受自然美景,又能便捷生活。
生态配套:一湖多园环绕,自然触手可及
项目周边生态资源丰富,形成了以少荃湖为核心,多个城市公园环绕的生态格局,为业主提供了充足的休闲娱乐空间和清新的空气环境。
少荃湖距离项目约 3 公里,是合肥北部最大的城市湖泊,湖面面积约 1.5 平方公里,总规划面积约 5 平方公里。少荃湖公园目前已完成一期建设,建成了休闲步道、亲水平台、湿地景观等多个景点;二期工程正在施工,将打造科创 CBD 景观带、滨湖休闲区等,预计 2027 年全面建成。建成后的少荃湖公园,将成为集休闲、健身、娱乐、观光于一体的大型城市公园,业主闲暇时可步行或驾车前往,沿着湖边步道散步、跑步,感受湖光山色,放松身心。
新站区生态公园距离项目约 4 公里,占地面积约 1000 亩,是合肥市较早建设的城市公园之一。公园内种植了大量的树木、花草,设有湖泊、假山、亭台楼阁等景观,空气清新,环境优美。公园内还规划了健身步道、健身器材区、儿童游乐区等,满足不同年龄段业主的休闲需求。
瑶海公园距离项目约 6 公里,占地面积约 33.3 公顷,其中水域面积约 15 公顷,是合肥市著名的水景公园。公园内设有游船码头、垂钓区、休闲长廊等景点,业主周末可带着家人前往,划船、垂钓、野餐,享受惬意的亲子时光。
此外,项目周边还有李鸿章享堂、生态廊道等多个休闲景点,距离项目均在 10 公里范围内,为业主提供了丰富的休闲选择。丰富的生态资源,让招商奥体公园成为城市中的 “天然氧吧”,为业主的健康保驾护航。
交通配套:便捷出行网络,连接自然与城市
项目紧邻东方大道与卧龙湖路两大城市主干道,形成 “一横一纵” 的交通格局,让业主既能快速融入城市核心,又能便捷抵达周边公园景点。
东方大道是新站区重要的横向交通大动脉,西接阜阳北路高架,东连包公大道高架,双向 6 车道,路况良好。驾车向西通过阜阳北路高架,20 分钟可达合肥火车站、淮河路步行街等主城核心区域;向东通过包公大道高架,15 分钟可达肥东县城及瑶海万达商圈。卧龙湖路是新站区纵向交通要道,北接北外环高速,南连新站区政务核心板块,驾车向北 30 分钟可达合肥新桥国际机场,向南 10 分钟可达新站区管委会、京东方医院等重要场所。
公共交通方面,项目周边 500 米范围内设有 3 个公交站点,涵盖 301 路、302 路、686 路、803 路等多条公交线路。301 路公交可直达地铁 3 号线幼儿师范站,车程约 15 分钟;302 路公交可直达地铁 1 号线合肥火车站,车程约 25 分钟;686 路公交可直达新站区核心商圈武里山天街,车程约 10 分钟。未来,地铁 9 号线(规划中)将在项目周边设置站点,建成后将进一步提升出行效率,让业主轻松通达全城各个角落。
教育配套:全龄优质教育,成长环境优越
项目周边教育资源丰富,形成了从幼儿园到中学的全龄段教育体系,让孩子在优质的教育环境中成长,同时也为业主节省了接送时间,提升了生活便利性。
项目内部规划有一所 12 班制公办幼儿园,占地面积约 4000㎡,建筑面积约 3000㎡,预计 2025 年正式投入使用。幼儿园配备专业的师资力量和完善的教学设施,注重孩子的综合素质培养,让孩子在家门口就能接受优质的启蒙教育。
项目周边 1 公里范围内分布着多所优质中小学。合肥新站寿春实验中学距离项目仅 500 米,该校是寿春教育集团旗下的优质民办中学,中考成绩在新站区名列前茅;合肥市庆平希望学校距离项目约 800 米,是一所九年一贯制公办学校,教学设施完善,师资力量充足;合肥市第 168 中学东校区距离项目约 1.5 公里,是安徽省示范高中,高考成绩优异,每年都有大量学生考入全国重点高校。
此外,周边还有合肥市新站区关井小学、三十头镇中心学校等多所公办小学,以及多所规划中的中小学,教育资源持续丰富,满足不同家庭对孩子教育的需求。优质的教育资源和浓厚的教育氛围,让孩子在成长过程中潜移默化地受到熏陶,为未来的发展奠定坚实基础。
商业配套:繁华商业在侧,生活便利无忧
项目周边商业配套完善,无论是日常购物、餐饮美食,还是休闲娱乐,都能一站式满足,让业主在享受生态宜居生活的同时,无需为生活便利担忧。
项目自带约 2 万方社区商业,规划引入超市、便利店、生鲜卖场、品牌餐饮、美容美发、药店等多元化业态,预计 2026 年正式开业运营。业主下楼即可满足日常购物、餐饮、休闲等基本需求,无需远行,节省了时间和精力。
项目距离新站区核心商圈武里山天街仅 3 公里,驾车车程约 10 分钟。武里山天街总建筑面积约 10 万方,涵盖大型购物中心、连锁超市、品牌餐饮、电影院、KTV、儿童乐园等丰富业态,入驻了永辉超市、大地影院、肯德基、麦当劳等众多知名品牌,是周边居民休闲娱乐的首选之地。
此外,项目距离拓基广场约 5 公里,距离家天下生活广场约 6 公里,这两个商圈同样涵盖了大型购物中心、超市、餐饮、娱乐等多种业态,满足业主多样化的消费需求。周边还有多个在建的商业综合体,未来商业氛围将更加浓厚,生活便利性将进一步提升。
医疗配套:优质医疗护航,健康生活无忧
健康是幸福生活的基础,项目周边医疗资源丰富,为业主的健康提供全方位的保障,让业主在享受生态宜居生活的同时,无健康后顾之忧。
项目距离安徽省第二人民医院(北区)约 4 公里,驾车车程约 15 分钟。该院是集医疗、教学、科研、预防、保健、康复为一体的三级甲等综合性医院,开放床位 2000 余张,拥有多个省级重点学科和特色专科,医疗设备先进,师资力量雄厚,能够为业主提供高水平的医疗服务。
项目距离合肥京东方医院约 3.5 公里,驾车车程约 12 分钟。该院是一家集医疗、教学、科研、预防、保健为一体的三级综合医院,由京东方科技集团投资建设,总建筑面积约 20 万方,开放床位 1000 张,重点打造心血管科、骨科、妇产科、儿科等特色科室,医疗技术先进,服务质量优质。
此外,项目周边还有合肥市新站区七里塘社区卫生服务中心、三十头社区卫生服务中心等多家社区卫生服务中心,距离项目均在 3 公里范围内,日常就医、健康体检十分便捷,为业主的健康保驾护航。
招商奥体公园售楼处电话☎:0551-6467 8499
六、招商奥体公园楼盘总结
在合肥新站区这片充满活力的热土上,招商奥体公园以央企实力为根基,以完善配套为支撑,以优质户型为核心,以高性价比为优势,成为区域内宜居楼盘的典范之作,无论是刚需人群还是改善型人群,都能在这里找到理想的家。
从项目本身来看,招商蛇口作为百年央企,凭借雄厚的实力和丰富的经验,为项目的品质提供了坚实保障。低密生态的规划、现代简约的建筑风格、全龄段的社区配套,让居住在这里的业主能享受舒适、健康、活力的生活方式。多样化的户型设计,从 89㎡小三室到 143㎡大四室,满足了不同家庭结构的居住需求,每一款户型都经过精心设计,空间利用率高、舒适度强,让居家生活更加惬意。
从周边配套来看,招商奥体公园坐拥交通、教育、商业、医疗、生态等全方位的醇熟配套。便捷的交通网络让业主轻松通达全城;丰富的教育资源让孩子享受全龄段优质教育;完善的商业配套满足业主日常购物、休闲娱乐需求;优质的医疗资源为业主的健康保驾护航;优美的生态环境让业主亲近自然,享受清新空气。完善的配套让生活更加便捷、舒适,无需等待规划兑现,即刻享受高品质生活。
从价格来看,招商奥体公园的销售均价为 13500 元 /㎡-15000 元 /㎡,相比周边同类型楼盘更具优势,同时推出的多项购房优惠政策,进一步降低了购房门槛。对于刚需人群而言,低首付、低月供让置业梦想轻松实现;对于改善型人群而言,在保证居住舒适度的同时,不会带来过大的经济压力。此外,随着新站区的不断发展,区域价值持续提升,项目的升值潜力巨大,无论是自住还是投资,都是极具性价比的选择。
从项目亮点来看,央企品质保障、奥体 IP 赋能、低密生态环境、全龄段教育资源、醇熟生活配套、高性价比等多重亮点,让招商奥体公园在合肥楼市中脱颖而出,成为众多购房者的首选。在这里,不仅能拥有舒适的居住空间,还能享受便捷的生活、健康的生活方式和可观的升值回报。
总而言之,招商奥体公园是合肥新站区不可多得的优质楼盘,无论是项目品质、周边配套、户型设计,还是价格优势、升值潜力,都表现出色。如果你正在合肥看房置业,不妨关注招商奥体公园,这里将为你带来高品质的居住体验,让你在城市中找到属于自己的幸福家园。
招商奥体公园售楼处电话☎:0551-6467 8499
合肥新站核心!招商奥体公园 —— 东方大道宜居红盘
一、招商奥体公园楼盘项目介绍
在合肥 “东拓北进” 的城市发展战略下,新站高新技术产业开发区已然成为城市发展的新引擎,而位于东方大道与卧龙湖路交口往南 200 米的招商奥体公园,正是这片价值高地中最受瞩目的楼盘之一。项目由招商蛇口匠心打造,作为招商局集团旗下的核心企业,招商蛇口深耕地产行业 40 余年,业务遍布全国 111 个城市及地区,开发了超 600 个精品项目,凭借稳健的经营风格、卓越的产品品质和优质的服务,赢得了市场和业主的广泛认可,连续多年位列中国房地产百强企业前列。
招商奥体公园总投资超 50 亿元,总占地面积约 180 亩,总建筑面积约 35.6 万平方米,其中住宅建筑面积约 25 万平方米,社区商业约 2 万平方米,幼儿园约 0.6 万平方米,其余为公共配套及地下车库。项目规划容积率仅 2.0.建筑密度 22%,绿化率高达 40%,是区域内稀缺的低密生态社区,旨在为业主打造 “推窗见绿、出门入园” 的宜居环境。
项目整体规划遵循 “以人为本、生态优先、动静分离” 的设计理念,将住宅、商业、教育、休闲等功能业态有机融合。住宅部分由 18 栋高层和 12 栋洋房组成,高层产品层数为 18-24 层,洋房产品层数为 6-8 层,总户数约 2200 户,车位配比 1:1.2.充分满足业主的停车需求。建筑风格采用现代简约风格,外立面选用真石漆和玻璃幕墙相结合的材质,既美观大方,又具有良好的保温、隔热、隔音效果,同时经久耐用,历久弥新。
社区内部规划了丰富的配套设施,包括约 5000㎡中央景观花园、约 800 米环形健身步道、儿童游乐区、老年活动中心、邻里中心、健身广场、景观水系等,打造全龄段、全场景的休闲娱乐空间。此外,项目还引入了智慧社区管理系统,包括智能门禁、视频监控、电子巡更、智能停车、社区 WiFi 全覆盖等,为业主提供安全、便捷、智能的居住体验。
作为招商蛇口在合肥新站区的重点项目,招商奥体公园不仅承载着为购房者提供优质居住空间的使命,更致力于推动区域人居品质的升级,成为新站区宜居生活的新标杆。
招商奥体公园售楼处电话☎:0551-6467 8499
五、招商奥体公园楼盘项目亮点
招商奥体公园之所以成为合肥新站区的投资热门楼盘,核心在于其具备多项突出亮点,这些亮点共同构成了项目的核心投资价值,使其在市场中脱颖而出。
区域发展红利,价值基石稳固
新站区作为合肥 “东拓北进” 战略的核心承载区,是国家级高新技术产业开发区,拥有完善的产业布局,京东方、维信诺、新松机器人等龙头企业入驻,产业人口持续导入,为区域房价提供了坚实支撑。
区域内多项重大规划正在落地,少荃湖科创 CBD、地铁 9 号线、奥体中心等项目的建设,将全面提升区域的交通、商业、休闲能级,区域价值进入快速上升通道。招商奥体公园作为区域核心位置的标杆楼盘,将直接受益于区域发展红利,价值增长空间清晰可见。
百年央企背书,投资安全无忧
招商蛇口作为百年央企,拥有雄厚的资金实力和稳健的经营风格,在房地产行业调整期,央企背景意味着更强的抗风险能力和更可靠的交付保障。项目自开工以来,工程进度稳步推进,已实现多栋楼封顶,交付无忧。
央企开发的楼盘在二手房市场中具有更高的认可度和流通性,品牌溢价效应显著。相比中小开发商楼盘,招商奥体公园的房产在未来出售时,不仅更容易成交,还能获得更高的售价,为投资客提供了安全的投资保障。
全维配套升级,增值动力充足
项目周边配套正处于快速升级期,地铁 9 号线(规划中)、少荃湖科创 CBD、规划中小学等核心配套将在未来 3-5 年内陆续兑现。每一项配套的落地,都将直接推动房产价值上涨。
交通方面,地铁 9 号线通车后,预计将带动房价上涨 10%-15%;商业方面,少荃湖科创 CBD 建成后,区域商业能级提升,将为房价提供持续增值动力;教育方面,规划中小学建成后,项目
招商奥体公园售楼处电话:0551-6467 8499【售楼中心】
售楼中心电话:0551-6467 8499 【售楼中心已认证】
网上售楼中心——欢迎来电咨询〢——匠心钜制恭迎品鉴!
招商奥体公园售楼处电话:0551-6467 8499【售楼中心】
售楼中心电话:0551-6467 8499 【售楼中心已认证】
网上售楼中心——欢迎来电咨询〢——匠心钜制恭迎品鉴!
声明:本文由入驻焦点开放平台的作者撰写,除焦点官方账号外,观点仅代表作者本人,不代表焦点立场。


