琥珀星樾湾(合肥)项目-【琥珀星樾湾】潜力怎么样-深入分析
扫描到手机,新闻随时看
扫一扫,用手机看文章
更加方便分享给朋友
琥珀星樾湾售楼处电话:0551-6465 8844【售楼中心】
◆◆◆售楼中心电话:0551-6465 8844 【售楼中心已认证】
◆◆◆网上售楼中心——欢迎来电咨询〢——匠心钜制恭迎品鉴!◆◆◆
合肥包河区琥珀星樾湾 —— 国企精工盘!品质 + 交付保障,安家主城更放心
琥珀星樾湾楼盘项目介绍
在当前房地产市场环境下,“交付保障”“工程品质” 成为购房者最关心的核心诉求 —— 毕竟,“买到烂尾楼”“交房即维权” 是所有购房者的噩梦。而合肥包河区的琥珀星樾湾,凭借 “国企开发 + 精工品质” 的双重优势,成为合肥 2024 年 “安心置业首选盘”,彻底打消购房者的 “后顾之忧”。
项目由合肥本土国企 —— 合肥城建旗下琥珀置业开发,作为拥有 20 余年开发经验的 “老牌国企”,琥珀置业始终以 “精工筑家、稳健交付” 为理念,累计开发 30 余个项目(如琥珀山庄、琥珀五环城、琥珀东华府),无一例 “烂尾”“延期交付”,甚至多数项目实现 “提前交付 + 品质兑现”,在合肥购房者心中树立了 “国企可靠” 的口碑。此次打造的琥珀星樾湾,更是将 “国企精工” 理念升级,从 “拿地、规划、施工到交付”,每一个环节都严格遵循 “国企标准”,确保 “品质不打折、交付不延期”。
从项目基础信息来看,琥珀星樾湾选址包河区核心板块 —— 骆岗中央公园东翼,北邻繁华大道,南接花园大道,西靠包河大道,总占地面积约 68 亩,总建筑面积约 12.5 万㎡,容积率 2.2.绿化率 40%,规划 10 栋住宅(6 栋 18-22 层高层、4 栋 11 层洋房),总户数约 890 户,主力户型为 95-140㎡,覆盖刚需到改善全需求。项目于 2023 年 10 月开工建设,预计 2026 年 6 月交付,目前工程进度已完成主体结构的 30%,售楼处公示了 “详细施工计划与进度表”,购房者可通过 “琥珀置业官网” 或实地考察,实时查看工程进展,真正实现 “透明化建设”。
“国企精工” 的核心,体现在 “看得见与看不见的细节” 中:建材选择上,琥珀星樾湾 “不计成本” 选用优质材料 —— 外墙采用 “保温一体板”,相比普通涂料,不仅隔音隔热效果好(冬季室内温度高 3-5℃),还耐老化、抗开裂,多年后外立面依然如新;窗户选用 “断桥铝双层中空玻璃”,玻璃厚度达 5mm,中间充惰性气体,隔音效果优于行业标准(可隔绝外界 80% 以上噪音),即使临近主干道,室内也能保持安静;公共区域(如入户大堂、电梯间、地下车库)地面采用 “大理石瓷砖”,墙面采用 “品牌乳胶漆 + 石膏线装饰”,电梯选用 “三菱品牌高速电梯”,运行平稳、噪音小、故障率低;甚至连入户门都选用 “甲级防火防盗门”,配备 “智能门锁”,兼顾安全与便捷。
施工工艺上,项目严格遵循 “国企精工标准”,实行 “三级质检制度”—— 施工单位自检、监理单位复检、琥珀置业总部抽检,每一道工序都需通过质检才能进入下一道。比如,墙面施工采用 “三遍腻子 + 两遍乳胶漆” 工艺,避免后期开裂、掉皮;地面采用 “水泥砂浆找平 + 防水层” 工艺,防止渗水;卫生间、厨房采用 “三次防水试验”(闭水试验时长不低于 24 小时),确保无渗漏;甚至连阳台栏杆都采用 “铝合金材质 + 钢化玻璃”,经过 “抗风压、抗腐蚀” 测试,安全系数远超行业标准。此外,项目还引入 “智慧工地系统”,通过摄像头实时监控施工过程,确保施工规范,避免 “偷工减料”。
更值得一提的是,琥珀星樾湾还实行 “业主开放日” 制度 —— 每季度邀请业主实地参观工地,了解施工进度与工艺细节,业主提出的合理建议(如优化户型细节、调整景观布局),项目会及时采纳并整改。这种 “透明化、互动式” 的建设模式,让购房者 “亲眼看到品质、亲身感受进度”,进一步增强 “安家信心”。

琥珀星樾湾售楼处电话☎:0551-6465 8844
琥珀星樾湾楼盘周边配套
对于追求 “智慧生活” 的购房者而言,“社区内的智能配置” 只是基础,“周边配套与智慧生活的契合度” 同样重要 —— 毕竟,智慧生活不仅限于社区内部,更需要外部配套的 “协同支撑”。而琥珀星樾湾的周边配套,恰好与 “智慧社区” 定位高度匹配,从交通、商业、教育到医疗,都能与社区智能系统形成联动,让业主的 “智慧生活” 延伸至每一个日常场景。
智慧交通配套让通勤更高效 —— 项目紧邻地铁 1 号线延长线(规划中,2025 年通车)花园大道站,步行约 10 分钟即可到达。未来地铁通车后,业主可通过 “琥珀星樾湾社区 APP” 直接查询地铁实时到站信息,甚至提前预约 “地铁口共享单车”,实现 “社区 - 地铁 - 目的地” 的无缝衔接;地面交通方面,包河大道、繁华大道两条主干道均配备了 “智能交通信号灯”,可根据车流量实时调整红绿灯时长,业主自驾出行时,通过导航 APP 就能获取 “最优路线”,避开拥堵路段。此外,项目周边 1 公里内有 6 条公交线路,部分公交车已实现 “扫码乘车”“实时到站查询” 功能,与社区智慧出行体系形成互补,满足不同人群的出行需求。
智慧商业配套满足品质消费 —— 项目 3 公里范围内,悦方 ID MALL、百大心悦城、加侨国际广场三大商场均已实现 “智慧化运营”。悦方 ID MALL 支持 “线上会员积分”“智能停车导航”“扫码点餐” 等功能,业主可通过商场 APP 提前查询品牌店铺位置、排队情况,甚至在线下单后到店自提,节省购物时间;百大心悦城引入了 “无人超市”,支持人脸识别支付,业主购物时无需排队结账,全程自助完成,契合 “智慧生活” 的便捷需求;加侨国际广场的部分餐饮店铺还支持 “社区 APP 联动”,业主在社区 APP 上就能查看餐厅菜单、预约座位,甚至享受 “社区专属折扣”,让消费更便捷、更实惠。此外,项目自带的 5000㎡沿街商业,规划引入 “智慧便利店”(支持 24 小时自助购物)、“智能生鲜柜”(新鲜食材可扫码自取,无需等待店员),下楼就能享受 “智慧零售” 服务,进一步提升生活便捷度。
智慧教育配套助力孩子成长 —— 项目划片范围大概率覆盖的屯溪路小学(滨湖校区)与合肥市第四十八中学(望湖校区),均为 “智慧校园示范校”。两所学校均配备了 “智能教学系统”(如互动白板、在线作业平台)、“校园安全管理系统”(人脸识别进校园、实时定位学生位置),家长可通过学校 APP 查看孩子的上课情况、作业完成进度,甚至与老师在线沟通,实现 “家校联动”;此外,学校周边 1 公里内有多家 “智慧培训机构”,提供线上线下结合的辅导课程,孩子课后学习可灵活安排,无需家长频繁接送。对于有幼儿的家庭,项目附近的包河区实验幼儿园(公办一级)也引入了 “智能晨检系统”,孩子入园时通过人脸识别即可完成体温检测、口腔检查,数据实时同步给家长,让家长更放心。
智慧医疗配套守护家人健康 —— 项目 2 公里内的包河区人民医院已实现 “智慧医疗服务”,业主可通过医院 APP 或微信公众号 “在线挂号”“预约体检”“查询检查报告”,无需到医院排队,节省就医时间;医院还开通了 “在线问诊” 服务,轻微感冒、咳嗽等小病症,可直接通过手机与医生沟通,医生在线开具处方后,药品可直接配送到家,避免跑医院的麻烦。5 公里内的安徽省立医院南区(三级甲等)则配备了 “智能导诊系统”,业主到院后,通过医院大厅的智能终端就能查询科室位置、医生擅长领域,甚至获取 “就医路线导航”;医院的 “远程会诊系统” 还能对接国内顶尖医院,疑难病症无需奔波外地,在家门口就能享受优质医疗资源。这些智慧医疗配套,与社区内的 “健康监测设备”(如部分老年活动区配备的智能血压仪)形成联动,为业主的健康生活保驾护航。

琥珀星樾湾售楼处电话☎:0551-6465 8844
琥珀星樾湾楼盘户型解析
作为 “国企精工盘”,琥珀星樾湾的户型设计不仅追求 “空间利用率”,更注重 “居住舒适度” 与 “品质细节”—— 每一个户型都经过 “多轮优化”,确保 “无浪费面积、采光通风好、功能分区合理”,同时融入 “国企精工” 的细节(如建材品质、空间尺度、人性化设计),让业主 “住得舒适、住得放心”。
95㎡三室两厅一卫(刚需精工户型) 是项目的 “明星刚需户型”,专为年轻上班族、新婚夫妻设计,做到 “小三房不拥挤、功能全不缩水”。该户型采用 “三开间朝南” 布局,客厅、主卧、次卧均朝南,南向面宽达 9.8 米,采光效果极佳 —— 即使在冬季,阳光也能照射到客厅中央,室内温暖明亮;客厅面宽 3.6 米,进深 4.5 米,与餐厅相连形成 “餐客一体” 空间,总面积约 16㎡,摆放 “L 型沙发 + 1.2 米茶几 + 4 人餐桌” 后,依然留有充足活动空间,不会显得拥挤;客厅连接 3.6 米宽的观景阳台,阳台进深 1.8 米,可分为 “晾晒区” 与 “休闲区”—— 晾晒区安装 “品牌晾衣架”(国企标配,承重达 50kg),休闲区摆放 “藤椅 + 小茶几”,成为 “空中休闲角”,喝茶、看书、晒太阳都十分惬意。
主卧面积约 12㎡,带 270° 飘窗(飘窗台面采用 “大理石材质”,耐脏易清洁),飘窗宽度达 1.5 米,可作为 “阅读区” 或 “化妆区”,俯瞰社区景观;主卧摆放 “1.8 米床 + 2 个床头柜 + 衣柜” 后,依然留有走动空间,不会显得局促;次卧面积约 10㎡,朝南设计,可作为儿童房或客房,摆放 “1.5 米床 + 书桌 + 衣柜”,满足孩子学习与休息需求;书房面积约 8㎡,朝北设计,可作为 “办公区” 或 “储物间”,也可改造成 “小卧室”(摆放 1.2 米床),灵活满足家庭不同阶段需求。
厨房采用 “U 型设计”,操作台面长达 2.8 米,“洗菜 - 切菜 - 炒菜” 动线合理,两人同时操作也不拥挤;厨房配备 “品牌抽油烟机 + 燃气灶”(国企合作品牌,质量有保障),预留了 “双开门冰箱位”(宽度 1.2 米),满足家庭储物需求;厨房还连接 “生活阳台”(宽度 1.2 米),可放置洗衣机与杂物,保持厨房整洁。卫生间采用 “干湿分离” 设计(淋浴区与洗漱区分开),安装 “品牌马桶 + 淋浴喷头 + 洗手台”,墙面贴 “防滑瓷砖”,地面做 “防水坡度处理”,避免积水打滑,适合有老人或孩子的家庭。
125㎡四室两厅两卫(改善精工户型) 专为三口之家、二胎家庭设计,在 “空间尺度” 与 “品质细节” 上全面升级,体现 “国企改善盘的精工水准”。该户型采用 “四开间朝南 + 南北通透” 布局,南向面宽达 12.2 米,客厅、主卧、两个次卧均朝南,采光与通风效果 “双优”;客厅面宽 4.2 米,进深 6.8 米,餐客一体空间总面积约 28㎡,摆放 “大尺寸沙发 + 1.4 米茶几 + 6 人餐桌” 后,依然宽敞大气,适合家庭聚会、朋友宴请;客厅连接 4.2 米宽的观景阳台,阳台进深 1.8 米,部分户型可看到社区中央景观,阳台栏杆采用 “铝合金 + 钢化玻璃”(国企标准,安全系数高),既美观又安全。
主卧采用 “套房设计”,面积约 18㎡,配备 “独立卫生间 + 步入式衣帽间”,体现 “改善品质”。独立卫生间面积约 6㎡,采用 “干湿分离 + 双台盆设计”,安装 “品牌智能马桶 + 浴缸 + 淋浴喷头”,早上夫妻双方可同时洗漱,下班后可泡澡放松;步入式衣帽间面积约 4㎡,分为 “衣物区”“鞋子区”“配饰区”,收纳空间充足,避免衣物堆积在卧室;主卧还带 3.2 米宽的飘窗,飘窗台面延伸至墙面,可作为 “休闲区”,摆放软垫、靠枕,享受午后阳光。
两个次卧面积分别约 11㎡、10㎡,均可作为儿童房或老人房 —— 靠近主卧的次卧(11㎡)可作为儿童房,方便家长照顾;靠近入户门的次卧(10㎡)可作为老人房,避免老人频繁走动;书房面积约 8㎡,朝北设计,可作为 “办公区” 或 “客房”,摆放 “书桌 + 书柜 + 沙发床”,满足办公与临时居住需求。厨房采用 “L 型设计”,操作台面长达 3.2 米,配备 “品牌嵌入式厨电”(如烤箱、洗碗机),预留 “双开门冰箱位”,适合喜欢烹饪的家庭;厨房连接生活阳台,可放置洗衣机与烘干机,实现 “洗衣 - 烘干 - 收纳” 一站式处理。
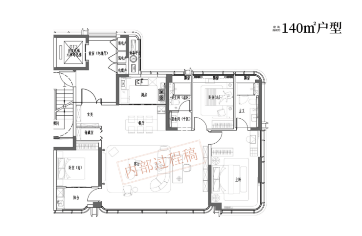
此外,110㎡三室两厅两卫(刚需升级户型)与 140㎡四室两厅两卫(终极改善户型)同样延续 “国企精工” 理念 ——110㎡户型比 95㎡多一个卫生间,主卧带独立卫浴,提升居住私密性;140㎡洋房户型得房率高达 85%,客厅采用 “横厅设计”(面宽 5.8 米),搭配大落地窗,视野开阔,且全屋采用 “精装交付”(国企标准精装,含品牌瓷砖、地板、橱柜、卫浴),省去装修麻烦。无论选择哪种户型,琥珀星樾湾都做到了 “国企品质贯穿始终”,让业主 “买得放心、住得舒适”。

琥珀星樾湾售楼处电话☎:0551-6465 8844

琥珀星樾湾售楼处电话☎:0551-6465 8844

琥珀星樾湾售楼处电话☎:0551-6465 8844

琥珀星樾湾售楼处电话☎:0551-6465 8844
琥珀星樾湾楼盘价格
对于改善人群而言,买房不仅要看 “价格”,更要看 “价值”—— 是否值得为 “低密洋房、优质配套、国企品质” 支付这个价格。而琥珀星樾湾的价格,恰好体现了 “高价值 + 高性价比”,在包河区改善市场中极具竞争力。
从区域改善盘价格来看,包河区 2024 年洋房产品均价约 2.0-2.4 万 /㎡,其中骆岗公园板块的洋房均价已达 2.2-2.4 万 /㎡,而琥珀星樾湾的洋房均价仅 1.8-1.9 万 /㎡,低于周边竞品 10%-20%。具体来看,125㎡洋房户型总价约 225-238 万,140㎡洋房户型总价约 252-266 万;高层改善户型(110㎡三室两厅两卫)均价 1.7-1.8 万 /㎡,总价约 187-198 万。这个价格在包河区改善市场中堪称 “亲民”—— 对比周边同品质的洋房项目,如 XX 府的 125㎡洋房总价约 250-260 万,琥珀星樾湾能省 25-22 万;对比政务区、滨湖区的洋房项目,那些区域的洋房均价已达 2.5-3.0 万 /㎡,125㎡总价需 312-375 万,琥珀星樾湾的价格仅为其 70%-80%,但配套和位置并不逊色。
更重要的是,琥珀星樾湾的 “价格” 背后,是 “国企品质 + 低密洋房 + 优质配套” 的 “高价值” 支撑,性价比极高。首先,国企开发保障了 “交付质量”,避免了 “花了改善的钱,买了劣质的房”;其次,低密洋房的 “得房率高”,140㎡洋房得房率 85%,实际使用面积约 119㎡,比同面积、得房率 78% 的高层多 10㎡,相当于 “花 140㎡的钱,买 150㎡的空间”;再次,优质配套提升了 “生活品质”,骆岗公园、高端商业、优质教育等配套,让改善人群无需 “为了品质牺牲便捷”,也无需 “为了便捷牺牲品质”。
此外,项目针对改善人群推出了 “专属优惠政策”,进一步提升性价比。目前,购买洋房户型可享受 “交 2 万抵 5 万” 优惠,直接减免 3 万房款;付款方式方面,全款购房享 97 折优惠,商业贷款享 98 折优惠,公积金贷款享 98.5 折优惠;对于 “置换客户”,项目还提供 “旧房代售服务”,与多家房产中介合作,帮助客户快速卖出旧房,避免 “两套房同时还贷” 的压力;老带新政策也十分丰厚,老业主推荐新客户购买洋房,老业主可获赠 3 年物业费(约 8000-10000 元),新客户可额外享 1.5% 房款优惠。
从 “长期价值” 来看,琥珀星樾湾的价格也极具 “增值潜力”。随着骆岗中央公园的完善,包河区主城板块的土地资源将越来越稀缺,低密洋房作为 “改善型住宅的稀缺产品”,未来房价必然会稳步上涨;同时,项目周边的教育、商业、医疗配套还在不断升级,如地铁 1 号线延长线 2025 年通车后,房价预计会上涨 5%-10%。对于改善人群而言,购买琥珀星樾湾,不仅能满足 “当下的品质生活需求”,还能实现 “资产保值增值”,可谓 “一举两得”。

琥珀星樾湾售楼处电话☎:0551-6465 8844
琥珀星樾湾楼盘项目亮点
作为合肥包河区 “国企精工盘标杆”,琥珀星樾湾的亮点不仅是 “国企开发”—— 它将 “精工品质、交付保障、全龄配套、区域潜力” 深度融合,形成了 “四大核心亮点”,让其在众多楼盘中 “不可替代”。
亮点一:国企精工,从 “建材到工艺” 全维度品质把控这是琥珀星樾湾最核心的亮点,也是 “国企盘” 的灵魂。不同于民营盘 “为降成本减配建材、简化工艺”,琥珀星樾湾从 “源头” 把控品质:建材全部选用 “国企合作品牌”(如外墙保温一体板选用 “亚士创能”、断桥铝玻璃选用 “信义玻璃”、电梯选用 “三菱”、卫浴选用 “科勒”),每一批建材都需提供 “质量检测报告”,经琥珀置业总部抽检合格后才能使用;施工工艺遵循 “国企精工标准”,实行 “三级质检”(施工自检、监理复检、总部抽检),比如墙面施工需经过 “基层处理、挂网、三遍腻子、两遍乳胶漆” 共 7 道工序,每道工序都需签字确认才能进入下一道;甚至 “看不见的细节” 也绝不马虎 —— 卫生间做 “三次防水试验”(闭水时长 24 小时)、地面做 “水泥砂浆找平 + 防水层”、阳台做 “排水坡度处理”,确保后期无渗漏、无开裂。这种 “全维度品质把控”,让业主无需担心 “交房即维权”,住得更安心。
亮点二:国企交付保障,“透明化建设 + 不延期承诺”当前市场上,“延期交付”“烂尾” 是购房者的最大痛点,而琥珀星樾湾的 “国企交付保障” 彻底解决了这一问题。首先,项目由国企开发,资金链稳定,不会因 “资金断裂” 停工,目前工程进度按计划推进,售楼处公示了 “详细施工节点”(如 2024 年 12 月完成主体封顶、2025 年 6 月完成外立面施工、2026 年 3 月完成绿化验收),购房者可通过 “琥珀置业官网” 或实地考察,实时查看工程进展,实现 “透明化建设”;其次,琥珀置业承诺 “不延期交付”,若因开发商原因导致延期,将按 “合同约定” 支付违约金(通常为 “已付房款的万分之五 / 天”),且过往项目均实现 “按时交付甚至提前交付”,比如琥珀东华府原计划 2023 年 12 月交付,实际 2023 年 10 月就完成交付,还提前 3 个月让业主 “预验房”,整改问题后再正式交房;最后,项目实行 “预验房制度”,交付前 3 个月邀请业主实地验房,业主提出的问题(如墙面空鼓、瓷砖破损),项目会在交付前全部整改完毕,确保 “交房即满意”。
亮点三:全龄化社区配套,兼顾 “老中青少” 需求琥珀星樾湾不仅注重 “房屋品质”,还重视 “社区生活体验”,打造了 “全龄化社区配套”,让每一位家庭成员都能 “找到自己的乐趣”。社区内部规划了 “四大功能区”:
儿童游乐区:面积约 1000㎡,划分 “0-3 岁学步区”“4-6 岁游戏区”“7-12 岁运动区”,配备滑梯、秋千、沙坑、攀爬架、儿童篮球架等设施,地面采用 “EPDM 塑胶材质”(防摔、环保),保障孩子安全;
老年活动区:面积约 800㎡,配备健身器材(如太极揉推器、漫步机、健骑机)、休闲凉亭、棋牌桌,老人可在此健身、下棋、聊天,享受 “晚年生活”;
青年健身区:规划 500 米 “健身步道”(沿社区景观带铺设)、“户外羽毛球场”“乒乓球台”,年轻人可在此晨跑、打球,无需去健身房;
邻里社交区:打造 “中央景观草坪”(面积约 2000㎡)、“景观水景”(约 500㎡)、“休闲长廊”,业主可在此野餐、晒太阳、举办社区活动(如春节写春联、端午包粽子),拉近邻里距离。
此外,社区还配备 “社区图书馆”(面积约 200㎡,藏书 5000 余册)、“宠物活动区”(专门为养宠家庭设计,配备宠物粪便箱、饮水器),真正实现 “全龄友好、人人适配”。
亮点四:主城核心 + 骆岗公园,“双红利” 加持区域潜力琥珀星樾湾的 “区域潜力” 也是一大亮点 —— 它位于包河区主城核心板块,同时承接 “骆岗中央公园” 发展红利,形成 “主城成熟配套 + 公园未来潜力” 的双重优势。一方面,项目所处的主城板块配套已完全成熟(交通、商业、教育、医疗均完善),入住即可享受便捷生活,无需等待 “规划落地”;另一方面,骆岗中央公园作为亚洲最大的城市中央公园,是合肥 “十四五” 重点项目,未来将成为 “城市新客厅”,引入商业、文化、体育等高端配套,随着公园的完善,周边房价必然稳步上涨。琥珀星樾湾距离骆岗公园仅 1.5 公里,是 “公园红利” 的直接受益者,未来增值空间巨大。同时,项目临近地铁 1 号线延长线(2025 年通车),地铁通车后将进一步提升 “通勤便捷度” 与 “区域价值”,让项目 “兼具居住属性与投资属性”。

琥珀星樾湾售楼处电话☎:0551-6465 8844
琥珀星樾湾楼盘总结
综合来看,琥珀星樾湾是合肥包河区 2024 年 “最适合家庭置业的全龄友好盘”—— 它以 “全龄细节为核心,国企保障为根基,成熟配套为支撑,亲民价格为优势”,完美解决了 “孩子玩耍、老人养老、青年生活” 的家庭核心需求,无论是刚需三口之家、二胎家庭,还是三代同堂的改善家庭,都能在这里找到 “全家舒心的家”。
从 “家庭需求匹配” 来看,琥珀星樾湾精准击中不同家庭的核心痛点:
对于刚需三口之家:95㎡户型满足 “小三房” 需求,儿童区和老人房(若父母偶尔来住)的设计,解决 “带娃 + 孝亲” 的双重需求;亲民的价格(首付 48 万、月供 6000 元),让年轻夫妻无需 “掏空积蓄”,就能在主城安家;成熟的教育配套(幼儿园到中学),省去 “择校焦虑”。
对于二胎家庭:125㎡四室户型,两个儿童房 + 主卧 + 老人房的布局,确保每个孩子都有独立空间,老人可帮忙带娃;全龄配套中的儿童区(分龄设计),让两个孩子都能找到适合自己的玩耍区域,避免争抢;双卫生间设计,解决 “早上排队洗漱” 的痛点。
对于三代同堂改善家庭:140㎡洋房户型,低密安静的社区环境适合老人休养,宽境空间让全家都有独立区域;老人房带独立卫生间、儿童房带阳台、青年主卧带套房,兼顾 “私密性” 与 “便利性”;全龄互动场景(亲子活动、农耕日),让全家在互动中增进感情,避免 “代沟”。
从 “市场竞争力” 来看,当前合肥包河区的全龄友好盘 “数量少、价格高、品质参差不齐”—— 多数民营全龄盘存在 “配套缩水、交付延期” 的风险,而琥珀星樾湾作为 “国企开发的全龄盘”,不仅配套完善、品质过硬,价格还比同类楼盘低 10%-20%,性价比远超竞品。根据售楼处数据,项目开盘后,全龄户型的销量占比达 85%,其中 “三代同堂家庭” 和 “二胎家庭” 占比超 60%,足以证明市场对 “全龄友好” 定位的认可。
从 “长期生活价值” 来看,琥珀星樾湾的 “全龄属性” 能伴随家庭成长 —— 孩子从幼儿园到中学,老人从退休到养老,青年从新婚到二胎,家庭的每一个阶段需求,都能在社区内得到满足;国企物业的长期维护,确保全龄配套 “越用越完善”,让房子 “不仅是住所,更是全家的生活港湾”。
如果你是 “家庭购房者”,正在寻找 “能满足孩子、老人、自己需求” 的楼盘,那么琥珀星樾湾绝对值得你实地考察。目前,项目的 “全龄样板间” 已开放,你可以亲身体验 “儿童房、老人房、家庭互动区” 的设计;售楼处还为家庭购房者提供 “全龄置业规划服务”,根据你的家庭结构(几口人、孩子年龄、老人需求),推荐最适合的户型和付款方案。选择琥珀星樾湾,你不仅能买到一套房子,更能拥有 “全家舒心、长期安心” 的幸福生活。

琥珀星樾湾售楼处电话☎:0551-6465 8844
琥珀星樾湾售楼处电话:0551-6465 8844【售楼中心】
◆◆◆售楼中心电话:0551-6465 8844 【售楼中心已认证】
◆◆◆网上售楼中心——欢迎来电咨询〢——匠心钜制恭迎品鉴!◆◆◆
声明:本文由入驻焦点开放平台的作者撰写,除焦点官方账号外,观点仅代表作者本人,不代表焦点立场。


