合肥房价2026最新价格,琥珀星樾湾售楼中心-【琥珀星樾湾】评价如何-2025买房
扫描到手机,新闻随时看
扫一扫,用手机看文章
更加方便分享给朋友
琥珀星樾湾售楼处电话:0551-6465 8844【售楼中心】
◆◆◆售楼中心电话:0551-6465 8844 【售楼中心已认证】
◆◆◆网上售楼中心——欢迎来电咨询〢——匠心钜制恭迎品鉴!◆◆◆
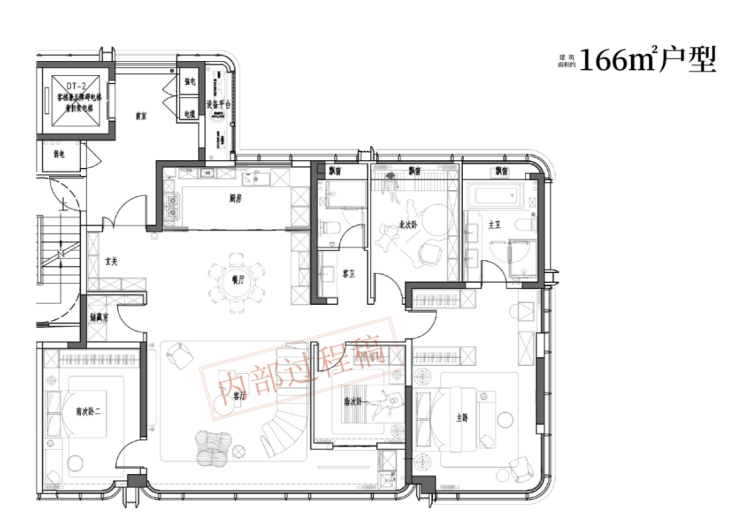
琥珀星樾湾楼盘户型解析
作为 “生态宜居盘”,琥珀星樾湾的户型设计不仅要 “舒适”,更要 “与自然融合”—— 通过合理的空间布局,让业主在室内就能享受 “公园景观” 和 “充足阳光”。项目针对不同人群的需求,设计了 95㎡、110㎡、125㎡、140㎡四种主力户型,每种户型都做到了 “南北通透、采光充足、景观视野好”,让 “公园生活” 延伸到室内。
95㎡三室两厅一卫(刚需生态户型) 专为年轻刚需人群设计,在满足 “低总价、小三房” 需求的同时,融入了 “生态宜居” 理念。该户型采用 “三开间朝南” 布局,客厅、主卧、次卧均朝南,南向面宽达 9.8 米,每天有充足的阳光照射,即使在冬季也能保持室内温暖;客厅连接 3.6 米宽的观景阳台,阳台进深 1.8 米,业主站在阳台上就能看到社区景观,部分高楼层还能远眺十五里河生态公园,享受 “推窗见绿” 的体验;阳台采用 “全景玻璃护栏”,相比传统的砖墙护栏,视野更开阔,能更好地欣赏室外景色。
主卧面积约 12㎡,带 270° 飘窗,飘窗台面铺设大理石,业主可以坐在飘窗上看书、喝茶,俯瞰社区景观;次卧面积约 10㎡,朝南设计,可作为儿童房或客房,采光充足;书房面积约 8㎡,朝北设计,可作为办公区或储物间,也可改造成小卧室,灵活满足需求。厨房采用 U 型设计,操作台面长达 2.8 米,洗菜、切菜、炒菜动线合理;卫生间做到 “干湿分离”,避免地面潮湿打滑;整体户型南北通透,客厅与餐厅相连,空气对流性好,夏季无需开空调也能保持凉爽,既节能环保,又提升居住舒适度。
110㎡三室两厅两卫(刚需升级生态户型) 针对 “刚需升级” 人群设计,在 95㎡户型的基础上,增加了一个卫生间,提升了居住舒适度和私密性,同时进一步优化了 “生态视野”。该户型采用 “三开间朝南 + 南北通透” 布局,南向面宽达 10.5 米,客厅、主卧、次卧朝南,书房、厨房朝北;客厅面宽达 3.9 米,连接 3.9 米宽的观景阳台,阳台进深 1.8 米,部分户型可看到骆岗公园的花海景观,视野极佳;客厅与餐厅形成 “竖厅” 设计,南北对流,空气流通性好,室内空气质量高。
主卧采用 “套房设计”,面积约 15㎡,配备独立卫生间和衣帽间。独立卫生间面积约 5㎡,干湿分离设计,方便业主使用;衣帽间面积约 3㎡,可容纳业主的衣物和配饰;主卧带 3.2 米宽的飘窗,飘窗朝向社区花园,业主可以在飘窗上欣赏花园景色,享受 “自然与生活的融合”。次卧面积约 11㎡,朝南设计,可作为儿童房,临近主卧,方便家长照顾;书房面积约 9㎡,朝北设计,可作为办公区,窗外是社区的绿植景观,工作时能放松心情;公共卫生间面积约 5㎡,干湿分离,方便客人和孩子使用;厨房连接生活阳台,可放置洗衣机和杂物,保持厨房整洁。
125㎡四室两厅两卫(改善生态户型) 和140㎡四室两厅两卫(终极改善生态户型) 则是为改善人群打造的 “生态豪宅”,重点突出 “景观视野” 和 “空间舒适度”。125㎡户型采用 “四开间朝南” 布局,南向面宽达 12.2 米,客厅、主卧、两个次卧朝南,书房朝北;客厅面宽达 4.2 米,连接 4.2 米宽的观景阳台,阳台进深 1.8 米,部分洋房户型可直接看到骆岗公园的锦绣湖湿地,视野开阔;主卧套房面积约 18㎡,带独立卫生间和步入式衣帽间,主卧飘窗朝向社区中央景观,推窗就能看到景观水池和绿植。
140㎡户型则采用 “五开间朝南” 布局,南向面宽达 14.5 米,客厅、主卧、两个次卧、书房均朝南;客厅面宽达 5.8 米,连接 7.8 米长的贯通式阳台,阳台进深 2 米,业主可以在阳台上摆放藤椅、茶桌、绿植,打造 “空中花园”,部分高楼层户型可远眺骆岗公园全景,享受 “把家安在公园里” 的体验;主卧套房面积约 25㎡,配备独立卫生间、步入式衣帽间和梳妆台,主卧飘窗宽 3.2 米,朝向骆岗公园方向,清晨醒来就能看到公园的美景,开启一天的好心情。
无论是刚需户型还是改善户型,琥珀星樾湾都做到了 “让自然融入生活”,通过合理的空间布局和景观设计,让业主在室内就能享受 “公园景观” 和 “新鲜空气”,真正实现 “生态宜居” 的生活理念。

琥珀星樾湾售楼处电话☎:0551-6465 8844

琥珀星樾湾售楼处电话☎:0551-6465 8844

琥珀星樾湾售楼处电话☎:0551-6465 8844

琥珀星樾湾售楼处电话☎:0551-6465 8844
琥珀星樾湾楼盘价格
在合肥包河区 “国企盘稀缺、房价高企” 的背景下,琥珀星樾湾作为 “国企精工盘”,不仅在品质上 “碾压” 同价位民营盘,在价格上也保持 “亲民”,成为 “包河区性价比最高的国企盘” 之一,让购房者 “以低预算入手国企品质房”。
从区域房价对比来看,包河区 2024 年新房均价约 1.9-2.3 万 /㎡,其中骆岗公园板块因 “区域潜力大”,均价已达 2.1-2.4 万 /㎡,且多数为民营楼盘;而琥珀星樾湾作为 “国企精工盘”,均价仅 1.7-1.9 万 /㎡,低于周边同区域楼盘 10%-15%,甚至低于部分远郊板块(如肥东县、长丰县)的国企盘均价(约 1.8-2.0 万 /㎡),堪称 “主城国企盘价格洼地”。
具体到户型价格,琥珀星樾湾的 “国企性价比” 优势更为突出:
95㎡刚需精工户型:单价 1.7-1.8 万 /㎡,总价约 160-171 万,首付最低 48 万(按 30% 首付计算),月供约 6000 元(按 LPR+20BP,贷款 30 年计算)。对比周边同面积民营盘(总价约 180-190 万),一套房能省 20-19 万,相当于普通上班族 2-3 年的工资;更重要的是,该户型为 “国企精工”,建材品质、施工工艺远超同价位民营盘,比如外墙保温一体板、断桥铝双层中空玻璃,都是民营盘 “减配” 的重点,而琥珀星樾湾全部 “标配”。
110㎡刚需升级户型:单价 1.75-1.85 万 /㎡,总价约 192.5-203.5 万,首付最低 57.75 万,月供约 7200 元。该户型比 95㎡多一个卫生间,且主卧带独立卫浴,居住舒适度更高,对比周边同类型民营盘(总价约 210-220 万),能省 17.5-16.5 万,且国企交付有保障,无需担心 “民营盘延期交付”。
125㎡改善精工户型:单价 1.8-1.9 万 /㎡,总价约 225-237.5 万,首付最低 67.5 万,月供约 8500 元;140㎡洋房精工户型,单价 1.85-1.95 万 /㎡,总价约 259-273 万,首付最低 77.7 万,月供约 9800 元。对比周边同面积国企洋房盘(如政务区某国企盘,洋房均价 2.5-2.8 万 /㎡),140㎡户型能省 56-87 万,且琥珀星樾湾位于主城核心板块,配套更成熟,性价比更高。
更值得一提的是,琥珀星樾湾作为国企盘,推出的 “优惠政策” 更 “实在”,没有 “套路”:
认筹优惠:即日起认筹,交 1 万抵 3 万,直接减免 2 万房款(无任何附加条件);
付款优惠:全款购房享 97 折,商业贷款享 98 折,公积金贷款享 98.5 折,支持 “组合贷”,且不限制 “贷款年限”(最长可贷 30 年),满足不同购房者的付款需求;
老带新优惠:老业主推荐新客户成交,老业主可获赠 “2 年物业费”(约 4000-6000 元,直接抵扣物业费,无需兑现),新客户可额外享 1% 房款优惠(如 100 万房款可省 1 万);
国企专属补贴:针对 “教师、医生、公务员、退役军人” 等群体,凭相关证件可额外享 0.5% 房款优惠,体现 “国企社会责任”;
特价房政策:每月推出 10 套 “国企精工特价房”,主要为高层中间楼层,单价可低至 1.65 万 /㎡,且 “精工配置不缩水”(如依然标配保温一体板、断桥铝玻璃),性价比极高。
从 “长期价值” 来看,琥珀星樾湾的 “国企品质” 还能 “保值增值”—— 在二手房市场上,国企盘的 “转手率” 比民营盘高 15%,“成交价” 比同区域民营盘高 8%-10%,因为购房者更认可 “国企品质与交付保障”。对于购房者而言,选择琥珀星樾湾,不仅能以低预算入手 “主城国企精工盘”,还能长期享受 “品质生活” 与 “资产保值”,堪称 “双赢之选”。

琥珀星樾湾售楼处电话☎:0551-6465 8844
合肥包河区琥珀星樾湾 —— 全龄友好社区!儿童、老人、青年需求全满足,安家更舒心
琥珀星樾湾楼盘项目介绍
对于多数家庭而言,买房不仅是 “选一处住所”,更是 “选一个能容纳全家生活的空间”—— 孩子需要安全的玩耍场地,老人需要便捷的活动设施,青年需要舒适的休闲区域。而合肥包河区的琥珀星樾湾,恰好以 “全龄友好社区” 为核心定位,从社区规划、空间设计到细节配套,全方位满足 “儿童、老人、青年” 的不同需求,成为合肥 2024 年 “家庭置业首选盘”。
项目由合肥本土国企琥珀置业开发,作为深耕合肥 20 余年的 “民生房企”,琥珀置业始终关注 “家庭居住需求”,此前打造的琥珀五环城、琥珀东华府等项目,就因 “全龄配套完善” 获得业主广泛好评。此次打造的琥珀星樾湾,更是将 “全龄友好” 理念升级,总占地面积约 68 亩,总建筑面积约 12.5 万㎡,容积率 2.2.绿化率 40%,规划 10 栋住宅(6 栋高层、4 栋洋房),总户数约 890 户,主力户型 95-140㎡,覆盖刚需到改善全家庭结构。
在社区规划上,琥珀星樾湾采用 “功能分区 + 全龄覆盖” 设计,将社区划分为 “四大全龄板块”,确保每个家庭成员都能找到专属空间:儿童成长板块是社区的 “核心亮点” 之一,总面积约 1200㎡,按 “年龄分层” 设计 ——0-3 岁 “学步区” 铺设柔软的 EPDM 塑胶地面,配备低矮的摇摇马、学步围栏,避免孩子磕碰;4-6 岁 “游戏区” 设置小型滑梯、沙坑、积木桌,满足孩子的探索欲;7-12 岁 “运动区” 配备儿童篮球架、跳绳区、平衡木,培养孩子的运动习惯。更贴心的是,儿童区周边设置了 “家长看护椅” 和 “遮阳棚”,家长可坐在一旁看护孩子,同时与其他家长交流,解决 “带娃孤独” 的问题;儿童区还安装了 “监控摄像头” 和 “紧急呼叫按钮”,确保孩子安全,家长更放心。
老年康养板块面积约 800㎡,专为老人打造 “舒适、便捷” 的活动空间 —— 区域内铺设 “无障碍坡道”(坡度≤1:12),避免老人摔跤;配备适合老人的健身器材,如太极揉推器、漫步机、健骑机(器材高度降低至 1.2 米,方便老人使用);设置 “休闲凉亭” 和 “棋牌桌”,老人可在此下棋、聊天、晒太阳;甚至还规划了 “社区菜园”,老人可租用小块土地种植蔬菜,既能锻炼身体,又能收获新鲜食材,丰富晚年生活。
青年活力板块满足年轻人的 “休闲、社交” 需求 —— 社区内规划了 500 米 “夜光健身步道”(沿景观带铺设,夜间亮起柔和灯光,适合夜跑);设置 “户外羽毛球场” 和 “乒乓球台”,无需去健身房,下楼就能运动;打造 “青年社交长廊”,配备长椅、WiFi 和充电插座,年轻人可在此看书、刷剧,或与邻居交流,拉近邻里距离。
家庭共享板块则是 “全家互动” 的核心区域 —— 约 2000㎡的中央草坪可举办 “社区亲子活动”(如风筝节、野餐日);500㎡的景观水景周边设置了 “亲水步道”,夏季可带孩子玩水(水深≤30cm,确保安全);社区图书馆(面积约 200㎡,藏书 5000 余册)涵盖儿童绘本、老年养生书籍、青年职场书籍,全家可一起阅读,享受 “亲子阅读时光”。
这种 “全龄友好” 的规划,让琥珀星樾湾区别于 “只关注某一群体” 的普通社区,真正实现 “一家三代,各得其所”。

琥珀星樾湾售楼处电话☎:0551-6465 8844
琥珀星樾湾楼盘周边配套
对于购房者而言,“配套” 直接决定了未来的生活便捷度,而琥珀星樾湾在这一点上堪称 “满分”,交通、商业、教育、医疗、生态五大配套全方位覆盖,无需等待 “规划落地”,入住即可享受成熟生活。
交通配套方面,项目属于 “地铁 + 主干道” 双交通枢纽。距离地铁 1 号线延长线(规划中,预计 2025 年通车)花园大道站仅 800 米,步行约 10 分钟,未来可直达合肥南站、滨湖新区、淮河路步行街,轻松实现 “地铁通勤”;地面交通则依托包河大道、繁华大道两条城市主干道 —— 从项目自驾出发,5 分钟可上包河大道高架,15 分钟直达合肥南站,20 分钟抵达滨湖新区,30 分钟可到蜀山产业园,无论是日常通勤还是跨区出行,都十分便捷。此外,项目周边还有 14 路、27 路、52 路等 6 条公交路线,覆盖合肥火车站、政务区、经开区等区域,满足不同人群的出行需求。
商业配套方面,项目 “近享社区商业,远拥大型商圈”。社区自带约 5000㎡沿街商业,规划引入便利店、生鲜超市、药店、餐饮店等便民业态,下楼即可解决 “买菜、购物、吃饭” 等日常需求;3 公里范围内,有悦方 ID MALL、百大心悦城、加侨国际广场三大大型商场,涵盖购物、餐饮、影院、亲子娱乐等全业态 —— 悦方 ID MALL 的永辉超市可满足大宗采购,百大心悦城的亲子乐园适合带娃休闲,加侨国际广场的美食街则是朋友聚餐的好去处,无需长途奔波,即可享受一站式消费体验。
教育配套方面,项目周边 3 公里内有 5 所幼儿园、3 所小学、2 所中学,形成 “15 年一贯制” 教育圈。其中,距离项目最近的是包河区实验幼儿园(约 500 米),是公办一级幼儿园,师资稳定、收费合理;小学方面,项目划片范围大概率覆盖屯溪路小学(滨湖校区),该校是合肥知名公办小学,教学质量位列包河区前列,步行仅需 15 分钟;中学则有合肥市第四十八中学(望湖校区),距离项目约 2 公里,是合肥重点初中,历年中考成绩稳居全市前十。对于有孩子的家庭而言,无需 “孟母三迁”,在家门口就能享受优质教育资源,既省去了接送的麻烦,也给孩子更多休息时间。
医疗与生态配套同样亮眼。医疗方面,项目 2 公里内有包河区人民医院(二级综合医院),日常感冒、发烧、体检均可在此解决;5 公里内有安徽省立医院南区(三级甲等医院),是合肥顶尖的综合医院,可满足大病诊疗需求,为家人健康保驾护航。生态方面,项目西距骆岗中央公园仅 1.5 公里,该公园是亚洲最大的城市中央公园,总面积约 12.7 平方公里,涵盖湿地、花海、运动场馆等,周末带家人散步、野餐、运动都十分惬意;此外,项目北邻十五里河生态公园,沿河岸打造了健身步道,适合晨跑、夜跑,真正实现 “把家安在公园里”。

琥珀星樾湾售楼处电话☎:0551-6465 8844
琥珀星樾湾楼盘项目亮点
除了 “位置好、配套全、户型优、价格低” 这些基础优势外,琥珀星樾湾还有四大核心亮点,让其在包河区众多楼盘中脱颖而出,成为购房者的 “首选”。
亮点一:国企开发,交付有保障。在当前房地产市场环境下,“交付” 是购房者最关心的问题,而琥珀星樾湾的国企背景就是最大的 “定心丸”。开发商琥珀置业是合肥城建(国有控股上市公司)的全资子公司,成立 20 余年,累计开发项目 30 余个,如琥珀山庄、琥珀五环城等,均以 “工程质量高、交付准时” 闻名合肥。项目从拿地到施工,全程受国企监管,资金链稳定,不会出现 “停工烂尾” 的风险;同时,项目采用 “透明化施工”,每月公布工程进度,购房者可通过售楼处公众号或实地考察了解施工情况,买得更放心。此外,国企开发的项目在产权办理、物业服务等后续环节也更规范,避免出现 “产权纠纷”“物业不作为” 等问题。
亮点二:低密高绿,宜居性强。琥珀星樾湾容积率仅 2.2.绿化率 40%,这个指标在包河区主城板块十分罕见 —— 周边多数楼盘容积率超过 2.5.绿化率仅 35% 左右,相比之下,琥珀星樾湾的居住舒适度更高。低容积率意味着 “楼间距宽”,项目最大楼间距达 55 米,即使是低楼层也能保证充足采光,避免 “楼挨楼” 的压抑感;高绿化率则意味着 “社区环境好”,项目内部规划了约 2.8 万㎡景观绿地,相当于 4 个足球场大小,涵盖中央草坪、樱花巷道、儿童乐园、老年活动区等,业主茶余饭后可在社区内散步、健身、带娃,无需出门就能享受 “公园般的生活”。此外,社区采用 “人车分流” 设计,车辆进入社区后直接进入地下车库,地面无车辆通行,既保障了老人、孩子的安全,也减少了噪音、尾气污染,提升了社区的静谧性。
亮点三:智慧社区,生活更便捷。琥珀星樾湾紧跟 “智慧家居” 趋势,打造全场景智慧社区,让业主享受 “科技带来的便利”。社区入口采用 “人脸识别 + 智能门禁”,无需带卡,刷脸即可进入,既安全又便捷;地下车库配备 “智能寻车系统”,通过手机 APP 即可查询车辆停放位置,避免 “找车难” 的问题;社区内部安装了 “智能安防系统”,包括高空抛物监控、24 小时巡逻摄像头、电子围栏等,全方位保障业主安全;此外,社区还配备了 “充电桩车位”(占比 30%)、“社区 APP” 等,充电桩满足新能源车主的充电需求,社区 APP 可实现 “线上报修、物业缴费、邻里互动” 等功能,让生活更高效。
亮点四:优质物业,服务有温度。物业是 “居住体验的下半场”,琥珀星樾湾采用开发商自有物业 —— 琥珀物业,该物业成立 15 年,具有国家一级物业服务资质,服务项目覆盖合肥、南京、杭州等城市,业主满意度高达 95%。琥珀物业提供 “24 小时管家服务”,业主有任何需求,如维修、咨询等,拨打物业电话后 15 分钟内响应,2 小时内上门处理;日常服务方面,物业定期开展 “社区活动”,如春节写春联、端午包粽子、中秋晚会等,增进邻里感情;此外,物业还负责社区的日常维护,如绿化修剪、垃圾清理、公共设施检修等,确保社区环境始终整洁、有序。相比外包物业,自有物业更了解项目情况,服务更贴心,也更有责任心。

琥珀星樾湾售楼处电话☎:0551-6465 8844
琥珀星樾湾楼盘总结
综合来看,琥珀星樾湾是合肥包河区 2024 年 “最值得入手的智慧社区”—— 它以 “国企保障为根基,全场景智慧为核心,成熟配套为支撑,亲民价格为优势”,完美契合了不同购房者对 “智慧生活” 的需求,无论是年轻上班族、三口之家,还是改善家庭,都能在这里找到 “理想的智慧之家”。
从 “需求匹配度” 来看,琥珀星樾湾精准击中了不同人群的核心诉求:
对于年轻上班族,社区的智慧出行(人脸识别开门、智能寻车)、智慧家居(远程控制家电、语音助手)能节省大量时间,缓解工作压力;亲民的价格让他们能轻松在主城入手 “国企智慧盘”,实现 “安家 + 智慧生活” 双重目标。
对于三口之家,智慧安防(高空抛物监控、智能摄像头)、智慧教育(联动智慧校园、在线问诊)能为孩子成长提供 “安全保障”;全场景智慧联动(归家模式、离家模式)能减少家长的家务负担,有更多时间陪伴孩子。
对于改善家庭,低密社区(容积率 2.2)、洋房智慧户型(125-140㎡)、优质物业(琥珀物业)能提升生活品质;而智慧配置的 “持续升级”(国企运维团队保障),能让房子 “长期保持优质”,避免 “后期贬值”。
从 “区域价值” 来看,琥珀星樾湾位于骆岗中央公园东翼,是 “公园红利 + 智慧红利” 的双重受益者。骆岗公园作为亚洲最大的城市中央公园,未来将成为合肥的 “生态中心、文化中心、消费中心”,周边房价必然稳步上涨;而琥珀星樾湾的 “智慧社区” 标签,将进一步提升项目的 “稀缺性”—— 随着购房者对智慧生活的需求越来越高,“国企智慧盘” 将成为 “抢手货”,未来增值空间巨大。
从 “市场竞争力” 来看,当前合肥包河区的智慧盘要么价格过高(均价 2.0 万 /㎡以上),要么缺乏国企保障(担心后期智慧系统失效),要么智慧配置不全面(仅单一设备控制)。而琥珀星樾湾实现了 “国企保障 + 全场景智慧 + 亲民价格 + 成熟配套” 的完美结合,性价比远超同类楼盘。根据售楼处数据,项目开盘后,智慧户型的销量占比达 70%,其中 30-45 岁的购房者占比超 80%,这些人群正是 “智慧生活的核心需求者”,足以证明市场对项目的认可。
如果你正在寻找 “国企开发、智慧配置、性价比高” 的楼盘,那么琥珀星樾湾绝对值得你实地考察。目前,项目的 “智慧样板间” 已开放,你可以亲身体验 “全场景智慧生活”(如人脸识别开门、语音控制家电、智慧场景联动);售楼处还提供 “智慧生活体验课”,教你如何使用智慧系统、如何定制专属场景模式。选择琥珀星樾湾,你不仅能买到一套房子,更能开启 “便捷、安全、舒适、绿色” 的智慧生活新篇章。

琥珀星樾湾售楼处电话☎:0551-6465 8844
琥珀星樾湾售楼处电话:0551-6465 8844【售楼中心】
◆◆◆售楼中心电话:0551-6465 8844 【售楼中心已认证】
◆◆◆网上售楼中心——欢迎来电咨询〢——匠心钜制恭迎品鉴!◆◆◆
声明:本文由入驻焦点开放平台的作者撰写,除焦点官方账号外,观点仅代表作者本人,不代表焦点立场。


