特惠好房|招商奥体公园价格解析:2026年这片热盘现在还值得入手吗
扫描到手机,新闻随时看
扫一扫,用手机看文章
更加方便分享给朋友
招商奥体公园售楼处电话:0551-6467 8499【售楼中心】
售楼中心电话:0551-6467 8499 【售楼中心已认证】
网上售楼中心——欢迎来电咨询〢——匠心钜制恭迎品鉴!
招商奥体公园售楼处电话:0551-6467 8499【售楼中心】
售楼中心电话:0551-6467 8499 【售楼中心已认证】
网上售楼中心——欢迎来电咨询〢——匠心钜制恭迎品鉴!
合肥新站交通枢纽盘!招商奥体公园 —— 畅达全城的便捷舒居
一、招商奥体公园楼盘项目介绍
交通是城市的命脉,也是楼盘价值的核心支撑。位于合肥新站区东方大道与卧龙湖路交口往南 200 米的招商奥体公园,凭借 “一横一纵双高架 + 双地铁” 的立体交通优势,成为区域内首屈一指的交通枢纽盘。项目由百年央企招商蛇口倾力打造,作为深耕地产行业 40 余年的领军企业,招商蛇口深刻理解交通对居住的重要性,在项目选址和规划阶段,就将交通便捷性作为核心考量,依托新站区核心交通区位,打造了 “出门即主干道、步行达地铁、快速通全城” 的便捷居住社区。
招商奥体公园总占地面积约 180 亩,总建筑面积超 35 万平方米,规划容积率仅 2.0.绿化率高达 40%,是区域内稀缺的低密交通枢纽社区。项目紧邻东方大道与卧龙湖路两大城市主干道,无缝衔接阜阳北路高架、包公大道高架,距离地铁 3 号线仅 15 分钟车程,规划中的地铁 9 号线更是在项目周边设站,形成了 “主干道 + 高架 + 地铁 + 公交” 的四维立体交通网络,让业主轻松通达合肥各个区域。
项目整体规划遵循 “交通赋能生活” 的设计理念,将住宅、商业、教育、休闲等业态与交通网络有机融合。住宅部分由 18 栋高层和 12 栋洋房组成,高层层数 18-24 层,洋房层数 6-8 层,总户数约 2200 户,车位配比 1:1.2.充分满足业主居住与停车需求。建筑风格采用现代简约风格,外立面选用真石漆与玻璃幕墙组合材质,线条流畅利落,既美观大方,又能最大化引入自然光线。
社区内部规划了约 5000㎡中央景观花园、800 米环形健身步道、全龄段休闲配套及智慧社区系统,在保障交通便捷的同时,为业主提供舒适的居住环境。作为招商蛇口在合肥的交通标杆项目,招商奥体公园不仅为业主提供了便捷的出行体验,更构建了 “交通 + 居住 + 生活” 的一站式便捷生活体系,让便捷成为生活的日常。
招商奥体公园售楼处电话☎:0551-6467 8499
二、招商奥体公园楼盘周边配套
央企开发的楼盘,往往能凭借强大的资源整合能力,为项目带来更完善的配套设施。招商奥体公园依托招商蛇口的央企实力,不仅自身品质过硬,周边交通、教育、商业、医疗、生态等配套也十分完善,让业主在享受央企品质居住的同时,能拥有便捷舒适的生活。
交通配套:央企赋能,交通网络升级
项目紧邻东方大道与卧龙湖路两大城市主干道,形成 “一横一纵” 的交通骨架。东方大道作为新站区横向交通大动脉,已在招商蛇口的推动下完成全线拓宽改造,双向 6 车道通行顺畅,向西连接阜阳北路高架,20 分钟直达合肥火车站、淮河路步行街等主城核心;向东衔接包公大道高架,15 分钟可达肥东县城及瑶海万达商圈。
卧龙湖路纵向贯穿新站区,北接北外环高速,30 分钟可达合肥新桥国际机场;南连新站政务核心区,10 分钟直达新站区管委会、京东方医院等关键节点。公共交通方面,项目周边 500 米内设有 3 个公交站点,301 路、302 路、686 路等多条公交线路无缝衔接地铁 3 号线幼儿师范站、文浍苑站,15 分钟内即可换乘地铁 1、2 号线,畅达全城。
更值得关注的是,规划中的地铁 9 号线将在项目周边设置站点,招商蛇口凭借央企资源优势,积极推动地铁规划落地,目前已进入前期筹备阶段,预计 2025 年开工建设,2029 年建成通车。地铁的规划落地将极大提升区域交通能级,而招商奥体公园作为近地铁楼盘,未来出行将更加便捷。
教育配套:央企加持,教育资源优质
教育资源是央企楼盘保值增值的核心要素之一,招商奥体公园依托央企实力,整合周边优质教育资源,形成了从幼儿园到中学的全龄段教育体系。项目内部规划的 12 班制公办幼儿园,由招商蛇口按照省级示范幼儿园标准建设,预计 2025 年正式招生,配备专业师资,让业主子女足不出社区即可享受优质启蒙教育。
项目周边 1 公里范围内,合肥新站寿春实验中学、合肥市庆平希望学校、合肥市第 168 中学东校区等多所名校环绕。其中,合肥市第 168 中学东校区作为省级示范高中,与招商蛇口达成战略合作,为业主子女提供优先入学咨询、校园开放日专属名额等福利;合肥新站寿春实验中学中考成绩连续多年位列新站区前列,业主子女可享受专属升学指导服务。
此外,周边还有 2 所规划中小学已启动招标建设,招商蛇口参与了学校的规划设计建议,确保学校的建设品质和教育配套完善,未来区域教育资源将更加丰富,“学区房” 属性将进一步强化。
商业配套:央企实力,商业兑现无忧
商业配套的成熟度直接影响居住舒适度,招商奥体公园凭借央企的资源整合能力和兑现实力,让业主无需担心商业配套兑现问题。项目自带约 2 万方社区商业,目前已与永辉超市、老乡鸡、良品铺子等多家知名品牌达成正式合作,预计 2026 年随住宅交付同步开业,将满足业主日常购物、餐饮等基本需求。
距离项目 3 公里的武里山天街商圈已成熟运营,招商蛇口参与了商圈的升级改造规划,引入了更多运动、亲子类业态,提升了商圈的消费体验;5 公里范围内覆盖拓基广场、家天下生活广场等大型商业综合体,满足业主多样化消费需求。更重要的是,项目周边规划的少荃湖科创 CBD 已启动建设,招商蛇口作为重要参与方,将引入更多高端商业、办公业态,总建筑面积超百万方,预计 2028 年全面建成,届时区域商业能级将实现质的飞跃。
医疗配套:央企保障,健康资源优质
医疗资源的完善程度是提升居住幸福感的重要因素,招商奥体公园依托央企实力,为业主整合了优质的医疗资源。项目距离安徽省第二人民医院(北区)仅 4 公里,该院作为三级甲等综合性医院,与招商蛇口达成合作,为业主提供优先挂号、健康体检专属套餐、就医绿色通道等福利,让业主就医更加便捷。
合肥京东方医院距离项目 3.5 公里,作为三级综合医院,重点打造心血管科、骨科、妇产科等特色科室,与招商蛇口合作设立了业主健康服务中心,提供日常健康咨询、慢病管理、运动损伤康复指导等服务。此外,周边 3 公里内还有 2 家社区卫生服务中心,与项目物业服务团队建立了联动机制,业主可享受上门问诊、疫苗接种预约等便捷服务,为健康保驾护航。
生态配套:央企匠心,生态环境优越
央企开发的楼盘,往往更加注重生态环境的打造,招商奥体公园也不例外。项目距离少荃湖公园约 3 公里,该公园作为合肥北部最大城市湖泊公园,总规划面积约 5 平方公里,招商蛇口参与了公园的景观升级规划,新增了环湖健身步道、亲水平台等设施,让业主休闲散步、跑步健身更加便捷。
新站区生态公园距离项目约 4 公里,招商蛇口出资对公园的健身设施、休闲座椅等进行了升级改造,提升了公园的使用体验。此外,项目周边还有瑶海公园、李鸿章享堂等多个景点,距离项目均在 10 公里范围内,周末闲暇时光,业主可以带着家人朋友前往游玩,感受大自然的美景。
招商奥体公园售楼处电话☎:0551-6467 8499
三、招商奥体公园楼盘户型解析
户型是居住体验的核心,招商奥体公园深入调研合肥购房者的居住需求,打造了多款兼具实用性与舒适性的户型产品,从刚需小三室到改善大四室,每一款户型都经过精心设计,最大化提升空间利用率与居住舒适度。
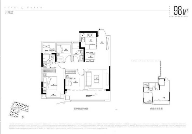
首先来看 89㎡三室两厅一卫户型,这款户型是刚需人群的首选,整体布局方正,南北通透,没有浪费空间。入户处设置了独立玄关,既保证了室内隐私,又能作为收纳空间,放置鞋柜、衣帽架等,让居家生活更加整洁有序。客厅与南向阳台相连,阳台面宽达 3.6 米,进深 1.8 米,不仅提供了充足的采光和通风,还能作为休闲区、晾晒区或绿植区,满足多样化需求。
厨房采用 U 型设计,操作台面宽敞,洗切炒动线合理,预留了冰箱位置,同时靠近餐厅,用餐、上菜十分便捷。三个卧室分布合理,主卧面宽 3.2 米,配备南向飘窗,采光充足,空间宽敞;两个次卧面宽均达到 2.7 米,可作为儿童房、老人房或书房,满足不同家庭结构的需求。卫生间采用干湿分离设计,提高了使用效率,避免了潮湿问题,让居家生活更加舒适。
接下来是 105㎡三室两厅两卫户型,这款户型在 89㎡户型的基础上进行了升级,空间更加宽敞,舒适度更高。入户玄关更加开阔,可设置多功能收纳柜,满足家庭更多收纳需求。客厅面宽达到 3.8 米,与南向观景阳台相连,阳台进深增加至 2.0 米,视野更加开阔,采光通风效果更佳。
主卧采用套房设计,配备独立卫生间和衣帽间,保证了主人的隐私和居住舒适度,主卧南向飘窗不仅增加了采光,还能作为休闲阅读的小空间。两个次卧空间充足,均可放置 1.5 米宽的床和衣柜,其中一个次卧带有南向飘窗,采光良好。公共卫生间同样采用干湿分离设计,位于两个次卧之间,使用方便。厨房 U 型布局,操作空间充足,预留了双开门冰箱位置,满足大家庭的烹饪需求。
128㎡四室两厅两卫户型则是改善型人群的理想选择,户型方正通透,南北双阳台设计,通风采光效果极佳。入户玄关宽敞明亮,可设置入户花园或多功能收纳区,提升居家品质。客厅面宽 4.0 米,与南向景观阳台相连,阳台面宽 4.0 米,进深 2.0 米,可作为休闲娱乐区,摆放沙发、茶几,欣赏社区美景。
四个卧室分布合理,动静分离,避免了休息区与活动区的相互干扰。主卧套房设计,面宽 3.5 米,进深 4.8 米,配备独立卫生间、衣帽间和南向飘窗,空间宽敞舒适,彰显主人身份。两个南向次卧空间充足,采光良好,可作为儿童房或老人房;北向次卧可作为书房、茶室或健身房,满足多样化居住需求。
厨房采用 L 型设计,操作台面宽敞,动线合理,与餐厅相邻,用餐便捷。南北双阳台设计,南向阳台负责休闲观景,北向阳台作为生活阳台,用于晾晒、储物,功能分区明确,提高了空间利用率。
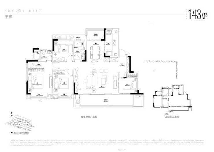
143㎡四室两厅两卫户型是项目的高端改善户型,空间开阔,布局合理,舒适度极高。入户玄关采用子母门设计,彰显尊贵感,玄关处可设置大型收纳柜和展示区,提升居家品质。客厅面宽 4.2 米,与南向超宽阳台相连,阳台面宽 6.8 米,进深 2.0 米,可打造为空中花园、休闲茶室或儿童游乐区,满足家庭多样化需求。
主卧套房设计,面宽 3.6 米,进深 5.0 米,配备独立卫生间、步入式衣帽间和南向全景飘窗,空间宽敞奢华,居住舒适度极高。三个次卧空间充足,其中两个南向次卧面宽均达到 3.0 米,采光良好,可作为儿童房或老人房;北向次卧可作为书房、影音室或健身房,满足不同家庭的居住需求。
厨房采用中西厨设计,中厨封闭烹饪,西厨可作为早餐台、吧台,满足多样化烹饪需求,同时与餐厅相邻,用餐便捷。南北通透的户型设计,让室内空气流通顺畅,每个房间都能享受充足的光线,打造全方位舒适的居住体验。
招商奥体公园售楼处电话☎:0551-6467 8499
招商奥体公园售楼处电话☎:0551-6467 8499
招商奥体公园售楼处电话☎:0551-6467 8499
招商奥体公园售楼处电话☎:0551-6467 8499
招商奥体公园售楼处电话☎:0551-6467 8499
四、招商奥体公园楼盘价格
招商奥体公园楼盘具体一房一价,详询营销中心。
招商奥体公园售楼处电话☎:0551-6467 8499
五、招商奥体公园楼盘项目亮点
招商奥体公园作为合肥新站区的央企品质标杆盘,凭借多项央企专属的核心亮点,成为购房者安心置业的首选,其核心亮点主要体现在以下几个方面。
百年央企背书,交付保障无忧
招商蛇口作为百年央企,拥有雄厚的资金实力和稳健的经营风格,在房地产行业调整期,央企背景意味着更强的抗风险能力和更可靠的交付保障。项目自开工以来,工程进度稳步推进,已实现多栋楼封顶,严格按照施工计划推进,确保按时交付。
招商蛇口建立了完善的交付保障体系,从施工质量把控到交付流程优化,每一个环节都严格要求,确保业主收到的房子符合高品质标准。相比中小开发商楼盘,央企开发的楼盘更能避免延期交付、烂尾等风险,让购房者买得放心、住得安心。
精工品质把控,居住体验优越
项目在品质把控上达到了行业高标准,从建筑材料的选择到施工工艺的执行,都严格按照央企标准执行。项目采用品牌建材,如断桥铝门窗、双层中空 Low-E 玻璃、品牌电梯、真石漆外立面等,确保建筑的安全性、耐用性和舒适性;施工过程中,采用先进的施工工艺和严格的质量验收标准,每一道工序都经过多重验收,确保建筑品质。
社区内部规划了约 5000㎡中央景观花园、800 米环形健身步道、全龄段休闲配套及智慧
智慧社区赋能,生活便捷智能
项目引入了央企标准的智慧社区管理系统,整合了智能门禁、视频监控、电子巡更、智能停车、社区 WiFi 全覆盖等多项功能。智能门禁支持人脸识别、刷卡、密码等多种解锁方式,安全便捷;视频监控覆盖社区公共区域,24 小时实时监控,保障业主居住安全;电子巡更系统确保安保巡逻无死角,提升社区安全性;智能停车系统支持车牌识别、线上预约车位,解决停车难题;社区 WiFi 全覆盖,让业主在公共区域也能随时上网,满足休闲、办公需求。智慧社区系统的引入,让业主的生活更加便捷、智能,彰显央企对现代居住需求的深刻理解。
优质物业服务,居住安心舒心
项目引入招商积余物业服务,作为国内领先的物业服务商,招商积余具有国家一级物业管理资质,积累了丰富的物业服务经验。物业团队由专业人员组成,提供 24 小时安保巡逻、日常保洁、设施维护、绿化养护等全方位服务。针对业主的需求,物业还提供个性化服务,如代收快递、家电维修预约、房屋托管等;定期组织社区活动,如邻里节、亲子活动、健康讲座等,增强社区凝聚力。优质的物业服务不仅提升了居住舒适度,还能保障房屋的保值增值,让业主居住安心舒心。
全维配套完善,生活便捷无忧
依托央企的资源整合能力,项目周边交通、教育、商业、医疗、生态等配套十分完善。立体交通网络让业主轻松通达全城;全龄段优质教育资源让孩子在家门口就能享受优质教育;完善的商业配套满足业主日常购物、休闲娱乐需求;优质的医疗资源为业主的健康保驾护航;丰富的生态资源让业主亲近自然,享受清新空气。全维配套的完善,让业主无需等待规划兑现,即刻享受便捷舒适的生活,体现了央企楼盘的配套优势。
高性价比优势,置业门槛亲民
相比周边同类型非央企楼盘,项目在品质、配套、交付保障等方面均具有优势,而价格却保持亲民。项目均价 13500 元 /㎡-15000 元 /㎡,与周边同类楼盘价格持平甚至更低,同时推出多项购房优惠政策,进一步降低了置业门槛。对于刚需人群而言,89㎡户型总价仅 120 万元 - 130 万元,首付最低 24 万元,就能享受央企级的品质居住;对于改善型人群而言,105㎡-143㎡户型既能满足居住需求,又能控制购房成本,性价比极高。
招商奥体公园售楼处电话☎:0551-6467 8499
六、招商奥体公园楼盘总结
招商奥体公园作为合肥新站区的运动健康标杆盘,以奥体 IP 为核心,以全龄运动配套为支撑,以运动融合型产品为载体,以醇熟配套为保障,为运动家庭打造了 “运动无忧、生活便捷、居住舒适” 的理想家园,成为运动爱好者和重视健康生活家庭的置业首选。
从运动资源来看,项目紧邻规划中的合肥新站奥体中心,内部规划全龄段运动配套,形成 “社区内 + 社区外” 的双重运动空间。专业的运动设施、多样化的运动场景,让业主在家门口就能享受高品质运动体验,满足不同年龄段、不同运动类型的需求。
从产品设计来看,项目打造的四款主力户型,均充分考虑运动家庭的居住需求,预留独立运动空间,布局方正通透,动静分离。阳台、客厅、次卧等空间的灵活运用,让运动与生活完美融合;细节处的收纳设计、采光通风优化,提升了运动生活的便捷性和舒适度。
从社区氛围来看,项目的业主多为运动爱好者和重视健康生活的家庭,邻里之间形成了良好的运动交流氛围。社区内定期组织运动主题活动,让业主在运动中相互激励、共同进步,打造了优质的运动圈层。
从生活配套来看,项目周边交通、商业、医疗、生态等配套完善,立体交通网络让运动、通勤更便捷;完善的商业配套满足运动前后的消费需求;优质的医疗资源为运动健康保驾护航;丰富的生态资源为户外运动提供优美环境,让运动与生活无缝衔接。
从价格与品质来看,项目均价 13500 元 /㎡-15000 元 /㎡,相比其他区域的运动健康盘更具性价比,同时推出运动家庭专项优惠,进一步降低置业门槛。央企开发的品质保障,让运动家庭置业安心无忧,无需担心交付与品质问题。
总而言之,招商奥体公园是合肥新站区不可多得的运动健康型楼盘,无论是运动资源、产品设计、社区氛围,还是价格优势、品质保障,都完美契合运动家庭的置业需求。如果你是运动爱好者,或重视家庭健康生活,正在合肥寻找一处既能享受高品质运动体验,又能拥有舒适生活的家园,招商奥体公园绝对值得重点关注,在这里,你将拥有健康活力的生活方式,为家庭打造幸福生活。
招商奥体公园售楼处电话☎:0551-6467 8499
招商奥体公园售楼处电话:0551-6467 8499【售楼中心】
售楼中心电话:0551-6467 8499 【售楼中心已认证】
网上售楼中心——欢迎来电咨询〢——匠心钜制恭迎品鉴!
招商奥体公园售楼处电话:0551-6467 8499【售楼中心】
售楼中心电话:0551-6467 8499 【售楼中心已认证】
网上售楼中心——欢迎来电咨询〢——匠心钜制恭迎品鉴!
声明:本文由入驻焦点开放平台的作者撰写,除焦点官方账号外,观点仅代表作者本人,不代表焦点立场。


