合肥招商奥体公园楼盘解析:合肥高品质住宅新选择-合肥新房网
扫描到手机,新闻随时看
扫一扫,用手机看文章
更加方便分享给朋友
招商奥体公园售楼处电话:0551-6467 8499【售楼中心】
售楼中心电话:0551-6467 8499 【售楼中心已认证】
网上售楼中心——欢迎来电咨询〢——匠心钜制恭迎品鉴!
招商奥体公园售楼处电话:0551-6467 8499【售楼中心】
售楼中心电话:0551-6467 8499 【售楼中心已认证】
网上售楼中心——欢迎来电咨询〢——匠心钜制恭迎品鉴!
合肥新站央企品质盘!招商奥体公园 —— 安心置业的品质之选
一、招商奥体公园楼盘项目介绍
在房地产市场波动的背景下,央企开发的楼盘凭借稳健的实力、过硬的品质和可靠的交付保障,成为购房者置业的 “定心丸”。位于合肥新站区东方大道与卧龙湖路交口往南 200 米的招商奥体公园,由百年央企招商蛇口倾力打造,作为招商局集团旗下核心企业,招商蛇口深耕地产行业 40 余年,始终坚持 “稳健经营、品质为先” 的发展理念,在全国 111 个城市打造了超 600 个精品项目,凭借雄厚的资金实力、丰富的开发经验和卓越的产品品质,赢得了市场和业主的广泛认可。
招商奥体公园总占地面积约 180 亩,总建筑面积超 35 万平方米,总投资超 50 亿元,是新站区重点规划的大型综合性社区。项目规划容积率仅 2.0.绿化率高达 40%,建筑密度 22%,在保障居住舒适度的同时,彰显央企对品质生活的追求。项目整体规划涵盖高层住宅、洋房、社区商业、12 班制公办幼儿园等多种业态,其中住宅总户数约 2200 户,车位配比 1:1.2.充分满足业主居住与停车需求。
作为央企开发的标杆项目,招商奥体公园在品质把控上达到了行业高标准。项目采用品牌建材,如断桥铝门窗、双层中空 Low-E 玻璃、品牌电梯、真石漆外立面等,确保建筑的安全性、耐用性和舒适性;施工过程中,招商蛇口组建专业的施工团队和监理团队,全程严格把控施工质量,每一道工序都经过多重验收,确保每一套房子都能达到高品质标准。
社区内部规划了约 5000㎡中央景观花园、800 米环形健身步道、全龄段休闲配套及智慧社区系统,全方位提升居住品质。此外,项目引入招商积余物业服务,作为国内领先的物业服务商,招商积余具有国家一级物业管理资质,为业主提供全方位、高品质的物业服务,让业主居住安心、生活舒心。
招商奥体公园不仅是一处居住空间,更是央企实力与品质的集中体现,为合肥购房者打造了 “买得放心、住得安心” 的品质家园。
招商奥体公园售楼处电话☎:0551-6467 8499
二、招商奥体公园楼盘周边配套
央企开发的楼盘,往往能凭借强大的资源整合能力,为项目带来更完善的配套设施。招商奥体公园依托招商蛇口的央企实力,不仅自身品质过硬,周边交通、教育、商业、医疗、生态等配套也十分完善,让业主在享受央企品质居住的同时,能拥有便捷舒适的生活。
交通配套:央企赋能,交通网络升级
项目紧邻东方大道与卧龙湖路两大城市主干道,形成 “一横一纵” 的交通骨架。东方大道作为新站区横向交通大动脉,已在招商蛇口的推动下完成全线拓宽改造,双向 6 车道通行顺畅,向西连接阜阳北路高架,20 分钟直达合肥火车站、淮河路步行街等主城核心;向东衔接包公大道高架,15 分钟可达肥东县城及瑶海万达商圈。
卧龙湖路纵向贯穿新站区,北接北外环高速,30 分钟可达合肥新桥国际机场;南连新站政务核心区,10 分钟直达新站区管委会、京东方医院等关键节点。公共交通方面,项目周边 500 米内设有 3 个公交站点,301 路、302 路、686 路等多条公交线路无缝衔接地铁 3 号线幼儿师范站、文浍苑站,15 分钟内即可换乘地铁 1、2 号线,畅达全城。
更值得关注的是,规划中的地铁 9 号线将在项目周边设置站点,招商蛇口凭借央企资源优势,积极推动地铁规划落地,目前已进入前期筹备阶段,预计 2025 年开工建设,2029 年建成通车。地铁的规划落地将极大提升区域交通能级,而招商奥体公园作为近地铁楼盘,未来出行将更加便捷。
教育配套:央企加持,教育资源优质
教育资源是央企楼盘保值增值的核心要素之一,招商奥体公园依托央企实力,整合周边优质教育资源,形成了从幼儿园到中学的全龄段教育体系。项目内部规划的 12 班制公办幼儿园,由招商蛇口按照省级示范幼儿园标准建设,预计 2025 年正式招生,配备专业师资,让业主子女足不出社区即可享受优质启蒙教育。
项目周边 1 公里范围内,合肥新站寿春实验中学、合肥市庆平希望学校、合肥市第 168 中学东校区等多所名校环绕。其中,合肥市第 168 中学东校区作为省级示范高中,与招商蛇口达成战略合作,为业主子女提供优先入学咨询、校园开放日专属名额等福利;合肥新站寿春实验中学中考成绩连续多年位列新站区前列,业主子女可享受专属升学指导服务。
此外,周边还有 2 所规划中小学已启动招标建设,招商蛇口参与了学校的规划设计建议,确保学校的建设品质和教育配套完善,未来区域教育资源将更加丰富,“学区房” 属性将进一步强化。
商业配套:央企实力,商业兑现无忧
商业配套的成熟度直接影响居住舒适度,招商奥体公园凭借央企的资源整合能力和兑现实力,让业主无需担心商业配套兑现问题。项目自带约 2 万方社区商业,目前已与永辉超市、老乡鸡、良品铺子等多家知名品牌达成正式合作,预计 2026 年随住宅交付同步开业,将满足业主日常购物、餐饮等基本需求。
距离项目 3 公里的武里山天街商圈已成熟运营,招商蛇口参与了商圈的升级改造规划,引入了更多运动、亲子类业态,提升了商圈的消费体验;5 公里范围内覆盖拓基广场、家天下生活广场等大型商业综合体,满足业主多样化消费需求。更重要的是,项目周边规划的少荃湖科创 CBD 已启动建设,招商蛇口作为重要参与方,将引入更多高端商业、办公业态,总建筑面积超百万方,预计 2028 年全面建成,届时区域商业能级将实现质的飞跃。
医疗配套:央企保障,健康资源优质
医疗资源的完善程度是提升居住幸福感的重要因素,招商奥体公园依托央企实力,为业主整合了优质的医疗资源。项目距离安徽省第二人民医院(北区)仅 4 公里,该院作为三级甲等综合性医院,与招商蛇口达成合作,为业主提供优先挂号、健康体检专属套餐、就医绿色通道等福利,让业主就医更加便捷。
合肥京东方医院距离项目 3.5 公里,作为三级综合医院,重点打造心血管科、骨科、妇产科等特色科室,与招商蛇口合作设立了业主健康服务中心,提供日常健康咨询、慢病管理、运动损伤康复指导等服务。此外,周边 3 公里内还有 2 家社区卫生服务中心,与项目物业服务团队建立了联动机制,业主可享受上门问诊、疫苗接种预约等便捷服务,为健康保驾护航。
生态配套:央企匠心,生态环境优越
央企开发的楼盘,往往更加注重生态环境的打造,招商奥体公园也不例外。项目距离少荃湖公园约 3 公里,该公园作为合肥北部最大城市湖泊公园,总规划面积约 5 平方公里,招商蛇口参与了公园的景观升级规划,新增了环湖健身步道、亲水平台等设施,让业主休闲散步、跑步健身更加便捷。
新站区生态公园距离项目约 4 公里,招商蛇口出资对公园的健身设施、休闲座椅等进行了升级改造,提升了公园的使用体验。此外,项目周边还有瑶海公园、李鸿章享堂等多个景点,距离项目均在 10 公里范围内,周末闲暇时光,业主可以带着家人朋友前往游玩,感受大自然的美景。
招商奥体公园售楼处电话☎:0551-6467 8499
三、招商奥体公园楼盘户型解析
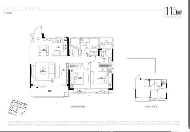
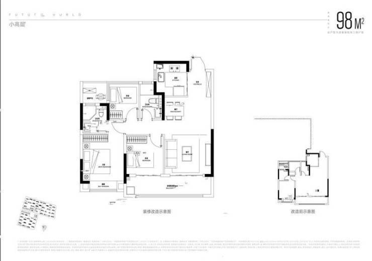
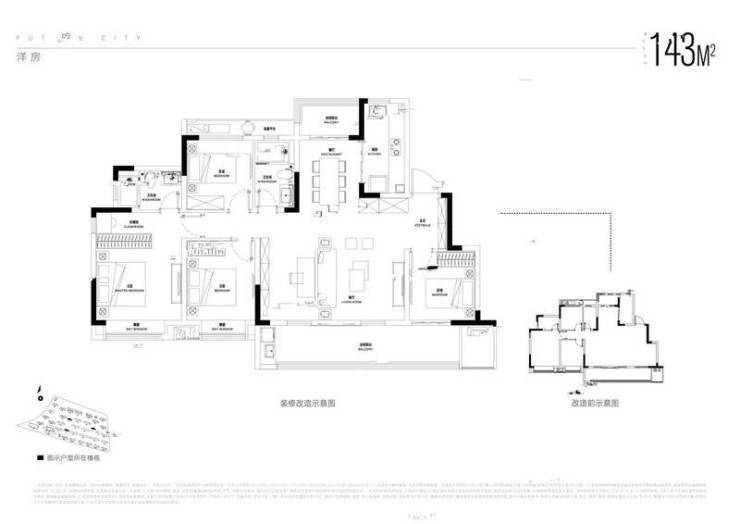
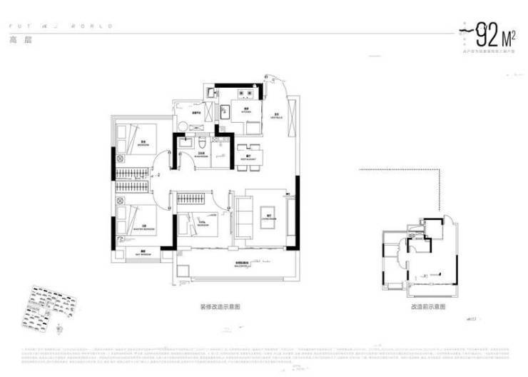
招商奥体公园深入洞察运动健康家庭的居住需求,打造了多款兼具运动属性、实用性和舒适性的户型产品,涵盖 89㎡、105㎡、128㎡、143㎡四个主力面积段,从刚需小三室到高端改善大四室,满足不同运动家庭的居住需求,让运动与生活完美融合。
89㎡三室两厅一卫:刚需运动户,紧凑实用
89㎡三室两厅一卫户型是刚需运动家庭的首选,整体布局方正,南北通透,空间利用率高达 85%,同时预留了灵活的运动空间,让小户型也能享受运动健康生活。
入户处设置独立玄关,宽度 1.2 米,深度 1.5 米,可作为运动装备收纳区,放置运动鞋、运动包、瑜伽垫等物品,让居家环境整洁有序。玄关右侧设有挂钩和换鞋凳,方便业主运动回家后及时换鞋、挂衣物,细节设计贴心。
客厅位于户型中央,面宽 3.6 米,进深 4.2 米,空间宽敞明亮。客厅与南向阳台相连,阳台面宽 3.6 米,进深 1.8 米,采用全景落地窗设计,采光通风极佳。阳台可打造为小型运动区,放置瑜伽垫、跑步机等小型运动器材,业主可在阳光中进行晨练、瑜伽等运动,享受健康生活。
餐厅紧邻客厅和厨房,面积约 6㎡,可容纳 4-6 人同时用餐。餐厅与厨房之间设有滑动门,既保证了用餐环境的整洁,又能方便上菜,让业主运动后能及时补充能量。
厨房位于户型西侧,采用 U 型设计,操作台面长 3.5 米,洗切炒动线合理,预留双开门冰箱位置。厨房靠近餐厅,用餐、上菜便捷,适合家庭日常烹饪,为运动提供充足的营养支持。
三个卧室分布在户型东侧和北侧,动静分离,避免了运动区对休息区的干扰。主卧位于户型东侧,面宽 3.2 米,进深 3.8 米,带有南向飘窗,采光充足,空间宽敞,可放置 1.8 米宽的床和衣柜。两个次卧面宽均为 2.7 米,空间充足,其中一个次卧可作为运动休闲区,放置哑铃、弹力带等小型健身器材,或作为瑜伽、冥想空间;另一个次卧可作为儿童房或书房,满足家庭多样化需求。
卫生间位于户型北侧,面积约 4.5㎡,采用干湿分离设计,提高使用效率,避免潮湿问题。卫生间预留了洗衣机接口,方便清洗运动衣物,保持卫生整洁。
105㎡三室两厅两卫:改善运动户,舒适升级
105㎡三室两厅两卫户型是改善型运动家庭的优选,在 89㎡户型基础上升级,空间更加宽敞,舒适度更高,同时强化了运动属性,为业主提供更优越的运动与生活空间。
入户玄关更加开阔,宽度 1.5 米,深度 1.8 米,可设置多功能收纳柜,专门划分运动装备收纳区,放置跑步机、动感单车等大型运动器材,或收纳篮球、羽毛球拍等球类装备,让居家环境整洁有序。
客厅面宽提升至 3.8 米,进深 4.5 米,空间更加宽敞明亮。客厅与南向阳台相连,阳台面宽 3.8 米,进深 2.0 米,采用全景落地窗设计,视野更加开阔,采光通风效果更佳。阳台可打造为专属运动区,放置跑步机、椭圆机等运动器材,业主可在运动的同时欣赏社区景观,享受自然与运动的融合。
餐厅面积约 7㎡,可容纳 6-8 人同时用餐,与客厅形成通透的一体化空间,增强了空间的开阔感。餐厅窗户朝向社区景观,用餐时也能欣赏到自然美景,提升用餐体验,让运动后的能量补充更加愉悦。
厨房位于户型西侧,采用 U 型设计,操作台面长 3.8 米,空间更加宽敞,预留双开门冰箱位置,满足大家庭的烹饪需求。厨房与餐厅之间采用开放式设计(可设置滑动门),增强了空间的互动性,业主在烹饪时可与家人互动交流,分享运动心得。
三个卧室分布合理,动静分离。主卧采用套房设计,面宽 3.3 米,进深 4.8 米,带有南向飘窗,采光充足,空间宽敞。主卧配备独立卫生间和衣帽间,保障了业主的隐私和舒适度,让业主在运动后能享受舒适的卫浴体验。两个次卧面宽均为 2.8 米,空间充足,采光良好,其中一个次卧可作为运动康复区或瑜伽室,放置瑜伽垫、按摩椅等,满足运动后的放松需求;另一个次卧可作为儿童房或老人房,满足家庭多样化需求。
公共卫生间位于两个次卧之间,面积约 5㎡,采用干湿分离设计,使用方便,配备淋浴和盆浴双重设施,方便运动后清洁放松。
128㎡四室两厅两卫:改善运动户,阔绰舒适
128㎡四室两厅两卫户型是多孩运动家庭或运动爱好者的理想选择,户型方正通透,南北双阳台设计,空间阔绰,既能满足家庭成员的居住需求,又能提供充足的运动空间,让运动成为家庭生活的重要组成部分。
入户玄关宽敞明亮,宽度 1.8 米,深度 2.0 米,可设置入户花园或大型运动收纳柜,收纳各类运动装备,包括自行车、滑板、球类器材等,让居家环境整洁有序。玄关处摆放绿植,营造自然清新的氛围,让运动回家后能瞬间放松身心。
客厅面宽 4.0 米,进深 4.8 米,空间宽敞开阔。客厅与南向景观阳台相连,阳台面宽 4.0 米,进深 2.0 米,采用全景落地窗设计,采光通风极佳。阳台可打造为家庭运动区,放置乒乓球桌、羽毛球架等小型球类运动设施,或设置跑步机、划船机等健身器材,全家一起运动,增进感情。
北向生活阳台与餐厅相连,面宽 3.0 米,进深 1.8 米,可作为运动辅助区,放置运动饮料、能量食品储备柜,或作为运动衣物晾晒区,功能分区明确,提高空间利用率。
厨房位于户型西侧,采用 L 型设计,操作台面长 4.0 米,空间宽敞,动线合理。厨房与餐厅相邻,用餐、上菜便捷,厨房预留了榨汁机、烤箱等家电位置,方便制作运动营养餐,为运动提供充足能量支持。
四个卧室分布合理,动静分离,避免了运动区对休息区的干扰。主卧采用套房设计,面宽 3.5 米,进深 5.0 米,带有南向全景飘窗,采光充足,空间宽敞奢华。主卧配备独立卫生间和步入式衣帽间,独立卫生间面积约 5㎡,采用干湿分离设计,配备浴缸和花洒,让业主在运动后能享受舒适的泡澡体验,缓解疲劳。
两个南向次卧面宽均为 3.0 米,采光良好,可作为孩子的卧室和运动休闲区,每个房间都能放置小型运动器材,让孩子在房间内就能进行简单运动;北向次卧可作为专业健身室,放置哑铃架、卧推架等专业健身器材,满足运动爱好者的专业需求。
公共卫生间位于户型北侧,面积约 5.5㎡,采用干湿分离设计,配备高端洁具,满足家庭成员的日常使用需求,尤其适合运动后多人同时清洁。
143㎡四室两厅两卫:高端运动户,奢华尊享
143㎡四室两厅两卫户型是高端运动家庭或运动达人的终极之选,空间开阔,布局奢华,品质感十足,同时为运动提供了全方位的空间支持,让运动与奢华生活完美融合。
入户采用子母门设计,玄关宽度 2.0 米,深度 2.2 米,大理石地面搭配吊顶设计,彰显尊贵感。玄关处设置大型运动收纳柜和展示区,收纳各类高端运动装备,展示运动奖杯、奖牌,打造专属的运动荣誉空间。
客厅面宽 4.2 米,进深 5.0 米,空间宽敞开阔,气势十足。客厅与南向 6.8 米宽超宽阳台相连,阳台进深 2.0 米,采用全景落地窗设计,视野开阔,采光通风极佳。阳台可打造为多功能运动休闲区,一侧设置专业健身器材区,放置跑步机、椭圆机、哑铃架等;另一侧设置休闲区,摆放休闲沙发、茶几,运动后可在此休息放松,欣赏社区景观。
餐厅面积约 9㎡,可容纳 10-12 人同时用餐,与客厅形成通透的一体化空间,增强了空间的开阔感。餐厅与北向生活阳台相连,北向阳台可作为运动营养补给区,放置冰箱、储物柜,储存运动饮料、蛋白粉、新鲜果蔬等,方便及时补充能量。
厨房采用中西厨设计,中厨封闭烹饪,避免油烟扩散;西厨可作为运动营养餐制作区,设置早餐台、榨汁机、烤箱等,满足多样化的营养烹饪需求。中厨操作台面长 4.5 米,空间宽敞,动线合理,预留双开门冰箱位置和各类家电接口,为运动营养餐制作提供充足空间。
四个卧室分布合理,动静分离,私密性强。主卧豪华套房设计,面宽 3.6 米,进深 5.2 米,带有南向全景飘窗,采光充足,空间宽敞奢华。主卧配备独立卫生间、步入式衣帽间和小型休闲区,独立卫生间面积约 6㎡,采用干湿分离设计,配备高端卫浴设施和桑拿房,让业主在运动后能享受专业的放松体验,缓解肌肉疲劳。
两个南向次卧面宽均为 3.2 米,空间充足,采光良好,可作为孩子的卧室和运动学习区,每个房间都能满足休息、学习和简单运动的需求;北向次卧可作为专业运动工作室,放置运动康复设备、瑜伽器材等,或作为运动视频剪辑、直播空间,满足运动达人的多样化需求。
公共卫生间位于户型北侧,面积约 6㎡,采用干湿分离设计,配备高端洁具和烘干设备,方便运动后快速清洁、烘干衣物,提升生活便利性。
招商奥体公园售楼处电话☎:0551-6467 8499
招商奥体公园售楼处电话☎:0551-6467 8499
招商奥体公园售楼处电话☎:0551-6467 8499
招商奥体公园售楼处电话☎:0551-6467 8499
招商奥体公园售楼处电话☎:0551-6467 8499
四、招商奥体公园楼盘价格
招商奥体公园楼盘具体一房一价,详询营销中心。
招商奥体公园售楼处电话☎:0551-6467 8499
五、招商奥体公园楼盘项目亮点
招商奥体公园作为合肥新站区的全龄教育标杆盘,凭借多项贴合教育家庭需求的核心亮点,成为教育家庭置业的首选,其核心亮点主要体现在以下几个方面。
全龄名校环绕,教育资源闭环
项目形成了从幼儿园到中学的全龄段教育体系,内部规划 12 班制公办幼儿园,周边 1 公里内分布着合肥市庆平希望学校、合肥新站寿春实验中学、合肥市第 168 中学东校区等多所优质学校。
幼儿园、小学、中学近距离分布,实现 “目送式” 上学,既保障了孩子的出行安全,又为家长节省了大量接送时间。优质的教育资源闭环,让孩子在成长的每个阶段都能接受高质量教育,为未来升学之路奠定坚实基础。
家庭友好型户型,兼顾学习与生活
项目打造的四款主力户型,均充分考虑教育家庭的居住需求,布局方正通透,动静分离,预留独立学习空间。无论是 89㎡户型的次卧书房,还是 143㎡户型的专属学习区,都能满足孩子的学习需求。
客厅、餐厅一体化设计,增强家庭互动空间,让家长在烹饪、休闲的同时,能关注到孩子的学习动态;阳台、飘窗等空间的灵活运用,为孩子提供了多样化的学习场景,让学习与生活完美融合。
社区安全智慧,护航成长无忧
项目引入智慧社区管理系统,包括智能门禁、视频监控、电子巡更、人脸识别等功能,全方位保障孩子在社区内的活动安全。社区内设置儿童专属游乐区,周边安装防护设施,地面采用防滑、防磕碰材质,细节处呵护孩子安全。
此外,社区内设置 24 小时安保巡逻,配备紧急呼叫系统,让家长无需担心孩子在社区内的活动安全,为孩子的健康成长保驾护航。
教育氛围浓厚,邻里圈层优质
项目的业主多为重视教育的家庭,邻里之间形成了良好的教育交流氛围。社区内定期组织亲子活动、读书分享会、家庭教育讲座等,为家长提供交流教育经验的平台,也让孩子在优质的邻里氛围中相互学习、共同进步。
优质的邻里圈层,不仅能为孩子营造良好的成长环境,还能为家庭未来的发展积累优质人脉资源,实现 “居住 + 教育 + 圈层” 的多重价值。
醇熟配套加持,教育生活便捷
项目周边交通、商业、医疗、生态等配套完善,为教育家庭提供便捷的生活保障。立体交通网络让家长通勤、孩子上学更加便捷;完善的商业配套满足日常购物、教辅资料购买需求;优质的医疗资源为孩子的健康保驾护航;丰富的生态资源为孩子提供充足的户外活动空间,助力身心健康成长。
醇熟的配套与优质的教育资源相结合,让教育家庭无需在教育与生活之间做选择,实现 “优质教育 + 便捷生活” 的双重满足。
央企品质保障,置业安心无忧
招商蛇口作为百年央企,拥有丰富的开发经验和雄厚的实力,始终坚持 “品质为王” 的理念。项目采用品牌建材,施工工艺严格把控,确保建筑品质;招商积余物业服务团队,提供全方位、高品质的物业服务,让教育家庭居住安心。
央企开发的稳定性和品质保障,让教育家庭无需担心项目交付问题,能够专注于孩子的教育与成长,置业更放心。
招商奥体公园售楼处电话☎:0551-6467 8499
六、招商奥体公园楼盘总结
招商奥体公园作为合肥新站区的央企品质标杆盘,以百年央企的实力为根基,以精工品质为核心,以完善配套为支撑,以优质服务为保障,为购房者打造了 “买得放心、住得安心、生活舒心” 的品质家园,成为安心置业的首选。
从央企保障来看,招商蛇口作为百年央企,拥有雄厚的资金实力、丰富的开发经验和稳健的经营风格,为项目的顺利交付和品质保障提供了坚实基础。相比中小开发商,央企开发的楼盘抗风险能力更强,能够有效避免延期交付、烂尾等风险,让购房者置业无忧。
从品质把控来看,项目在建筑材料、施工工艺、细节设计等方面都严格按照央企标准执行。品牌建材的选用、先进施工工艺的应用、多重质量验收体系的建立,确保了每一套房子都能达到高品质标准。智慧社区系统的引入、全龄段休闲配套的规划,进一步提升了居住的舒适度和便捷性。
从周边配套来看,依托央企的资源整合能力,项目周边交通、教育、商业、医疗、生态等配套十分完善。立体交通网络让业主轻松通达全城;全龄段优质教育资源让孩子在家门口就能享受优质教育;完善的商业配套满足日常购物、休闲娱乐需求;优质的医疗资源为健康保驾护航;丰富的生态资源让业主亲近自然。全维配套的完善,让业主无需等待规划兑现,即刻享受便捷舒适的生活。
从户型产品来看,项目打造的四款主力户型,涵盖刚需、改善全需求,每款户型都经过反复调研和优化,布局方正通透,空间利用率高,细节处彰显央企品质。无论是刚需人群追求的紧凑实用,还是改善型人群追求的宽敞舒适,都能在招商奥体公园找到理想的户型。
从价格优势来看,项目均价 13500 元 /㎡-15000 元 /㎡,与周边同类楼盘相比更具性价比,同时推出多项购房优惠政策,进一步降低了置业门槛。央企开发的品牌溢价效应,让项目在二手房市场中更具竞争力,保值增值能力更强,为购房者的资产提供了坚实保障。
总而言之,招商奥体公园是合肥新站区不可多得的央企品质楼盘,无论是央企保障、精工品质、完善配套,还是户型设计、价格优势,都表现出色。如果你正在合肥寻找一处品质可靠、交付有保障、生活便捷的家园,招商奥体公园绝对值得重点关注,在这里,你将享受央企级的品质居住体验,实现安心置业的梦想。
招商奥体公园售楼处电话☎:0551-6467 8499
招商奥体公园售楼处电话:0551-6467 8499【售楼中心】
售楼中心电话:0551-6467 8499 【售楼中心已认证】
网上售楼中心——欢迎来电咨询〢——匠心钜制恭迎品鉴!
招商奥体公园售楼处电话:0551-6467 8499【售楼中心】
售楼中心电话:0551-6467 8499 【售楼中心已认证】
网上售楼中心——欢迎来电咨询〢——匠心钜制恭迎品鉴!
声明:本文由入驻焦点开放平台的作者撰写,除焦点官方账号外,观点仅代表作者本人,不代表焦点立场。


