合肥招商奥体公园官方发布最新信息:合肥红盘,安心置业的品质之选
扫描到手机,新闻随时看
扫一扫,用手机看文章
更加方便分享给朋友
招商奥体公园售楼处电话:0551-6467 8499【售楼中心】
售楼中心电话:0551-6467 8499 【售楼中心已认证】
网上售楼中心——欢迎来电咨询〢——匠心钜制恭迎品鉴!
招商奥体公园售楼处电话:0551-6467 8499【售楼中心】
售楼中心电话:0551-6467 8499 【售楼中心已认证】
网上售楼中心——欢迎来电咨询〢——匠心钜制恭迎品鉴!
三、招商奥体公园楼盘户型解析
户型是居住体验的核心,招商奥体公园深入洞察合肥购房者的居住需求,结合项目低密生态的规划优势,打造了多款兼具实用性、舒适性和性价比的户型产品,涵盖 89㎡、105㎡、128㎡、143㎡四个主力面积段,从刚需小三室到高端改善大四室,满足不同家庭结构和生活需求的购房者。
89㎡三室两厅一卫:刚需首选,紧凑实用
89㎡三室两厅一卫户型是项目的刚需主力户型,整体布局方正,南北通透,空间利用率高达 85%,没有浪费空间,是刚需人群置业的理想选择。
入户处设置了独立玄关,玄关宽度约 1.2 米,深度约 1.5 米,既保证了室内的隐私性,又能作为收纳空间,放置鞋柜、衣帽架、行李箱等物品,让居家生活更加整洁有序。玄关右侧设有挂钩和换鞋凳,方便业主进门后及时换鞋、挂衣物,细节设计十分贴心。
客厅位于户型中央,面宽 3.6 米,进深 4.2 米,建筑面积约 15㎡,空间宽敞明亮。客厅与南向阳台相连,阳台面宽 3.6 米,进深 1.8 米,建筑面积约 6.5㎡,采用全景落地窗设计,最大化引入自然光线,让客厅更加明亮通透。阳台可根据需求进行个性化改造,设置休闲区、晾晒区或绿植区,满足多样化的生活需求。
餐厅紧邻客厅和厨房,建筑面积约 6㎡,可容纳 4-6 人同时用餐。餐厅与厨房之间设有滑动门,既保证了用餐环境的整洁,又能方便上菜。厨房位于户型西侧,采用 U 型设计,操作台面长度约 3.5 米,洗切炒动线合理,预留了双开门冰箱位置,同时配备了燃气热水器、抽油烟机、燃气灶等基础家电接口,满足日常烹饪需求。
三个卧室分布在户型的东侧和北侧,动静分离,避免了活动区对休息区的干扰。主卧位于户型东侧,面宽 3.2 米,进深 3.8 米,建筑面积约 12㎡,带有南向飘窗,采光充足,空间宽敞,可放置 1.8 米宽的床和衣柜。两个次卧分别位于户型北侧和东侧,面宽均为 2.7 米,进深 3.2 米,建筑面积约 8.6㎡,可作为儿童房、老人房或书房,满足不同家庭的居住需求。
卫生间位于户型北侧,建筑面积约 4.5㎡,采用干湿分离设计,将淋浴区与洗漱区、马桶区分开,提高了使用效率,避免了潮湿问题。卫生间配备了花洒、马桶、洗手盆等基础洁具,同时预留了洗衣机接口,方便业主使用。
105㎡三室两厅两卫:改善刚需,舒适升级
105㎡三室两厅两卫户型是在 89㎡户型基础上的升级版本,空间更加宽敞,舒适度更高,适合改善型刚需人群,既能满足家庭成员的居住需求,又能保证居住的舒适性。
入户玄关更加开阔,宽度约 1.5 米,深度约 1.8 米,可设置多功能收纳柜,满足家庭更多的收纳需求。玄关处采用大理石地面,与室内木地板形成鲜明对比,彰显品质感。
客厅面宽提升至 3.8 米,进深 4.5 米,建筑面积约 17㎡,空间更加宽敞明亮。客厅与南向阳台相连,阳台面宽 3.8 米,进深 2.0 米,建筑面积约 7.6㎡,采用全景落地窗设计,视野更加开阔,采光通风效果更佳。阳台可设置休闲沙发、茶几,打造专属的休闲空间,欣赏社区美景。
餐厅建筑面积约 7㎡,可容纳 6-8 人同时用餐,与客厅形成通透的一体化空间,增强了空间的开阔感。厨房位于户型西侧,采用 U 型设计,操作台面长度约 3.8 米,空间更加宽敞,预留了双开门冰箱位置,满足大家庭的烹饪需求。厨房与餐厅之间采用开放式设计(可根据需求设置滑动门),增强了空间的互动性。
三个卧室分布合理,动静分离。主卧位于户型东侧,采用套房设计,面宽 3.3 米,进深 4.8 米,建筑面积约 16㎡,配备独立卫生间和衣帽间。主卧带有南向飘窗,采光充足,空间宽敞舒适,可放置 1.8 米宽的床、衣柜和梳妆台。独立卫生间建筑面积约 4㎡,采用干湿分离设计,配备花洒、马桶、洗手盆等洁具,保证了主人的隐私和居住舒适度。
两个次卧分别位于户型北侧和东侧,面宽均为 2.8 米,进深 3.5 米,建筑面积约 9.8㎡,空间充足,可放置 1.5 米宽的床和衣柜。其中一个次卧带有南向飘窗,采光良好,可作为儿童房;另一个次卧可作为老人房或书房,满足多样化的居住需求。
公共卫生间位于户型北侧,建筑面积约 5㎡,采用干湿分离设计,位于两个次卧之间,使用方便。公共卫生间配备了花洒、马桶、洗手盆、洗衣机接口等,满足家庭成员的日常使用需求。
128㎡四室两厅两卫:改善优选,空间阔绰
128㎡四室两厅两卫户型是项目的改善主力户型,户型方正通透,南北双阳台设计,空间阔绰,舒适度高,适合家庭成员较多的改善型人群。
入户玄关宽敞明亮,宽度约 1.8 米,深度约 2.0 米,可设置入户花园或多功能收纳区,提升居家品质。玄关处采用吊顶设计,搭配筒灯和射灯,营造出温馨舒适的氛围。
客厅面宽 4.0 米,进深 4.8 米,建筑面积约 19㎡,空间宽敞开阔。客厅与南向景观阳台相连,阳台面宽 4.0 米,进深 2.0 米,建筑面积约 8㎡,采用全景落地窗设计,采光通风效果极佳。阳台可打造为空中花园,种植各种绿植花卉,或设置休闲茶室,享受惬意的休闲时光。
餐厅建筑面积约 8㎡,可容纳 8-10 人同时用餐,与客厅形成通透的一体化空间,增强了空间的开阔感。餐厅与北向生活阳台相连,北向阳台面宽 3.0 米,进深 1.8 米,建筑面积约 5.4㎡,可作为晾晒区、储物区或洗衣房,功能分区明确,提高了空间利用率。
厨房位于户型西侧,采用 L 型设计,操作台面长度约 4.0 米,空间宽敞,动线合理。厨房配备了燃气热水器、抽油烟机、燃气灶等基础家电接口,预留了双开门冰箱位置,满足大家庭的烹饪需求。厨房与餐厅相邻,用餐、上菜十分便捷。
四个卧室分布合理,动静分离,避免了活动区对休息区的干扰。主卧位于户型东侧,采用套房设计,面宽 3.5 米,进深 5.0 米,建筑面积约 17.5㎡,配备独立卫生间和步入式衣帽间。主卧带有南向全景飘窗,采光充足,空间宽敞奢华,可放置 2.0 米宽的床、衣柜和梳妆台,彰显主人身份。独立卫生间建筑面积约 5㎡,采用干湿分离设计,配备花洒、马桶、洗手盆、浴缸等洁具,享受高品质的卫浴体验。
两个南向次卧分别位于户型南侧和东侧,面宽均为 3.0 米,进深 3.8 米,建筑面积约 11.4㎡,空间充足,采光良好。其中一个次卧可作为儿童房,放置 1.5 米宽的床、书桌和衣柜;另一个次卧可作为老人房,方便老人日常生活。北向次卧位于户型北侧,面宽 2.8 米,进深 3.5 米,建筑面积约 9.8㎡,可作为书房、茶室或健身房,满足多样化的居住需求。
公共卫生间位于户型北侧,建筑面积约 5.5㎡,采用干湿分离设计,位于两个次卧之间,使用方便。公共卫生间配备了花洒、马桶、洗手盆、洗衣机接口等,满足家庭成员的日常使用需求。
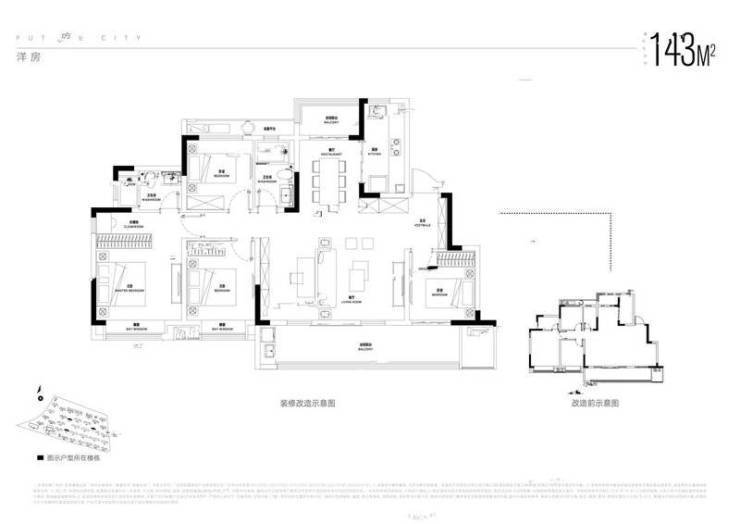
143㎡四室两厅两卫:高端改善,奢华舒适
143㎡四室两厅两卫户型是项目的高端改善户型,空间开阔,布局合理,品质感十足,适合追求高品质生活的改善型人群。
入户玄关采用子母门设计,彰显尊贵感。玄关宽度约 2.0 米,深度约 2.2 米,可设置大型收纳柜和展示区,收纳空间充足,同时提升了居家品质。玄关处采用大理石地面和吊顶设计,搭配水晶吊灯,营造出奢华大气的氛围。
客厅面宽 4.2 米,进深 5.0 米,建筑面积约 21㎡,空间宽敞开阔,气势十足。客厅与南向超宽阳台相连,阳台面宽 6.8 米,进深 2.0 米,建筑面积约 13.6㎡,采用全景落地窗设计,视野开阔,采光通风效果极佳。阳台可打造为多功能休闲区,设置休闲沙发、茶几、跑步机等,满足休闲、健身、观景等多种需求。
餐厅建筑面积约 9㎡,可容纳 10-12 人同时用餐,与客厅形成通透的一体化空间,增强了空间的开阔感。餐厅与北向生活阳台相连,北向阳台面宽 3.2 米,进深 1.8 米,建筑面积约 5.8㎡,可作为晾晒区、储物区或洗衣房,功能分区明确。
厨房位于户型西侧,采用中西厨设计,中厨封闭烹饪,避免油烟扩散;西厨可作为早餐台、吧台,满足多样化的烹饪需求。中厨采用 U 型设计,操作台面长度约 4.5 米,空间宽敞,动线合理,预留了双开门冰箱位置和各种家电接口。西厨与餐厅相邻,用餐便捷,同时增强了空间的互动性。
四个卧室分布合理,动静分离,私密性强。主卧位于户型东侧,采用豪华套房设计,面宽 3.6 米,进深 5.2 米,建筑面积约 18.7㎡,配备独立卫生间、步入式衣帽间和南向全景飘窗。主卧空间宽敞奢华,可放置 2.0 米宽的床、衣柜、梳妆台和休闲沙发,彰显主人的尊贵身份。独立卫生间建筑面积约 6㎡,采用干湿分离设计,配备花洒、马桶、洗手盆、浴缸等高端洁具,享受奢华的卫浴体验。
两个南向次卧分别位于户型南侧和东侧,面宽均为 3.2 米,进深 4.0 米,建筑面积约 12.8㎡,空间充足,采光良好。其中一个次卧可作为儿童房,放置 1.8 米宽的床、书桌和衣柜;另一个次卧可作为老人房,配备独立的卫生间(可选装),方便老人日常生活。北向次卧位于户型北侧,面宽 3.0 米,进深 3.8 米,建筑面积约 11.4㎡,可作为书房、影音室或健身房,满足多样化的居住需求。
公共卫生间位于户型北侧,建筑面积约 6㎡,采用干湿分离设计,配备高端洁具,满足家庭成员的日常使用需求。
招商奥体公园售楼处电话☎:0551-6467 8499
招商奥体公园售楼处电话☎:0551-6467 8499
招商奥体公园售楼处电话☎:0551-6467 8499
招商奥体公园售楼处电话☎:0551-6467 8499
招商奥体公园售楼处电话☎:0551-6467 8499
二、招商奥体公园楼盘周边配套
对于投资型购房者而言,周边配套的完善程度与规划兑现能力,直接决定了楼盘的升值潜力。招商奥体公园凭借得天独厚的区位优势,坐拥交通、教育、商业、医疗、生态等全方位的优质配套,且多项核心配套处于持续升级中,未来价值增长空间清晰可见。
交通配套:多维交通升级,激活区域价值
项目紧邻东方大道与卧龙湖路两大城市主干道,形成 “一横一纵” 的交通骨架。东方大道作为新站区横向交通大动脉,已完成全线拓宽改造,双向 6 车道通行顺畅,向西连接阜阳北路高架,20 分钟直达合肥火车站、淮河路步行街等主城核心;向东衔接包公大道高架,15 分钟可达肥东县城及瑶海万达商圈。卧龙湖路纵向贯穿新站区,北接北外环高速,30 分钟可达合肥新桥国际机场;南连新站政务核心区,10 分钟直达新站区管委会、京东方医院等关键节点。
公共交通方面,项目周边 500 米内设有 3 个公交站点,301 路、302 路、686 路等多条公交线路无缝衔接地铁 3 号线幼儿师范站、文浍苑站,15 分钟内即可换乘地铁 1、2 号线,畅达全城。更值得关注的是,规划中的地铁 9 号线将在项目周边设置站点,目前已进入前期筹备阶段,预计 2025 年开工建设,2029 年建成通车。地铁的规划落地将极大提升区域交通能级,而招商奥体公园作为近地铁楼盘,未来升值潜力将进一步凸显。
教育配套:全龄学区加持,夯实保值基础
教育资源是房产保值增值的核心要素之一,招商奥体公园周边已形成从幼儿园到中学的全龄段优质教育体系,且教育资源持续升级。项目内部规划的 12 班制公办幼儿园,预计 2025 年正式招生,采用高标准建设,配备专业师资,让业主子女足不出社区即可享受优质启蒙教育。
步行 1 公里范围内,合肥新站寿春实验中学、合肥市庆平希望学校、合肥市第 168 中学东校区等多所名校环绕。其中,合肥新站寿春实验中学中考成绩连续多年位列新站区前列,合肥市第 168 中学东校区作为省级示范高中,高考本科率常年保持在 95% 以上,是合肥家长公认的优质学区。此外,周边还有 2 所规划中小学已启动招标建设,未来区域教育资源将更加丰富,“学区房” 属性将进一步强化项目的保值增值能力。
商业配套:繁华商业兑现,提升生活价值
商业配套的成熟度直接影响居住舒适度与房产流动性,招商奥体公园周边商业配套正加速兑现。项目自带约 2 万方社区商业,目前已与多家知名超市、生鲜卖场、品牌餐饮达成意向合作,预计 2026 年随住宅交付同步开业,将满足业主日常购物、餐饮等基本需求。
距离项目 3 公里的武里山天街商圈已成熟运营,永辉超市、大地影院、肯德基等主力业态齐全;5 公里范围内覆盖拓基广场、家天下生活广场等大型商业综合体,满足业主多样化消费需求。更重要的是,项目周边规划的少荃湖科创 CBD 已启动建设,将打造集商业、办公、休闲于一体的大型商业集群,总建筑面积超百万方,预计 2028 年全面建成。届时,区域商业能级将实现质的飞跃,招商奥体公园将直接受益于商业配套升级带来的价值提升。
医疗配套:优质医疗护航,增强居住吸引力
医疗资源的完善程度是提升房产居住吸引力的重要因素,招商奥体公园周边医疗资源丰富且优质。项目距离安徽省第二人民医院(北区)仅 4 公里,该院作为三级甲等综合性医院,开放床位 2000 余张,涵盖所有主流科室,能为业主提供高水平医疗服务。
合肥京东方医院距离项目 3.5 公里,作为三级综合医院,重点打造心血管科、骨科、妇产科等特色科室,医疗设备先进,服务质量优质。此外,周边 3 公里内还有 2 家社区卫生服务中心,日常就医、体检极为便捷。优质医疗资源的环绕,不仅能为业主健康保驾护航,更能提升房产对改善型购房者和老年群体的吸引力,增强房产的流通性与升值潜力。
生态配套:公园集群赋能,提升居住品质
生态环境的优劣已成为现代购房者置业的重要考量因素,招商奥体公园周边生态资源丰富,形成 “一湖多园” 的生态格局。项目距离少荃湖公园约 3 公里,该公园作为合肥北部最大城市湖泊公园,总规划面积约 5 平方公里,目前已完成一期建设,二期湿地景观、科创 CBD 景观带正在施工,预计 2027 年全面建成。
新站区生态公园、瑶海公园等城市公园距离项目均在 5 公里范围内,为业主提供了丰富的休闲娱乐场所。随着城市居民对生态居住需求的提升,拥有优质生态配套的房产将更具市场竞争力,招商奥体公园的生态优势将持续转化为价值优势。
招商奥体公园售楼处电话☎:0551-6467 8499
四、招商奥体公园楼盘价格
招商奥体公园楼盘具体一房一价,详询营销中心。
招商奥体公园售楼处电话☎:0551-6467 8499
合肥新站央企品质盘!招商奥体公园 —— 安心置业的品质之选
一、招商奥体公园楼盘项目介绍
在房地产市场波动的背景下,央企开发的楼盘凭借稳健的实力、过硬的品质和可靠的交付保障,成为购房者置业的 “定心丸”。位于合肥新站区东方大道与卧龙湖路交口往南 200 米的招商奥体公园,由百年央企招商蛇口倾力打造,作为招商局集团旗下核心企业,招商蛇口深耕地产行业 40 余年,始终坚持 “稳健经营、品质为先” 的发展理念,在全国 111 个城市打造了超 600 个精品项目,凭借雄厚的资金实力、丰富的开发经验和卓越的产品品质,赢得了市场和业主的广泛认可。
招商奥体公园总占地面积约 180 亩,总建筑面积超 35 万平方米,总投资超 50 亿元,是新站区重点规划的大型综合性社区。项目规划容积率仅 2.0.绿化率高达 40%,建筑密度 22%,在保障居住舒适度的同时,彰显央企对品质生活的追求。项目整体规划涵盖高层住宅、洋房、社区商业、12 班制公办幼儿园等多种业态,其中住宅总户数约 2200 户,车位配比 1:1.2.充分满足业主居住与停车需求。
作为央企开发的标杆项目,招商奥体公园在品质把控上达到了行业高标准。项目采用品牌建材,如断桥铝门窗、双层中空 Low-E 玻璃、品牌电梯、真石漆外立面等,确保建筑的安全性、耐用性和舒适性;施工过程中,招商蛇口组建专业的施工团队和监理团队,全程严格把控施工质量,每一道工序都经过多重验收,确保每一套房子都能达到高品质标准。
社区内部规划了约 5000㎡中央景观花园、800 米环形健身步道、全龄段休闲配套及智慧社区系统,全方位提升居住品质。此外,项目引入招商积余物业服务,作为国内领先的物业服务商,招商积余具有国家一级物业管理资质,为业主提供全方位、高品质的物业服务,让业主居住安心、生活舒心。
招商奥体公园不仅是一处居住空间,更是央企实力与品质的集中体现,为合肥购房者打造了 “买得放心、住得安心” 的品质家园。
招商奥体公园售楼处电话☎:0551-6467 8499
五、招商奥体公园楼盘项目亮点
招商奥体公园之所以成为合肥新站区的投资热门楼盘,核心在于其具备多项突出亮点,这些亮点共同构成了项目的核心投资价值,使其在市场中脱颖而出。
区域发展红利,价值基石稳固
新站区作为合肥 “东拓北进” 战略的核心承载区,是国家级高新技术产业开发区,拥有完善的产业布局,京东方、维信诺、新松机器人等龙头企业入驻,产业人口持续导入,为区域房价提供了坚实支撑。
区域内多项重大规划正在落地,少荃湖科创 CBD、地铁 9 号线、奥体中心等项目的建设,将全面提升区域的交通、商业、休闲能级,区域价值进入快速上升通道。招商奥体公园作为区域核心位置的标杆楼盘,将直接受益于区域发展红利,价值增长空间清晰可见。
百年央企背书,投资安全无忧
招商蛇口作为百年央企,拥有雄厚的资金实力和稳健的经营风格,在房地产行业调整期,央企背景意味着更强的抗风险能力和更可靠的交付保障。项目自开工以来,工程进度稳步推进,已实现多栋楼封顶,交付无忧。
央企开发的楼盘在二手房市场中具有更高的认可度和流通性,品牌溢价效应显著。相比中小开发商楼盘,招商奥体公园的房产在未来出售时,不仅更容易成交,还能获得更高的售价,为投资客提供了安全的投资保障。
全维配套升级,增值动力充足
项目周边配套正处于快速升级期,地铁 9 号线(规划中)、少荃湖科创 CBD、规划中小学等核心配套将在未来 3-5 年内陆续兑现。每一项配套的落地,都将直接推动房产价值上涨。
交通方面,地铁 9 号线通车后,预计将带动房价上涨 10%-15%;商业方面,少荃湖科创 CBD 建成后,区域商业能级提升,将为房价提供持续增值动力;教育方面,规划中小学建成后,项目
六、招商奥体公园楼盘总结
招商奥体公园作为合肥新站区的投资标杆楼盘,凭借区域发展红利、百年央企背书、全维配套升级、低密生态稀缺、户型流通性强、高性价比等多重核心优势,成为众多投资客的首选,其投资价值在合肥楼市中尤为突出。
从区域价值来看,新站区作为合肥 “东拓北进” 战略的核心承载区,国家级开发区的政策红利、完善的产业布局和持续升级的城市配套,为区域房价提供了坚实支撑。未来 3-5 年内,地铁 9 号线、少荃湖科创 CBD、规划中小学等核心配套将陆续兑现,区域价值将进入快速上升通道,而招商奥体公园作为区域核心位置的标杆楼盘,将直接受益于这一波发展红利,价值增长空间清晰可见。
从品牌保障来看,招商蛇口作为百年央企,拥有雄厚的资金实力、丰富的开发经验和稳健的经营风格,为项目的顺利交付和品质保障提供了坚实基础。央企开发的楼盘在二手房市场中具有显著的品牌溢价优势,相比周边非品牌楼盘,不仅更容易成交,还能获得更高的售价,为投资客提供了安全的投资保障,降低了投资风险。
从配套价值来看,项目周边交通、教育、商业、医疗、生态等配套正处于快速升级期。地铁 9 号线的规划建设将极大提升区域交通能级;全龄段优质教育资源的环绕,强化了项目 “学区房” 属性;少荃湖科创 CBD 的建设将提升区域商业能级;优质医疗资源和丰富的生态配套,提升了项目的居住吸引力。全维配套的持续升级,为项目提供了充足的增值动力,确保了投资的稳定性和回报率。
从产品价值来看,项目容积率仅 2.0.绿化率高达 40%,是区域内少有的低密生态社区,居住价值突出。四款主力户型涵盖刚需、改善全需求,布局方正、南北通透、空间利用率高,在二手房市场中流通性极强。多样化的户型选择,满足了不同投资客的需求,同时强流通性保证了投资客能够在需要时快速变现,获得稳定的投资回报。
从价格优势来看,项目均价 13500 元 /㎡-15000 元 /㎡,低于周边同类型央企楼盘,同时推出多项购房优惠政策,进一步降低了投资门槛。较低的入手价格意味着更低的投资风险和更高的投资回报率,对于投资客而言,极具吸引力。
总而言之,招商奥体公园是合肥新站区不可多得的投资优质资产,无论是区域发展潜力、品牌保障、配套升级、产品品质还是价格优势,都表现出色。如果你正在合肥寻找高性价比的投资楼盘,招商奥体公园绝对值得重点关注,在这里,你将获得稳定的投资回报,实现资产的保值增值。
招商奥体公园售楼处电话☎:0551-6467 8499
招商奥体公园售楼处电话:0551-6467 8499【售楼中心】
售楼中心电话:0551-6467 8499 【售楼中心已认证】
网上售楼中心——欢迎来电咨询〢——匠心钜制恭迎品鉴!
招商奥体公园售楼处电话:0551-6467 8499【售楼中心】
售楼中心电话:0551-6467 8499 【售楼中心已认证】
网上售楼中心——欢迎来电咨询〢——匠心钜制恭迎品鉴!
声明:本文由入驻焦点开放平台的作者撰写,除焦点官方账号外,观点仅代表作者本人,不代表焦点立场。


