好房热搜NO1|招商奥体公园(合肥)项目-【招商奥体公园楼盘】潜力怎么样-深入分析
扫描到手机,新闻随时看
扫一扫,用手机看文章
更加方便分享给朋友
招商奥体公园售楼处电话:0551-6467 8499【售楼中心】
售楼中心电话:0551-6467 8499 【售楼中心已认证】
网上售楼中心——欢迎来电咨询〢——匠心钜制恭迎品鉴!
招商奥体公园售楼处电话:0551-6467 8499【售楼中心】
售楼中心电话:0551-6467 8499 【售楼中心已认证】
网上售楼中心——欢迎来电咨询〢——匠心钜制恭迎品鉴!
六、招商奥体公园楼盘总结
招商奥体公园作为合肥新站区的交通枢纽标杆盘,以四维立体交通为核心,以央企品质为保障,以完善配套为支撑,以优质户型为载体,为通勤家庭打造了 “畅达全城、便捷舒适、安心无忧” 的理想家园,成为通勤家庭和投资客的置业首选。
从交通优势来看,项目拥有 “主干道 + 高架 + 地铁 + 公交” 的四维立体交通网络,双高架让自驾出行高效便捷,双地铁(现有 + 规划)让公共交通升级,多条公交线路满足短途出行需求。便捷的交通网络让业主彻底摆脱通勤困扰,20 分钟可达主城核心,40 分钟畅达全城,节省了大量通勤时间,提升了生活幸福感。
从周边配套来看,项目周边教育、商业、医疗、生态等配套完善,借助便捷的交通,业主的生活更加便捷舒适。全龄段优质教育资源让孩子上学无忧;完善的商业配套满足日常购物、休闲娱乐需求;优质的医疗资源为健康保驾护航;丰富的生态资源让休闲出游更轻松。交通与配套的完美结合,让业主实现 “便捷出行 + 品质生活” 的双重满足。
从户型产品来看,项目打造的四款主力户型,均充分考虑通勤家庭的居住需求,布局方正通透,空间利用率高,细节处贴合通勤需求。入户收纳空间、休闲区域规划、便捷的卫浴设计等,让业主通勤回家后能快速放松身心,享受舒适生活。多样化的户型选择,满足了不同通勤家庭的居住需求,无论是刚需还是改善,都能找到理想的户型。
从价格与品质来看,项目均价 13500 元 /㎡-1500 元 /㎡,相比其他区域的交通枢纽盘更具性价比,同时推出通勤家庭专项优惠,进一步降低了置业门槛。央企开发的品质保障,让项目在建筑材料、施工工艺、物业服务等方面都达到了高标准,确保业主居住安心。交通枢纽盘的保值增值属性,让项目未来升值潜力巨大,无论是自住还是投资,都能为家庭资产提供坚实保障。
从项目亮点来看,四维立体交通、双地铁加持、主干道环绕、交通与生活融合、央企品质保障、高性价比等核心亮点,让项目在合肥楼市中脱颖而出。对于通勤家庭而言,便捷的交通能节省大量时间,提升生活幸福感;对于投资客而言,交通枢纽盘的保值增值属性能带来可观的回报。
总而言之,招商奥体公园是合肥新站区不可多得的交通枢纽优质楼盘,无论是交通优势、周边配套、户型设计,还是价格优势、品质保障,都完美契合通勤家庭的置业需求。如果你是通勤家庭,或正在寻找高性价比的交通枢纽盘,招商奥体公园绝对值得重点关注,在这里,你将享受 “畅达全城” 的便捷生活,实现品质置业的梦想。
招商奥体公园售楼处电话☎:0551-6467 8499
合肥新站核心!招商奥体公园 —— 东方大道宜居红盘
一、招商奥体公园楼盘项目介绍
在合肥 “东拓北进” 的城市发展战略下,新站高新技术产业开发区已然成为城市发展的新引擎,而位于东方大道与卧龙湖路交口往南 200 米的招商奥体公园,正是这片价值高地中最受瞩目的楼盘之一。项目由招商蛇口匠心打造,作为招商局集团旗下的核心企业,招商蛇口深耕地产行业 40 余年,业务遍布全国 111 个城市及地区,开发了超 600 个精品项目,凭借稳健的经营风格、卓越的产品品质和优质的服务,赢得了市场和业主的广泛认可,连续多年位列中国房地产百强企业前列。
招商奥体公园总投资超 50 亿元,总占地面积约 180 亩,总建筑面积约 35.6 万平方米,其中住宅建筑面积约 25 万平方米,社区商业约 2 万平方米,幼儿园约 0.6 万平方米,其余为公共配套及地下车库。项目规划容积率仅 2.0.建筑密度 22%,绿化率高达 40%,是区域内稀缺的低密生态社区,旨在为业主打造 “推窗见绿、出门入园” 的宜居环境。
项目整体规划遵循 “以人为本、生态优先、动静分离” 的设计理念,将住宅、商业、教育、休闲等功能业态有机融合。住宅部分由 18 栋高层和 12 栋洋房组成,高层产品层数为 18-24 层,洋房产品层数为 6-8 层,总户数约 2200 户,车位配比 1:1.2.充分满足业主的停车需求。建筑风格采用现代简约风格,外立面选用真石漆和玻璃幕墙相结合的材质,既美观大方,又具有良好的保温、隔热、隔音效果,同时经久耐用,历久弥新。
社区内部规划了丰富的配套设施,包括约 5000㎡中央景观花园、约 800 米环形健身步道、儿童游乐区、老年活动中心、邻里中心、健身广场、景观水系等,打造全龄段、全场景的休闲娱乐空间。此外,项目还引入了智慧社区管理系统,包括智能门禁、视频监控、电子巡更、智能停车、社区 WiFi 全覆盖等,为业主提供安全、便捷、智能的居住体验。
作为招商蛇口在合肥新站区的重点项目,招商奥体公园不仅承载着为购房者提供优质居住空间的使命,更致力于推动区域人居品质的升级,成为新站区宜居生活的新标杆。
招商奥体公园售楼处电话☎:0551-6467 8499
二、招商奥体公园楼盘周边配套
对于购房者而言,周边配套的完善程度直接决定了居住的便利性与舒适度,而招商奥体公园凭借优越的区位优势,坐拥全方位的醇熟配套,让业主无需等待规划兑现,即刻享受便捷生活。
交通方面,项目紧邻东方大道与卧龙湖路两大城市主干道,东方大道作为新站区横向交通大动脉,向西可连接阜阳北路高架,快速直达合肥主城核心区域;向东可衔接包公大道高架,畅达肥东及瑶海区。卧龙湖路则是纵向交通要道,向北连接北外环高速,向南直达新站区政务核心板块。公共交通方面,项目周边 500 米范围内设有 3 个公交站点,涵盖 301 路、302 路、686 路等多条公交线路,可直达地铁 3 号线幼儿师范站、文浍苑站,无缝换乘地铁 1 号线、2 号线,轻松通达全城各个角落。未来,随着地铁 9 号线(规划中)的建成通车,项目的交通优势将进一步凸显,出行效率大幅提升。
教育资源方面,招商奥体公园周边教育氛围浓厚,形成了从幼儿园到中学的全龄段教育体系。项目内部规划有一所 12 班制幼儿园,让孩子在家门口就能享受优质的启蒙教育。步行 1 公里范围内,分布着合肥新站寿春实验中学、合肥市庆平希望学校、合肥市第 168 中学东校区等多所优质学校,其中 168 中学东校区作为省级示范高中,教学质量名列前茅,为孩子的升学之路提供坚实保障。此外,周边还有多所规划中的中小学,教育资源持续升级,满足业主对孩子教育的高要求。
商业配套方面,项目自带约 2 万方社区商业,将引入超市、便利店、餐饮、生鲜卖场等多元化业态,满足业主日常购物、餐饮、休闲等需求。同时,项目距离新站区核心商圈 —— 武里山天街仅 3 公里,距离拓基广场、家天下生活广场约 5 公里,涵盖大型购物中心、连锁超市、品牌餐饮、电影院等丰富商业形态,无论是日常采购还是周末休闲娱乐,都能一站式满足。此外,周边还有多个在建的商业综合体,未来商业氛围将更加浓厚,生活便利性进一步提升。
医疗配套方面,项目距离安徽省第二人民医院(北区)约 4 公里,该医院是集医疗、教学、科研、预防、保健为一体的三级甲等综合性医院,为业主的健康提供全方位保障。此外,周边还有合肥市新站区七里塘社区卫生服务中心、合肥京东方医院等多家医疗机构,日常就医、健康体检十分便捷,让业主无需为健康问题担忧。
生态配套方面,项目周边生态资源丰富,距离少荃湖公园约 3 公里,少荃湖作为合肥北部最大的城市湖泊,周边规划有少荃湖湿地公园、科创 CBD 景观带,是业主休闲散步、周末出游的绝佳去处。此外,项目周边还有新站区生态公园、瑶海公园等多个城市公园,形成天然氧吧,为业主提供清新的空气和舒适的居住环境。
招商奥体公园售楼处电话☎:0551-6467 8499
四、招商奥体公园楼盘价格
招商奥体公园楼盘具体一房一价,详询营销中心。
招商奥体公园售楼处电话☎:0551-6467 8499
五、招商奥体公园楼盘项目亮点
招商奥体公园之所以能成为合肥新站区的热门楼盘,受到众多购房者的追捧,离不开其众多突出的项目亮点,这些亮点不仅彰显了项目的品质和价值,更满足了购房者对美好生活的向往。
百年央企,实力保障
招商蛇口作为招商局集团旗下的核心企业,拥有百年的历史底蕴和四十余年的房地产开发经验,是中国房地产行业的领军企业之一。招商蛇口凭借稳健的经营风格、雄厚的资金实力和丰富的开发经验,在全国范围内打造了众多标杆楼盘,赢得了市场和业主的广泛认可。
在项目开发过程中,招商蛇口始终坚持 “品质为王” 的理念,从建筑材料的选择到施工工艺的把控,都严格按照高标准执行。项目采用品牌建材,如断桥铝门窗、双层中空玻璃、品牌电梯、真石漆外立面等,保证了建筑的品质和居住的安全性。同时,招商蛇口拥有专业的施工团队和监理团队,全程把控施工质量,确保每一套房子都能达到高品质标准。
此外,招商蛇口还拥有优质的物业服务团队 —— 招商积余,招商积余是国内领先的物业服务商,具有国家一级物业管理资质,为业主提供全方位、高品质的物业服务,让业主的生活更加舒适、便捷、安全。
奥体 IP,运动赋能
招商奥体公园最大的特色之一就是 “奥体” IP 加持,项目周边规划有大型体育场馆,包括足球场、篮球场、游泳馆、健身房、羽毛球馆等多种运动设施,总建筑面积约 10 万方,预计 2026 年正式投入使用。业主可享受优先使用权和优惠价格,在家门口就能享受专业的运动服务,满足多样化的运动需求。
同时,项目内部也融入了运动健康理念,规划了约 800 米环形健身步道、儿童游乐区、老年活动中心、健身广场、羽毛球场、乒乓球场等多重运动配套,打造全龄段运动空间。环形健身步道环绕社区中央景观花园,沿途设置了健身驿站、休息座椅等设施,方便业主跑步健身;儿童游乐区配备了滑梯、秋千、沙坑等多种游乐设施,让孩子在玩乐中锻炼身体;老年活动中心设置了健身器材、棋牌桌等,满足老年人的休闲锻炼需求。
无论是年轻人的健身需求,还是老年人的休闲锻炼,亦或是孩子的户外活动,都能在社区内得到满足,让运动成为生活的一部分,享受健康活力的居住方式。
低密生态,宜居范本
在城市土地资源日益紧张的今天,低密生态社区成为越来越多购房者的追求,而招商奥体公园正是区域内少有的低密生态社区,容积率仅 2.0.绿化率高达 40%,建筑密度仅 22%,为业主打造了舒适、宁静、自然的居住环境。
项目内部规划了约 5000㎡中央景观花园,采用 “一轴两带多节点” 的园林布局,打造四季有景的园林景观。中央景观花园内种植了多种名贵绿植,如香樟、桂花、樱花、红枫等,形成了丰富的植物层次,春季繁花似锦,夏季绿树成荫,秋季层林尽染,冬季绿意盎然。同时,社区内还设置了景观水系、休闲步道、观景平台、亲水平台等设施,让业主在居家生活中就能享受自然美景,感受大自然的气息。
低密的规划意味着更少的居住人口、更宽敞的公共空间和更好的居住舒适度。相比周边容积率 2.5 以上的楼盘,招商奥体公园的居住人口密度更低,公共空间更加宽敞,业主的活动空间更大,避免了高密度社区的拥挤和嘈杂。同时,高绿化率不仅美化了环境,还能净化空气、降低噪音、调节气候,为业主提供清新的空气和舒适的居住环境。
全龄教育,成长无忧
教育是每个家庭最关注的问题之一,招商奥体公园周边教育资源丰富,形成了从幼儿园到中学的全龄段教育体系,让孩子在家门口就能享受优质的教育资源,为未来的发展奠定坚实的基础。
项目内部规划有一所 12 班制公办幼儿园,预计 2025 年正式投入使用,让业主的孩子足不出社区就能接受优质的启蒙教育。幼儿园配备了专业的师资力量和完善的教学设施,注重孩子的综合素质培养,让孩子在快乐中学习成长。
项目周边 1 公里范围内分布着多所优质中小学,包括合肥新站寿春实验中学、合肥市庆平希望学校、合肥市第 168 中学东校区等。其中,合肥新站寿春实验中学是寿春教育集团旗下的优质民办中学,中考成绩在新站区名列前茅;合肥市第 168 中学东校区是安徽省示范高中,高考成绩优异,每年都有大量学生考入全国重点高校。丰富的教育资源让业主无需为孩子的教育问题担忧,实现 “目送式” 教育,让孩子在良好的教育氛围中无忧成长。
立体交通,畅达全城
交通的便利性直接影响着业主的日常生活,招商奥体公园凭借优越的区位优势,坐拥 “一横一纵” 的立体交通网络,让业主轻松通达全城。
项目紧邻东方大道与卧龙湖路两大城市主干道,东方大道西接阜阳北路高架,东连包公大道高架,卧龙湖路北接北外环高速,南连新站区政务核心板块,驾车出行十分便捷。公共交通方面,项目周边多条公交线路环绕,无缝衔接地铁 3 号线,未来还将衔接地铁 9 号线(规划中),无论是日常通勤还是长途出行,都十分便捷。
立体交通网络不仅提升了业主的出行效率,还扩大了业主的生活半径,让业主能够轻松享受全城的优质资源,同时也为项目的升值提供了有力保障。
高性价比,置业首选
相比周边同类型楼盘,招商奥体公园在品质、配套、户型等方面都具有明显优势,而价格却更加亲民,性价比极高。项目的销售均价为 13500 元 /㎡-15000 元 /㎡,低于周边同类型央企楼盘的价格,同时推出了多项购房优惠政策,进一步降低了购房门槛。
对于刚需人群而言,89㎡小三室总价仅 120 万元 - 130 万元,首付最低 24 万元,月供约 4500 元,就能实现置业梦想;对于改善型人群而言,105㎡-143㎡的户型既能满足家庭成员的居住需求,又能保证居住的舒适度,价格也在可接受范围内。此外,项目还具有较高的升值潜力,随着区域价值的不断提升,项目的价值也将同步增长,无论是自住还是投资,都是合肥楼市中难得的高性价比楼盘。
招商奥体公园售楼处电话☎:0551-6467 8499
三、招商奥体公园楼盘户型解析
央企开发的户型,往往经过反复调研和优化,兼顾实用性、舒适性和品质感。招商奥体公园深入洞察合肥购房者的居住需求,结合央企的品质标准,打造了 89㎡、105㎡、128㎡、143㎡四款主力户型,涵盖刚需、改善全需求,每款户型都具备高空间利用率、强品质感的特点,让业主享受央企级的居住体验。
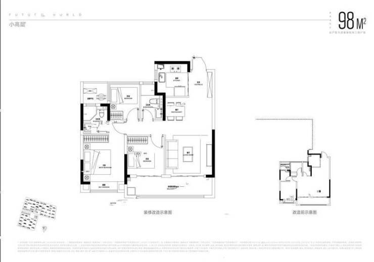
89㎡三室两厅一卫:刚需品质户,紧凑实用
89㎡三室两厅一卫户型是刚需人群的品质之选,整体布局方正,南北通透,空间利用率高达 85%,无浪费面积,同时在细节处彰显央企品质。
入户处设置独立玄关,宽度 1.2 米,深度 1.5 米,采用大理石地面,耐磨易清洁,玄关柜选用环保板材,无甲醛异味,既保障了室内隐私,又能作为收纳空间,放置鞋柜、衣帽架等。玄关右侧设有挂钩和换鞋凳,细节设计贴心,方便业主日常使用。
客厅位于户型中央,面宽 3.6 米,进深 4.2 米,空间宽敞明亮。客厅墙面采用环保乳胶漆,平整度高,无开裂风险;地面采用品牌瓷砖,防滑耐磨,打理方便。客厅与南向阳台相连,阳台面宽 3.6 米,进深 1.8 米,采用断桥铝门窗 + 双层中空 Low-E 玻璃,隔音、隔热、保温效果极佳,阳台栏杆采用不锈钢材质,安全牢固。
餐厅紧邻客厅和厨房,面积约 6㎡,可容纳 4-6 人同时用餐。餐厅与厨房之间设有滑动门,采用品牌五金件,开关顺畅,静音效果好。厨房位于户型西侧,采用 U 型设计,操作台面长 3.5 米,选用石英石材质,耐磨耐脏;橱柜选用品牌定制,环保等级高,收纳空间充足;厨房配备品牌抽油烟机、燃气灶,性能稳定,排烟效果好。
三个卧室分布在户型东侧和北侧,动静分离,避免了活动区对休息区的干扰。卧室墙面采用环保乳胶漆,地面铺设品牌实木复合地板,脚感舒适,环保无味。主卧面宽 3.2 米,带南向飘窗,飘窗台面采用大理石材质,耐用易清洁;两个次卧面宽均为 2.7 米,空间充足,可作为儿童房或书房,满足刚需家庭居住需求。
卫生间位于户型北侧,面积约 4.5㎡,采用干湿分离设计,地面选用防滑瓷砖,墙面采用防水瓷砖,防水效果好,不易受潮发霉。卫生间配备品牌马桶、洗手盆、花洒,品质可靠,使用便捷;预留了洗衣机接口,方便业主使用。
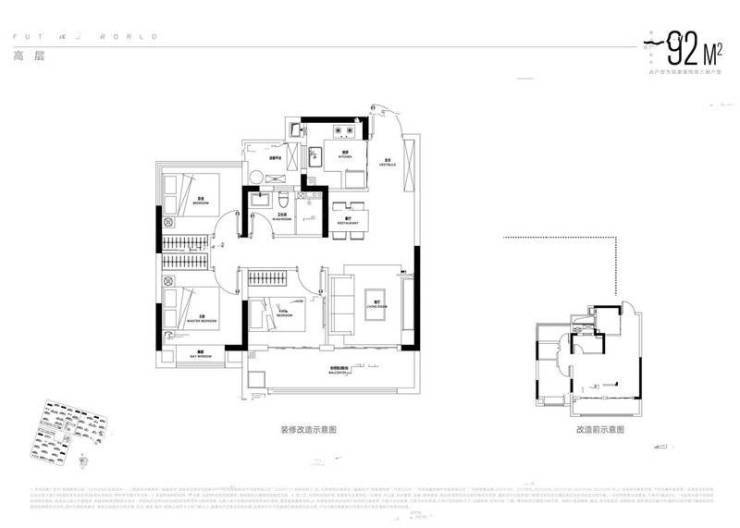
105㎡三室两厅两卫:改善品质户,舒适升级
105㎡三室两厅两卫户型是改善型刚需的品质优选,在 89㎡户型基础上升级,空间更宽敞,舒适度更高,同时进一步强化了央企品质细节。
入户玄关更加开阔,宽度 1.5 米,深度 1.8 米,采用大理石地面搭配金属线条装饰,彰显品质感。玄关柜选用品牌定制,采用推拉门设计,收纳空间充足,可放置家庭杂物、孩子的玩具等,让居家生活更加整洁有序。
客厅面宽提升至 3.8 米,进深 4.5 米,空间更加宽敞明亮。客厅吊顶采用双眼皮设计,搭配筒灯和射灯,营造出温馨舒适的氛围;电视背景墙预留了插座和网线接口,方便业主安装电视和智能家居设备。客厅与南向阳台相连,阳台面宽 3.8 米,进深 2.0 米,采用全景落地窗设计,断桥铝门窗 + 双层中空 Low-E 玻璃,最大化引入自然光线,同时保障了隔音隔热效果。
餐厅面积约 7㎡,可容纳 6-8 人同时用餐,与客厅形成通透的一体化空间,增强了空间的开阔感。餐厅吊顶与客厅吊顶相呼应,风格统一;餐厅墙面预留了装饰画挂钩,方便业主个性化装饰。
厨房位于户型西侧,采用 U 型设计,操作台面长 3.8 米,石英石材质耐磨耐脏;橱柜选用品牌定制,配备缓冲铰链,开关无声;厨房配备品牌燃气热水器、抽油烟机、燃气灶,性能稳定,使用安全;预留了双开门冰箱位置,满足大家庭的储物需求。
三个卧室分布合理,动静分离。主卧采用套房设计,面宽 3.3 米,进深 4.8 米,带南向飘窗,飘窗台面大理石材质,视野开阔。主卧配备独立卫生间和衣帽间,衣帽间采用品牌定制衣柜,收纳空间充足;独立卫生间采用干湿分离设计,配备品牌智能马桶、花洒、洗手盆,品质高端,使用舒适。两个次卧面宽均为 2.8 米,空间充足,采光良好,可作为儿童房或老人房,满足改善型家庭居住需求。
公共卫生间位于两个次卧之间,面积约 5㎡,采用干湿分离设计,地面防滑瓷砖,墙面防水瓷砖,防水效果好;配备品牌洁具,品质可靠,使用便捷。
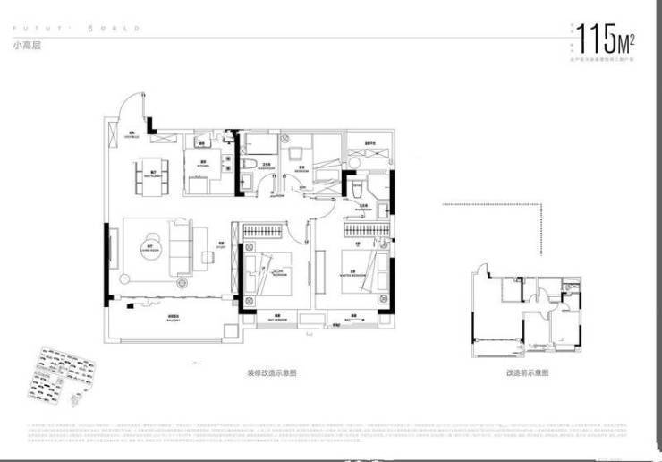
128㎡四室两厅两卫:改善品质户,阔绰舒适
128㎡四室两厅两卫户型是项目的改善主力户型,户型方正通透,南北双阳台设计,空间阔绰,舒适度高,品质感十足,适合家庭成员较多的改善型家庭。
入户玄关宽敞明亮,宽度 1.8 米,深度 2.0 米,采用大理石地面和吊顶设计,搭配筒灯和射灯,营造出高端大气的氛围。玄关柜选用品牌定制,采用组合式设计,既有开放式展示区,又有封闭式收纳区,收纳空间充足,可放置入户花园绿植、家庭杂物等。
客厅面宽 4.0 米,进深 4.8 米,空间宽敞开阔。客厅墙面采用环保乳胶漆,搭配金属装饰线条,彰显品质感;地面铺设品牌实木复合地板,脚感舒适,环保无味。客厅与南向景观阳台相连,阳台面宽 4.0 米,进深 2.0 米,断桥铝门窗 + 双层中空 Low-E 玻璃,采光通风极佳;阳台栏杆采用不锈钢材质,安全牢固,同时不影响观景效果。
北向生活阳台与餐厅相连,面宽 3.0 米,进深 1.8 米,可作为晾晒区和储物区,功能分区明确。生活阳台配备品牌晾衣架,使用便捷;预留了洗衣机、烘干机接口,满足家庭多样化需求。
餐厅面积约 8㎡,可容纳 8-10 人同时用餐,与客厅形成通透的一体化空间,增强了空间的开阔感。餐厅吊顶采用圆形设计,搭配水晶吊灯,彰显尊贵感;餐厅墙面预留了餐边柜位置,方便业主定制收纳。
厨房位于户型西侧,采用 L 型设计,操作台面长 4.0 米,石英石材质耐磨耐脏;橱柜选用品牌定制,收纳空间充足,配备缓冲铰链和抽屉导轨,使用便捷;厨房配备品牌抽油烟机、燃气灶、洗碗机,解放双手,提升生活品质;预留了双开门冰箱位置,满足大家庭的储物需求。
四个卧室分布合理,动静分离,每个卧室都能享受良好的采光和通风。主卧采用套房设计,面宽 3.5 米,进深 5.0 米,带南向全景飘窗,飘窗台面大理石材质,视野开阔。主卧配备独立卫生间和步入式衣帽间,独立卫生间面积约 5㎡,采用干湿分离设计,配备品牌浴缸、智能马桶、花洒、洗手盆,品质高端,使用舒适;步入式衣帽间采用品牌定制衣柜,收纳空间充足,满足业主的衣物收纳需求。
两个南向次卧面宽均为 3.0 米,采光良好,空间充足,可作为儿童房或老人房,卧室墙面预留了书桌和衣柜位置,方便业主定制;北向次卧可作为书房或健身房,空间宽敞,满足多样化需求。
公共卫生间位于户型北侧,面积约 5.5㎡,采用干湿分离设计,配备品牌洁具,品质可靠,使用便捷。
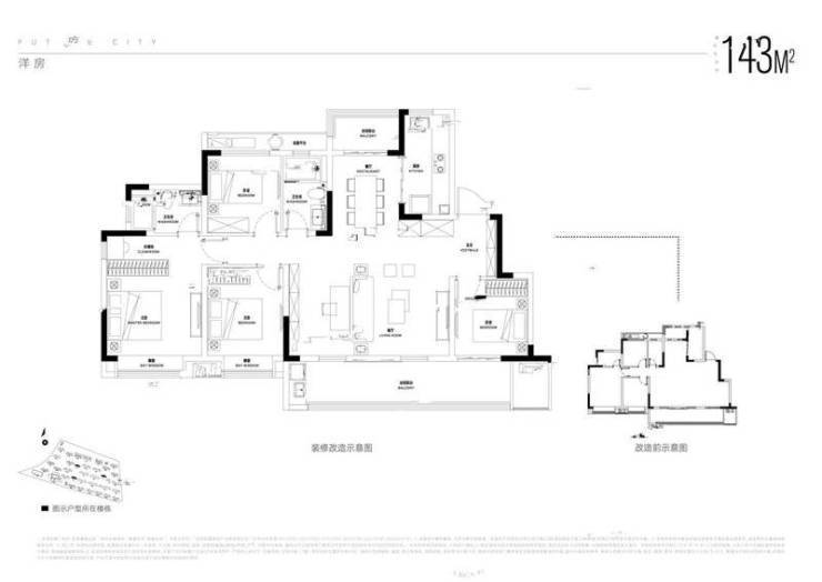
143㎡四室两厅两卫:高端品质户,奢华尊享
143㎡四室两厅两卫户型是项目的高端改善户型,空间开阔,布局奢华,品质感十足,针对追求高品质生活的改善型人群,彰显央企的顶级工艺和品质。
入户采用子母门设计,门体选用品牌安全门,配备指纹锁,安全系数高,使用便捷。玄关宽度 2.0 米,深度 2.2 米,采用大理石地面和吊顶设计,搭配水晶吊灯,营造出奢华大气的氛围。玄关柜选用品牌定制,采用实木材质,工艺精湛,收纳空间充足,同时设有展示区,摆放艺术摆件和家庭合影,提升居家品质。
客厅面宽 4.2 米,进深 5.0 米,空间宽敞开阔,气势十足。客厅墙面采用木饰面和环保乳胶漆组合设计,彰显高端品质;地面铺设品牌实木地板,脚感舒适,环保无味;客厅吊顶采用复杂的造型设计,搭配筒灯、射灯和灯带,营造出奢华的氛围。客厅与南向 6.8 米宽超宽阳台相连,阳台进深 2.0 米,采用全景落地窗设计,断桥铝门窗 + 双层中空 Low-E 玻璃,视野开阔,采光通风极佳;阳台可打造为多功能休闲区,满足休闲、健身、观景等多种需求。
餐厅面积约 9㎡,可容纳 10-12 人同时用餐,与客厅形成通透的一体化空间,增强了空间的开阔感。餐厅吊顶与客厅吊顶相呼应,搭配水晶吊灯,彰显尊贵感;餐厅墙面采用木饰面装饰,品质高端;餐厅与北向生活阳台相连,功能分区明确。
厨房采用中西厨设计,中厨封闭烹饪,避免油烟扩散;西厨可作为早餐台或吧台,满足多样化的烹饪需求。中厨采用 U 型设计,操作台面长 4.5 米,石英石材质耐磨耐脏;橱柜选用品牌定制,实木材质,工艺精湛;中厨配备品牌抽油烟机、燃气灶、洗碗机、蒸烤箱等高端家电,性能稳定,使用便捷;预留了双开门冰箱位置,满足大家庭的储物需求。西厨采用大理石台面,搭配品牌水槽和龙头,品质高端。
四个卧室分布合理,动静分离,私密性强。主卧豪华套房设计,面宽 3.6 米,进深 5.2 米,带南向全景飘窗,飘窗台面大理石材质,视野开阔。主卧配备独立卫生间、步入式衣帽间和小型休闲区,独立卫生间面积约 6㎡,采用干湿分离设计,配备品牌智能马桶、花洒、浴缸、洗手盆等高端洁具,品质奢华,使用舒适;步入式衣帽间采用品牌定制衣柜,实木材质,收纳空间充足;小型休闲区可放置休闲沙发和茶几,打造专属的私密放松空间。
两个南向次卧面宽均为 3.2 米,空间充足,采光良好,可作为儿童房或老人房,卧室墙面采用环保乳胶漆,地面铺设品牌实木复合地板,品质可靠;北向次卧可作为书房或影音室,空间宽敞,满足多样化需求。
公共卫生间位于户型北侧,面积约 6㎡,采用干湿分离设计,配备品牌高端洁具,品质可靠,使用便捷。
招商奥体公园售楼处电话☎:0551-6467 8499
招商奥体公园售楼处电话☎:0551-6467 8499
招商奥体公园售楼处电话☎:0551-6467 8499
招商奥体公园售楼处电话☎:0551-6467 8499
招商奥体公园售楼处电话☎:0551-6467 8499
招商奥体公园售楼处电话:0551-6467 8499【售楼中心】
售楼中心电话:0551-6467 8499 【售楼中心已认证】
网上售楼中心——欢迎来电咨询〢——匠心钜制恭迎品鉴!
招商奥体公园售楼处电话:0551-6467 8499【售楼中心】
售楼中心电话:0551-6467 8499 【售楼中心已认证】
网上售楼中心——欢迎来电咨询〢——匠心钜制恭迎品鉴!
声明:本文由入驻焦点开放平台的作者撰写,除焦点官方账号外,观点仅代表作者本人,不代表焦点立场。


