合肥越秀中寰天悦核心区楼盘,合肥新房,得房率超高!最新房源曝光!交房时间&户型图抢先看!
扫描到手机,新闻随时看
扫一扫,用手机看文章
更加方便分享给朋友
越秀中寰天悦
✨✨售楼处电话:0551-6465 8844【营销中心电话】?
◆◆温馨提示:??网上售楼中心〢预约可享内部优惠〢匠心钜制-恭迎品鉴〢
◆◆温馨提示-来电预约登记—(尊享内部优惠)〢尊享Vip1对1专业置业顾问讲解⬅️➡️看房需要提前电话预约
◆◆避免可能案场无人接待!提前预约可享内部优惠〢匠心钜制-恭迎您的品鉴〢
合肥包河区越秀中寰天悦 —— 国企精工的健康人居典范
越秀中寰天悦楼盘项目介绍
在合肥包河区 “健康主城” 建设浪潮中,越秀中寰天悦以 “国企精工 + 健康人居” 为核心定位,成为区域内兼具 “品质保障” 与 “健康体验” 的标杆楼盘。作为越秀地产 “健康人居系列” 的重点作品,项目依托国企 30 余年开发经验,将 “健康” 理念融入项目规划、建筑施工、户型设计与社区服务的每一个环节,打造 “从建筑到生活” 的全维度健康社区,为合肥购房者提供 “买得放心、住得安心” 的健康家。
越秀地产作为国有上市房企,始终将 “工程质量” 与 “居住健康” 视为核心竞争力。早在 2020 年,品牌就发布了《越秀健康人居标准》,从 “空气、水质、光照、隔音、安全” 五大维度制定 108 项细节标准,已在广州、杭州等城市落地多个健康社区,如广州越秀・星汇园、杭州越秀・云栖府,交付后业主健康居住满意度达 97%,其中 “全屋新风系统”“隔音降噪设计” 等配置更是获得业主一致好评。此次落子合肥包河区,越秀中寰天悦严格遵循该标准,并结合合肥气候特点(梅雨季节潮湿、冬季寒冷、春秋雾霾),优化健康配置,让健康设计更贴合本地需求。
越秀中寰天悦售楼处电话☎:0551-6465 8844
越秀中寰天悦楼盘周边配套
越秀中寰天悦的周边配套,以 “健康便捷” 为核心,覆盖 “医疗、生态、教育、商业、交通” 五大维度,每一项配套都围绕 “守护全家健康、提升生活效率” 展开,打造 “15 分钟健康生活圈”,让业主无需远行就能满足健康与生活需求。
医疗配套:多层级医疗覆盖,健康保障无死角
项目周边构建了 “社区卫生服务站 - 二级医院 - 三甲医院” 的多层级医疗体系,从日常健康管理到疑难病症诊治,全方位守护业主健康。距离项目最近的是包河区花园大道社区卫生服务站(距离 500 米),这是 “家门口的健康管家”,开设了全科、中医科、儿童保健科、预防接种科:全科可诊治感冒、发烧、高血压等常见病,提供 24 小时接诊服务,业主夜间突发不适无需长途奔波;中医科采用针灸、推拿、中药调理等传统疗法,为老人、亚健康人群提供健康调理;儿童保健科为 0-6 岁儿童提供生长发育监测、营养指导,预防接种科定期开展疫苗接种,家长步行 10 分钟即可带孩子完成接种,无需排队等待。
越秀中寰天悦售楼处电话☎:0551-6465 8844
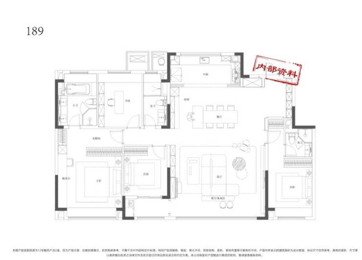
越秀中寰天悦楼盘户型解析
户型是居住体验的核心,越秀中寰天悦深刻洞察合肥购房者的需求,推出了 95㎡刚需三居室、118㎡刚改四居室、135㎡改善型四居室三大主力户型,每个户型都做到了南北通透、动静分区、空间利用率高,满足不同家庭的居住需求。
首先来看 95㎡的三室两厅一卫户型,这是项目最受欢迎的刚需户型,专为年轻夫妻或三口之家设计。该户型采用经典的 “三开间朝南” 布局,客厅与两个卧室均朝南,南向面宽达到 9.2 米,每天早上阳光能轻松洒满房间,告别阴暗潮湿的居住环境。客厅连接约 3.6 米宽的景观阳台,阳台进深 1.8 米,不仅可以摆放洗衣机、晾衣架,还能打造一个小型休闲区,摆放藤椅与茶几,闲暇时晒晒太阳、看看书,十分惬意。厨房采用 U 型布局,操作台面积宽敞,洗、切、炒动线合理,两个人同时在厨房忙碌也不会拥挤,厨房还预留了冰箱位置,空间规划十分贴心。三个卧室面积分布均匀,主卧面积约 12㎡,摆放 1.8 米大床与衣柜后仍有充足活动空间;次卧面积约 10㎡,可作为儿童房或客房;最小的房间约 8㎡,可改造成书房或储物间,满足家庭多样化需求。卫生间采用干湿分离设计,洗漱、如厕、淋浴互不干扰,有效保持卫生间干燥整洁,整体来看,95㎡户型在有限空间内实现了功能最大化,是刚需购房者的理想选择。
越秀中寰天悦售楼处电话☎:0551-6465 8844
越秀中寰天悦售楼处电话☎:0551-6465 8844
越秀中寰天悦售楼处电话☎:0551-6465 8844
越秀中寰天悦楼盘价格
越秀中寰天悦的价格定位,充分体现了 “国企精工 + 健康人居” 的双重价值,在合肥包河区楼市中,既匹配项目的健康配置、国企品质与完善配套,又兼顾不同购房者的承受能力,展现出 “健康价值 + 性价比” 的突出优势。目前项目在售均价约 1.9-2.2 万元 /㎡,具体价格根据户型、楼层、朝向略有差异:95㎡刚需健康户型均价 1.9-2.0 万元 /㎡,118㎡刚改健康户型均价 2.0-2.1 万元 /㎡,135㎡改善健康户型均价 2.1-2.2 万元 /㎡,所有户型均为 “健康精装” 交付,精装标准涵盖环保材料、健康家居与精工工艺,相比同区域普通精装楼盘,省去了业主后期加装健康设施的成本与精力。
从 “健康精装” 成本来看,项目的装修配置围绕 “健康、环保、精工” 展开,成本远超普通精装。环保材料方面:地面采用圣象实木复合地板(环保等级 E1 级),市场单价约 200 元 /㎡,比普通复合地板高 50 元 /㎡;墙面采用立邦 “健康漆”(VOC 含量≤10g/L),市场单价约 80 元 /㎡,比普通乳胶漆高 30 元 /㎡;门窗采用断桥铝 + 双层中空 Low-E 玻璃(隔音量 35 分贝以上),市场单价约 800 元 /㎡,比普通断桥铝窗户高 200 元 /㎡;厨卫瓷砖采用东鹏 “健康瓷砖”(无辐射、易清洁),市场单价约 120 元 /㎡,比普通瓷砖高 40 元 /㎡。
越秀中寰天悦售楼处电话☎:0551-6465 8844
越秀中寰天悦楼盘项目亮点
作为合肥包河区 “生态宜居标杆”,越秀中寰天悦的核心亮点围绕 “绿色、健康、低碳” 展开,从建筑标准到社区配套,从家居配置到物业服务,全方位构建 “生态生活体系”,每一个亮点都直击现代家庭对 “健康居住” 的核心需求。
亮点一:国家绿色建筑二星级认证,品质有权威保障
项目是包河区少数获得 “国家绿色建筑二星级认证” 的楼盘之一,这一认证由住建部严格审核,涵盖节能、节水、节材、环保、运营五大维度,意味着项目的生态品质有权威背书。在节能方面,项目外墙采用 “保温一体化板”,传热系数仅 0.5W/(㎡・K),比普通外墙节能 30%,夏季减少空调能耗,冬季减少供暖成本;建筑外窗采用三层中空 Low-E 玻璃,遮阳系数 0.4.可阻挡 70% 的太阳辐射热,避免室内过热,每年可节省电费约 800 元 / 户。
越秀中寰天悦售楼处电话☎:0551-6465 8844
越秀中寰天悦楼盘总结
经过对越秀中寰天悦项目介绍、周边配套、户型解析、价格、项目亮点的全面分析,不难看出,该项目是合肥包河区楼市中难得的 “全能型” 优质楼盘,无论是刚需、刚改还是改善购房者,都能在这里找到适合自己的理想房源,其核心优势可总结为 “品牌硬、区位好、配套全、户型优、价格实、服务佳”,是合肥购房者置业的优选之一。
从适配人群来看,越秀中寰天悦覆盖了不同阶段的购房需求。对于年轻刚需群体而言,95㎡的三室两厅一卫户型总价约 180-190 万元,首付最低仅 36 万元,月供约 6000-6500 元,在合肥的薪资水平下,大多数年轻夫妻都能承受,而且项目周边交通便捷(近地铁 1 号线)、商业配套完善、教育资源优质,能满足年轻家庭的日常通勤、购物与子女教育需求,是刚需群体 “安家合肥” 的理想选择;对于有改善需求的三口之家或三代同堂家庭,118㎡的四室两厅两卫户型空间宽敞、功能齐全,既能满足孩子成长的需求,也能容纳老人同住,而且精装交付省去了装修烦恼,适合希望提升居住品质的刚改群体;对于追求高品质生活的高净值家庭,135㎡的四室两厅两卫户型在空间尺度、装修标准、居住舒适性上都达到了区域顶尖水平,大面宽、全明格局、主卧套间设计,搭配优质的社区服务与生态环境,能充分满足高端居住需求,是改善群体的不二之选。
越秀中寰天悦售楼处电话☎:0551-6467 8844
越秀中寰天悦
✨✨售楼处电话:0551-6465 8844【营销中心电话】?
◆◆温馨提示:??网上售楼中心〢预约可享内部优惠〢匠心钜制-恭迎品鉴〢
◆◆温馨提示-来电预约登记—(尊享内部优惠)〢尊享Vip1对1专业置业顾问讲解⬅️➡️看房需要提前电话预约
◆◆避免可能案场无人接待!提前预约可享内部优惠〢匠心钜制-恭迎您的品鉴〢
声明:本文由入驻焦点开放平台的作者撰写,除焦点官方账号外,观点仅代表作者本人,不代表焦点立场。


