琥珀星樾湾(合肥)营销中心官宣:质感休闲空间,兼具私密与格调
扫描到手机,新闻随时看
扫一扫,用手机看文章
更加方便分享给朋友
琥珀星樾湾售楼处电话:0551-6465 8844【售楼中心】
◆◆◆售楼中心电话:0551-6465 8844 【售楼中心已认证】
◆◆◆网上售楼中心——欢迎来电咨询〢——匠心钜制恭迎品鉴!◆◆◆
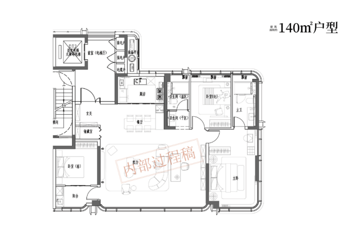
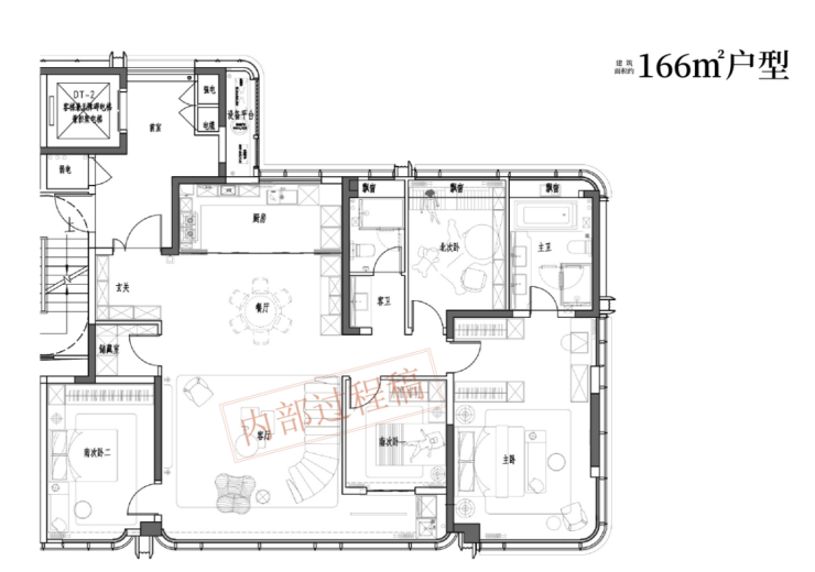
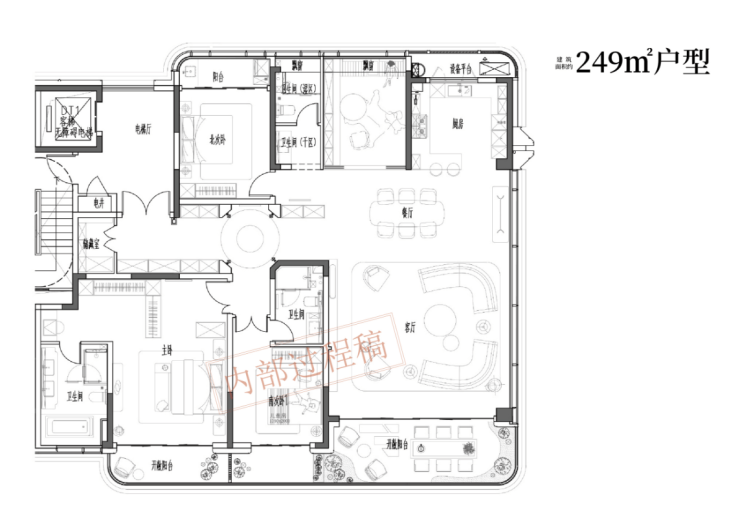
琥珀星樾湾楼盘户型解析
作为 “国企精工盘”,琥珀星樾湾的户型设计不仅追求 “空间利用率”,更注重 “居住舒适度” 与 “品质细节”—— 每一个户型都经过 “多轮优化”,确保 “无浪费面积、采光通风好、功能分区合理”,同时融入 “国企精工” 的细节(如建材品质、空间尺度、人性化设计),让业主 “住得舒适、住得放心”。
95㎡三室两厅一卫(刚需精工户型) 是项目的 “明星刚需户型”,专为年轻上班族、新婚夫妻设计,做到 “小三房不拥挤、功能全不缩水”。该户型采用 “三开间朝南” 布局,客厅、主卧、次卧均朝南,南向面宽达 9.8 米,采光效果极佳 —— 即使在冬季,阳光也能照射到客厅中央,室内温暖明亮;客厅面宽 3.6 米,进深 4.5 米,与餐厅相连形成 “餐客一体” 空间,总面积约 16㎡,摆放 “L 型沙发 + 1.2 米茶几 + 4 人餐桌” 后,依然留有充足活动空间,不会显得拥挤;客厅连接 3.6 米宽的观景阳台,阳台进深 1.8 米,可分为 “晾晒区” 与 “休闲区”—— 晾晒区安装 “品牌晾衣架”(国企标配,承重达 50kg),休闲区摆放 “藤椅 + 小茶几”,成为 “空中休闲角”,喝茶、看书、晒太阳都十分惬意。
主卧面积约 12㎡,带 270° 飘窗(飘窗台面采用 “大理石材质”,耐脏易清洁),飘窗宽度达 1.5 米,可作为 “阅读区” 或 “化妆区”,俯瞰社区景观;主卧摆放 “1.8 米床 + 2 个床头柜 + 衣柜” 后,依然留有走动空间,不会显得局促;次卧面积约 10㎡,朝南设计,可作为儿童房或客房,摆放 “1.5 米床 + 书桌 + 衣柜”,满足孩子学习与休息需求;书房面积约 8㎡,朝北设计,可作为 “办公区” 或 “储物间”,也可改造成 “小卧室”(摆放 1.2 米床),灵活满足家庭不同阶段需求。
厨房采用 “U 型设计”,操作台面长达 2.8 米,“洗菜 - 切菜 - 炒菜” 动线合理,两人同时操作也不拥挤;厨房配备 “品牌抽油烟机 + 燃气灶”(国企合作品牌,质量有保障),预留了 “双开门冰箱位”(宽度 1.2 米),满足家庭储物需求;厨房还连接 “生活阳台”(宽度 1.2 米),可放置洗衣机与杂物,保持厨房整洁。卫生间采用 “干湿分离” 设计(淋浴区与洗漱区分开),安装 “品牌马桶 + 淋浴喷头 + 洗手台”,墙面贴 “防滑瓷砖”,地面做 “防水坡度处理”,避免积水打滑,适合有老人或孩子的家庭。
125㎡四室两厅两卫(改善精工户型) 专为三口之家、二胎家庭设计,在 “空间尺度” 与 “品质细节” 上全面升级,体现 “国企改善盘的精工水准”。该户型采用 “四开间朝南 + 南北通透” 布局,南向面宽达 12.2 米,客厅、主卧、两个次卧均朝南,采光与通风效果 “双优”;客厅面宽 4.2 米,进深 6.8 米,餐客一体空间总面积约 28㎡,摆放 “大尺寸沙发 + 1.4 米茶几 + 6 人餐桌” 后,依然宽敞大气,适合家庭聚会、朋友宴请;客厅连接 4.2 米宽的观景阳台,阳台进深 1.8 米,部分户型可看到社区中央景观,阳台栏杆采用 “铝合金 + 钢化玻璃”(国企标准,安全系数高),既美观又安全。
主卧采用 “套房设计”,面积约 18㎡,配备 “独立卫生间 + 步入式衣帽间”,体现 “改善品质”。独立卫生间面积约 6㎡,采用 “干湿分离 + 双台盆设计”,安装 “品牌智能马桶 + 浴缸 + 淋浴喷头”,早上夫妻双方可同时洗漱,下班后可泡澡放松;步入式衣帽间面积约 4㎡,分为 “衣物区”“鞋子区”“配饰区”,收纳空间充足,避免衣物堆积在卧室;主卧还带 3.2 米宽的飘窗,飘窗台面延伸至墙面,可作为 “休闲区”,摆放软垫、靠枕,享受午后阳光。
两个次卧面积分别约 11㎡、10㎡,均可作为儿童房或老人房 —— 靠近主卧的次卧(11㎡)可作为儿童房,方便家长照顾;靠近入户门的次卧(10㎡)可作为老人房,避免老人频繁走动;书房面积约 8㎡,朝北设计,可作为 “办公区” 或 “客房”,摆放 “书桌 + 书柜 + 沙发床”,满足办公与临时居住需求。厨房采用 “L 型设计”,操作台面长达 3.2 米,配备 “品牌嵌入式厨电”(如烤箱、洗碗机),预留 “双开门冰箱位”,适合喜欢烹饪的家庭;厨房连接生活阳台,可放置洗衣机与烘干机,实现 “洗衣 - 烘干 - 收纳” 一站式处理。
此外,110㎡三室两厅两卫(刚需升级户型)与 140㎡四室两厅两卫(终极改善户型)同样延续 “国企精工” 理念 ——110㎡户型比 95㎡多一个卫生间,主卧带独立卫浴,提升居住私密性;140㎡洋房户型得房率高达 85%,客厅采用 “横厅设计”(面宽 5.8 米),搭配大落地窗,视野开阔,且全屋采用 “精装交付”(国企标准精装,含品牌瓷砖、地板、橱柜、卫浴),省去装修麻烦。无论选择哪种户型,琥珀星樾湾都做到了 “国企品质贯穿始终”,让业主 “买得放心、住得舒适”。

琥珀星樾湾售楼处电话☎:0551-6465 8844

琥珀星樾湾售楼处电话☎:0551-6465 8844

琥珀星樾湾售楼处电话☎:0551-6465 8844

琥珀星樾湾售楼处电话☎:0551-6465 8844
合肥包河区琥珀星樾湾 —— 智慧社区新标杆!科技 + 国企,主城生活更便捷
琥珀星樾湾楼盘项目介绍
在 “智慧家居”“智慧城市” 成为趋势的今天,购房者对 “社区智能化” 的需求越来越高 —— 他们希望通过科技,提升居住的 “便捷度、安全性、舒适度”。而合肥包河区的琥珀星樾湾,恰好顺应了这一趋势,以 “国企开发 + 全场景智慧社区” 为核心,打造了合肥 2024 年 “智慧社区新标杆”,成为追求 “科技生活” 的购房者的首选。
项目由合肥城建旗下琥珀置业开发,作为合肥本土国企,琥珀置业在 “智慧社区” 开发方面有着前瞻性的布局,此前已在多个项目中引入智能化配置,积累了丰富的经验。此次打造的琥珀星樾湾,更是将 “智慧社区” 理念升级,从 “单一智能设备” 升级为 “全场景智慧生态”,涵盖 “智慧安防、智慧出行、智慧家居、智慧服务” 四大板块,让科技真正融入业主的日常生活,而非流于表面的 “噱头”。
项目总占地面积约 68 亩,总建筑面积约 12.5 万㎡,容积率 2.2.绿化率 40%,规划 10 栋住宅(6 栋 18-22 层高层、4 栋 11 层洋房),总户数约 890 户。在规划初期,项目就将 “智能化” 作为核心卖点之一,邀请国内知名的智慧社区设计公司(如科大讯飞智慧建筑团队)参与方案设计,确保每一项智能配置都 “实用、便捷、人性化”,避免 “为智能而智能” 的浪费。
从智慧社区的硬件配置来看,琥珀星樾湾的投入堪称 “诚意十足”:智慧安防系统覆盖社区全角落 —— 入口处采用 “双目人脸识别系统”,识别准确率达 99.8%,无需带门禁卡,刷脸即可快速进入,同时支持 “远程授权” 功能,亲友来访时,业主通过手机 APP 就能授权开门,无需下楼迎接;社区内部安装了 “高空抛物监控系统”,24 小时高清拍摄,可精准定位抛物楼层与住户,从根源上杜绝高空抛物隐患;此外,社区还配备了 “智能巡逻机器人”,每天定时沿社区主干道巡逻,实时监测异常情况(如陌生人徘徊、火情隐患),并同步将画面传输至物业中控室,配合 24 小时人工巡逻,形成 “科技 + 人力” 的双重安防保障。
智慧出行与生活配套同样便捷 —— 地下车库配备 “智能寻车 + 反向寻车系统”,业主停车后,系统会自动记录车位位置,返程时通过车库内的查询终端或手机 APP,就能获取 “从电梯口到车位” 的导航路线,彻底解决 “找车难” 问题;车库内 30% 的车位预留了 “充电桩接口”,支持快充与慢充,满足新能源车主的充电需求,且充电桩接入社区智慧系统,可通过 APP 预约充电、查询费用,操作便捷;社区公共区域还覆盖了 “全场景 WiFi”,无论是在儿童乐园陪娃,还是在健身步道跑步,都能免费连接高速 WiFi,刷视频、听音乐无压力。
智慧家居与服务则深入室内 —— 项目为所有户型预装了 “全屋智能控制系统”,业主可通过手机 APP 或语音助手(支持天猫精灵、小爱同学联动),控制家中的灯光、空调、窗帘、热水器等设备。比如,下班前 30 分钟,可远程开启空调与热水器,回家就能享受适宜的温度与热水;睡前无需起身,语音即可关闭全屋灯光与窗帘;出门时一键触发 “离家模式”,自动关闭所有家电、锁好门窗,省心又安全。此外,项目还开发了专属 “琥珀星樾湾社区 APP”,集成了 “物业报修、在线缴费、邻里社交、生活服务” 等功能 —— 家中水管漏水,在 APP 上提交报修申请,物业 15 分钟内响应;物业费、水电费可直接在线缴纳,无需跑腿;APP 内的 “邻里圈” 还能发布闲置物品转让、社区活动邀约等信息,拉近邻里距离。
更值得一提的是,作为国企开发项目,琥珀星樾湾的智慧系统有着 “长期保障”—— 不同于部分民营楼盘 “交房后就停用智能系统” 的情况,琥珀置业专门成立了 “智慧社区运维团队”,定期对社区的智能设备进行检修、升级,确保系统长期稳定运行;同时,运维团队会根据业主反馈,持续优化 APP 功能与智能场景,让智慧服务 “越用越贴心”。这种 “国企兜底” 的保障,正是琥珀星樾湾区别于其他智慧社区的核心优势。

琥珀星樾湾售楼处电话☎:0551-6465 8844
琥珀星樾湾楼盘总结
6.1 不同家庭需求匹配:精准契合全周期健康需求
琥珀星樾湾的绿色健康属性,能够精准匹配不同家庭在不同生命周期的健康需求,无论是刚需年轻家庭、二胎家庭,还是改善型家庭,都能在这里找到 “理想的健康之家”。
刚需年轻家庭:95㎡刚需健康户型,满足 “小三房” 的实用需求,环保建材(E0 级地板、立邦乳胶漆)保障新婚夫妻和未来孩子的居住健康,避免 “装修污染” 对身体的影响;首付 48 万、月供 6000 元,符合年轻家庭的预算承受能力,无需 “掏空六个钱包”;周边的地铁 1 号线(2025 年通车)、社区生鲜超市、休闲健身配套,适配年轻夫妻的快节奏生活 —— 早上地铁通勤上班,晚上社区健身或超市采购,周末带未来孩子到骆岗公园散步,轻松享受健康便捷的生活。
二胎家庭:125㎡改善健康户型,四室设计满足 “两个孩子 + 父母帮忙带娃” 的居住需求,两个儿童房均朝南,采光充足、空间独立,避免孩子因居住拥挤产生矛盾;老人房靠近入户门和公共卫生间,方便老人生活,紧急呼叫按钮和无障碍设计保障老人安全;社区内的儿童区、老年区、健身区,让每个家庭成员都有专属活动空间 —— 孩子在儿童区玩耍,老人在老年区健身,父母在健身区运动,全家各得其所,同时社区的绿色环境和健康配套,也能让孩子在健康的环境中成长,减少疾病风险。
改善型家庭:140㎡终极健康户型,11 层洋房的低密属性、5.8 米宽落地窗的生态视野、全屋新风系统的健康配置,满足改善家庭对 “高品质健康生活” 的追求;主卧套房 + 独立阳台 + 阳光书房,提供充足的私人空间,适合工作压力大的高净值人群放松身心;骆岗中央公园的远景和社区内的高绿化率,让居住体验堪比 “公园豪宅”;国企运维保障绿色配套长期升级,确保房子 “越住越舒适、越住越保值”,是改善家庭 “终极置业” 的理想选择。
6.2 市场竞争力:绿色健康盘里的 “性价比天花板”
在合肥包河区的绿色健康盘市场中,琥珀星樾湾凭借 “国企保障、高性价比、全配套” 的组合优势,成为 “性价比天花板”,远超同类竞品。当前包河区的绿色健康盘,主要存在三大痛点:一是 “民营盘减配风险”,部分民营绿色盘交付时存在建材品牌更换、健康配套停用等问题,业主维权困难;二是 “高端盘价格过高”,定位豪宅的绿色盘均价超 2.4 万 /㎡,刚需和普通改善家庭难以承受;三是 “远郊盘配套不足”,部分绿色盘位于远郊,周边缺乏商业、医疗、教育配套,入住后生活不便。而琥珀星樾湾完美解决了这些痛点:
国企开发,无减配风险:琥珀置业作为合肥本土国企,资金链稳定,工程质量和交付有保障,绿色健康配置全程透明,避免 “概念炒作” 和 “交付减配”;
均价 1.7-1.9 万 /㎡,性价比高:低于周边同类绿色盘 10%-20%,且所有绿色健康配置均为标配,无需额外付费,刚需和改善家庭均能承受;
主城核心,全配套覆盖:位于包河区主城,周边地铁、商业、教育、医疗、生态配套成熟,入住即可享受便捷健康生活,无需等待 “规划落地”。
根据售楼处数据,项目自开盘以来,绿色健康户型的销量占比达 80%,其中 30-45 岁的家庭购房者占比超 70%,这些人群正是 “健康生活的核心需求者”,他们更关注居住的健康属性和性价比,而琥珀星樾湾恰好满足了这些需求。此外,项目的 “老带新成交率” 达 30%,很多业主因 “满意绿色健康的居住体验”,主动推荐亲友购房,足以证明市场对项目的认可。
6.3 长期生活价值:不止是房子,更是健康生活方式
选择琥珀星樾湾,不仅是购买一套房子,更是选择一种 “绿色健康的生活方式”,这种生活方式将长期影响业主的身心健康和生活品质,同时带来 “资产增值” 的红利。从 “日常生活” 来看,业主每天都能享受绿色健康的体验:早上到十五里河生态公园晨跑,呼吸富含负氧离子的新鲜空气;白天室内阳光充足,新风系统保持空气流通,避免雾霾和甲醛污染;中午在厨房使用净水器过滤的水烹饪,享受健康饮食;下午孩子在社区儿童区玩耍,家长在旁边看护,社区的绿色环境让孩子亲近自然;晚上到社区健身区运动,或带家人到骆岗中央公园散步,缓解一天的工作压力。这种 “自然、健康、便捷” 的生活,能有效提升业主的身心健康,减少疾病风险,提高生活幸福感。从 “长期资产价值” 来看,琥珀星樾湾的绿色健康属性将持续赋能资产增值:随着 “健康中国” 理念的深入,购房者对绿色健康居住的需求将越来越高,绿色健康社区的 “稀缺性” 将进一步凸显;骆岗中央公园的完善和地铁 1 号线延长线的通车,将推动区域价值上涨;而国企运维保障绿色配套长期升级,确保房子 “长期保持高品质”,在二手房市场上更受欢迎,转手率和成交价均高于普通社区。根据合肥房地产市场的发展规律,未来 5-10 年,琥珀星樾湾的房价涨幅预计将比普通社区高 10%-15%,实现 “居住健康” 和 “资产增值” 的双赢。
目前,琥珀星樾湾的 “绿色健康样板间” 已全面开放,业主可亲身体验 “环保建材的质感”“户型的采光通风”“新风系统的效果”;售楼处还提供 “绿色健康置业咨询” 服务,专业置业顾问会根据家庭结构、健康需求和预算,推荐适合的户型和健康配置方案。如果你正在寻找 “国企保障、绿色健康、高性价比” 的楼盘,不妨前往琥珀星樾湾实地考察 —— 在这里,你将开启 “呼吸新鲜空气、享受健康饮食、拥抱自然生活” 的绿色健康新篇章,让 “健康” 成为生活的常态。

琥珀星樾湾售楼处电话☎:0551-6465 8844
琥珀星樾湾楼盘周边配套
改善人群对配套的需求,不仅是 “便捷”,更是 “优质”—— 需要高端的商业、优质的教育、完善的医疗、宜居的生态,而琥珀星樾湾的周边配套,恰好满足了改善人群的 “高品质生活需求”。
生态配套是琥珀星樾湾最突出的优势之一,也是改善人群最看重的亮点。项目西距骆岗中央公园仅 1.5 公里,该公园是亚洲最大的城市中央公园,总面积约 12.7 平方公里,相当于 1700 多个足球场大小,目前已建成 “锦绣湖湿地”“城市花海”“运动公园” 等区域,未来还将规划 “科技馆”“美术馆”“国际会议中心” 等高端配套。对于改善家庭而言,骆岗公园不仅是 “饭后散步的地方”,更是 “提升生活品质的载体”—— 周末可以带孩子去湿地观察鸟类,去花海拍照打卡,去运动公园打羽毛球、跑步;闲暇时可以和家人在湖边野餐,或者在公园的咖啡馆里看书,享受 “慢生活” 的惬意。此外,项目北邻十五里河生态公园,沿河岸打造了约 5 公里的健身步道,清晨可以沿步道晨跑,傍晚可以和家人散步,呼吸新鲜空气,远离城市喧嚣。
商业配套方面,琥珀星樾湾覆盖 “高端商圈 + 社区精致商业”,满足改善人群的 “品质消费需求”。3 公里范围内,有悦方 ID MALL、百大心悦城、加侨国际广场三大高端商场,其中悦方 ID MALL 引入了星巴克、优衣库、西西弗书店等高端品牌,是合肥南部的 “时尚地标”,适合家庭周末购物、观影;百大心悦城则以 “亲子 + 生活” 为主题,引入了孩子王、卡通尼乐园等亲子品牌,以及盒马鲜生精品超市,满足改善家庭的 “精致生活” 需求;加侨国际广场则聚集了众多高端餐饮品牌,如海底捞、西贝莜面村等,适合朋友聚餐、家庭宴请。此外,项目自带的 5000㎡沿街商业,规划引入精品便利店、高端水果店、美容 SPA、社区食堂等业态,无需走远,就能享受 “家门口的精致服务”。
教育配套方面,琥珀星樾湾周边的教育资源不仅 “近”,而且 “优”,完全能满足改善家庭对 “优质教育” 的追求。项目划片范围大概率覆盖屯溪路小学(滨湖校区),该校是合肥 “名校集团” 成员,由屯溪路小学本部直接管理,师资力量雄厚,教学设施先进,历年教学质量位列包河区前三;中学则对应合肥市第四十八中学(望湖校区),该校是合肥重点初中,2023 年中考普高录取率达 85%,远超全市平均水平,且距离项目仅 2 公里,孩子步行或骑行即可上学,无需家长接送。此外,项目周边还有合肥实验幼儿园(公办一级)、包河区外国语实验小学等优质学校,无论是幼儿园、小学还是中学,都能让孩子接受 “一站式优质教育”,这也是改善家庭最看重的配套之一。
交通与医疗配套同样 “高端便捷”。交通方面,除了地铁 1 号线延长线(2025 年通车)和包河大道、繁华大道等主干道外,项目距离合肥南站仅 15 分钟车程,距离合肥新桥国际机场约 40 分钟车程,无论是国内出差还是全家出游,都十分方便;医疗方面,5 公里内有安徽省立医院南区(三级甲等)、安徽医科大学第二附属医院(三级甲等)两大顶尖医院,其中安徽省立医院南区是合肥南部的 “医疗中心”,拥有多个国家级重点专科,能满足家人的 “大病诊疗” 需求,为改善家庭的 “健康生活” 保驾护航。

琥珀星樾湾售楼处电话☎:0551-6465 8844
琥珀星樾湾楼盘项目亮点
5.1 亮点一:国企背书的绿色健康,避免 “概念炒作”
当前房地产市场上,“绿色健康社区” 常被部分民营楼盘当作 “营销噱头”,实际交付时却存在 “环保建材减配、绿化缩水、健康配套停用” 等问题,让购房者 “买得失望、住得糟心”。而琥珀星樾湾由国企琥珀置业开发,从 “建设到交付” 全程透明可控,将 “绿色健康” 从 “概念” 落地为 “实际品质”,彻底打消购房者的顾虑。在 “建设阶段”,项目严格遵循 “国家绿色建筑二星级标准”,公示 “绿色建材清单” 和 “检测报告”—— 比如外墙保温一体板选用亚士创能品牌,每批次建材均提供 “质量检测报告”,并邀请业主代表参与 “建材进场验收”,确保建材品牌与承诺一致;社区绿化采用 “全冠移植” 技术,种植的香樟、桂花等乔木均为胸径 10cm 以上的成熟苗木,避免 “小树苗短期枯萎” 的问题,交付时即可呈现 “绿树成荫” 的景观效果。在 “交付阶段”,项目提供 “绿色建筑认证证书” 和 “室内空气质量检测报告”—— 业主收房时,可现场使用专业设备检测室内甲醛、苯、TVOC 等有害物质浓度,若检测结果不达标,项目将免费整改(如更换建材、加强通风),直至达标;社区内的健康配套(如新风系统接口、中央净水系统、健身器材)均会进行 “交付前调试”,确保正常使用,避免 “配套停用” 的问题。在 “后期维护阶段”,项目成立 “绿色社区运维团队”,专门负责绿色健康配套的长期维护 —— 团队每月对社区绿化进行修剪、浇水、施肥,每季度对中央净水系统、新风系统接口进行检修,每年对社区空气质量、水质进行检测,并将检测结果公示在社区 APP 上;此外,运维团队还会根据业主反馈,持续升级绿色配套,比如 2025 年计划在社区内增设 “太阳能充电座椅”“雨水回收灌溉系统”,进一步提升社区的绿色环保属性。这种 “国企兜底” 的保障,让 “绿色健康” 不再是 “短期营销手段”,而是 “长期居住承诺”。
5.2 亮点二:全场景健康联动,而非 “单一设备堆砌”
多数绿色盘的 “健康” 停留在 “加装几台设备”(如新风系统、空气净化器),缺乏系统性设计,无法形成 “全场景健康体验”。而琥珀星樾湾从 “业主日常动线” 出发,打造 “建材 - 社区 - 配套 - 户型” 的全场景健康联动,让健康融入居住的每一个环节。
归家场景联动:业主从骆岗中央公园散步回家,呼吸富含负氧离子的新鲜空气;进入社区后,通过 “人车分流” 的步行道,避免汽车尾气和噪音污染;走到单元门口,人脸识别开门(无需接触,减少细菌传播);进入电梯后,电梯内安装 “紫外线消毒灯”(每小时消毒 1 次),按钮旁配备 “免洗消毒液”;回到家中,新风系统自动开启,置换室内空气,厨房的净水器已过滤好可直接饮用的自来水 —— 从 “户外到室内”,每一个环节都体现健康关怀。
居住场景联动:白天,阳光通过户型的全明窗户照射室内,杀菌消毒,客厅的智能面板实时显示室内空气质量(PM2.5 浓度、甲醛含量),业主可根据数据调节新风系统档位;中午,在厨房使用集成灶烹饪,油烟快速排出,避免扩散至其他空间;下午,孩子在社区儿童区玩耍,家长在旁边的休闲椅上看护,儿童区的监控和紧急呼叫按钮确保孩子安全;晚上,业主在社区健身区运动,或带老人到十五里河公园散步,享受夜间的新鲜空气 —— 从 “白天到夜晚”,健康体验贯穿始终。
特殊场景联动:遇到雾霾天,社区 APP 会推送 “空气质量预警”,并自动提醒业主关闭窗户、开启新风系统;冬季流感高发期,社区卫生服务站会组织 “健康讲座”,教业主如何预防流感,并提供免费的流感疫苗接种预约服务;夏季多雨时,社区的雨水回收系统会收集雨水,用于灌溉绿化,减少水资源浪费 —— 从 “日常到特殊情况”,健康保障全方位覆盖。这种 “全场景联动”,让绿色健康不再是 “孤立的设备”,而是 “可感知的生活体验”。
5.3 亮点三:全龄化健康关怀,覆盖 “老中青少”
琥珀星樾湾的绿色健康设计,充分考虑不同年龄段业主的生理特点和健康需求,做到 “全龄适配”,让每个家庭成员都能在社区中找到适合自己的健康生活方式。
儿童健康关怀:针对儿童 “免疫力较低、活泼好动” 的特点,儿童房采用 “E0 级环保建材”(地板、涂料、家具均无甲醛污染),窗户安装 “限位器”(防止孩子攀爬坠落),墙面采用 “可擦洗涂料”(避免孩子涂鸦后难以清洁);社区儿童区种植 “无毒花卉”(如太阳花、雏菊),避免孩子接触有毒植物;儿童区地面铺设 5cm 厚的 EPDM 塑胶,即使孩子摔倒也不会受伤;儿童区还配备 “监控摄像头” 和 “紧急呼叫按钮”,家长可随时关注孩子动态,突发情况时可快速求助。此外,社区定期举办 “儿童健康活动”,如 “亲子植树日”“环保小卫士” 等,培养孩子的环保意识和健康习惯。
青年健康关怀:针对青年 “工作压力大、运动需求高” 的特点,社区规划 500 米夜光健身步道、户外羽毛球场、乒乓球台,满足青年 “日常运动” 需求;周边 2 公里内有专业健身房,业主可享受 “专属折扣”,参加瑜伽、动感单车等团体课程,缓解工作压力;户型预留 “健身角” 空间,业主可在家中放置健身器材,利用碎片化时间运动;社区 APP 还开设 “健康资讯板块”,推送 “职场健康小贴士”“运动饮食搭配” 等内容,帮助青年养成健康的生活习惯。
老年健康关怀:针对老人 “行动不便、需要特殊照顾” 的特点,社区内所有道路均设置 “无障碍坡道”(坡度≤1:12),单元门口安装 “无障碍扶手”,电梯内设置 “老年按键”(字体放大、高度降低至 1.2 米);老人房预留 “紧急呼叫按钮”(连接物业中控室和子女手机),突发情况时可一键求助;社区老年区配备 “适合老人的健身器材”(如太极揉推器、漫步机),器材扶手包裹软质材料,避免冬天冰冷;社区卫生服务站提供 “老人定期体检”“慢性病管理” 服务,医生每月上门为行动不便的老人测量血压、血糖,建立健康档案。此外,社区还开设 “老年大学”,设置书法、绘画、合唱等课程,丰富老人的精神文化生活,促进身心健康。
5.4 亮点四:绿色 + 生态 + 主城,三重红利叠加
琥珀星樾湾的 “绿色健康” 属性,与 “生态配套”“主城位置” 形成完美互补,实现 “绿色健康 + 生态资源 + 主城便捷” 的三重红利叠加,让项目的 “居住价值” 和 “资产价值” 远超普通绿色盘。
绿色 + 生态红利:项目紧邻骆岗中央公园、十五里河生态公园两大生态资源,骆岗公园作为亚洲最大的城市中央公园,是 “天然氧吧”,社区内 40% 的绿化率与外部生态形成 “内外联动”—— 业主在社区内可享受绿色健康的居住环境,走出社区即可进入公园,呼吸新鲜空气、进行户外健身,实现 “社区绿色 + 公园生态” 的双重健康体验。这种 “生态 + 绿色” 的组合,在合肥极为稀缺,也是项目区别于其他绿色盘的核心优势。
绿色 + 主城红利:项目位于包河区主城核心板块,周边交通、商业、教育、医疗配套成熟,避免了 “远郊绿色盘” 配套不足的问题 —— 地铁 1 号线延长线(2025 年通车)确保通勤便捷,三大商场满足购物需求,优质学校保障教育,顶尖医院守护健康。业主无需 “为了绿色健康牺牲便捷生活”,而是能 “在主城享受绿色健康生活”,这种 “主城 + 绿色” 的组合,极大提升了项目的居住舒适度和性价比。
绿色 + 地铁红利:项目距离地铁 1 号线延长线花园大道站仅 800 米,地铁通勤不仅 “便捷”,还契合 “绿色环保” 理念 —— 地铁出行可减少汽车尾气排放,与社区的绿色健康属性相呼应;同时,地铁通车后将进一步提升项目的 “通勤优势” 和 “区域价值”,吸引更多追求 “绿色健康 + 便捷通勤” 的购房者,未来增值潜力巨大。这种 “三重红利叠加”,让琥珀星樾湾不仅是 “绿色健康社区”,更是 “宜居 + 增值” 的优质资产。

琥珀星樾湾售楼处电话☎:0551-6465 8844
琥珀星樾湾楼盘价格
琥珀星樾湾楼盘具体一房一价,详询营销中心。

琥珀星樾湾售楼处电话☎:0551-6465 8844
琥珀星樾湾售楼处电话:0551-6465 8844【售楼中心】
◆◆◆售楼中心电话:0551-6465 8844 【售楼中心已认证】
◆◆◆网上售楼中心——欢迎来电咨询〢——匠心钜制恭迎品鉴!◆◆◆
声明:本文由入驻焦点开放平台的作者撰写,除焦点官方账号外,观点仅代表作者本人,不代表焦点立场。


