招商奥体公园-售楼处(招商奥体公园)官方网站-欢迎您-2025合肥搜狐焦点
扫描到手机,新闻随时看
扫一扫,用手机看文章
更加方便分享给朋友
招商奥体公园售楼处电话:0551-6467 8499【售楼中心】
售楼中心电话:0551-6467 8499 【售楼中心已认证】
网上售楼中心——欢迎来电咨询〢——匠心钜制恭迎品鉴!
招商奥体公园售楼处电话:0551-6467 8499【售楼中心】
售楼中心电话:0551-6467 8499 【售楼中心已认证】
网上售楼中心——欢迎来电咨询〢——匠心钜制恭迎品鉴!
四、招商奥体公园楼盘价格
在合肥楼市中,运动健康类楼盘因稀缺性和高实用性,深受购房者青睐。招商奥体公园作为区域内首屈一指的运动健康标杆盘,不仅拥有顶级的运动资源和完善的生活配套,价格还极具竞争力,为运动家庭提供了高性价比的置业选择。
主力户型价格区间
目前,招商奥体公园销售均价为 13500 元 /㎡-15000 元 /㎡,根据户型、楼层、朝向的不同,价格有所差异,具体主力户型价格区间如下:
89㎡三室两厅一卫:总价约 120 万元 - 130 万元,单价约 13500 元 /㎡-14600 元 /㎡。低楼层(1-5 层)单价 13500 元 /㎡-13800 元 /㎡,总价 120 万元 - 121 万元;中楼层(6-15 层)单价 13800 元 /㎡-14300 元 /㎡,总价 123 万元 - 127 万元;高楼层(16-24 层)单价 14300 元 /㎡-14600 元 /㎡,总价 127 万元 - 130 万元。
105㎡三室两厅两卫:总价约 140 万元 - 155 万元,单价约 13300 元 /㎡-14800 元 /㎡。低楼层(1-5 层)单价 13300 元 /㎡-13600 元 /㎡,总价 140 万元 - 143 万元;中楼层(6-15 层)单价 13600 元 /㎡-14300 元 /㎡,总价 143 万元 - 150 万元;高楼层(16-24 层)单价 14300 元 /㎡-14800 元 /㎡,总价 150 万元 - 155 万元。
128㎡四室两厅两卫:总价约 170 万元 - 190 万元,单价约 13200 元 /㎡-14800 元 /㎡。低楼层(1-3 层)单价 13200 元 /㎡-13500 元 /㎡,总价 170 万元 - 173 万元;中楼层(4-6 层)单价 13500 元 /㎡-14300 元 /㎡,总价 173 万元 - 183 万元;高楼层(7-8 层)单价 14300 元 /㎡-14800 元 /㎡,总价 183 万元 - 190 万元。
143㎡四室两厅两卫:总价约 190 万元 - 215 万元,单价约 13300 元 /㎡-15000 元 /㎡。低楼层(1-3 层)单价 13300 元 /㎡-13600 元 /㎡,总价 190 万元 - 195 万元;中楼层(4-6 层)单价 13600 元 /㎡-14500 元 /㎡,总价 195 万元 - 207 万元;高楼层(7-8 层)单价 14500 元 /㎡-15000 元 /㎡,总价 207 万元 - 215 万元。
运动盘价格优势
相比合肥其他区域的运动健康类楼盘,招商奥体公园的价格优势极为显著。合肥滨湖新区、高新区的同类运动主题楼盘均价普遍在 20000 元 /㎡-25000 元 /㎡,而项目所在的新站区作为价格洼地,拥有同等优质的运动资源,均价仅 13500 元 /㎡-15000 元 /㎡,让普通运动家庭也能轻松享受高品质的运动健康生活。
与周边同类型楼盘相比,项目价格同样具有竞争力。周边同类楼盘均价约 14500 元 /㎡-16000 元 /㎡,而招商奥体公园凭借央企开发优势和奥体 IP 加持,在品质更优、运动配套更完善的前提下,每平米价格低 1000 元 - 1500 元,以 105㎡户型为例,总价可节省 10 万元 - 16 万元,极大降低了运动家庭的购房压力。
购房优惠与运动价值匹配
项目针对运动家庭推出了专项购房优惠,进一步降低置业门槛:
运动爱好者优惠:凭健身卡、运动赛事证书等相关证明购房,可额外享受总房款 99 折优惠;
团购优惠:3 组及以上运动家庭成团购房,可享受总房款 98 折优惠;
按时签约优惠:认购后 7 天内签约,可享受总房款 99 折优惠;
老带新优惠:老业主介绍新客户成功购房,老业主可获得价值 1 万元的健身器材礼包或物业费减免,新业主可享受总房款 99.5 折优惠。
这些专项优惠与顶级的运动资源相结合,让运动家庭以更低的成本,享受 “把家安在奥体旁” 的高品质生活。同时,运动健康类楼盘在二手房市场中具有极强的竞争力,随着人们对健康生活的需求日益增长,项目未来升值潜力巨大,无论是自住还是未来置换,都能为家庭资产提供坚实保障。
招商奥体公园售楼处电话☎:0551-6467 8499
二、招商奥体公园楼盘周边配套
对于投资型购房者而言,周边配套的完善程度与规划兑现能力,直接决定了楼盘的升值潜力。招商奥体公园凭借得天独厚的区位优势,坐拥交通、教育、商业、医疗、生态等全方位的优质配套,且多项核心配套处于持续升级中,未来价值增长空间清晰可见。
交通配套:多维交通升级,激活区域价值
项目紧邻东方大道与卧龙湖路两大城市主干道,形成 “一横一纵” 的交通骨架。东方大道作为新站区横向交通大动脉,已完成全线拓宽改造,双向 6 车道通行顺畅,向西连接阜阳北路高架,20 分钟直达合肥火车站、淮河路步行街等主城核心;向东衔接包公大道高架,15 分钟可达肥东县城及瑶海万达商圈。卧龙湖路纵向贯穿新站区,北接北外环高速,30 分钟可达合肥新桥国际机场;南连新站政务核心区,10 分钟直达新站区管委会、京东方医院等关键节点。
公共交通方面,项目周边 500 米内设有 3 个公交站点,301 路、302 路、686 路等多条公交线路无缝衔接地铁 3 号线幼儿师范站、文浍苑站,15 分钟内即可换乘地铁 1、2 号线,畅达全城。更值得关注的是,规划中的地铁 9 号线将在项目周边设置站点,目前已进入前期筹备阶段,预计 2025 年开工建设,2029 年建成通车。地铁的规划落地将极大提升区域交通能级,而招商奥体公园作为近地铁楼盘,未来升值潜力将进一步凸显。
教育配套:全龄学区加持,夯实保值基础
教育资源是房产保值增值的核心要素之一,招商奥体公园周边已形成从幼儿园到中学的全龄段优质教育体系,且教育资源持续升级。项目内部规划的 12 班制公办幼儿园,预计 2025 年正式招生,采用高标准建设,配备专业师资,让业主子女足不出社区即可享受优质启蒙教育。
步行 1 公里范围内,合肥新站寿春实验中学、合肥市庆平希望学校、合肥市第 168 中学东校区等多所名校环绕。其中,合肥新站寿春实验中学中考成绩连续多年位列新站区前列,合肥市第 168 中学东校区作为省级示范高中,高考本科率常年保持在 95% 以上,是合肥家长公认的优质学区。此外,周边还有 2 所规划中小学已启动招标建设,未来区域教育资源将更加丰富,“学区房” 属性将进一步强化项目的保值增值能力。
商业配套:繁华商业兑现,提升生活价值
商业配套的成熟度直接影响居住舒适度与房产流动性,招商奥体公园周边商业配套正加速兑现。项目自带约 2 万方社区商业,目前已与多家知名超市、生鲜卖场、品牌餐饮达成意向合作,预计 2026 年随住宅交付同步开业,将满足业主日常购物、餐饮等基本需求。
距离项目 3 公里的武里山天街商圈已成熟运营,永辉超市、大地影院、肯德基等主力业态齐全;5 公里范围内覆盖拓基广场、家天下生活广场等大型商业综合体,满足业主多样化消费需求。更重要的是,项目周边规划的少荃湖科创 CBD 已启动建设,将打造集商业、办公、休闲于一体的大型商业集群,总建筑面积超百万方,预计 2028 年全面建成。届时,区域商业能级将实现质的飞跃,招商奥体公园将直接受益于商业配套升级带来的价值提升。
医疗配套:优质医疗护航,增强居住吸引力
医疗资源的完善程度是提升房产居住吸引力的重要因素,招商奥体公园周边医疗资源丰富且优质。项目距离安徽省第二人民医院(北区)仅 4 公里,该院作为三级甲等综合性医院,开放床位 2000 余张,涵盖所有主流科室,能为业主提供高水平医疗服务。
合肥京东方医院距离项目 3.5 公里,作为三级综合医院,重点打造心血管科、骨科、妇产科等特色科室,医疗设备先进,服务质量优质。此外,周边 3 公里内还有 2 家社区卫生服务中心,日常就医、体检极为便捷。优质医疗资源的环绕,不仅能为业主健康保驾护航,更能提升房产对改善型购房者和老年群体的吸引力,增强房产的流通性与升值潜力。
生态配套:公园集群赋能,提升居住品质
生态环境的优劣已成为现代购房者置业的重要考量因素,招商奥体公园周边生态资源丰富,形成 “一湖多园” 的生态格局。项目距离少荃湖公园约 3 公里,该公园作为合肥北部最大城市湖泊公园,总规划面积约 5 平方公里,目前已完成一期建设,二期湿地景观、科创 CBD 景观带正在施工,预计 2027 年全面建成。
新站区生态公园、瑶海公园等城市公园距离项目均在 5 公里范围内,为业主提供了丰富的休闲娱乐场所。随着城市居民对生态居住需求的提升,拥有优质生态配套的房产将更具市场竞争力,招商奥体公园的生态优势将持续转化为价值优势。
招商奥体公园售楼处电话☎:0551-6467 8499
三、招商奥体公园楼盘户型解析
户型是居住体验的核心,招商奥体公园深入洞察合肥购房者的居住需求,结合项目低密生态的规划优势,打造了多款兼具实用性、舒适性和性价比的户型产品,涵盖 89㎡、105㎡、128㎡、143㎡四个主力面积段,从刚需小三室到高端改善大四室,满足不同家庭结构和生活需求的购房者。
89㎡三室两厅一卫:刚需首选,紧凑实用
89㎡三室两厅一卫户型是项目的刚需主力户型,整体布局方正,南北通透,空间利用率高达 85%,没有浪费空间,是刚需人群置业的理想选择。
入户处设置了独立玄关,玄关宽度约 1.2 米,深度约 1.5 米,既保证了室内的隐私性,又能作为收纳空间,放置鞋柜、衣帽架、行李箱等物品,让居家生活更加整洁有序。玄关右侧设有挂钩和换鞋凳,方便业主进门后及时换鞋、挂衣物,细节设计十分贴心。
客厅位于户型中央,面宽 3.6 米,进深 4.2 米,建筑面积约 15㎡,空间宽敞明亮。客厅与南向阳台相连,阳台面宽 3.6 米,进深 1.8 米,建筑面积约 6.5㎡,采用全景落地窗设计,最大化引入自然光线,让客厅更加明亮通透。阳台可根据需求进行个性化改造,设置休闲区、晾晒区或绿植区,满足多样化的生活需求。
餐厅紧邻客厅和厨房,建筑面积约 6㎡,可容纳 4-6 人同时用餐。餐厅与厨房之间设有滑动门,既保证了用餐环境的整洁,又能方便上菜。厨房位于户型西侧,采用 U 型设计,操作台面长度约 3.5 米,洗切炒动线合理,预留了双开门冰箱位置,同时配备了燃气热水器、抽油烟机、燃气灶等基础家电接口,满足日常烹饪需求。
三个卧室分布在户型的东侧和北侧,动静分离,避免了活动区对休息区的干扰。主卧位于户型东侧,面宽 3.2 米,进深 3.8 米,建筑面积约 12㎡,带有南向飘窗,采光充足,空间宽敞,可放置 1.8 米宽的床和衣柜。两个次卧分别位于户型北侧和东侧,面宽均为 2.7 米,进深 3.2 米,建筑面积约 8.6㎡,可作为儿童房、老人房或书房,满足不同家庭的居住需求。
卫生间位于户型北侧,建筑面积约 4.5㎡,采用干湿分离设计,将淋浴区与洗漱区、马桶区分开,提高了使用效率,避免了潮湿问题。卫生间配备了花洒、马桶、洗手盆等基础洁具,同时预留了洗衣机接口,方便业主使用。
105㎡三室两厅两卫:改善刚需,舒适升级
105㎡三室两厅两卫户型是在 89㎡户型基础上的升级版本,空间更加宽敞,舒适度更高,适合改善型刚需人群,既能满足家庭成员的居住需求,又能保证居住的舒适性。
入户玄关更加开阔,宽度约 1.5 米,深度约 1.8 米,可设置多功能收纳柜,满足家庭更多的收纳需求。玄关处采用大理石地面,与室内木地板形成鲜明对比,彰显品质感。
客厅面宽提升至 3.8 米,进深 4.5 米,建筑面积约 17㎡,空间更加宽敞明亮。客厅与南向阳台相连,阳台面宽 3.8 米,进深 2.0 米,建筑面积约 7.6㎡,采用全景落地窗设计,视野更加开阔,采光通风效果更佳。阳台可设置休闲沙发、茶几,打造专属的休闲空间,欣赏社区美景。
餐厅建筑面积约 7㎡,可容纳 6-8 人同时用餐,与客厅形成通透的一体化空间,增强了空间的开阔感。厨房位于户型西侧,采用 U 型设计,操作台面长度约 3.8 米,空间更加宽敞,预留了双开门冰箱位置,满足大家庭的烹饪需求。厨房与餐厅之间采用开放式设计(可根据需求设置滑动门),增强了空间的互动性。
三个卧室分布合理,动静分离。主卧位于户型东侧,采用套房设计,面宽 3.3 米,进深 4.8 米,建筑面积约 16㎡,配备独立卫生间和衣帽间。主卧带有南向飘窗,采光充足,空间宽敞舒适,可放置 1.8 米宽的床、衣柜和梳妆台。独立卫生间建筑面积约 4㎡,采用干湿分离设计,配备花洒、马桶、洗手盆等洁具,保证了主人的隐私和居住舒适度。
两个次卧分别位于户型北侧和东侧,面宽均为 2.8 米,进深 3.5 米,建筑面积约 9.8㎡,空间充足,可放置 1.5 米宽的床和衣柜。其中一个次卧带有南向飘窗,采光良好,可作为儿童房;另一个次卧可作为老人房或书房,满足多样化的居住需求。
公共卫生间位于户型北侧,建筑面积约 5㎡,采用干湿分离设计,位于两个次卧之间,使用方便。公共卫生间配备了花洒、马桶、洗手盆、洗衣机接口等,满足家庭成员的日常使用需求。
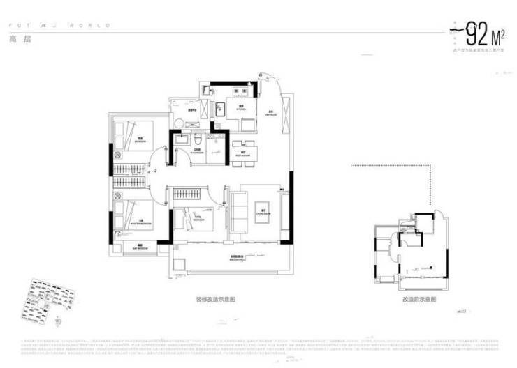
128㎡四室两厅两卫:改善优选,空间阔绰
128㎡四室两厅两卫户型是项目的改善主力户型,户型方正通透,南北双阳台设计,空间阔绰,舒适度高,适合家庭成员较多的改善型人群。
入户玄关宽敞明亮,宽度约 1.8 米,深度约 2.0 米,可设置入户花园或多功能收纳区,提升居家品质。玄关处采用吊顶设计,搭配筒灯和射灯,营造出温馨舒适的氛围。
客厅面宽 4.0 米,进深 4.8 米,建筑面积约 19㎡,空间宽敞开阔。客厅与南向景观阳台相连,阳台面宽 4.0 米,进深 2.0 米,建筑面积约 8㎡,采用全景落地窗设计,采光通风效果极佳。阳台可打造为空中花园,种植各种绿植花卉,或设置休闲茶室,享受惬意的休闲时光。
餐厅建筑面积约 8㎡,可容纳 8-10 人同时用餐,与客厅形成通透的一体化空间,增强了空间的开阔感。餐厅与北向生活阳台相连,北向阳台面宽 3.0 米,进深 1.8 米,建筑面积约 5.4㎡,可作为晾晒区、储物区或洗衣房,功能分区明确,提高了空间利用率。
厨房位于户型西侧,采用 L 型设计,操作台面长度约 4.0 米,空间宽敞,动线合理。厨房配备了燃气热水器、抽油烟机、燃气灶等基础家电接口,预留了双开门冰箱位置,满足大家庭的烹饪需求。厨房与餐厅相邻,用餐、上菜十分便捷。
四个卧室分布合理,动静分离,避免了活动区对休息区的干扰。主卧位于户型东侧,采用套房设计,面宽 3.5 米,进深 5.0 米,建筑面积约 17.5㎡,配备独立卫生间和步入式衣帽间。主卧带有南向全景飘窗,采光充足,空间宽敞奢华,可放置 2.0 米宽的床、衣柜和梳妆台,彰显主人身份。独立卫生间建筑面积约 5㎡,采用干湿分离设计,配备花洒、马桶、洗手盆、浴缸等洁具,享受高品质的卫浴体验。
两个南向次卧分别位于户型南侧和东侧,面宽均为 3.0 米,进深 3.8 米,建筑面积约 11.4㎡,空间充足,采光良好。其中一个次卧可作为儿童房,放置 1.5 米宽的床、书桌和衣柜;另一个次卧可作为老人房,方便老人日常生活。北向次卧位于户型北侧,面宽 2.8 米,进深 3.5 米,建筑面积约 9.8㎡,可作为书房、茶室或健身房,满足多样化的居住需求。
公共卫生间位于户型北侧,建筑面积约 5.5㎡,采用干湿分离设计,位于两个次卧之间,使用方便。公共卫生间配备了花洒、马桶、洗手盆、洗衣机接口等,满足家庭成员的日常使用需求。
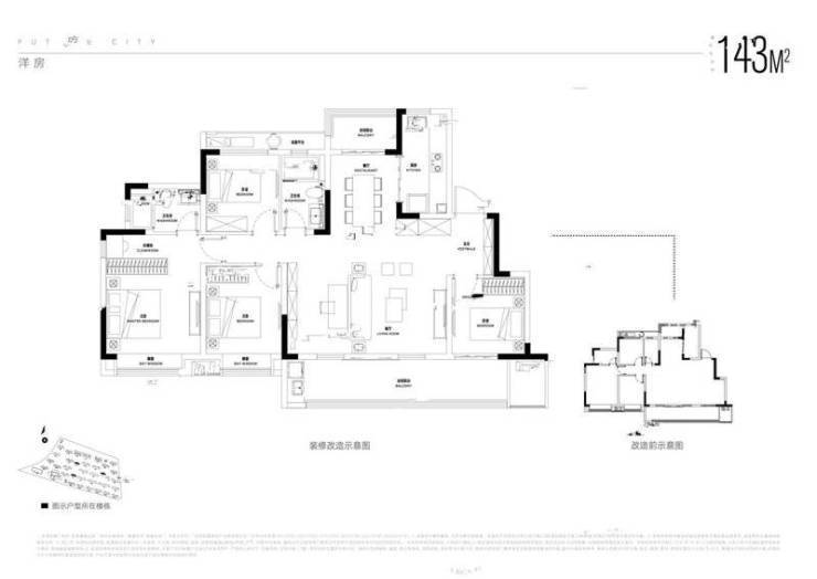
143㎡四室两厅两卫:高端改善,奢华舒适
143㎡四室两厅两卫户型是项目的高端改善户型,空间开阔,布局合理,品质感十足,适合追求高品质生活的改善型人群。
入户玄关采用子母门设计,彰显尊贵感。玄关宽度约 2.0 米,深度约 2.2 米,可设置大型收纳柜和展示区,收纳空间充足,同时提升了居家品质。玄关处采用大理石地面和吊顶设计,搭配水晶吊灯,营造出奢华大气的氛围。
客厅面宽 4.2 米,进深 5.0 米,建筑面积约 21㎡,空间宽敞开阔,气势十足。客厅与南向超宽阳台相连,阳台面宽 6.8 米,进深 2.0 米,建筑面积约 13.6㎡,采用全景落地窗设计,视野开阔,采光通风效果极佳。阳台可打造为多功能休闲区,设置休闲沙发、茶几、跑步机等,满足休闲、健身、观景等多种需求。
餐厅建筑面积约 9㎡,可容纳 10-12 人同时用餐,与客厅形成通透的一体化空间,增强了空间的开阔感。餐厅与北向生活阳台相连,北向阳台面宽 3.2 米,进深 1.8 米,建筑面积约 5.8㎡,可作为晾晒区、储物区或洗衣房,功能分区明确。
厨房位于户型西侧,采用中西厨设计,中厨封闭烹饪,避免油烟扩散;西厨可作为早餐台、吧台,满足多样化的烹饪需求。中厨采用 U 型设计,操作台面长度约 4.5 米,空间宽敞,动线合理,预留了双开门冰箱位置和各种家电接口。西厨与餐厅相邻,用餐便捷,同时增强了空间的互动性。
四个卧室分布合理,动静分离,私密性强。主卧位于户型东侧,采用豪华套房设计,面宽 3.6 米,进深 5.2 米,建筑面积约 18.7㎡,配备独立卫生间、步入式衣帽间和南向全景飘窗。主卧空间宽敞奢华,可放置 2.0 米宽的床、衣柜、梳妆台和休闲沙发,彰显主人的尊贵身份。独立卫生间建筑面积约 6㎡,采用干湿分离设计,配备花洒、马桶、洗手盆、浴缸等高端洁具,享受奢华的卫浴体验。
两个南向次卧分别位于户型南侧和东侧,面宽均为 3.2 米,进深 4.0 米,建筑面积约 12.8㎡,空间充足,采光良好。其中一个次卧可作为儿童房,放置 1.8 米宽的床、书桌和衣柜;另一个次卧可作为老人房,配备独立的卫生间(可选装),方便老人日常生活。北向次卧位于户型北侧,面宽 3.0 米,进深 3.8 米,建筑面积约 11.4㎡,可作为书房、影音室或健身房,满足多样化的居住需求。
公共卫生间位于户型北侧,建筑面积约 6㎡,采用干湿分离设计,配备高端洁具,满足家庭成员的日常使用需求。
招商奥体公园售楼处电话☎:0551-6467 8499
招商奥体公园售楼处电话☎:0551-6467 8499
招商奥体公园售楼处电话☎:0551-6467 8499
招商奥体公园售楼处电话☎:0551-6467 8499
招商奥体公园售楼处电话☎:0551-6467 8499
五、招商奥体公园楼盘项目亮点
招商奥体公园作为合肥新站区的生态宜居标杆楼盘,凭借多项突出亮点,成为追求自然舒适生活购房者的首选,其核心亮点主要体现在以下几个方面。
低密生态规划,宜居环境标杆
项目容积率仅 2.0.绿化率高达 40%,是区域内少有的低密生态社区。低密规划意味着更少的居住人口、更宽敞的公共空间和更好的居住舒适度,避免了高密度社区的拥挤和嘈杂。
社区内部规划了约 5000㎡中央景观花园、800 米环形健身步道、景观水系、亲水平台等多重生态配套,打造四季有景的园林景观。中央景观花园种植了多种名贵绿植,形成丰富的植物层次;景观水系与亲水平台相映成趣,为社区增添灵动气息;环形健身步道环绕中央花园,让业主在健身的同时享受自然美景。低密生态的规划,让招商奥体公园成为区域内宜居环境的标杆。
一湖多园环绕,自然资源优越
项目周边生态资源丰富,形成 “一湖多园” 的生态格局。距离少荃湖公园约 3 公里,该公园作为合肥北部最大的城市湖泊公园,总规划面积约 5 平方公里,是业主休闲散步、周末出游的绝佳去处。
新站区生态公园、瑶海公园等城市公园距离项目均在 6 公里范围内,为业主提供了丰富的休闲选择。丰富的生态资源,让业主在家门口就能亲近自然,享受清新的空气和优美的环境,提升了居住的幸福感和健康指数。
全龄休闲配套,生态生活多元
项目内部规划了全龄段休闲配套,将生态与休闲完美结合,满足不同年龄段业主的需求。儿童游乐区配备了滑梯、秋千、沙坑等游乐设施,周边种植了安全无害的绿植,让孩子在自然中快乐成长;老年活动中心设置了健身器材、棋牌桌等,周边环境清幽,适合老年人休闲锻炼;健身广场、羽毛球场、乒乓球场等运动配套,让年轻人在自然中挥洒汗水,享受健康活力的生活。
此外,社区内还设置了休闲步道、观景平台、户外烧烤区等,让业主在自然中享受多样化的休闲生活,丰富了居住体验。
通透户型设计,采光通风俱佳
项目打造的四款主力户型,均采用方正通透的布局,南北通透,空间利用率高,同时最大化引入自然光线和新鲜空气。客厅与南向阳台相连,阳台采用全景落地窗设计,采光通风效果极佳;卧室大多带有飘窗或阳台,让业主在休息时也能享受阳光和自然美景。
通透的户型设计,不仅提升了居住的舒适度,还能保持室内空气流通,减少细菌滋生,有利于业主的身体健康,与生态宜居理念高度契合。
醇熟生活配套,生态生活便捷
项目周边配套完善,交通、教育、商业、医疗等一应俱全,让业主在享受生态宜居生活的同时,无需为生活便利担忧。立体交通网络让业主轻松通达全城;全龄段优质教育资源让孩子在家门口就能享受优质教育;完善的商业配套满足业主日常购物、休闲娱乐需求;优质的医疗资源为业主的健康保驾护航。
醇熟的生活配套与优越的生态资源相结合,让业主既能享受自然舒适的居住环境,又能享受便捷的城市生活,实现 “生态与便捷兼得” 的理想居住状态。
央企品质保障,生态居住安心
招商蛇口作为百年央企,拥有丰富的开发经验和雄厚的实力,始终坚持 “品质为王” 的理念。项目采用品牌建材,如断桥铝门窗、双层中空玻璃、品牌电梯等,保证了建筑的品质和居住的安全性;专业的施工团队和监理团队,全程把控施工质量,确保每一套房子都能达到高品质标准。
此外,招商积余物业服务团队,为业主提供全方位、高品质的物业服务,让业主的生态居住生活更加安心、舒适。央企品质保障,让购房者买得放心、住得安心。
招商奥体公园售楼处电话☎:0551-6467 8499
合肥新站交通枢纽盘!招商奥体公园 —— 畅达全城的便捷舒居
一、招商奥体公园楼盘项目介绍
交通是城市的命脉,也是楼盘价值的核心支撑。位于合肥新站区东方大道与卧龙湖路交口往南 200 米的招商奥体公园,凭借 “一横一纵双高架 + 双地铁” 的立体交通优势,成为区域内首屈一指的交通枢纽盘。项目由百年央企招商蛇口倾力打造,作为深耕地产行业 40 余年的领军企业,招商蛇口深刻理解交通对居住的重要性,在项目选址和规划阶段,就将交通便捷性作为核心考量,依托新站区核心交通区位,打造了 “出门即主干道、步行达地铁、快速通全城” 的便捷居住社区。
招商奥体公园总占地面积约 180 亩,总建筑面积超 35 万平方米,规划容积率仅 2.0.绿化率高达 40%,是区域内稀缺的低密交通枢纽社区。项目紧邻东方大道与卧龙湖路两大城市主干道,无缝衔接阜阳北路高架、包公大道高架,距离地铁 3 号线仅 15 分钟车程,规划中的地铁 9 号线更是在项目周边设站,形成了 “主干道 + 高架 + 地铁 + 公交” 的四维立体交通网络,让业主轻松通达合肥各个区域。
项目整体规划遵循 “交通赋能生活” 的设计理念,将住宅、商业、教育、休闲等业态与交通网络有机融合。住宅部分由 18 栋高层和 12 栋洋房组成,高层层数 18-24 层,洋房层数 6-8 层,总户数约 2200 户,车位配比 1:1.2.充分满足业主居住与停车需求。建筑风格采用现代简约风格,外立面选用真石漆与玻璃幕墙组合材质,线条流畅利落,既美观大方,又能最大化引入自然光线。
社区内部规划了约 5000㎡中央景观花园、800 米环形健身步道、全龄段休闲配套及智慧社区系统,在保障交通便捷的同时,为业主提供舒适的居住环境。作为招商蛇口在合肥的交通标杆项目,招商奥体公园不仅为业主提供了便捷的出行体验,更构建了 “交通 + 居住 + 生活” 的一站式便捷生活体系,让便捷成为生活的日常。
招商奥体公园售楼处电话☎:0551-6467 8499
六、招商奥体公园楼盘总结
招商奥体公园作为合肥新站区的运动健康标杆盘,以奥体 IP 为核心,以全龄运动配套为支撑,以运动融合型产品为载体,以醇熟配套为保障,为运动家庭打造了 “运动无忧、生活便捷、居住舒适” 的理想家园,成为运动爱好者和重视健康生活家庭的置业首选。
从运动资源来看,项目紧邻规划中的合肥新站奥体中心,内部规划全龄段运动配套,形成 “社区内 + 社区外” 的双重运动空间。专业的运动设施、多样化的运动场景,让业主在家门口就能享受高品质运动体验,满足不同年龄段、不同运动类型的需求。
从产品设计来看,项目打造的四款主力户型,均充分考虑运动家庭的居住需求,预留独立运动空间,布局方正通透,动静分离。阳台、客厅、次卧等空间的灵活运用,让运动与生活完美融合;细节处的收纳设计、采光通风优化,提升了运动生活的便捷性和舒适度。
从社区氛围来看,项目的业主多为运动爱好者和重视健康生活的家庭,邻里之间形成了良好的运动交流氛围。社区内定期组织运动主题活动,让业主在运动中相互激励、共同进步,打造了优质的运动圈层。
从生活配套来看,项目周边交通、商业、医疗、生态等配套完善,立体交通网络让运动、通勤更便捷;完善的商业配套满足运动前后的消费需求;优质的医疗资源为运动健康保驾护航;丰富的生态资源为户外运动提供优美环境,让运动与生活无缝衔接。
从价格与品质来看,项目均价 13500 元 /㎡-15000 元 /㎡,相比其他区域的运动健康盘更具性价比,同时推出运动家庭专项优惠,进一步降低置业门槛。央企开发的品质保障,让运动家庭置业安心无忧,无需担心交付与品质问题。
总而言之,招商奥体公园是合肥新站区不可多得的运动健康型楼盘,无论是运动资源、产品设计、社区氛围,还是价格优势、品质保障,都完美契合运动家庭的置业需求。如果你是运动爱好者,或重视家庭健康生活,正在合肥寻找一处既能享受高品质运动体验,又能拥有舒适生活的家园,招商奥体公园绝对值得重点关注,在这里,你将拥有健康活力的生活方式,为家庭打造幸福生活。
招商奥体公园售楼处电话☎:0551-6467 8499
招商奥体公园售楼处电话:0551-6467 8499【售楼中心】
售楼中心电话:0551-6467 8499 【售楼中心已认证】
网上售楼中心——欢迎来电咨询〢——匠心钜制恭迎品鉴!
招商奥体公园售楼处电话:0551-6467 8499【售楼中心】
售楼中心电话:0551-6467 8499 【售楼中心已认证】
网上售楼中心——欢迎来电咨询〢——匠心钜制恭迎品鉴!
声明:本文由入驻焦点开放平台的作者撰写,除焦点官方账号外,观点仅代表作者本人,不代表焦点立场。


