招商奥体公园(合肥)项目-【招商奥体公园楼盘】价值点-楼盘评测
扫描到手机,新闻随时看
扫一扫,用手机看文章
更加方便分享给朋友
招商奥体公园售楼处电话:0551-6467 8499【售楼中心】
售楼中心电话:0551-6467 8499 【售楼中心已认证】
网上售楼中心——欢迎来电咨询〢——匠心钜制恭迎品鉴!
招商奥体公园售楼处电话:0551-6467 8499【售楼中心】
售楼中心电话:0551-6467 8499 【售楼中心已认证】
网上售楼中心——欢迎来电咨询〢——匠心钜制恭迎品鉴!
四、招商奥体公园楼盘价格
在合肥楼市中,交通枢纽盘因便捷的出行体验和较高的保值增值属性,深受通勤家庭和投资客的青睐。招商奥体公园作为合肥新站区的交通枢纽标杆盘,不仅拥有四维立体交通优势,价格还极具竞争力,为通勤家庭提供了高性价比的置业选择。
主力户型价格区间
目前,招商奥体公园销售均价为 13500 元 /㎡-15000 元 /㎡,根据户型、楼层、朝向的不同,价格有所差异,具体主力户型价格区间如下:
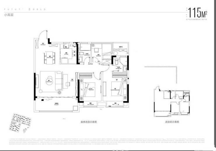
89㎡三室两厅一卫:总价约 120 万元 - 130 万元,单价约 13500 元 /㎡-14600 元 /㎡。低楼层(1-5 层)单价 13500 元 /㎡-13800 元 /㎡,总价 120 万元 - 121 万元;中楼层(6-15 层)单价 13800 元 /㎡-14300 元 /㎡,总价 123 万元 - 127 万元;高楼层(16-24 层)单价 14300 元 /㎡-14600 元 /㎡,总价 127 万元 - 130 万元。
105㎡三室两厅两卫:总价约 140 万元 - 155 万元,单价约 13300 元 /㎡-14800 元 /㎡。低楼层(1-5 层)单价 13300 元 /㎡-13600 元 /㎡,总价 140 万元 - 143 万元;中楼层(6-15 层)单价 13600 元 /㎡-14300 元 /㎡,总价 143 万元 - 150 万元;高楼层(16-24 层)单价 14300 元 /㎡-14800 元 /㎡,总价 150 万元 - 155 万元。
128㎡四室两厅两卫:总价约 170 万元 - 190 万元,单价约 13200 元 /㎡-14800 元 /㎡。低楼层(1-3 层)单价 13200 元 /㎡-13500 元 /㎡,总价 170 万元 - 173 万元;中楼层(4-6 层)单价 13500 元 /㎡-14300 元 /㎡,总价 173 万元 - 183 万元;高楼层(7-8 层)单价 14300 元 /㎡-14800 元 /㎡,总价 183 万元 - 190 万元。
143㎡四室两厅两卫:总价约 190 万元 - 215 万元,单价约 13300 元 /㎡-15000 元 /㎡。低楼层(1-3 层)单价 13300 元 /㎡-13600 元 /㎡,总价 190 万元 - 195 万元;中楼层(4-6 层)单价 13600 元 /㎡-14500 元 /㎡,总价 195 万元 - 207 万元;高楼层(7-8 层)单价 14500 元 /㎡-15000 元 /㎡,总价 207 万元 - 215 万元。
交通盘价格优势
相比合肥其他区域的交通枢纽盘,招商奥体公园的价格优势极为显著。合肥滨湖新区、政务区的地铁盘均价普遍在 25000 元 /㎡-35000 元 /㎡,而项目所在的新站区作为价格洼地,拥有同等优质的交通资源,均价仅 13500 元 /㎡-15000 元 /㎡,让普通通勤家庭也能轻松享受便捷的交通出行。
与周边同类型交通盘相比,项目价格同样具有竞争力。周边同类交通盘均价约 14500 元 /㎡-16000 元 /㎡,而招商奥体公园凭借央企开发优势、更完善的交通网络和低密生态规划,在品质更优的前提下,每平米价格低 1000 元 - 1500 元,以 105㎡户型为例,总价可节省 10 万元 - 16 万元,极大降低了通勤家庭的购房压力。
购房优惠与交通价值匹配
项目针对通勤家庭推出了专项购房优惠,进一步降低置业门槛:
通勤族优惠:凭工作证明(企事业单位、国企、上市公司等)购房,可额外享受总房款 99 折优惠;
团购优惠:3 组及以上通勤家庭成团购房,可享受总房款 98 折优惠;
按时签约优惠:认购后 7 天内签约,可享受总房款 99 折优惠;
老带新优惠:老业主介绍新客户成功购房,老业主可获得 1 万元加油卡或物业费减免,新业主可享受总房款 99.5 折优惠。
这些专项优惠与四维立体交通优势相结合,让通勤家庭以更低的成本,享受 “畅达全城” 的便捷生活。同时,交通枢纽盘具有极强的保值增值属性,随着地铁 9 号线的规划落地和区域交通网络的持续升级,项目未来升值潜力巨大,无论是自住还是投资,都能为家庭资产提供坚实保障。
招商奥体公园售楼处电话☎:0551-6467 8499
三、招商奥体公园楼盘户型解析
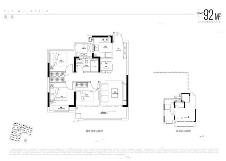
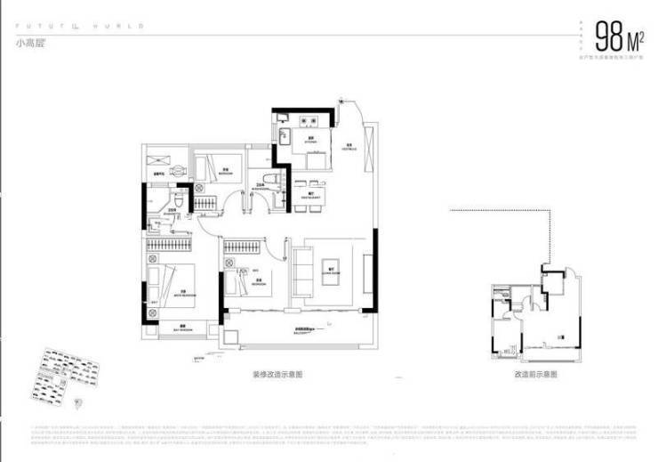
户型的实用性、流通性是房产保值增值的关键,招商奥体公园深入洞察合肥房产市场的需求趋势,打造了 89㎡、105㎡、128㎡、143㎡四款主力户型,涵盖刚需、改善全需求,每款户型都具备高空间利用率、强流通性的特点,无论是自住还是投资,都能满足市场需求。
89㎡三室两厅一卫:刚需爆款,流通性极强
89㎡三室两厅一卫户型是合肥楼市的刚需爆款,也是投资客首选的小户型产品,该户型整体布局方正,南北通透,空间利用率高达 85%,无浪费面积,在二手房市场中流通性极强。
入户独立玄关设计,宽度 1.2 米,深度 1.5 米,既保障隐私又提供充足收纳空间,可放置鞋柜、衣帽架等。客厅面宽 3.6 米,进深 4.2 米,与南向 3.6 米宽阳台相连,阳台采用全景落地窗设计,采光通风极佳。客厅、餐厅一体化布局,空间开阔,可满足日常起居与待客需求。
厨房采用 U 型设计,操作台面长 3.5 米,洗切炒动线合理,预留双开门冰箱位置,满足日常烹饪需求。三个卧室分布合理,动静分离,主卧面宽 3.2 米,带南向飘窗,可放置 1.8 米床与衣柜;两个次卧面宽 2.7 米,可作为儿童房或书房,满足刚需家庭居住需求。卫生间干湿分离设计,提升使用效率,避免潮湿问题。这款户型总价低、门槛低,且能满足刚需家庭的核心居住需求,在二手房市场中需求旺盛,升值潜力稳定。
105㎡三室两厅两卫:改善刚需,性价比突出
105㎡三室两厅两卫户型是改善型刚需的首选,该户型在 89㎡户型基础上升级,空间更宽敞,舒适度更高,同时保持了较高的性价比,在市场中竞争力极强。
入户玄关宽度 1.5 米,深度 1.8 米,可设置多功能收纳柜,收纳空间充足。客厅面宽 3.8 米,进深 4.5 米,与南向 3.8 米宽阳台相连,阳台进深 2.0 米,可打造休闲区与晾晒区,功能分区明确。餐厅面积约 7㎡,可容纳 6-8 人用餐,与客厅、厨房形成通透空间,互动性强。
主卧采用套房设计,配备独立卫生间与衣帽间,保障主人隐私与舒适度,主卧面宽 3.3 米,带南向飘窗,空间宽敞。两个次卧面宽均为 2.8 米,空间充足,可作为儿童房或老人房。公共卫生间干湿分离设计,位于两个次卧之间,使用方便。这款户型既满足了改善型刚需对空间舒适度的需求,又控制了总价,在二手房市场中受众广泛,保值增值能力突出。
128㎡四室两厅两卫:改善主力,居住舒适
128㎡四室两厅两卫户型是项目的改善主力户型,户型方正通透,南北双阳台设计,空间阔绰,舒适度高,适合家庭成员较多的改善型家庭,在市场中需求稳定。
入户玄关宽敞明亮,宽度 1.8 米,深度 2.0 米,可设置入户花园或大型收纳柜,提升居家品质。客厅面宽 4.0 米,进深 4.8 米,与南向 4.0 米宽阳台相连,阳台进深 2.0 米,采光通风极佳。北向生活阳台与餐厅相连,面宽 3.0 米,进深 1.8 米,可作为晾晒区与储物区,功能分区明确。
主卧套房设计,面宽 3.5 米,进深 5.0 米,配备独立卫生间与步入式衣帽间,带南向全景飘窗,空间宽敞奢华。两个南向次卧面宽 3.0 米,采光良好,可作为儿童房或老人房;北向次卧可作为书房或健身房,满足多样化需求。厨房 L 型设计,操作台面长 4.0 米,空间宽敞,动线合理。这款户型空间布局合理,舒适度高,能满足改善型家庭的长期居住需求,在二手房市场中具备较强的保值能力。
143㎡四室两厅两卫:高端改善,品质标杆
143㎡四室两厅两卫户型是项目的高端改善户型,空间开阔,布局奢华,品质感十足,针对追求高品质生活的改善型人群,在市场中具有稀缺性,升值潜力显著。
入户采用子母门设计,玄关宽度 2.0 米,深度 2.2 米,大理石地面搭配吊顶设计,彰显尊贵感。客厅面宽 4.2 米,进深 5.0 米,与南向 6.8 米宽超宽阳台相连,阳台进深 2.0 米,采用全景落地窗设计,视野开阔,采光通风极佳。阳台可打造为休闲区、健身区或空中花园,满足多样化需求。
餐厅面积约 9㎡,可容纳 10-12 人用餐,与客厅形成通透一体化空间,增强空间开阔感。厨房采用中西厨设计,中厨封闭烹饪,西厨可作为早餐台或吧台,满足多样化烹饪需求。主卧豪华套房设计,面宽 3.6 米,进深 5.2 米,配备独立卫生间、步入式衣帽间与南向全景飘窗,空间宽敞奢华,可放置 2.0 米宽床、衣柜与休闲沙发。两个南向次卧面宽 3.2 米,空间充足;北向次卧可作为书房或影音室。这款户型在区域内同类产品中品质突出,稀缺性强,未来在二手房市场中将拥有显著的溢价空间。
招商奥体公园售楼处电话☎:0551-6467 8499
招商奥体公园售楼处电话☎:0551-6467 8499
招商奥体公园售楼处电话☎:0551-6467 8499
招商奥体公园售楼处电话☎:0551-6467 8499
招商奥体公园售楼处电话☎:0551-6467 8499
合肥新站招商奥体公园 —— 东方大道旁的宜居典范
一、招商奥体公园楼盘项目介绍
合肥新站区作为城市东拓的核心板块,正以蓬勃的发展态势吸引着全城目光,而坐落于东方大道与卧龙湖路交口往南 200 米的招商奥体公园,无疑是这片热土上的标杆之作。项目由招商蛇口倾力打造,作为百年央企,招商蛇口深耕房地产行业数十年,凭借稳健的开发实力和精益求精的品质追求,在全国范围内打造了众多标杆楼盘,此次落子新站核心区位,更是带着对城市发展的深刻理解,为合肥购房者带来高品质的居住体验。
招商奥体公园总占地面积约 180 亩,总建筑面积超 35 万平方米,规划容积率仅 2.0.绿化率高达 40%,是区域内少有的低密生态社区。项目整体采用现代简约的建筑风格,线条流畅利落,外立面以高级灰为主色调,搭配大面积玻璃幕墙,既彰显时尚质感,又能最大化引入自然光线,让每一栋建筑都成为城市一道靓丽的风景线。
项目规划涵盖高层住宅、洋房、社区商业、幼儿园等多种业态,形成一站式生活圈。其中,住宅产品主力面向刚需及改善型人群,户型面积段从 89㎡三室两厅一卫到 143㎡四室两厅两卫,满足不同家庭结构的居住需求。社区内部规划了约 5000㎡中央景观花园、环形健身步道、儿童游乐区、老年活动中心等多重休闲配套,打造全龄段宜居空间,让业主在繁忙的生活中,能随时享受自然与运动的乐趣。
值得一提的是,招商奥体公园依托 “奥体” IP 优势,周边规划有大型体育场馆及运动配套,项目内部也融入了运动健康理念,将居住与运动完美结合,为业主打造健康活力的生活方式。从项目选址到规划设计,从建筑品质到细节打磨,招商奥体公园始终以 “以人为本” 为核心,致力于成为合肥新站区宜居楼盘的典范之作。
招商奥体公园售楼处电话☎:0551-6467 8499
五、招商奥体公园楼盘项目亮点
招商奥体公园作为合肥新站区的全龄教育标杆盘,凭借多项贴合教育家庭需求的核心亮点,成为教育家庭置业的首选,其核心亮点主要体现在以下几个方面。
全龄名校环绕,教育资源闭环
项目形成了从幼儿园到中学的全龄段教育体系,内部规划 12 班制公办幼儿园,周边 1 公里内分布着合肥市庆平希望学校、合肥新站寿春实验中学、合肥市第 168 中学东校区等多所优质学校。
幼儿园、小学、中学近距离分布,实现 “目送式” 上学,既保障了孩子的出行安全,又为家长节省了大量接送时间。优质的教育资源闭环,让孩子在成长的每个阶段都能接受高质量教育,为未来升学之路奠定坚实基础。
家庭友好型户型,兼顾学习与生活
项目打造的四款主力户型,均充分考虑教育家庭的居住需求,布局方正通透,动静分离,预留独立学习空间。无论是 89㎡户型的次卧书房,还是 143㎡户型的专属学习区,都能满足孩子的学习需求。
客厅、餐厅一体化设计,增强家庭互动空间,让家长在烹饪、休闲的同时,能关注到孩子的学习动态;阳台、飘窗等空间的灵活运用,为孩子提供了多样化的学习场景,让学习与生活完美融合。
社区安全智慧,护航成长无忧
项目引入智慧社区管理系统,包括智能门禁、视频监控、电子巡更、人脸识别等功能,全方位保障孩子在社区内的活动安全。社区内设置儿童专属游乐区,周边安装防护设施,地面采用防滑、防磕碰材质,细节处呵护孩子安全。
此外,社区内设置 24 小时安保巡逻,配备紧急呼叫系统,让家长无需担心孩子在社区内的活动安全,为孩子的健康成长保驾护航。
教育氛围浓厚,邻里圈层优质
项目的业主多为重视教育的家庭,邻里之间形成了良好的教育交流氛围。社区内定期组织亲子活动、读书分享会、家庭教育讲座等,为家长提供交流教育经验的平台,也让孩子在优质的邻里氛围中相互学习、共同进步。
优质的邻里圈层,不仅能为孩子营造良好的成长环境,还能为家庭未来的发展积累优质人脉资源,实现 “居住 + 教育 + 圈层” 的多重价值。
醇熟配套加持,教育生活便捷
项目周边交通、商业、医疗、生态等配套完善,为教育家庭提供便捷的生活保障。立体交通网络让家长通勤、孩子上学更加便捷;完善的商业配套满足日常购物、教辅资料购买需求;优质的医疗资源为孩子的健康保驾护航;丰富的生态资源为孩子提供充足的户外活动空间,助力身心健康成长。
醇熟的配套与优质的教育资源相结合,让教育家庭无需在教育与生活之间做选择,实现 “优质教育 + 便捷生活” 的双重满足。
央企品质保障,置业安心无忧
招商蛇口作为百年央企,拥有丰富的开发经验和雄厚的实力,始终坚持 “品质为王” 的理念。项目采用品牌建材,施工工艺严格把控,确保建筑品质;招商积余物业服务团队,提供全方位、高品质的物业服务,让教育家庭居住安心。
央企开发的稳定性和品质保障,让教育家庭无需担心项目交付问题,能够专注于孩子的教育与成长,置业更放心。
招商奥体公园售楼处电话☎:0551-6467 8499
六、招商奥体公园楼盘总结
招商奥体公园作为合肥新站区的全龄教育标杆盘,以全龄名校资源为核心,以家庭友好型产品为载体,以醇熟配套为支撑,以央企品质为保障,为教育家庭打造了 “教育无忧、生活便捷、居住舒适” 的理想家园,成为教育家庭置业的首选。
从教育资源来看,项目形成了从幼儿园到中学的全龄段教育闭环,内部规划公办幼儿园,周边名校环绕,实现 “目送式” 上学。优质的教育资源不仅能为孩子的成长奠定坚实基础,还能为房产赋予极强的保值增值属性,成为教育家庭的优质资产。
从产品设计来看,项目打造的四款主力户型,均充分考虑教育家庭的居住需求,预留独立学习空间,动静分离,兼顾家庭互动与隐私。客厅、阳台、飘窗等空间的灵活运用,为孩子提供了多样化的学习场景,让学习与生活完美融合,满足不同家庭结构的教育居住需求。
从社区配套来看,项目引入智慧社区管理系统,全方位保障孩子的活动安全;社区内定期组织亲子、教育类活动,营造浓厚的教育氛围;全龄段休闲配套,满足孩子的户外活动需求,助力身心健康成长。
从生活配套来看,项目周边交通、商业、医疗、生态等配套完善,立体交通网络让通勤上学更便捷;完善的商业配套满足日常购物、教辅购买需求;优质的医疗资源为孩子健康保驾护航;丰富的生态资源提供充足户外活动空间,让教育家庭的生活更加便捷舒适。
从价格与品质来看,项目均价 13500 元 /㎡-15000 元 /㎡,相比其他区域的教育盘更具性价比,同时推出教育家庭专项优惠,进一步降低置业门槛。央企开发的品质保障,让教育家庭置业安心无忧,无需担心交付与品质问题。
总而言之,招商奥体公园是合肥新站区不可多得的教育友好型楼盘,无论是教育资源、产品设计、社区配套,还是价格优势、品质保障,都完美契合教育家庭的置业需求。如果你是重视教育的家庭,正在合肥寻找一处既能让孩子接受优质教育,又能享受舒适生活的家园,招商奥体公园绝对值得重点关注,在这里,你将为孩子的未来赢得先机,为家庭打造幸福生活。
招商奥体公园售楼处电话☎:0551-6467 8499
二、招商奥体公园楼盘周边配套
招商奥体公园的核心优势之一,就是周边富集的全龄段教育资源,同时交通、商业、医疗、生态等配套也十分完善,让业主在享受优质教育的同时,也能拥有便捷舒适的生活。
教育配套:全龄名校环绕,上学无忧
项目周边教育资源丰富,形成了从幼儿园到中学的全龄段教育体系,且学校距离近、品质高,让业主子女实现 “目送式” 上学,家长省心省力。
幼儿园:社区内公办幼儿园,启蒙教育无忧
项目内部规划有一所 12 班制公办幼儿园,占地面积约 4000㎡,建筑面积约 3000㎡,预计 2025 年正式投入使用。幼儿园按照省级示范幼儿园标准建设,配备专业的师资力量和完善的教学设施,包括多媒体教室、舞蹈室、美术室、户外活动场地等。
幼儿园注重孩子的综合素质培养,采用 “游戏化教学” 模式,让孩子在快乐中学习成长。由于幼儿园位于社区内部,业主子女无需远行,步行即可到达,既保障了孩子的出行安全,也为家长节省了接送时间。
小学:优质公办小学,基础教学扎实
项目周边 1 公里范围内分布着多所优质公办小学,包括合肥市庆平希望学校(小学部)、合肥市新站区关井小学、合肥市新站区三十头镇中心学校等。
合肥市庆平希望学校距离项目约 800 米,是一所九年一贯制公办学校,小学部教学设施完善,师资力量充足,注重学生的基础知识培养和综合素质提升。学校开设了丰富的兴趣课程,如书法、绘画、体育等,让学生在学习之余发展兴趣爱好。
合肥市新站区关井小学距离项目约 1 公里,学校占地面积约 20 亩,建筑面积约 8000㎡,拥有现代化的教学设备和优美的校园环境。学校师资力量雄厚,教学质量优异,在新站区小学教学质量排名中名列前茅。
中学:名校加持,升学之路有保障
项目周边优质中学云集,包括合肥新站寿春实验中学、合肥市第 168 中学东校区等,为业主子女的初中、高中教育提供了坚实保障。
合肥新站寿春实验中学距离项目仅 500 米,是寿春教育集团旗下的优质民办中学,成立于 2015 年。学校占地面积约 80 亩,建筑面积约 5 万平方米,教学设施先进,师资力量雄厚。学校中考成绩连续多年位列新站区前列,2024 年中考普高达线率达 85%,其中多名学生考入合肥市第一中学、合肥市第六中学等省级示范高中,是众多家长认可的优质初中。
合肥市第 168 中学东校区距离项目约 1.5 公里,是安徽省示范高中,成立于 2002 年。学校占地面积约 150 亩,建筑面积约 8 万平方米,拥有现代化的教学设施和优美的校园环境。学校师资力量雄厚,高考成绩优异,2024 年高考本科达线率 98%,一本达线率 75%,每年都有大量学生考入清华大学、北京大学、复旦大学等全国重点高校,是合肥家长和学生向往的优质高中。
此外,项目周边还有合肥市新站区七十中学等多所中学,教育资源持续丰富,满足业主子女不同的升学需求。
交通配套:便捷出行,上学通勤无忧
项目紧邻东方大道与卧龙湖路两大城市主干道,交通网络发达,无论是孩子上学还是家长通勤,都十分便捷。
东方大道西接阜阳北路高架,东连包公大道高架,双向 6 车道,路况良好。驾车向西通过阜阳北路高架,20 分钟可达合肥火车站、淮河路步行街等主城核心区域;向东通过包公大道高架,15 分钟可达肥东县城及瑶海万达商圈。卧龙湖路是新站区纵向交通要道,北接北外环高速,南连新站区政务核心板块,驾车向南 10 分钟可达新站区管委会、京东方医院等重要场所。
公共交通方面,项目周边 500 米范围内设有 3 个公交站点,涵盖 301 路、302 路、686 路、803 路等多条公交线路。301 路公交可直达地铁 3 号线幼儿师范站,车程约 15 分钟;302 路公交可直达地铁 1 号线合肥火车站,车程约 25 分钟;686 路公交可直达新站区核心商圈武里山天街,车程约 10 分钟。未来,地铁 9 号线(规划中)将在项目周边设置站点,建成后将进一步提升出行效率,让孩子上学和家长通勤更加便捷。
商业配套:繁华商业在侧,生活学习便利
项目周边商业配套完善,满足业主日常购物、餐饮、休闲等需求,同时也为孩子的学习生活提供了便利。
项目自带约 2 万方社区商业,规划引入超市、便利店、生鲜卖场、品牌餐饮、文具店、书店等多元化业态,预计 2026 年正式开业运营。业主下楼即可购买日常用品、生鲜食材,孩子放学后可在社区书店购买教辅资料、文具,十分便捷。
项目距离新站区核心商圈武里山天街仅 3 公里,驾车车程约 10 分钟。武里山天街总建筑面积约 10 万方,涵盖大型购物中心、连锁超市、品牌餐饮、电影院、KTV、儿童乐园等丰富业态,入驻了永辉超市、大地影院、肯德基、麦当劳等众多知名品牌。周末闲暇时光,业主可带着孩子前往购物、观影、游玩,丰富课余生活。
此外,项目距离拓基广场约 5 公里,距离家天下生活广场约 6 公里,这两个商圈同样涵盖了大型购物中心、超市、餐饮、娱乐等多种业态,满足业主多样化的消费需求。
医疗配套:优质医疗护航,健康成长无忧
孩子的健康成长是家长的核心关切,项目周边医疗资源丰富,为孩子和家人的健康提供全方位保障。
项目距离安徽省第二人民医院(北区)约 4 公里,驾车车程约 15 分钟。该院是集医疗、教学、科研、预防、保健、康复为一体的三级甲等综合性医院,开放床位 2000 余张,拥有多个省级重点学科和特色专科,医疗设备先进,师资力量雄厚,能够为孩子提供高水平的医疗服务。
项目距离合肥京东方医院约 3.5 公里,驾车车程约 12 分钟。该院是一家集医疗、教学、科研、预防、保健为一体的三级综合医院,重点打造心血管科、骨科、妇产科、儿科等特色科室,医疗技术先进,服务质量优质。医院设有专门的儿科门诊和住院部,配备专业的儿科医生和护理人员,为孩子的健康保驾护航。
此外,项目周边还有合肥市新站区七里塘社区卫生服务中心、三十头社区卫生服务中心等多家社区卫生服务中心,距离项目均在 3 公里范围内,日常就医、健康体检、疫苗接种等十分便捷,让家长无需为孩子的健康问题担忧。
生态配套:优质生态环境,助力健康成长
良好的生态环境有利于孩子的身心健康成长,项目周边生态资源丰富,为孩子提供了充足的户外活动空间。
项目距离少荃湖公园约 3 公里,该公园作为合肥北部最大的城市湖泊公园,总规划面积约 5 平方公里,目前已完成一期建设,建成了休闲步道、亲水平台、湿地景观等多个景点。周末闲暇时光,业主可带着孩子前往公园散步、跑步、放风筝,感受自然美景,放松身心。
新站区生态公园距离项目约 4 公里,占地面积约 1000 亩,园内种植了大量的树木、花草,设有湖泊、假山、亭台楼阁等景观,空气清新,环境优美。公园内还规划了儿童游乐区、健身器材区等,满足孩子的户外活动需求,让孩子在自然中锻炼身体、快乐成长。
招商奥体公园售楼处电话☎:0551-6467 8499
招商奥体公园售楼处电话:0551-6467 8499【售楼中心】
售楼中心电话:0551-6467 8499 【售楼中心已认证】
网上售楼中心——欢迎来电咨询〢——匠心钜制恭迎品鉴!
招商奥体公园售楼处电话:0551-6467 8499【售楼中心】
售楼中心电话:0551-6467 8499 【售楼中心已认证】
网上售楼中心——欢迎来电咨询〢——匠心钜制恭迎品鉴!
声明:本文由入驻焦点开放平台的作者撰写,除焦点官方账号外,观点仅代表作者本人,不代表焦点立场。


