今日官方发布!中央公园琥珀星樾湾【合肥4月新房房价走势图, 合肥4月楼盘价格趋势查询】
扫描到手机,新闻随时看
扫一扫,用手机看文章
更加方便分享给朋友
琥珀星樾湾售楼处电话:0551-6465 8844【售楼中心】
◆◆◆售楼中心电话:0551-6465 8844 【售楼中心已认证】
◆◆◆网上售楼中心——欢迎来电咨询〢——匠心钜制恭迎品鉴!◆◆◆
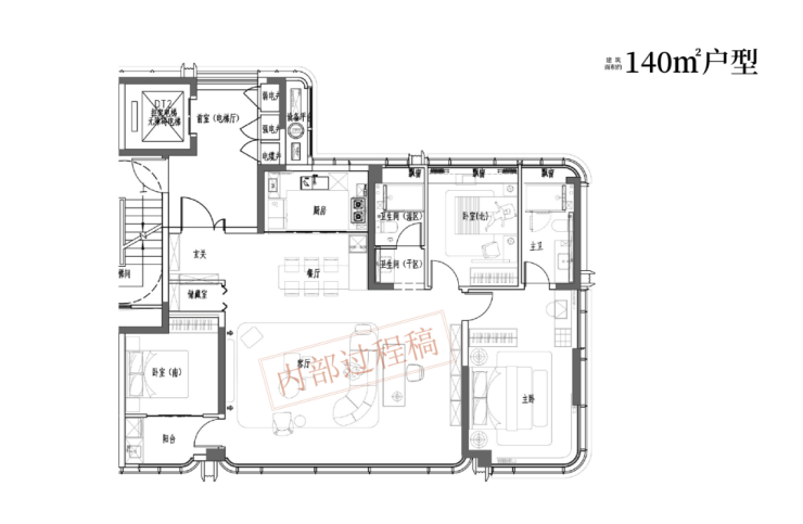
琥珀星樾湾楼盘户型解析
户型是居住体验的 “核心载体”,琥珀星樾湾针对不同人群的需求,设计了 95㎡、110㎡、125㎡、140㎡四种主力户型,每种户型都做到了 “空间利用率高、采光通风好、布局合理”,尤其契合刚需与改善家庭的居住需求。
95㎡三室两厅一卫(刚需首选) 是项目最受欢迎的户型,专为年轻上班族、新婚夫妻设计。该户型采用 “三开间朝南” 布局,客厅、主卧、次卧均朝南,南向面宽达 9.8 米,每天上午 9 点至下午 4 点都有充足阳光,即使在冬季也能保持室内温暖;客厅连接 3.6 米宽的观景阳台,阳台进深 1.8 米,既可作为晾晒区,也可摆放休闲桌椅,打造 “空中花园”;主卧面积约 12㎡,带 270° 飘窗,不仅增加了使用空间,还能俯瞰社区景观;厨房采用 U 型设计,操作台面长达 2.8 米,洗菜、切菜、炒菜动线合理,两人同时操作也不拥挤;卫生间做到 “干湿分离”,洗漱区与淋浴区分开,避免地面潮湿打滑,适合有老人或孩子的家庭。整体来看,95㎡户型没有浪费面积,每个空间都能充分利用,首付仅需 48-54 万,月供约 6000 元,完全在刚需人群的预算范围内,实现 “一步到位” 的三房梦想。
125㎡四室两厅两卫(改善主力) 则针对三口之家、二胎家庭设计,空间更宽敞,功能更齐全。该户型采用 “四开间朝南 + 南北通透” 布局,南向面宽达 12.2 米,客厅与餐厅形成 “竖厅” 设计,南北对流,夏季无需开空调也能保持凉爽;客厅连接 4.2 米宽的阳台,阳台与次卧打通,形成 “贯通式阳台”,长度约 7.8 米,可分为 “晾晒区” 与 “休闲区”,一边晾晒衣物,一边摆放跑步机或茶桌,互不干扰;主卧为 “套房设计”,面积约 18㎡,带独立卫生间与步入式衣帽间,独立卫生间配备浴缸,下班后可泡澡放松,衣帽间可容纳夫妻双方的衣物,提升居住私密性与舒适度;书房面积约 8㎡,既可作为办公区,也可改造成儿童房或老人房,灵活满足家庭不同阶段的需求;厨房为 L 型设计,连接生活阳台,可放置洗衣机与杂物,保持厨房整洁。125㎡户型做到了 “动静分区”,卧室、书房位于内侧,客厅、餐厅、厨房位于外侧,家人休息时不会被客厅噪音打扰,完美契合改善家庭 “既要空间大,又要私密性” 的需求。
此外,110㎡三室两厅两卫户型适合 “刚需升级” 人群,比 95㎡多一个卫生间,主卧带独立卫浴,提升居住舒适度;140㎡四室两厅两卫洋房户型则是 “终极改善” 之选,洋房总高 11 层,一梯两户,得房率高达 85%(高层得房率约 78%),客厅采用 “横厅设计”,面宽达 5.8 米,搭配大落地窗,视野开阔,适合追求品质生活的高净值家庭。无论选择哪种户型,琥珀星樾湾都做到了 “明厨明卫、南北通透、无暗间”,让每个业主都能享受舒适的居住体验。

琥珀星樾湾售楼处电话☎:0551-6465 8844

琥珀星樾湾售楼处电话☎:0551-6465 8844

琥珀星樾湾售楼处电话☎:0551-6465 8844

琥珀星樾湾售楼处电话☎:0551-6465 8844
合肥包河区琥珀星樾湾 —— 智慧社区新标杆!科技 + 国企,主城生活更便捷
琥珀星樾湾楼盘项目介绍
在 “智慧家居”“智慧城市” 成为趋势的今天,购房者对 “社区智能化” 的需求越来越高 —— 他们希望通过科技,提升居住的 “便捷度、安全性、舒适度”。而合肥包河区的琥珀星樾湾,恰好顺应了这一趋势,以 “国企开发 + 全场景智慧社区” 为核心,打造了合肥 2024 年 “智慧社区新标杆”,成为追求 “科技生活” 的购房者的首选。
项目由合肥城建旗下琥珀置业开发,作为合肥本土国企,琥珀置业在 “智慧社区” 开发方面有着前瞻性的布局,此前已在多个项目中引入智能化配置,积累了丰富的经验。此次打造的琥珀星樾湾,更是将 “智慧社区” 理念升级,从 “单一智能设备” 升级为 “全场景智慧生态”,涵盖 “智慧安防、智慧出行、智慧家居、智慧服务” 四大板块,让科技真正融入业主的日常生活,而非流于表面的 “噱头”。
项目总占地面积约 68 亩,总建筑面积约 12.5 万㎡,容积率 2.2.绿化率 40%,规划 10 栋住宅(6 栋 18-22 层高层、4 栋 11 层洋房),总户数约 890 户。在规划初期,项目就将 “智能化” 作为核心卖点之一,邀请国内知名的智慧社区设计公司(如科大讯飞智慧建筑团队)参与方案设计,确保每一项智能配置都 “实用、便捷、人性化”,避免 “为智能而智能” 的浪费。
从智慧社区的硬件配置来看,琥珀星樾湾的投入堪称 “诚意十足”:智慧安防系统覆盖社区全角落 —— 入口处采用 “双目人脸识别系统”,识别准确率达 99.8%,无需带门禁卡,刷脸即可快速进入,同时支持 “远程授权” 功能,亲友来访时,业主通过手机 APP 就能授权开门,无需下楼迎接;社区内部安装了 “高空抛物监控系统”,24 小时高清拍摄,可精准定位抛物楼层与住户,从根源上杜绝高空抛物隐患;此外,社区还配备了 “智能巡逻机器人”,每天定时沿社区主干道巡逻,实时监测异常情况(如陌生人徘徊、火情隐患),并同步将画面传输至物业中控室,配合 24 小时人工巡逻,形成 “科技 + 人力” 的双重安防保障。
智慧出行与生活配套同样便捷 —— 地下车库配备 “智能寻车 + 反向寻车系统”,业主停车后,系统会自动记录车位位置,返程时通过车库内的查询终端或手机 APP,就能获取 “从电梯口到车位” 的导航路线,彻底解决 “找车难” 问题;车库内 30% 的车位预留了 “充电桩接口”,支持快充与慢充,满足新能源车主的充电需求,且充电桩接入社区智慧系统,可通过 APP 预约充电、查询费用,操作便捷;社区公共区域还覆盖了 “全场景 WiFi”,无论是在儿童乐园陪娃,还是在健身步道跑步,都能免费连接高速 WiFi,刷视频、听音乐无压力。
智慧家居与服务则深入室内 —— 项目为所有户型预装了 “全屋智能控制系统”,业主可通过手机 APP 或语音助手(支持天猫精灵、小爱同学联动),控制家中的灯光、空调、窗帘、热水器等设备。比如,下班前 30 分钟,可远程开启空调与热水器,回家就能享受适宜的温度与热水;睡前无需起身,语音即可关闭全屋灯光与窗帘;出门时一键触发 “离家模式”,自动关闭所有家电、锁好门窗,省心又安全。此外,项目还开发了专属 “琥珀星樾湾社区 APP”,集成了 “物业报修、在线缴费、邻里社交、生活服务” 等功能 —— 家中水管漏水,在 APP 上提交报修申请,物业 15 分钟内响应;物业费、水电费可直接在线缴纳,无需跑腿;APP 内的 “邻里圈” 还能发布闲置物品转让、社区活动邀约等信息,拉近邻里距离。
更值得一提的是,作为国企开发项目,琥珀星樾湾的智慧系统有着 “长期保障”—— 不同于部分民营楼盘 “交房后就停用智能系统” 的情况,琥珀置业专门成立了 “智慧社区运维团队”,定期对社区的智能设备进行检修、升级,确保系统长期稳定运行;同时,运维团队会根据业主反馈,持续优化 APP 功能与智能场景,让智慧服务 “越用越贴心”。这种 “国企兜底” 的保障,正是琥珀星樾湾区别于其他智慧社区的核心优势。

琥珀星樾湾售楼处电话☎:0551-6465 8844
琥珀星樾湾楼盘总结
对于追求 “高品质生活” 的改善人群而言,琥珀星樾湾无疑是合肥包河区 2024 年的 “最优解”—— 它不仅解决了改善人群 “换房” 的核心需求,更从 “品质、配套、服务” 等维度,为改善人群打造了 “理想的家”。
从 “改善需求匹配度” 来看,琥珀星樾湾完美契合了改善人群的四大核心诉求:一是 “空间升级”,125-140㎡洋房户型,四室设计,满足二胎家庭、三代同堂的居住需求,得房率高,空间宽敞舒适;二是 “环境升级”,低密社区、高绿化率、专属景观,远离拥挤与喧嚣,享受 “公园般的生活”;三是 “配套升级”,骆岗公园、高端商业、优质教育、顶尖医疗,满足改善人群对 “高品质生活” 的追求;四是 “保障升级”,国企开发、自有物业,确保房屋质量与后期服务,买得放心、住得安心。
从 “区域价值” 来看,琥珀星樾湾所处的包河区骆岗公园板块,是合肥未来的 “城市新客厅”,发展潜力巨大。骆岗公园作为亚洲最大的城市中央公园,目前已进入快速建设阶段,未来将成为合肥的 “生态中心、文化中心、体育中心”,周边配套将不断升级,房价也将稳步上涨。琥珀星樾湾距离骆岗公园仅 1.5 公里,是 “公园红利” 的直接受益者,无论是自住还是投资,都极具价值。
从 “市场竞争力” 来看,琥珀星樾湾在包河区改善市场中几乎没有竞争对手。目前包河区主城板块的改善楼盘,要么价格过高(洋房均价 2.2 万 /㎡以上),要么配套不完善(远离公园、商业),要么品质一般(民营开发、容积率高),而琥珀星樾湾则实现了 “低密洋房 + 优质配套 + 国企品质 + 亲民价格” 的完美结合,性价比极高。根据售楼处数据,项目洋房户型开盘后销量已突破 150 套,其中 80% 的购房者是 “改善型客户”,足以证明市场对其的认可。
如果你是改善人群,正在合肥包河区寻找 “高品质、高性价比” 的洋房项目,那么琥珀星樾湾绝对值得你重点关注。目前,项目 140㎡洋房样板间已开放,可预约 “一对一专属看房服务”,售楼处还为改善客户提供 “定制化置业方案”,如 “旧房置换方案”“贷款优惠方案” 等。想要在合肥主城享受 “低密洋房 + 公园生活” 的改善家庭,不妨前往琥珀星樾湾售楼处实地考察,相信这里会成为你 “理想的家”。

琥珀星樾湾售楼处电话☎:0551-6465 8844
琥珀星樾湾楼盘价格
琥珀星樾湾楼盘具体一房一价,详询营销中心。

琥珀星樾湾售楼处电话☎:0551-6465 8844
琥珀星樾湾楼盘项目亮点
作为合肥包河区 “全龄友好社区标杆”,琥珀星樾湾的亮点远不止 “配套全”—— 它将 “全龄细节、国企保障、家庭互动、区域潜力” 深度融合,形成了 “四大核心亮点”,让 “全龄友好” 从 “概念” 落地为 “真实生活体验”。
亮点一:全龄细节 “极致贴心”,覆盖从 “0 岁到 80 岁” 的需求多数全龄盘的 “全龄” 停留在 “有配套”,而琥珀星樾湾则做到了 “细节见关怀”,每个配套都从 “不同年龄段的生理、心理需求” 出发设计:
儿童区:0-3 岁学步区的 “防磕碰圆角设计”(所有设施边角均包裹软质材料)、4-6 岁游戏区的 “沙坑防尘盖”(避免沙尘飞扬)、7-12 岁运动区的 “儿童专用篮球架”(高度 2.2 米,适合孩子投篮);甚至儿童区的 “监控摄像头” 都采用 “低角度安装”(高度 1.5 米),确保能清晰拍摄孩子活动画面,同时避免拍摄家长隐私。
老人区:无障碍坡道的 “防滑纹路”(雨天不打滑)、健身器材的 “扶手软包”(避免冬天冰冷)、休闲凉亭的 “太阳能取暖灯”(冬季提供温暖);社区菜园的 “自动灌溉系统”(老人无需弯腰浇水)、棋牌桌的 “可升降桌面”(可根据老人身高调节高度)。
全社区:道路两侧的 “夜光指引灯”(高度 0.5 米,避免强光刺眼,方便老人夜间行走)、单元门的 “人脸识别 + 密码 + 刷卡” 三重开门方式(老人记不住密码可刷卡,孩子身高不够可刷脸)、电梯的 “语音报层功能”(方便视力不佳的老人识别楼层);甚至社区的 “垃圾桶” 都按 “家庭分类” 设计(分为 “厨余垃圾、可回收物、有害垃圾、其他垃圾”,且高度 0.8 米,方便老人和孩子投放)。
这些 “极致细节”,让每个家庭成员都能感受到 “被重视”,真正实现 “全龄友好,而非全龄将就”。
亮点二:国企保障 “全龄生活”,避免 “配套后期缩水”当前市场上,部分民营全龄盘存在 “交房后配套缩水” 的问题 —— 儿童区设施损坏不维修、老人区器材停用、社区图书馆关闭,导致 “全龄友好” 沦为 “噱头”。而琥珀星樾湾由国企琥珀置业开发,从 “配套建设” 到 “后期维护” 都有 “国企兜底”:
建设阶段:全龄配套的 “资金专款专用”,确保儿童区、老人区、青年区的设施按规划建设,不削减成本;比如儿童区的 EPDM 塑胶地面,采用 “国标高弹性材料”,厚度达 5cm,远超民营盘的 3cm 标准,确保孩子玩耍安全。
交付后:开发商自有物业(琥珀物业)负责全龄配套的 “日常维护”,制定 “专项维护计划”—— 儿童区设施每周检查 1 次,每月清洁 1 次;老人区健身器材每季度保养 1 次;社区图书馆每月更新 100 册书籍;甚至社区菜园的 “自动灌溉系统” 都有专人定期检修,确保长期可用。
长期升级:物业每年收集业主反馈,根据家庭需求升级全龄配套 —— 比如 2025 年计划在儿童区增加 “国学启蒙角”,在老人区增加 “中医理疗服务点”,让全龄配套 “越用越完善”。
这种 “国企保障”,让家庭购房者无需担心 “全龄配套后期失效”,住得更安心。
亮点三:家庭互动 “场景化设计”,拉近全家距离全龄友好的核心不仅是 “各有空间”,更是 “全家互动”—— 琥珀星樾湾通过 “场景化设计”,打造了多个 “全家共享空间”,让家人之间的互动更自然:
中央草坪 “亲子活动日”:每月举办 1 次 “风筝节”“野餐日”“亲子运动会”,全家可一起放风筝、吃野餐、参加亲子游戏(如两人三足、袋鼠跳),增进亲子感情;
景观水景 “家庭亲水季”:夏季举办 “儿童水上乐园” 活动,在水景区域设置小型水上滑梯、水枪游戏,家长可陪孩子一起玩水,同时在周边遮阳棚休息聊天;
社区图书馆 “全家阅读夜”:每周五晚上开设 “亲子阅读会”,邀请专业老师带领孩子读绘本,家长可在一旁阅读自己的书籍,结束后全家分享阅读心得,培养 “阅读习惯”;
社区菜园 “家庭农耕日”:每周末开放社区菜园,全家可一起种植蔬菜、浇水、施肥,孩子能认识农作物,老人能锻炼身体,青年能放松心情,全家在劳动中享受欢乐。
这些 “互动场景”,让 “全龄社区” 变成 “家庭欢乐场”,避免了 “孩子在玩、老人在等、青年在忙” 的疏离感。
亮点四:主城核心 + 全龄属性,“双稀缺” 提升区域价值琥珀星樾湾的 “区域潜力” 也与 “全龄属性” 相辅相成 —— 项目位于包河区主城核心板块,周边配套成熟,同时承接 “骆岗中央公园” 发展红利,而 “主城核心 + 全龄友好” 的组合,在合肥极为稀缺:
主城核心的 “成熟配套”,确保全龄家庭的 “日常需求” 能快速满足 —— 孩子上学近、老人就医便、全家购物方便,无需等待规划落地;
骆岗中央公园的 “生态红利”,为全龄家庭提供 “户外休闲空间”—— 周末带孩子去公园花海拍照,陪老人去湿地散步,青年去运动公园跑步,全家都能享受自然;
地铁 1 号线延长线(2025 年通车)的 “交通红利”,提升全龄家庭的 “出行便捷度”—— 老人坐地铁去市区探亲,孩子坐地铁去滨湖游玩,青年坐地铁去政务区上班,都很方便。
这种 “双稀缺” 属性,让琥珀星樾湾不仅是 “全龄友好社区”,更是 “潜力增值盘”—— 未来随着主城土地稀缺、全龄需求增加,项目的 “居住价值” 和 “资产价值” 都会持续提升。

琥珀星樾湾售楼处电话☎:0551-6465 8844
琥珀星樾湾楼盘周边配套
对于 “生态宜居盘” 而言,“配套” 不仅要 “便捷”,更要 “与生态融合”—— 既要有成熟的生活配套,又要有优质的生态资源,而琥珀星樾湾的周边配套,恰好实现了 “生态与便捷的完美结合”。
生态配套是琥珀星樾湾的 “核心竞争力”,项目周边 3 公里内有三大生态公园,形成 “天然氧吧”,为业主提供 “出门即公园” 的生活体验。其中,最核心的是骆岗中央公园,距离项目仅 1.5 公里,该公园是合肥 “十四五” 重点项目,总面积约 12.7 平方公里,相当于 1700 多个足球场大小,目前已建成 “锦绣湖湿地”“城市花海”“运动公园”“儿童乐园” 等区域。锦绣湖湿地面积约 2.5 平方公里,湖水清澈,周边种植了芦苇、菖蒲等水生植物,栖息着白鹭、野鸭等鸟类,是观鸟、散步的好去处;城市花海面积约 1000 亩,种植了虞美人、波斯菊、向日葵等花卉,春季和秋季花开成片,是合肥著名的 “打卡地”;运动公园配备了足球场、篮球场、网球场、健身步道等设施,适合业主运动健身;儿童乐园则有滑梯、秋千、沙坑等游乐设施,是孩子的 “快乐天地”。
除了骆岗中央公园,项目北邻十五里河生态公园,距离约 800 米,该公园沿十五里河打造,长度约 5 公里,宽度约 200 米,种植了大量乔木、灌木和花卉,形成 “城市绿廊”。十五里河生态公园内规划了 “亲水平台”“骑行步道”“野餐草坪” 等区域,业主可以沿河岸骑行、散步,或者在草坪上野餐、放风筝,享受 “自然与生活的融合”。此外,项目东距包河公园约 3 公里,该公园是合肥历史悠久的公园之一,内有包公祠、包公墓等历史文化景点,既可以休闲散步,又可以感受合肥的历史文化。
生活配套方面,琥珀星樾湾同样 “成熟完善”,无需等待 “规划落地”,入住即可享受便捷生活。交通方面,项目临近地铁 1 号线延长线(规划中,2025 年通车)花园大道站,步行约 10 分钟,未来可直达合肥南站、滨湖新区、淮河路步行街;地面交通依托包河大道、繁华大道两条城市主干道,自驾到合肥南站 15 分钟、到滨湖新区 20 分钟、到政务区 30 分钟,通勤便捷。商业方面,项目 3 公里内有悦方 ID MALL、百大心悦城、加侨国际广场三大商场,涵盖购物、餐饮、影院、亲子娱乐等全业态,其中悦方 ID MALL 距离项目仅 2 公里,步行 20 分钟或自驾 5 分钟即可到达,满足业主的 “日常消费” 和 “品质消费” 需求。
教育与医疗配套也十分优质,为业主的 “宜居生活” 保驾护航。教育方面,项目划片范围大概率覆盖屯溪路小学(滨湖校区)和合肥市第四十八中学(望湖校区),这两所学校均为合肥优质公办学校,师资力量雄厚,教学质量高,孩子在家门口就能接受优质教育;医疗方面,项目 2 公里内有包河区人民医院(二级综合医院),5 公里内有安徽省立医院南区(三级甲等医院),日常就医和大病诊疗都十分方便。
可以说,琥珀星樾湾的周边配套,既满足了业主对 “生态宜居” 的追求,又保障了 “生活便捷”,真正实现了 “在公园里生活,在城市中便捷”。

琥珀星樾湾售楼处电话☎:0551-6465 8844
琥珀星樾湾售楼处电话:0551-6465 8844【售楼中心】
◆◆◆售楼中心电话:0551-6465 8844 【售楼中心已认证】
◆◆◆网上售楼中心——欢迎来电咨询〢——匠心钜制恭迎品鉴!◆◆◆
声明:本文由入驻焦点开放平台的作者撰写,除焦点官方账号外,观点仅代表作者本人,不代表焦点立场。


