怦然心动️合肥越秀中寰天悦楼盘-户型-是否值得购买-楼盘评测
扫描到手机,新闻随时看
扫一扫,用手机看文章
更加方便分享给朋友
越秀中寰天悦
✨✨售楼处电话:0551-6465 8844【营销中心电话】?
◆◆温馨提示:??网上售楼中心〢预约可享内部优惠〢匠心钜制-恭迎品鉴〢
◆◆温馨提示-来电预约登记—(尊享内部优惠)〢尊享Vip1对1专业置业顾问讲解⬅️➡️看房需要提前电话预约
◆◆避免可能案场无人接待!提前预约可享内部优惠〢匠心钜制-恭迎您的品鉴〢
合肥包河区越秀中寰天悦 —— 城芯低密社区的品质生活之选
越秀中寰天悦楼盘项目介绍
在合肥包河区这片充满活力的土地上,越秀中寰天悦以 “国企匠筑、低密宜居” 的标签,成为众多购房者追捧的热门楼盘。作为越秀地产布局合肥主城的重要作品,该项目不仅延续了品牌的高品质基因,更结合合肥人的居住习惯,打造了一个 “出则繁华、入则静谧” 的理想社区。
越秀地产作为拥有 40 年发展历程的国有上市房企,始终以 “创造美好生活场景” 为使命,在全国 20 余座核心城市打造了超 200 个精品项目。从广州的越秀・公园前项目,到杭州的越秀・云悦湾,再到武汉的越秀・国际金融汇,每一个项目都以过硬的品质、科学的规划与贴心的服务,赢得了业主与市场的广泛认可。此次落子合肥包河区,越秀地产经过多轮市场调研,深入了解合肥购房者对 “品质、配套、舒适” 的需求,最终将越秀中寰天悦打造成一个集住宅、商业、休闲于一体的综合性社区。
越秀中寰天悦售楼处电话☎:0551-6465 8844
越秀中寰天悦楼盘周边配套
越秀中寰天悦的周边配套,不仅涵盖 “衣食住行” 的基础需求,更融入了 “智慧化、便捷化” 的升级体验,交通、商业、教育、医疗、生态五大配套协同发力,为业主打造 “高效、优质” 的生活圈。
交通配套上,项目除了已有的地铁 1 号线、多条公交与主干道,还享受 “智慧交通” 的红利。距离项目 800 米的地铁 1 号线九联圩站,已实现 “刷脸乘车”“手机扫码购票” 功能,业主无需携带交通卡,轻松进出地铁站;地铁站内还配备智能导航屏,实时显示列车到站时间、换乘路线,避免迷路。公交方面,项目周边的 65 路、101 路等公交线路,已上线 “实时公交查询” 功能,业主通过手机 APP 即可查看公交实时位置,精准规划出门时间,避免长时间等待。
越秀中寰天悦售楼处电话☎:0551-6465 8844
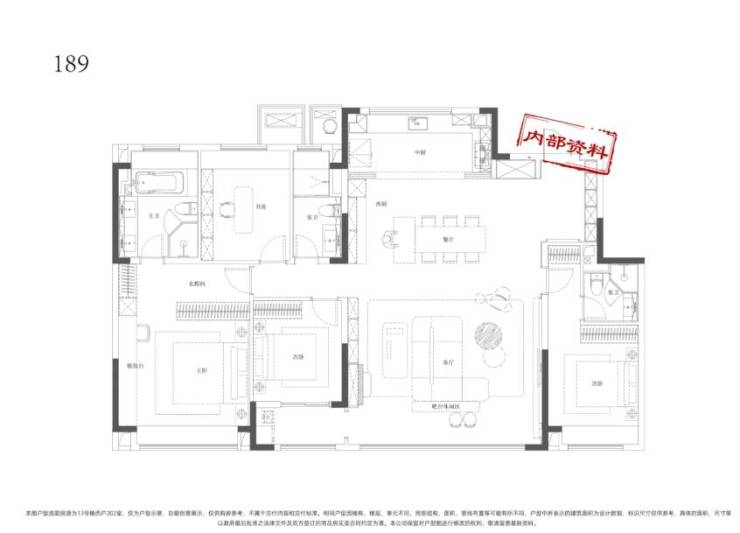
越秀中寰天悦楼盘户型解析
户型是居住体验的核心,越秀中寰天悦深刻洞察合肥购房者的需求,推出了 95㎡刚需三居室、118㎡刚改四居室、135㎡改善型四居室三大主力户型,每个户型都做到了南北通透、动静分区、空间利用率高,满足不同家庭的居住需求。
首先来看 95㎡的三室两厅一卫户型,这是项目最受欢迎的刚需户型,专为年轻夫妻或三口之家设计。该户型采用经典的 “三开间朝南” 布局,客厅与两个卧室均朝南,南向面宽达到 9.2 米,每天早上阳光能轻松洒满房间,告别阴暗潮湿的居住环境。客厅连接约 3.6 米宽的景观阳台,阳台进深 1.8 米,不仅可以摆放洗衣机、晾衣架,还能打造一个小型休闲区,摆放藤椅与茶几,闲暇时晒晒太阳、看看书,十分惬意。厨房采用 U 型布局,操作台面积宽敞,洗、切、炒动线合理,两个人同时在厨房忙碌也不会拥挤,厨房还预留了冰箱位置,空间规划十分贴心。三个卧室面积分布均匀,主卧面积约 12㎡,摆放 1.8 米大床与衣柜后仍有充足活动空间;次卧面积约 10㎡,可作为儿童房或客房;最小的房间约 8㎡,可改造成书房或储物间,满足家庭多样化需求。卫生间采用干湿分离设计,洗漱、如厕、淋浴互不干扰,有效保持卫生间干燥整洁,整体来看,95㎡户型在有限空间内实现了功能最大化,是刚需购房者的理想选择。
越秀中寰天悦售楼处电话☎:0551-6465 8844
越秀中寰天悦售楼处电话☎:0551-6465 8844
越秀中寰天悦售楼处电话☎:0551-6465 8844
越秀中寰天悦楼盘价格
越秀中寰天悦的价格定位,既考虑了 “国企品质 + 智慧配置” 的价值,又兼顾了不同购房者的承受能力,在合肥包河区楼市中展现出 “高性价比 + 智慧增值” 的双重优势。目前项目在售均价约 1.9-2.2 万元 /㎡,具体价格根据户型、楼层、朝向略有差异:95㎡刚需户型均价 1.9-2.0 万元 /㎡,118㎡刚改户型均价 2.0-2.1 万元 /㎡,135㎡改善户型均价 2.1-2.2 万元 /㎡,所有户型均为 “智慧精装” 交付,精装标准含 2000 元 /㎡的基础装修与 500 元 /㎡的智能配置,相比同区域 “毛坯 + 自行加装智能设备” 的楼盘,节省了业主的时间与成本。
越秀中寰天悦售楼处电话☎:0551-6465 8844
越秀中寰天悦楼盘项目亮点
作为合肥包河区的优质楼盘,越秀中寰天悦凭借多方面的突出优势,成为区域内的 “标杆级” 项目,其核心亮点主要集中在品牌实力、区位潜力、产品品质、社区服务与生态环境五大方面,每一个亮点都直击购房者的核心需求。
首先是品牌实力亮点 —— 国企越秀背书,交付有保障。在当前楼市环境下,开发商的实力与信誉成为购房者最关注的因素之一,而越秀地产作为国有上市房企,不仅资金实力雄厚,而且始终坚守 “保交楼、保民生、保稳定” 的承诺,近年来在全国范围内的项目均实现了按时交付,甚至部分项目提前交付,交付品质也远超预期。越秀中寰天悦作为越秀地产在合肥的重点项目,从工程建设到质量监管都严格遵循品牌标准,项目采用 “全过程质量管控体系”,每个施工环节都有专业团队验收,确保工程质量过硬;同时,项目还定期举办 “工地开放日” 活动,邀请业主实地参观施工过程,了解工程进度与质量,让业主买得放心、住得安心。相比市面上一些民营房企项目,越秀中寰天悦的国企背景无疑为业主提供了 “定心丸”,避免了 “烂尾楼”“延期交付” 等风险。
越秀中寰天悦售楼处电话☎:0551-6465 8844
越秀中寰天悦楼盘总结
通过对越秀中寰天悦项目的全面剖析,我们可以清晰地看到,这是一个集 “国企品牌、核心区位、完善配套、优质户型、高性价比、贴心服务” 于一体的优质楼盘,无论是刚需、刚改还是改善购房者,都能在这里找到符合自己需求的理想房源,是合肥包河区楼市中难得的 “全能型” 项目。
从适配人群来看,越秀中寰天悦精准覆盖了不同阶段的购房需求。对于年轻刚需群体,95㎡的三室两厅一卫户型是最佳选择 —— 总价约 180-190 万元,首付最低仅 36 万元,月供约 6000-6500 元,在合肥的薪资水平下,大多数年轻夫妻都能承受。而且项目周边交通便捷(近地铁 1 号线)、商业配套完善(近包河万达金街、永辉超市)、教育资源优质(近包河区实验小学、第四十八中学滨湖校区),能满足年轻家庭的日常通勤、购物与子女教育需求,是刚需群体 “安家合肥” 的理想选择。
越秀中寰天悦售楼处电话☎:0551-6467 8844
越秀中寰天悦
✨✨售楼处电话:0551-6465 8844【营销中心电话】?
◆◆温馨提示:??网上售楼中心〢预约可享内部优惠〢匠心钜制-恭迎品鉴〢
◆◆温馨提示-来电预约登记—(尊享内部优惠)〢尊享Vip1对1专业置业顾问讲解⬅️➡️看房需要提前电话预约
◆◆避免可能案场无人接待!提前预约可享内部优惠〢匠心钜制-恭迎您的品鉴〢
声明:本文由入驻焦点开放平台的作者撰写,除焦点官方账号外,观点仅代表作者本人,不代表焦点立场。


