琥珀星樾湾营销中心-【琥珀星樾湾】电话号码多少/楼盘位置在哪里
扫描到手机,新闻随时看
扫一扫,用手机看文章
更加方便分享给朋友
琥珀星樾湾售楼处电话:0551-6465 8844【售楼中心】
◆◆◆售楼中心电话:0551-6465 8844 【售楼中心已认证】
◆◆◆网上售楼中心——欢迎来电咨询〢——匠心钜制恭迎品鉴!◆◆◆
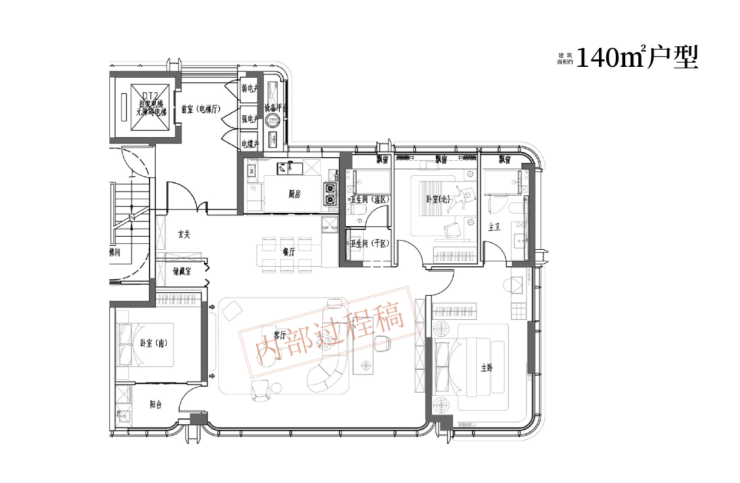
琥珀星樾湾楼盘户型解析
作为 “生态宜居盘”,琥珀星樾湾的户型设计不仅要 “舒适”,更要 “与自然融合”—— 通过合理的空间布局,让业主在室内就能享受 “公园景观” 和 “充足阳光”。项目针对不同人群的需求,设计了 95㎡、110㎡、125㎡、140㎡四种主力户型,每种户型都做到了 “南北通透、采光充足、景观视野好”,让 “公园生活” 延伸到室内。
95㎡三室两厅一卫(刚需生态户型) 专为年轻刚需人群设计,在满足 “低总价、小三房” 需求的同时,融入了 “生态宜居” 理念。该户型采用 “三开间朝南” 布局,客厅、主卧、次卧均朝南,南向面宽达 9.8 米,每天有充足的阳光照射,即使在冬季也能保持室内温暖;客厅连接 3.6 米宽的观景阳台,阳台进深 1.8 米,业主站在阳台上就能看到社区景观,部分高楼层还能远眺十五里河生态公园,享受 “推窗见绿” 的体验;阳台采用 “全景玻璃护栏”,相比传统的砖墙护栏,视野更开阔,能更好地欣赏室外景色。
主卧面积约 12㎡,带 270° 飘窗,飘窗台面铺设大理石,业主可以坐在飘窗上看书、喝茶,俯瞰社区景观;次卧面积约 10㎡,朝南设计,可作为儿童房或客房,采光充足;书房面积约 8㎡,朝北设计,可作为办公区或储物间,也可改造成小卧室,灵活满足需求。厨房采用 U 型设计,操作台面长达 2.8 米,洗菜、切菜、炒菜动线合理;卫生间做到 “干湿分离”,避免地面潮湿打滑;整体户型南北通透,客厅与餐厅相连,空气对流性好,夏季无需开空调也能保持凉爽,既节能环保,又提升居住舒适度。
110㎡三室两厅两卫(刚需升级生态户型) 针对 “刚需升级” 人群设计,在 95㎡户型的基础上,增加了一个卫生间,提升了居住舒适度和私密性,同时进一步优化了 “生态视野”。该户型采用 “三开间朝南 + 南北通透” 布局,南向面宽达 10.5 米,客厅、主卧、次卧朝南,书房、厨房朝北;客厅面宽达 3.9 米,连接 3.9 米宽的观景阳台,阳台进深 1.8 米,部分户型可看到骆岗公园的花海景观,视野极佳;客厅与餐厅形成 “竖厅” 设计,南北对流,空气流通性好,室内空气质量高。
主卧采用 “套房设计”,面积约 15㎡,配备独立卫生间和衣帽间。独立卫生间面积约 5㎡,干湿分离设计,方便业主使用;衣帽间面积约 3㎡,可容纳业主的衣物和配饰;主卧带 3.2 米宽的飘窗,飘窗朝向社区花园,业主可以在飘窗上欣赏花园景色,享受 “自然与生活的融合”。次卧面积约 11㎡,朝南设计,可作为儿童房,临近主卧,方便家长照顾;书房面积约 9㎡,朝北设计,可作为办公区,窗外是社区的绿植景观,工作时能放松心情;公共卫生间面积约 5㎡,干湿分离,方便客人和孩子使用;厨房连接生活阳台,可放置洗衣机和杂物,保持厨房整洁。
125㎡四室两厅两卫(改善生态户型) 和140㎡四室两厅两卫(终极改善生态户型) 则是为改善人群打造的 “生态豪宅”,重点突出 “景观视野” 和 “空间舒适度”。125㎡户型采用 “四开间朝南” 布局,南向面宽达 12.2 米,客厅、主卧、两个次卧朝南,书房朝北;客厅面宽达 4.2 米,连接 4.2 米宽的观景阳台,阳台进深 1.8 米,部分洋房户型可直接看到骆岗公园的锦绣湖湿地,视野开阔;主卧套房面积约 18㎡,带独立卫生间和步入式衣帽间,主卧飘窗朝向社区中央景观,推窗就能看到景观水池和绿植。
140㎡户型则采用 “五开间朝南” 布局,南向面宽达 14.5 米,客厅、主卧、两个次卧、书房均朝南;客厅面宽达 5.8 米,连接 7.8 米长的贯通式阳台,阳台进深 2 米,业主可以在阳台上摆放藤椅、茶桌、绿植,打造 “空中花园”,部分高楼层户型可远眺骆岗公园全景,享受 “把家安在公园里” 的体验;主卧套房面积约 25㎡,配备独立卫生间、步入式衣帽间和梳妆台,主卧飘窗宽 3.2 米,朝向骆岗公园方向,清晨醒来就能看到公园的美景,开启一天的好心情。
无论是刚需户型还是改善户型,琥珀星樾湾都做到了 “让自然融入生活”,通过合理的空间布局和景观设计,让业主在室内就能享受 “公园景观” 和 “新鲜空气”,真正实现 “生态宜居” 的生活理念。

琥珀星樾湾售楼处电话☎:0551-6465 8844

琥珀星樾湾售楼处电话☎:0551-6465 8844

琥珀星樾湾售楼处电话☎:0551-6465 8844

琥珀星樾湾售楼处电话☎:0551-6465 8844
琥珀星樾湾楼盘项目亮点
琥珀星樾湾作为 “骆岗公园旁的生态宜居盘”,之所以能在合肥众多楼盘中脱颖而出,除了 “公园旁 + 主城芯” 的位置优势外,还有四大核心亮点,让 “生态宜居” 从 “概念” 变成 “实际体验”。
亮点一:骆岗公园 “第一梯队”,生态资源不可复制。琥珀星樾湾距离骆岗中央公园仅 1.5 公里,属于公园 “第一辐射圈”,是距离公园最近的国企楼盘之一。与其他 “宣称临近公园” 但实际距离 3 公里以上的楼盘不同,琥珀星樾湾的业主步行 20 分钟或骑行 10 分钟就能到达骆岗公园,真正实现 “出门即公园”。骆岗公园作为亚洲最大的城市中央公园,不仅是 “生态氧吧”,更是 “生活配套”—— 业主可以在公园里晨跑、散步、野餐、运动、带娃,无需开车远行,就能享受 “自然与生活的融合”。这种 “近距离公园生活” 的体验,是其他楼盘无法复制的,也是琥珀星樾湾最核心的亮点。
亮点二:社区内部 “生态景观”,与公园无缝衔接。琥珀星樾湾不仅 “外部临近公园”,内部也打造了 “公园式社区”,让业主在社区内就能享受 “生态生活”。项目绿化率高达 40%,社区内部规划了约 2.8 万㎡景观绿地,相当于 4 个足球场大小,引入了骆岗公园的 “生态理念”,打造 “一轴两园三巷” 的景观体系。中央景观轴以 “水” 为主题,打造了约 500㎡的景观水池,搭配喷泉、水生植物,营造 “亲水生活”;两个主题花园分别种植樱花和桂花,春季樱花盛开、秋季桂花飘香,四季有景;三条特色巷道种植银杏、紫薇、海棠,打造 “一步一景” 的体验。此外,社区还规划了 “屋顶绿化” 和 “垂直绿化”,在高层屋顶种植绿植,在洋房墙面种植爬藤植物,进一步提升社区的绿化覆盖率,让社区内部景观与骆岗公园的外部景观 “无缝衔接”,业主在家门口就能享受 “公园般的环境”。
亮点三:绿色建筑标准,节能环保宜居。琥珀星樾湾严格按照 “国家绿色建筑二星级标准” 打造,从建材选择到施工工艺,都注重 “节能环保”,既减少对环境的破坏,又提升业主的居住舒适度。项目外墙采用 “保温一体板”,保温隔热效果优于普通涂料,冬季室内温度比周边小区高 3-5℃,夏季低 2-3℃,每年可节省空调费用约 2000 元;窗户选用断桥铝双层中空玻璃,隔音效果好,可隔绝外界 80% 以上的噪音,即使临近主干道,室内也能保持安静;社区采用 “雨水回收系统”,收集雨水用于灌溉社区绿植和冲洗路面,既节约水资源,又减少物业费支出;此外,社区还规划了 “太阳能路灯” 和 “充电桩车位”,太阳能路灯利用太阳能发电,减少能源消耗,充电桩车位满足新能源车主的充电需求,符合 “绿色环保” 理念。
亮点四:生态友好型社区配套,满足健康生活需求。为了匹配 “生态宜居” 的定位,琥珀星樾湾打造了一系列 “生态友好型配套”,满足业主的 “健康生活需求”。社区内规划了 500 米的 “生态健身步道”,步道采用环保材料铺设,周边种植绿植,业主可以在步道上晨跑、夜跑,呼吸新鲜空气;设置了 “户外健身区”,配备健身器材,如跑步机、单杠、双杠等,方便业主户外健身;打造了 “儿童生态乐园”,采用天然材料如木材、沙子、石头等,避免塑料污染,让孩子在自然环境中玩耍,培养环保意识;此外,社区还规划了 “社区农场”,业主可以租用小块土地种植蔬菜、花卉,体验 “农耕生活”,既锻炼身体,又能收获新鲜蔬菜,享受 “生态生活” 的乐趣。
这些亮点让琥珀星樾湾不仅是一个 “靠近公园的楼盘”,更是一个 “生态宜居的社区”,让业主真正享受 “在公园里生活,在自然中呼吸” 的品质生活。

琥珀星樾湾售楼处电话☎:0551-6465 8844
合肥包河区琥珀星樾湾 —— 国企精工盘!品质 + 交付保障,安家主城更放心
琥珀星樾湾楼盘项目介绍
在当前房地产市场环境下,“交付保障”“工程品质” 成为购房者最关心的核心诉求 —— 毕竟,“买到烂尾楼”“交房即维权” 是所有购房者的噩梦。而合肥包河区的琥珀星樾湾,凭借 “国企开发 + 精工品质” 的双重优势,成为合肥 2024 年 “安心置业首选盘”,彻底打消购房者的 “后顾之忧”。
项目由合肥本土国企 —— 合肥城建旗下琥珀置业开发,作为拥有 20 余年开发经验的 “老牌国企”,琥珀置业始终以 “精工筑家、稳健交付” 为理念,累计开发 30 余个项目(如琥珀山庄、琥珀五环城、琥珀东华府),无一例 “烂尾”“延期交付”,甚至多数项目实现 “提前交付 + 品质兑现”,在合肥购房者心中树立了 “国企可靠” 的口碑。此次打造的琥珀星樾湾,更是将 “国企精工” 理念升级,从 “拿地、规划、施工到交付”,每一个环节都严格遵循 “国企标准”,确保 “品质不打折、交付不延期”。
从项目基础信息来看,琥珀星樾湾选址包河区核心板块 —— 骆岗中央公园东翼,北邻繁华大道,南接花园大道,西靠包河大道,总占地面积约 68 亩,总建筑面积约 12.5 万㎡,容积率 2.2.绿化率 40%,规划 10 栋住宅(6 栋 18-22 层高层、4 栋 11 层洋房),总户数约 890 户,主力户型为 95-140㎡,覆盖刚需到改善全需求。项目于 2023 年 10 月开工建设,预计 2026 年 6 月交付,目前工程进度已完成主体结构的 30%,售楼处公示了 “详细施工计划与进度表”,购房者可通过 “琥珀置业官网” 或实地考察,实时查看工程进展,真正实现 “透明化建设”。
“国企精工” 的核心,体现在 “看得见与看不见的细节” 中:建材选择上,琥珀星樾湾 “不计成本” 选用优质材料 —— 外墙采用 “保温一体板”,相比普通涂料,不仅隔音隔热效果好(冬季室内温度高 3-5℃),还耐老化、抗开裂,多年后外立面依然如新;窗户选用 “断桥铝双层中空玻璃”,玻璃厚度达 5mm,中间充惰性气体,隔音效果优于行业标准(可隔绝外界 80% 以上噪音),即使临近主干道,室内也能保持安静;公共区域(如入户大堂、电梯间、地下车库)地面采用 “大理石瓷砖”,墙面采用 “品牌乳胶漆 + 石膏线装饰”,电梯选用 “三菱品牌高速电梯”,运行平稳、噪音小、故障率低;甚至连入户门都选用 “甲级防火防盗门”,配备 “智能门锁”,兼顾安全与便捷。
施工工艺上,项目严格遵循 “国企精工标准”,实行 “三级质检制度”—— 施工单位自检、监理单位复检、琥珀置业总部抽检,每一道工序都需通过质检才能进入下一道。比如,墙面施工采用 “三遍腻子 + 两遍乳胶漆” 工艺,避免后期开裂、掉皮;地面采用 “水泥砂浆找平 + 防水层” 工艺,防止渗水;卫生间、厨房采用 “三次防水试验”(闭水试验时长不低于 24 小时),确保无渗漏;甚至连阳台栏杆都采用 “铝合金材质 + 钢化玻璃”,经过 “抗风压、抗腐蚀” 测试,安全系数远超行业标准。此外,项目还引入 “智慧工地系统”,通过摄像头实时监控施工过程,确保施工规范,避免 “偷工减料”。
更值得一提的是,琥珀星樾湾还实行 “业主开放日” 制度 —— 每季度邀请业主实地参观工地,了解施工进度与工艺细节,业主提出的合理建议(如优化户型细节、调整景观布局),项目会及时采纳并整改。这种 “透明化、互动式” 的建设模式,让购房者 “亲眼看到品质、亲身感受进度”,进一步增强 “安家信心”。

琥珀星樾湾售楼处电话☎:0551-6465 8844
琥珀星樾湾楼盘价格
琥珀星樾湾楼盘具体一房一价,详询营销中心。

琥珀星樾湾售楼处电话☎:0551-6465 8844
琥珀星樾湾楼盘周边配套
改善人群对配套的需求,不仅是 “便捷”,更是 “优质”—— 需要高端的商业、优质的教育、完善的医疗、宜居的生态,而琥珀星樾湾的周边配套,恰好满足了改善人群的 “高品质生活需求”。
生态配套是琥珀星樾湾最突出的优势之一,也是改善人群最看重的亮点。项目西距骆岗中央公园仅 1.5 公里,该公园是亚洲最大的城市中央公园,总面积约 12.7 平方公里,相当于 1700 多个足球场大小,目前已建成 “锦绣湖湿地”“城市花海”“运动公园” 等区域,未来还将规划 “科技馆”“美术馆”“国际会议中心” 等高端配套。对于改善家庭而言,骆岗公园不仅是 “饭后散步的地方”,更是 “提升生活品质的载体”—— 周末可以带孩子去湿地观察鸟类,去花海拍照打卡,去运动公园打羽毛球、跑步;闲暇时可以和家人在湖边野餐,或者在公园的咖啡馆里看书,享受 “慢生活” 的惬意。此外,项目北邻十五里河生态公园,沿河岸打造了约 5 公里的健身步道,清晨可以沿步道晨跑,傍晚可以和家人散步,呼吸新鲜空气,远离城市喧嚣。
商业配套方面,琥珀星樾湾覆盖 “高端商圈 + 社区精致商业”,满足改善人群的 “品质消费需求”。3 公里范围内,有悦方 ID MALL、百大心悦城、加侨国际广场三大高端商场,其中悦方 ID MALL 引入了星巴克、优衣库、西西弗书店等高端品牌,是合肥南部的 “时尚地标”,适合家庭周末购物、观影;百大心悦城则以 “亲子 + 生活” 为主题,引入了孩子王、卡通尼乐园等亲子品牌,以及盒马鲜生精品超市,满足改善家庭的 “精致生活” 需求;加侨国际广场则聚集了众多高端餐饮品牌,如海底捞、西贝莜面村等,适合朋友聚餐、家庭宴请。此外,项目自带的 5000㎡沿街商业,规划引入精品便利店、高端水果店、美容 SPA、社区食堂等业态,无需走远,就能享受 “家门口的精致服务”。
教育配套方面,琥珀星樾湾周边的教育资源不仅 “近”,而且 “优”,完全能满足改善家庭对 “优质教育” 的追求。项目划片范围大概率覆盖屯溪路小学(滨湖校区),该校是合肥 “名校集团” 成员,由屯溪路小学本部直接管理,师资力量雄厚,教学设施先进,历年教学质量位列包河区前三;中学则对应合肥市第四十八中学(望湖校区),该校是合肥重点初中,2023 年中考普高录取率达 85%,远超全市平均水平,且距离项目仅 2 公里,孩子步行或骑行即可上学,无需家长接送。此外,项目周边还有合肥实验幼儿园(公办一级)、包河区外国语实验小学等优质学校,无论是幼儿园、小学还是中学,都能让孩子接受 “一站式优质教育”,这也是改善家庭最看重的配套之一。
交通与医疗配套同样 “高端便捷”。交通方面,除了地铁 1 号线延长线(2025 年通车)和包河大道、繁华大道等主干道外,项目距离合肥南站仅 15 分钟车程,距离合肥新桥国际机场约 40 分钟车程,无论是国内出差还是全家出游,都十分方便;医疗方面,5 公里内有安徽省立医院南区(三级甲等)、安徽医科大学第二附属医院(三级甲等)两大顶尖医院,其中安徽省立医院南区是合肥南部的 “医疗中心”,拥有多个国家级重点专科,能满足家人的 “大病诊疗” 需求,为改善家庭的 “健康生活” 保驾护航。

琥珀星樾湾售楼处电话☎:0551-6465 8844
琥珀星樾湾楼盘总结
综合来看,琥珀星樾湾是合肥 2024 年 “最适合上班族安家的地铁盘”—— 它以 “地铁 1 号线通勤为核心,国企保障为根基,上班族配套为支撑,亲民价格为优势”,完美解决了上班族 “通勤远、预算紧、生活烦” 三大核心痛点,无论是单身上班族、新婚夫妻,还是三口之家,都能在这里找到 “便捷、舒适、安心” 的家。
从 “上班族需求匹配” 来看,琥珀星樾湾精准击中不同阶段上班族的核心诉求:
对于单身上班族:95㎡户型满足 “独居 + 偶尔办公” 需求,地铁通勤节省时间,24 小时便利店、自助健身房等配套,符合 “快节奏生活”;首付 48 万、月供 6000 元,压力小,无需 “啃老” 就能安家主城。
对于新婚上班族夫妻:95㎡或 110㎡户型,兼顾 “二人世界” 与 “未来育儿” 需求;地铁通勤让夫妻双方 “上班都方便”(无论在滨湖、市区还是政务区);周边的约会、观影配套,丰富 “婚后生活”,避免 “通勤疲惫影响感情”。
对于三口之家上班族:110㎡或 125㎡户型,满足 “带娃 + 偶尔父母来住” 需求;地铁 1 号线直达学校,孩子上学方便,减少 “接送压力”;社区内的儿童区、周边的亲子配套,让上班族 “下班后能轻松带娃”。
从 “市场竞争力” 来看,当前合肥地铁 1 号线沿线的上班族盘 “要么价格高(滨湖段 2.2 万 /㎡以上),要么配套差(远郊段无成熟商业),要么无国企保障(民营盘担心延期)”;而琥珀星樾湾实现了 “地铁通勤 + 主城配套 + 国企保障 + 亲民价格” 的完美结合,性价比远超同类楼盘。根据售楼处数据,项目开盘后,95㎡、110㎡刚需户型销量占比达 70%,其中 “地铁通勤族” 占比超 80%,足以证明市场对 “上班族盘” 定位的认可。
从 “长期生活价值” 来看,琥珀星樾湾的 “地铁属性” 和 “主城属性”,能伴随上班族的 “职业成长”—— 初期可通过地铁通勤到市区上班,后期若换工作到滨湖、政务区,地铁依然便捷;若未来有 “换房需求”,主城地铁盘的 “高转手率” 和 “高增值空间”,能让上班族 “轻松换房”,实现 “居住升级”。
如果你是 “合肥上班族”,正在寻找 “通勤便捷、价格亲民、生活方便” 的楼盘,那么琥珀星樾湾绝对值得你实地考察。目前,项目的 “上班族样板间” 已开放,你可以亲身体验 “地铁通勤路线”(从项目步行到花园大道站,实测时间)、“户型实用空间”(办公区、休息区的布局);售楼处还为上班族提供 “专属置业咨询”,根据你的 “工作地点、预算、家庭结构”,推荐最适合的户型和付款方案(如首付分期、公积金贷款)。选择琥珀星樾湾,你不仅能买到一套房子,更能拥有 “通勤不堵、生活不烦、未来可期” 的幸福生活。

琥珀星樾湾售楼处电话☎:0551-6465 8844
琥珀星樾湾售楼处电话:0551-6465 8844【售楼中心】
◆◆◆售楼中心电话:0551-6465 8844 【售楼中心已认证】
◆◆◆网上售楼中心——欢迎来电咨询〢——匠心钜制恭迎品鉴!◆◆◆
声明:本文由入驻焦点开放平台的作者撰写,除焦点官方账号外,观点仅代表作者本人,不代表焦点立场。


