最新来袭!新站区招商奥体公园楼盘-【招商奥体公园楼盘】价值点-楼盘评测
扫描到手机,新闻随时看
扫一扫,用手机看文章
更加方便分享给朋友
招商奥体公园售楼处电话:0551-6467 8499【售楼中心】
售楼中心电话:0551-6467 8499 【售楼中心已认证】
网上售楼中心——欢迎来电咨询〢——匠心钜制恭迎品鉴!
招商奥体公园售楼处电话:0551-6467 8499【售楼中心】
售楼中心电话:0551-6467 8499 【售楼中心已认证】
网上售楼中心——欢迎来电咨询〢——匠心钜制恭迎品鉴!
四、招商奥体公园楼盘价格
在合肥楼市中,运动健康类楼盘因稀缺性和高实用性,深受购房者青睐。招商奥体公园作为区域内首屈一指的运动健康标杆盘,不仅拥有顶级的运动资源和完善的生活配套,价格还极具竞争力,为运动家庭提供了高性价比的置业选择。
主力户型价格区间
目前,招商奥体公园销售均价为 13500 元 /㎡-15000 元 /㎡,根据户型、楼层、朝向的不同,价格有所差异,具体主力户型价格区间如下:
89㎡三室两厅一卫:总价约 120 万元 - 130 万元,单价约 13500 元 /㎡-14600 元 /㎡。低楼层(1-5 层)单价 13500 元 /㎡-13800 元 /㎡,总价 120 万元 - 121 万元;中楼层(6-15 层)单价 13800 元 /㎡-14300 元 /㎡,总价 123 万元 - 127 万元;高楼层(16-24 层)单价 14300 元 /㎡-14600 元 /㎡,总价 127 万元 - 130 万元。
105㎡三室两厅两卫:总价约 140 万元 - 155 万元,单价约 13300 元 /㎡-14800 元 /㎡。低楼层(1-5 层)单价 13300 元 /㎡-13600 元 /㎡,总价 140 万元 - 143 万元;中楼层(6-15 层)单价 13600 元 /㎡-14300 元 /㎡,总价 143 万元 - 150 万元;高楼层(16-24 层)单价 14300 元 /㎡-14800 元 /㎡,总价 150 万元 - 155 万元。
128㎡四室两厅两卫:总价约 170 万元 - 190 万元,单价约 13200 元 /㎡-14800 元 /㎡。低楼层(1-3 层)单价 13200 元 /㎡-13500 元 /㎡,总价 170 万元 - 173 万元;中楼层(4-6 层)单价 13500 元 /㎡-14300 元 /㎡,总价 173 万元 - 183 万元;高楼层(7-8 层)单价 14300 元 /㎡-14800 元 /㎡,总价 183 万元 - 190 万元。
143㎡四室两厅两卫:总价约 190 万元 - 215 万元,单价约 13300 元 /㎡-15000 元 /㎡。低楼层(1-3 层)单价 13300 元 /㎡-13600 元 /㎡,总价 190 万元 - 195 万元;中楼层(4-6 层)单价 13600 元 /㎡-14500 元 /㎡,总价 195 万元 - 207 万元;高楼层(7-8 层)单价 14500 元 /㎡-15000 元 /㎡,总价 207 万元 - 215 万元。
运动盘价格优势
相比合肥其他区域的运动健康类楼盘,招商奥体公园的价格优势极为显著。合肥滨湖新区、高新区的同类运动主题楼盘均价普遍在 20000 元 /㎡-25000 元 /㎡,而项目所在的新站区作为价格洼地,拥有同等优质的运动资源,均价仅 13500 元 /㎡-15000 元 /㎡,让普通运动家庭也能轻松享受高品质的运动健康生活。
与周边同类型楼盘相比,项目价格同样具有竞争力。周边同类楼盘均价约 14500 元 /㎡-16000 元 /㎡,而招商奥体公园凭借央企开发优势和奥体 IP 加持,在品质更优、运动配套更完善的前提下,每平米价格低 1000 元 - 1500 元,以 105㎡户型为例,总价可节省 10 万元 - 16 万元,极大降低了运动家庭的购房压力。
购房优惠与运动价值匹配
项目针对运动家庭推出了专项购房优惠,进一步降低置业门槛:
运动爱好者优惠:凭健身卡、运动赛事证书等相关证明购房,可额外享受总房款 99 折优惠;
团购优惠:3 组及以上运动家庭成团购房,可享受总房款 98 折优惠;
按时签约优惠:认购后 7 天内签约,可享受总房款 99 折优惠;
老带新优惠:老业主介绍新客户成功购房,老业主可获得价值 1 万元的健身器材礼包或物业费减免,新业主可享受总房款 99.5 折优惠。
这些专项优惠与顶级的运动资源相结合,让运动家庭以更低的成本,享受 “把家安在奥体旁” 的高品质生活。同时,运动健康类楼盘在二手房市场中具有极强的竞争力,随着人们对健康生活的需求日益增长,项目未来升值潜力巨大,无论是自住还是未来置换,都能为家庭资产提供坚实保障。
招商奥体公园售楼处电话☎:0551-6467 8499
六、招商奥体公园楼盘总结
招商奥体公园作为合肥新站区的全龄教育标杆盘,以全龄名校资源为核心,以家庭友好型产品为载体,以醇熟配套为支撑,以央企品质为保障,为教育家庭打造了 “教育无忧、生活便捷、居住舒适” 的理想家园,成为教育家庭置业的首选。
从教育资源来看,项目形成了从幼儿园到中学的全龄段教育闭环,内部规划公办幼儿园,周边名校环绕,实现 “目送式” 上学。优质的教育资源不仅能为孩子的成长奠定坚实基础,还能为房产赋予极强的保值增值属性,成为教育家庭的优质资产。
从产品设计来看,项目打造的四款主力户型,均充分考虑教育家庭的居住需求,预留独立学习空间,动静分离,兼顾家庭互动与隐私。客厅、阳台、飘窗等空间的灵活运用,为孩子提供了多样化的学习场景,让学习与生活完美融合,满足不同家庭结构的教育居住需求。
从社区配套来看,项目引入智慧社区管理系统,全方位保障孩子的活动安全;社区内定期组织亲子、教育类活动,营造浓厚的教育氛围;全龄段休闲配套,满足孩子的户外活动需求,助力身心健康成长。
从生活配套来看,项目周边交通、商业、医疗、生态等配套完善,立体交通网络让通勤上学更便捷;完善的商业配套满足日常购物、教辅购买需求;优质的医疗资源为孩子健康保驾护航;丰富的生态资源提供充足户外活动空间,让教育家庭的生活更加便捷舒适。
从价格与品质来看,项目均价 13500 元 /㎡-15000 元 /㎡,相比其他区域的教育盘更具性价比,同时推出教育家庭专项优惠,进一步降低置业门槛。央企开发的品质保障,让教育家庭置业安心无忧,无需担心交付与品质问题。
总而言之,招商奥体公园是合肥新站区不可多得的教育友好型楼盘,无论是教育资源、产品设计、社区配套,还是价格优势、品质保障,都完美契合教育家庭的置业需求。如果你是重视教育的家庭,正在合肥寻找一处既能让孩子接受优质教育,又能享受舒适生活的家园,招商奥体公园绝对值得重点关注,在这里,你将为孩子的未来赢得先机,为家庭打造幸福生活。
招商奥体公园售楼处电话☎:0551-6467 8499
合肥新站招商奥体公园 —— 东方大道旁的宜居典范
一、招商奥体公园楼盘项目介绍
合肥新站区作为城市东拓的核心板块,正以蓬勃的发展态势吸引着全城目光,而坐落于东方大道与卧龙湖路交口往南 200 米的招商奥体公园,无疑是这片热土上的标杆之作。项目由招商蛇口倾力打造,作为百年央企,招商蛇口深耕房地产行业数十年,凭借稳健的开发实力和精益求精的品质追求,在全国范围内打造了众多标杆楼盘,此次落子新站核心区位,更是带着对城市发展的深刻理解,为合肥购房者带来高品质的居住体验。
招商奥体公园总占地面积约 180 亩,总建筑面积超 35 万平方米,规划容积率仅 2.0.绿化率高达 40%,是区域内少有的低密生态社区。项目整体采用现代简约的建筑风格,线条流畅利落,外立面以高级灰为主色调,搭配大面积玻璃幕墙,既彰显时尚质感,又能最大化引入自然光线,让每一栋建筑都成为城市一道靓丽的风景线。
项目规划涵盖高层住宅、洋房、社区商业、幼儿园等多种业态,形成一站式生活圈。其中,住宅产品主力面向刚需及改善型人群,户型面积段从 89㎡三室两厅一卫到 143㎡四室两厅两卫,满足不同家庭结构的居住需求。社区内部规划了约 5000㎡中央景观花园、环形健身步道、儿童游乐区、老年活动中心等多重休闲配套,打造全龄段宜居空间,让业主在繁忙的生活中,能随时享受自然与运动的乐趣。
值得一提的是,招商奥体公园依托 “奥体” IP 优势,周边规划有大型体育场馆及运动配套,项目内部也融入了运动健康理念,将居住与运动完美结合,为业主打造健康活力的生活方式。从项目选址到规划设计,从建筑品质到细节打磨,招商奥体公园始终以 “以人为本” 为核心,致力于成为合肥新站区宜居楼盘的典范之作。
招商奥体公园售楼处电话☎:0551-6467 8499
五、招商奥体公园楼盘项目亮点
招商奥体公园作为合肥新站区的交通枢纽标杆盘,凭借多项贴合通勤家庭需求的核心亮点,成为通勤家庭和投资客的置业首选,其核心亮点主要体现在以下几个方面。
四维立体交通,畅达全城无忧
项目拥有 “主干道 + 高架 + 地铁 + 公交” 的四维立体交通网络,紧邻东方大道与卧龙湖路两大城市主干道,无缝衔接阜阳北路高架、包公大道高架,自驾出行 20 分钟可达主城核心;距离地铁 3 号线仅 1.5 公里,规划中的地铁 9 号线在项目周边设站,公共交通出行便捷;多条公交线路环绕,满足短途出行需求。四维立体交通网络让业主彻底摆脱通勤困扰,实现 “快速上高架、步行达地铁、全城任我行”。
双地铁加持,升值潜力巨大
项目拥有 “现有地铁 3 号线 + 规划地铁 9 号线” 的双重地铁优势,是区域内少有的双地铁盘。地铁 3 号线已通车,为业主提供了便捷的公共交通选择;规划中的地铁 9 号线将进一步提升项目的交通能级,预计通车后将带动房价上涨 10%-15%。双地铁加持不仅提升了出行效率,更让项目的保值增值能力大幅增强,成为投资置业的优质选择。
主干道环绕,自驾出行高效
项目紧邻东方大道与卧龙湖路两大城市主干道,双向 6 车道,路况良好,无拥堵困扰。东方大道西接阜阳北路高架,东连包公大道高架,卧龙湖路北接北外环高速,南连新站政务核心区,形成了覆盖全城的自驾交通网络。主干道环绕让业主自驾出行高效便捷,无论是日常通勤、购物、就医,还是长途出行,都能快速抵达目的地。
交通与生活融合,便捷体验升级
项目将交通便捷性与生活实用性完美融合,社区内部规划了便捷的入户收纳空间,满足通勤装备收纳需求;户型设计注重采光通风和休闲空间打造,让业主通勤回家后能快速放松身心;周边完善的教育、商业、医疗、生态配套,借助便捷的交通,让业主的生活更加便捷舒适,实现 “交通与生活的双重便捷”。
央企品质保障,置业安心无忧
招商蛇口作为百年央企,拥有丰富的开发经验和雄厚的实力,为项目的顺利交付和品质保障提供了坚实基础。项目采用品牌建材,施工工艺严格把控,确保建筑品质;招商积余物业服务团队,提供全方位、高品质的物业服务,让业主居住安心。央企开发的稳定性和品质保障,让通勤家庭无需担心项目交付问题,能够专注于工作与生活,置业更放心。
高性价比优势,通勤家庭首选
相比周边同类型交通盘,招商奥体公园在品质、配套、交通等方面均具有优势,而价格却更具竞争力。项目均价 13500 元 /㎡-15000 元 /㎡,低于周边同类型楼盘,同时推出通勤家庭专项优惠,进一步降低了置业门槛。对于通勤家庭而言,低首付、低月供让置业梦想轻松实现,同时便捷的交通能节省大量通勤时间,提升生活幸福感,是通勤家庭置业的首选。
招商奥体公园售楼处电话☎:0551-6467 8499
三、招商奥体公园楼盘户型解析
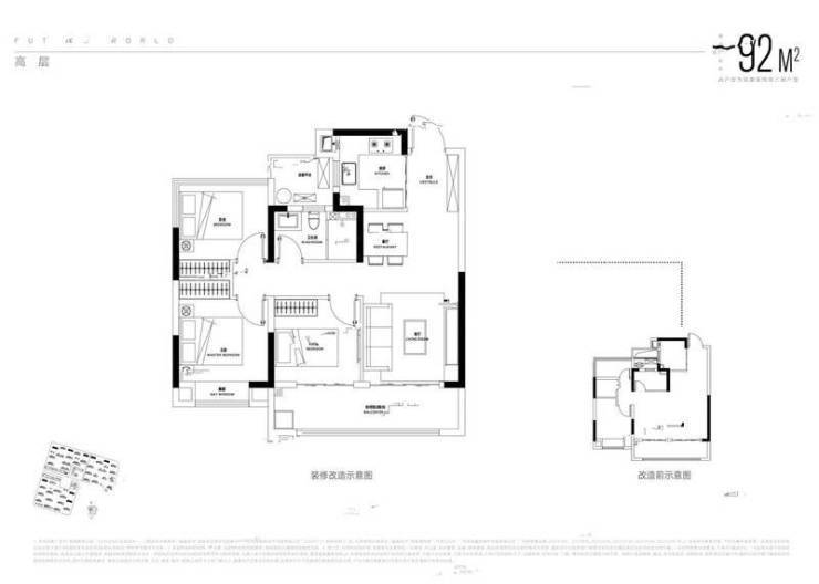
招商奥体公园深入洞察通勤家庭的居住需求,结合项目交通枢纽的核心优势,打造了多款兼具便捷性、实用性和舒适性的户型产品,涵盖 89㎡、105㎡、128㎡、143㎡四个主力面积段,从刚需小三室到高端改善大四室,满足不同通勤家庭的居住需求,让便捷出行与舒适居住完美融合。
89㎡三室两厅一卫:刚需通勤户,紧凑实用
89㎡三室两厅一卫户型是刚需通勤家庭的首选,整体布局方正,南北通透,空间利用率高达 85%,同时细节设计贴合通勤需求,让小户型也能享受便捷舒适的生活。
入户处设置独立玄关,宽度 1.2 米,深度 1.5 米,可作为通勤装备收纳区,放置鞋柜、衣帽架、公文包、通勤鞋等物品,让居家环境整洁有序。玄关右侧设有挂钩和换鞋凳,方便业主通勤回家后及时换鞋、挂衣物,细节设计贴心,节省出行准备时间。
客厅位于户型中央,面宽 3.6 米,进深 4.2 米,空间宽敞明亮。客厅与南向阳台相连,阳台面宽 3.6 米,进深 1.8 米,采用全景落地窗设计,采光通风极佳。阳台可设置休闲区,摆放休闲沙发、茶几,业主通勤回家后可在此放松身心;同时预留了洗衣机接口,方便清洗通勤衣物,保持整洁。
餐厅紧邻客厅和厨房,面积约 6㎡,可容纳 4-6 人同时用餐。餐厅与厨房之间设有滑动门,既保证了用餐环境的整洁,又能方便上菜,让业主通勤回家后能快速享用晚餐,节省时间。
厨房位于户型西侧,采用 U 型设计,操作台面长 3.5 米,洗切炒动线合理,预留双开门冰箱位置。厨房靠近餐厅,用餐、上菜便捷,适合快速烹饪早餐和晚餐,满足通勤家庭的饮食需求。
三个卧室分布在户型东侧和北侧,动静分离,避免了活动区对休息区的干扰。主卧位于户型东侧,面宽 3.2 米,进深 3.8 米,带有南向飘窗,采光充足,空间宽敞,可放置 1.8 米宽的床和衣柜,保证业主通勤后的休息质量。两个次卧面宽均为 2.7 米,空间充足,其中一个次卧可作为书房,摆放书桌、书架,方便业主加班办公;另一个次卧可作为儿童房或老人房,满足家庭多样化需求。
卫生间位于户型北侧,面积约 4.5㎡,采用干湿分离设计,提高使用效率,避免潮湿问题。卫生间配备淋浴和洗漱设施,满足业主通勤前后的清洁需求,让出行更体面。
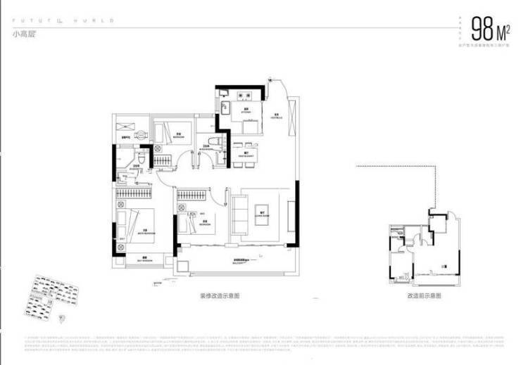
105㎡三室两厅两卫:改善通勤户,舒适升级
105㎡三室两厅两卫户型是改善型通勤家庭的优选,在 89㎡户型基础上升级,空间更加宽敞,舒适度更高,同时强化了通勤家庭的居住需求,让业主享受更便捷舒适的生活。
入户玄关更加开阔,宽度 1.5 米,深度 1.8 米,可设置多功能收纳柜,专门划分通勤装备收纳区,放置通勤包、运动鞋、雨伞等物品,收纳空间充足,让居家环境整洁有序。玄关处采用大理石地面,耐磨易清洁,适合通勤家庭高频次使用。
客厅面宽提升至 3.8 米,进深 4.5 米,空间更加宽敞明亮。客厅与南向阳台相连,阳台面宽 3.8 米,进深 2.0 米,采用全景落地窗设计,视野更加开阔,采光通风效果更佳。阳台可打造为休闲办公区,摆放书桌和休闲沙发,业主通勤间隙可在此处理工作事务,或放松身心;同时预留了洗衣机和烘干机接口,方便快速处理通勤衣物,节省时间。
餐厅面积约 7㎡,可容纳 6-8 人同时用餐,与客厅形成通透的一体化空间,增强了空间的开阔感。餐厅窗户朝向社区景观,用餐时也能欣赏到自然美景,缓解通勤疲劳。
厨房位于户型西侧,采用 U 型设计,操作台面长 3.8 米,空间更加宽敞,预留双开门冰箱位置,满足大家庭的饮食储备需求。厨房与餐厅之间采用开放式设计(可设置滑动门),增强了空间的互动性,业主在烹饪时可与家人互动交流,同时烹饪效率更高,适合通勤家庭快速准备餐食。
三个卧室分布合理,动静分离。主卧采用套房设计,面宽 3.3 米,进深 4.8 米,带有南向飘窗,采光充足,空间宽敞。主卧配备独立卫生间和衣帽间,保障了业主的隐私和舒适度,让业主通勤回家后能享受专属的放松空间。独立卫生间采用干湿分离设计,配备智能马桶和花洒,提升清洁体验,缓解通勤疲劳。两个次卧面宽均为 2.8 米,空间充足,采光良好,其中一个次卧可作为儿童房,方便孩子休息;另一个次卧可作为客房或备用书房,满足家庭多样化需求。
公共卫生间位于两个次卧之间,面积约 5㎡,采用干湿分离设计,使用方便,满足家庭成员的日常清洁需求,避免早高峰使用冲突。
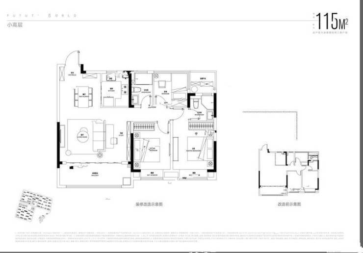
128㎡四室两厅两卫:改善通勤户,阔绰舒适
128㎡四室两厅两卫户型是多孩通勤家庭的理想选择,户型方正通透,南北双阳台设计,空间阔绰,既能满足家庭成员的居住需求,又能提供充足的收纳和休闲空间,让通勤家庭的生活更加便捷舒适。
入户玄关宽敞明亮,宽度 1.8 米,深度 2.0 米,可设置入户花园或大型收纳柜,专门划分通勤装备和家庭杂物收纳区,放置自行车、婴儿车、通勤包等物品,让居家环境整洁有序。玄关处摆放绿植,营造自然清新的氛围,缓解业主通勤后的疲劳。
客厅面宽 4.0 米,进深 4.8 米,空间宽敞开阔。客厅与南向景观阳台相连,阳台面宽 4.0 米,进深 2.0 米,采用全景落地窗设计,采光通风极佳。阳台可打造为家庭休闲区,摆放休闲沙发、茶几和绿植,全家一起放松交流,增进感情;同时预留了洗衣机和烘干机接口,功能实用。
北向生活阳台与餐厅相连,面宽 3.0 米,进深 1.8 米,可作为储物区和生活辅助区,放置家庭杂物、行李箱等,功能分区明确,提高空间利用率。
厨房位于户型西侧,采用 L 型设计,操作台面长 4.0 米,空间宽敞,动线合理。厨房与餐厅相邻,用餐、上菜便捷,厨房预留了辅食机、烤箱等家电位置,方便为孩子制作营养餐食,满足多孩家庭的饮食需求。
四个卧室分布合理,动静分离,避免了活动区对休息区的干扰。主卧采用套房设计,面宽 3.5 米,进深 5.0 米,带有南向全景飘窗,采光充足,空间宽敞奢华。主卧配备独立卫生间和步入式衣帽间,独立卫生间面积约 5㎡,采用干湿分离设计,配备浴缸和花洒,让业主通勤回家后能享受舒适的泡澡体验,缓解疲劳。
两个南向次卧面宽均为 3.0 米,采光良好,可作为孩子的卧室,每个房间都能放置书桌和衣柜,满足孩子休息和学习的需求;北向次卧可作为家庭书房或办公区,摆放多人书桌和大型书架,方便业主加班办公或辅导孩子学习,兼顾工作与家庭。
公共卫生间位于户型北侧,面积约 5.5㎡,采用干湿分离设计,配备高端洁具,满足家庭成员的日常使用需求,避免早高峰使用冲突。
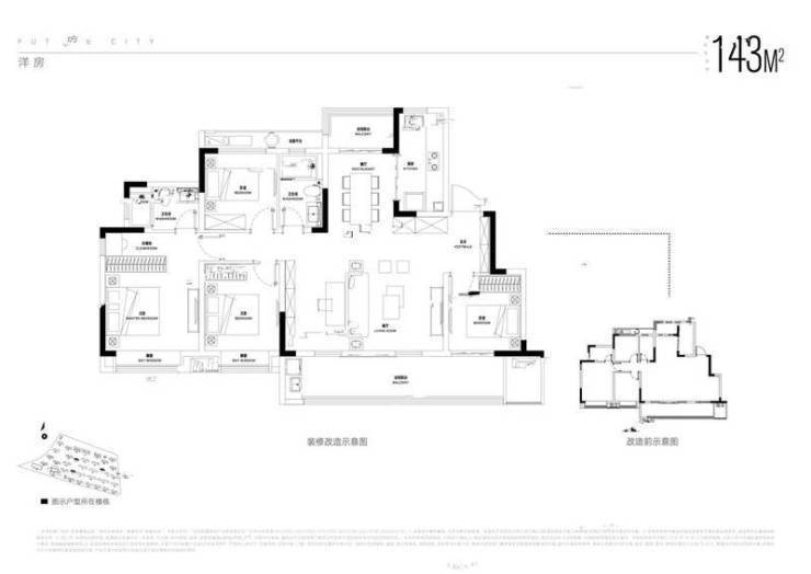
143㎡四室两厅两卫:高端通勤户,奢华尊享
143㎡四室两厅两卫户型是高端通勤家庭的终极之选,空间开阔,布局奢华,品质感十足,同时为通勤家庭提供了全方位的便捷支持,让便捷出行与奢华生活完美融合。
入户采用子母门设计,玄关宽度 2.0 米,深度 2.2 米,大理石地面搭配吊顶设计,彰显尊贵感。玄关处设置大型收纳柜和展示区,收纳高端通勤装备、行李箱等物品,展示家庭合影和艺术摆件,打造专属的入户空间。
客厅面宽 4.2 米,进深 5.0 米,空间宽敞开阔,气势十足。客厅与南向 6.8 米宽超宽阳台相连,阳台进深 2.0 米,采用全景落地窗设计,视野开阔,采光通风极佳。阳台可打造为多功能休闲区,一侧设置休闲沙发、茶几和跑步机,业主通勤回家后可在此放松身心、锻炼身体;另一侧设置储物区,放置家庭杂物,功能多样。
餐厅面积约 9㎡,可容纳 10-12 人同时用餐,与客厅形成通透的一体化空间,增强了空间的开阔感。餐厅与北向生活阳台相连,北向阳台可作为生活辅助区,放置冰箱、储物柜,储存食材和生活用品,方便日常使用。
厨房采用中西厨设计,中厨封闭烹饪,避免油烟扩散;西厨可作为早餐台或简餐区,满足通勤家庭快速准备早餐的需求。中厨采用 U 型设计,操作台面长 4.5 米,空间宽敞,动线合理,预留双开门冰箱位置和各类家电接口,满足高端家庭的饮食需求。西厨与餐厅相邻,用餐便捷,同时增强了空间的互动性。
四个卧室分布合理,动静分离,私密性强。主卧豪华套房设计,面宽 3.6 米,进深 5.2 米,带有南向全景飘窗,采光充足,空间宽敞奢华。主卧配备独立卫生间、步入式衣帽间和小型休闲区,独立卫生间面积约 6㎡,采用干湿分离设计,配备高端卫浴设施和桑拿房,让业主通勤回家后能享受专业的放松体验,缓解肌肉疲劳。
两个南向次卧面宽均为 3.2 米,空间充足,采光良好,可作为孩子的卧室或客房,每个房间都能满足休息、学习和储物的多重需求;北向次卧可作为专业书房或办公区,配备高端办公家具和设备,方便业主在家处理工作事务,兼顾工作与生活的平衡。
公共卫生间位于户型北侧,面积约 6㎡,采用干湿分离设计,配备高端洁具和烘干设备,方便通勤后快速清洁、烘干衣物,提升生活便利性。
招商奥体公园售楼处电话☎:0551-6467 8499
招商奥体公园售楼处电话☎:0551-6467 8499
招商奥体公园售楼处电话☎:0551-6467 8499
招商奥体公园售楼处电话☎:0551-6467 8499
招商奥体公园售楼处电话☎:0551-6467 8499
二、招商奥体公园楼盘周边配套
一个楼盘的价值,不仅取决于项目本身的品质,更离不开周边完善的配套设施。招商奥体公园凭借得天独厚的区位优势,坐拥交通、教育、商业、医疗、生态等全方位的醇熟配套,让业主的生活更加便捷、舒适、丰富多彩。
交通配套:立体交通网络,畅达全城
招商奥体公园紧邻东方大道与卧龙湖路两大城市主干道,形成 “一横一纵” 的交通格局。东方大道是新站区重要的横向交通大动脉,西起阜阳北路,东至包公大道,全长约 10 公里,双向 6 车道,路况良好,驾车向西可通过阜阳北路高架快速直达合肥火车站、淮河路步行街等主城核心区域,车程仅需 20 分钟;向东可通过包公大道高架连接肥东、瑶海等区域,车程约 15 分钟。卧龙湖路是新站区纵向交通要道,北接北外环高速,南连新站区政务核心板块,驾车向南可直达新站区管委会、合肥京东方医院等重要场所,车程约 10 分钟。
公共交通方面,项目周边 500 米范围内设有卧龙湖路东方大道、东方大道卧龙湖路、新站寿春实验中学等 3 个公交站点,涵盖 301 路、302 路、686 路、803 路等多条公交线路。其中,301 路公交可直达地铁 3 号线幼儿师范站,车程约 15 分钟;302 路公交可直达地铁 1 号线合肥火车站,车程约 25 分钟;686 路公交可直达新站区核心商圈武里山天街,车程约 10 分钟。未来,随着合肥地铁 9 号线(规划中)的建成通车,项目将无缝衔接地铁网络,出行效率将进一步提升,轻松通达全城各个角落。
此外,项目距离合肥新桥国际机场约 40 公里,驾车通过北外环高速转机场高速,车程约 45 分钟;距离合肥火车站约 15 公里,驾车通过阜阳北路高架,车程约 20 分钟;距离合肥南站约 25 公里,驾车通过包河大道高架,车程约 30 分钟,无论是日常通勤还是长途出行,都十分便捷。
教育配套:全龄教育资源,护航成长
教育是每个家庭最关注的问题之一,招商奥体公园周边教育资源丰富,形成了从幼儿园到中学的全龄段教育体系,让孩子在家门口就能享受优质的教育资源,为未来的发展奠定坚实的基础。
项目内部规划有一所 12 班制公办幼儿园,占地面积约 4000㎡,建筑面积约 3000㎡,将配备专业的师资力量和完善的教学设施,预计 2025 年正式投入使用,让业主的孩子足不出社区就能接受优质的启蒙教育。
项目周边 1 公里范围内分布着多所优质中小学。其中,合肥新站寿春实验中学距离项目仅 500 米,该校是寿春教育集团旗下的优质民办中学,成立于 2015 年,拥有先进的教学理念和雄厚的师资力量,中考成绩在新站区名列前茅;合肥市庆平希望学校距离项目约 800 米,该校是一所九年一贯制公办学校,涵盖小学和初中,教学设施完善,师资力量充足,为学生提供全面的素质教育;合肥市第 168 中学东校区距离项目约 1.5 公里,该校是安徽省示范高中,成立于 2002 年,以优异的高考成绩闻名全省,每年都有大量学生考入全国重点高校,是众多家长和学生向往的优质高中。
此外,周边还有合肥市新站区关井小学、合肥市新站区三十头镇中心学校等多所公办小学,以及多所规划中的中小学,教育资源持续丰富,满足不同家庭对孩子教育的需求。
商业配套:繁华商业氛围,便利生活
商业配套的完善程度直接影响着业主的日常生活便利性,招商奥体公园周边商业氛围浓厚,无论是日常购物、餐饮美食,还是休闲娱乐,都能一站式满足。
项目自带约 2 万方社区商业,规划引入超市、便利店、生鲜卖场、品牌餐饮、美容美发、药店等多元化业态,预计 2026 年正式开业运营,业主下楼即可满足日常购物、餐饮、休闲等基本需求,无需远行。
项目距离新站区核心商圈 —— 武里山天街仅 3 公里,驾车车程约 10 分钟。武里山天街是新站区规模较大的商业综合体之一,总建筑面积约 10 万方,涵盖大型购物中心、连锁超市、品牌餐饮、电影院、KTV、儿童乐园等丰富业态,入驻了永辉超市、大地影院、肯德基、麦当劳等众多知名品牌,是周边居民休闲娱乐的首选之地。
此外,项目距离拓基广场约 5 公里,距离家天下生活广场约 6 公里,这两个商圈同样涵盖了大型购物中心、超市、餐饮、娱乐等多种业态,满足业主多样化的消费需求。周边还有多个在建的商业综合体,未来商业氛围将更加浓厚,生活便利性将进一步提升。
医疗配套:优质医疗资源,健康保障
健康是幸福生活的基础,招商奥体公园周边医疗资源丰富,为业主的健康提供全方位的保障。
项目距离安徽省第二人民医院(北区)约 4 公里,驾车车程约 15 分钟。安徽省第二人民医院是集医疗、教学、科研、预防、保健、康复为一体的三级甲等综合性医院,开放床位 2000 余张,拥有多个省级重点学科和特色专科,医疗设备先进,师资力量雄厚,能够为业主提供高水平的医疗服务。
项目距离合肥京东方医院约 3.5 公里,驾车车程约 12 分钟。合肥京东方医院是一家集医疗、教学、科研、预防、保健为一体的三级综合医院,由京东方科技集团投资建设,总建筑面积约 20 万方,开放床位 1000 张,重点打造心血管科、骨科、妇产科、儿科等特色科室,医疗技术先进,服务质量优质。
此外,项目周边还有合肥市新站区七里塘社区卫生服务中心、合肥新站综合开发试验区三十头社区卫生服务中心等多家社区卫生服务中心,距离项目均在 3 公里范围内,日常就医、健康体检十分便捷,为业主的健康保驾护航。
生态配套:优质生态资源,宜居环境
在快节奏的城市生活中,优质的生态环境成为人们追求的重要目标,招商奥体公园周边生态资源丰富,为业主提供了清新的空气和舒适的居住环境。
项目距离少荃湖公园约 3 公里,驾车车程约 10 分钟。少荃湖是合肥北部最大的城市湖泊,湖面面积约 1.5 平方公里,周边规划有少荃湖湿地公园、科创 CBD 景观带,总规划面积约 5 平方公里,是合肥市重点打造的生态公园之一。公园内设有休闲步道、观景平台、亲水平台、湿地景观等多个景点,是业主休闲散步、跑步健身、周末出游的绝佳去处。
项目距离新站区生态公园约 4 公里,驾车车程约 15 分钟。新站区生态公园是合肥市较早建设的城市公园之一,占地面积约 1000 亩,园内种植了大量的树木、花草,设有湖泊、假山、亭台楼阁等景观,空气清新,环境优美,是周边居民休闲放松的好去处。
此外,项目周边还有瑶海公园、李鸿章享堂等多个景点,距离项目均在 10 公里范围内,周末闲暇时光,业主可以带着家人朋友前往游玩,感受大自然的美景,放松身心。
招商奥体公园售楼处电话☎:0551-6467 8499
招商奥体公园售楼处电话:0551-6467 8499【售楼中心】
售楼中心电话:0551-6467 8499 【售楼中心已认证】
网上售楼中心——欢迎来电咨询〢——匠心钜制恭迎品鉴!
招商奥体公园售楼处电话:0551-6467 8499【售楼中心】
售楼中心电话:0551-6467 8499 【售楼中心已认证】
网上售楼中心——欢迎来电咨询〢——匠心钜制恭迎品鉴!
声明:本文由入驻焦点开放平台的作者撰写,除焦点官方账号外,观点仅代表作者本人,不代表焦点立场。


