琥珀星樾湾(合肥)官方售楼处电话与官网恭迎品鉴,项目详情、最新房价、户型图、容积率实时更新
扫描到手机,新闻随时看
扫一扫,用手机看文章
更加方便分享给朋友
琥珀星樾湾售楼处电话:0551-6465 8844【售楼中心】
◆◆◆售楼中心电话:0551-6465 8844 【售楼中心已认证】
◆◆◆网上售楼中心——欢迎来电咨询〢——匠心钜制恭迎品鉴!◆◆◆
合肥包河区琥珀星樾湾 —— 改善人群理想家!低密洋房 + 公园配套,主城生活再升级
琥珀星樾湾楼盘项目介绍
对于改善人群而言,买房不仅是 “换个大一点的房子”,更是对 “生活品质” 的追求 —— 低密的社区环境、优质的户型设计、可靠的开发品牌,缺一不可。而合肥包河区的琥珀星樾湾,恰好精准契合了改善人群的这些需求,以 “国企开发 + 低密洋房 + 主城核心” 的组合,成为包河区改善市场的 “标杆项目”。
项目由合肥本土国企 —— 琥珀置业开发,作为合肥城建旗下的核心品牌,琥珀置业深耕合肥 20 余年,打造了琥珀山庄、琥珀五环城、琥珀东华府等多个高端项目,始终以 “精工品质” 著称,尤其是在改善型住宅开发方面,有着丰富的经验。此次打造的琥珀星樾湾,更是将 “改善基因” 贯彻到底:项目总占地面积约 68 亩,总建筑面积约 12.5 万㎡,但容积率仅 2.2.绿化率高达 40%,这样的 “低密高绿” 指标,在寸土寸金的包河区主城板块极为罕见 —— 要知道,周边多数改善楼盘的容积率都在 2.5 以上,而琥珀星樾湾通过降低容积率,为业主争取到了更宽的楼间距、更大的景观空间,从根源上提升了居住舒适度。
社区规划上,琥珀星樾湾采用 “高层 + 洋房” 的高低配布局,共 10 栋住宅,其中 4 栋为 11 层洋房(占比 40%),6 栋为 18-22 层高层,总户数约 890 户,洋房户型面积为 125-140㎡,专为改善家庭设计。洋房产品采用 “一梯两户” 设计,相比高层的 “两梯四户”,不仅等待电梯的时间更短,而且居住人口更少,社区更安静,私密性更强;同时,洋房的得房率高达 85%,比高层高出 7 个百分点,以 140㎡洋房为例,实际使用面积比同面积高层多近 10㎡,相当于多了一个书房,空间利用率更高。
建筑品质上,琥珀星樾湾更是 “不计成本”:洋房外立面采用 “干挂石材 + 真石漆” 组合,不仅美观大气,而且耐老化、抗腐蚀,多年后依然能保持崭新的外观;高层外立面采用 “保温一体板”,隔音隔热效果优于普通涂料,冬季室内温度比周边小区高 3-5℃,夏季更凉爽,节省空调费用;社区公共区域如入户大堂、电梯间、地下车库均采用 “精装标准”,大堂吊顶采用石膏线装饰,地面铺设大理石,电梯间墙面贴瓷砖,地下车库采用环氧地坪,从细节处彰显改善盘的品质。

琥珀星樾湾售楼处电话☎:0551-6465 8844
琥珀星樾湾楼盘周边配套
改善人群对配套的需求,不仅是 “便捷”,更是 “优质”—— 需要高端的商业、优质的教育、完善的医疗、宜居的生态,而琥珀星樾湾的周边配套,恰好满足了改善人群的 “高品质生活需求”。
生态配套是琥珀星樾湾最突出的优势之一,也是改善人群最看重的亮点。项目西距骆岗中央公园仅 1.5 公里,该公园是亚洲最大的城市中央公园,总面积约 12.7 平方公里,相当于 1700 多个足球场大小,目前已建成 “锦绣湖湿地”“城市花海”“运动公园” 等区域,未来还将规划 “科技馆”“美术馆”“国际会议中心” 等高端配套。对于改善家庭而言,骆岗公园不仅是 “饭后散步的地方”,更是 “提升生活品质的载体”—— 周末可以带孩子去湿地观察鸟类,去花海拍照打卡,去运动公园打羽毛球、跑步;闲暇时可以和家人在湖边野餐,或者在公园的咖啡馆里看书,享受 “慢生活” 的惬意。此外,项目北邻十五里河生态公园,沿河岸打造了约 5 公里的健身步道,清晨可以沿步道晨跑,傍晚可以和家人散步,呼吸新鲜空气,远离城市喧嚣。
商业配套方面,琥珀星樾湾覆盖 “高端商圈 + 社区精致商业”,满足改善人群的 “品质消费需求”。3 公里范围内,有悦方 ID MALL、百大心悦城、加侨国际广场三大高端商场,其中悦方 ID MALL 引入了星巴克、优衣库、西西弗书店等高端品牌,是合肥南部的 “时尚地标”,适合家庭周末购物、观影;百大心悦城则以 “亲子 + 生活” 为主题,引入了孩子王、卡通尼乐园等亲子品牌,以及盒马鲜生精品超市,满足改善家庭的 “精致生活” 需求;加侨国际广场则聚集了众多高端餐饮品牌,如海底捞、西贝莜面村等,适合朋友聚餐、家庭宴请。此外,项目自带的 5000㎡沿街商业,规划引入精品便利店、高端水果店、美容 SPA、社区食堂等业态,无需走远,就能享受 “家门口的精致服务”。
教育配套方面,琥珀星樾湾周边的教育资源不仅 “近”,而且 “优”,完全能满足改善家庭对 “优质教育” 的追求。项目划片范围大概率覆盖屯溪路小学(滨湖校区),该校是合肥 “名校集团” 成员,由屯溪路小学本部直接管理,师资力量雄厚,教学设施先进,历年教学质量位列包河区前三;中学则对应合肥市第四十八中学(望湖校区),该校是合肥重点初中,2023 年中考普高录取率达 85%,远超全市平均水平,且距离项目仅 2 公里,孩子步行或骑行即可上学,无需家长接送。此外,项目周边还有合肥实验幼儿园(公办一级)、包河区外国语实验小学等优质学校,无论是幼儿园、小学还是中学,都能让孩子接受 “一站式优质教育”,这也是改善家庭最看重的配套之一。
交通与医疗配套同样 “高端便捷”。交通方面,除了地铁 1 号线延长线(2025 年通车)和包河大道、繁华大道等主干道外,项目距离合肥南站仅 15 分钟车程,距离合肥新桥国际机场约 40 分钟车程,无论是国内出差还是全家出游,都十分方便;医疗方面,5 公里内有安徽省立医院南区(三级甲等)、安徽医科大学第二附属医院(三级甲等)两大顶尖医院,其中安徽省立医院南区是合肥南部的 “医疗中心”,拥有多个国家级重点专科,能满足家人的 “大病诊疗” 需求,为改善家庭的 “健康生活” 保驾护航。

琥珀星樾湾售楼处电话☎:0551-6465 8844
琥珀星樾湾楼盘户型解析
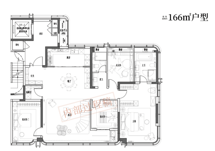
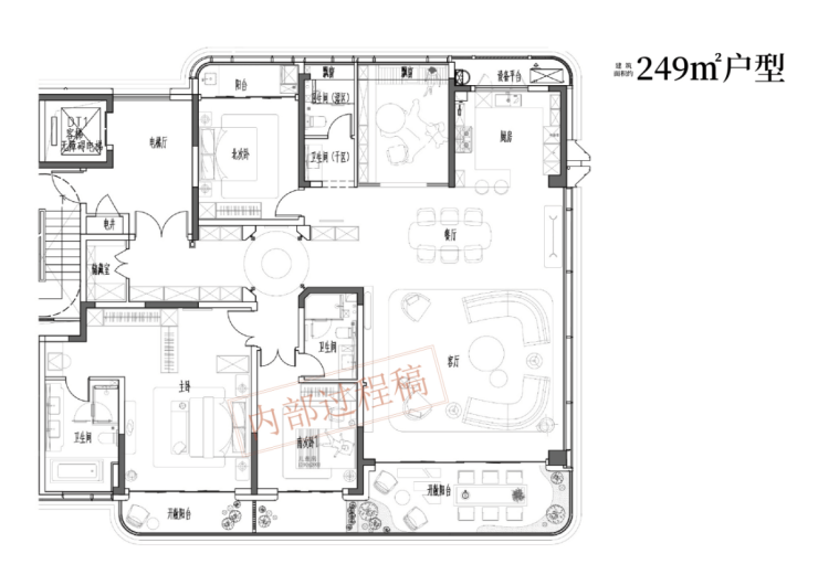
改善人群对户型的需求,早已超越 “能住” 的阶段,追求的是 “舒适、私密、功能齐全”。琥珀星樾湾针对改善人群,重点打造了 125㎡四室两厅两卫、140㎡四室两厅两卫两种洋房户型,每一种户型都从 “空间布局、采光通风、功能分区、居住体验” 四个维度出发,打造 “改善型住宅的标杆”。
125㎡四室两厅两卫(舒适改善) 专为三口之家、二胎家庭设计,做到了 “空间宽敞不浪费,功能齐全不拥挤”。该户型采用 “四开间朝南 + 南北通透” 布局,南向面宽达 12.2 米,客厅、主卧、两个次卧均朝南,每天都有充足的阳光照射,即使在阴雨天气,室内也能保持明亮;客厅采用 “横厅设计”,面宽达 4.2 米,进深 6.8 米,与餐厅相连形成 “餐客一体” 空间,总面积约 30㎡,无论是家庭聚会还是朋友宴请,都能轻松容纳;客厅连接 4.2 米宽的观景阳台,阳台进深 1.8 米,可分为 “休闲区” 和 “晾晒区”,休闲区摆放藤椅、茶几,晾晒区安装隐形晾衣架,既不影响美观,又能满足实用需求。
主卧采用 “套房设计”,面积约 18㎡,配备独立卫生间和步入式衣帽间。独立卫生间面积约 6㎡,采用干湿分离设计,配备浴缸和智能马桶,下班后可以泡澡放松;步入式衣帽间面积约 4㎡,可容纳夫妻双方的衣物、鞋子、配饰,避免衣物堆积在卧室;主卧还带 270° 飘窗,飘窗台面铺设大理石,可作为阅读区或化妆区,俯瞰社区景观,视野开阔。
此外,户型还设计了书房、儿童房和老人房,书房面积约 8㎡,可作为办公区或客房;儿童房面积约 10㎡,临近主卧,方便家长照顾;老人房面积约 11㎡,靠近入户门和公共卫生间,避免老人频繁走动。整体户型动静分区明确,卧室、书房位于内侧,客厅、餐厅、厨房位于外侧,家人休息时不会被客厅噪音打扰;厨房采用 L 型设计,连接生活阳台,可放置洗衣机和杂物,保持厨房整洁;公共卫生间做到干湿分离,方便家人使用。
140㎡四室两厅两卫(终极改善) 则是琥珀星樾湾的 “明星户型”,专为追求 “高品质生活” 的高净值家庭设计,在 125㎡户型的基础上,进一步提升了空间尺度和居住舒适度。该户型采用 “五开间朝南” 布局,南向面宽达 14.5 米,客厅、主卧、两个次卧、书房均朝南,采光效果堪称 “极致”;客厅面宽达 5.8 米,进深 7.2 米,餐客一体空间总面积约 42㎡,搭配大落地窗,视野开阔,站在客厅就能看到社区中央景观;阳台长度达 7.8 米,贯通客厅和书房,进深 2 米,可打造 “空中花园”,摆放绿植、秋千、茶桌,成为家人休闲的核心区域。
主卧套房面积约 25㎡,配备独立卫生间、步入式衣帽间和梳妆台。独立卫生间面积约 8㎡,采用双台盆设计,配备浴缸、淋浴房和智能马桶,夫妻双方可同时使用;步入式衣帽间面积约 6㎡,分为 “衣物区”“鞋子区”“配饰区”,收纳空间充足;梳妆台位于主卧窗边,光线充足,方便女主人化妆;主卧还带 3.2 米宽的飘窗,飘窗台面延伸至墙面,可作为休闲区,摆放软垫、靠枕,享受午后阳光。
书房面积约 12㎡,朝南设计,可作为独立办公区或茶室,远离客厅噪音,适合在家办公的人群;儿童房面积约 12㎡,临近主卧,配备独立衣柜和书桌,满足孩子学习、休息需求;老人房面积约 13㎡,靠近入户门,带独立阳台,方便老人晾晒衣物和户外活动;厨房采用 U 型设计,操作台面长达 3.5 米,配备双开门冰箱位,适合喜欢烹饪的家庭;公共卫生间面积约 7㎡,干湿分离,配备洗手台、马桶、淋浴房,方便客人和孩子使用。
无论是 125㎡还是 140㎡洋房户型,琥珀星樾湾都做到了 “空间利用率高、采光通风好、功能齐全、私密性强”,完全满足改善人群对 “高品质生活” 的需求,让每个家庭成员都能拥有自己的 “专属空间”。

琥珀星樾湾售楼处电话☎:0551-6465 8844

琥珀星樾湾售楼处电话☎:0551-6465 8844

琥珀星樾湾售楼处电话☎:0551-6465 8844

琥珀星樾湾售楼处电话☎:0551-6465 8844
琥珀星樾湾楼盘价格
琥珀星樾湾楼盘具体一房一价,详询营销中心。

琥珀星樾湾售楼处电话☎:0551-6465 8844
琥珀星樾湾楼盘项目亮点
作为合肥包河区 “全龄友好社区标杆”,琥珀星樾湾的亮点远不止 “配套全”—— 它将 “全龄细节、国企保障、家庭互动、区域潜力” 深度融合,形成了 “四大核心亮点”,让 “全龄友好” 从 “概念” 落地为 “真实生活体验”。
亮点一:全龄细节 “极致贴心”,覆盖从 “0 岁到 80 岁” 的需求多数全龄盘的 “全龄” 停留在 “有配套”,而琥珀星樾湾则做到了 “细节见关怀”,每个配套都从 “不同年龄段的生理、心理需求” 出发设计:
儿童区:0-3 岁学步区的 “防磕碰圆角设计”(所有设施边角均包裹软质材料)、4-6 岁游戏区的 “沙坑防尘盖”(避免沙尘飞扬)、7-12 岁运动区的 “儿童专用篮球架”(高度 2.2 米,适合孩子投篮);甚至儿童区的 “监控摄像头” 都采用 “低角度安装”(高度 1.5 米),确保能清晰拍摄孩子活动画面,同时避免拍摄家长隐私。
老人区:无障碍坡道的 “防滑纹路”(雨天不打滑)、健身器材的 “扶手软包”(避免冬天冰冷)、休闲凉亭的 “太阳能取暖灯”(冬季提供温暖);社区菜园的 “自动灌溉系统”(老人无需弯腰浇水)、棋牌桌的 “可升降桌面”(可根据老人身高调节高度)。
全社区:道路两侧的 “夜光指引灯”(高度 0.5 米,避免强光刺眼,方便老人夜间行走)、单元门的 “人脸识别 + 密码 + 刷卡” 三重开门方式(老人记不住密码可刷卡,孩子身高不够可刷脸)、电梯的 “语音报层功能”(方便视力不佳的老人识别楼层);甚至社区的 “垃圾桶” 都按 “家庭分类” 设计(分为 “厨余垃圾、可回收物、有害垃圾、其他垃圾”,且高度 0.8 米,方便老人和孩子投放)。
这些 “极致细节”,让每个家庭成员都能感受到 “被重视”,真正实现 “全龄友好,而非全龄将就”。
亮点二:国企保障 “全龄生活”,避免 “配套后期缩水”当前市场上,部分民营全龄盘存在 “交房后配套缩水” 的问题 —— 儿童区设施损坏不维修、老人区器材停用、社区图书馆关闭,导致 “全龄友好” 沦为 “噱头”。而琥珀星樾湾由国企琥珀置业开发,从 “配套建设” 到 “后期维护” 都有 “国企兜底”:
建设阶段:全龄配套的 “资金专款专用”,确保儿童区、老人区、青年区的设施按规划建设,不削减成本;比如儿童区的 EPDM 塑胶地面,采用 “国标高弹性材料”,厚度达 5cm,远超民营盘的 3cm 标准,确保孩子玩耍安全。
交付后:开发商自有物业(琥珀物业)负责全龄配套的 “日常维护”,制定 “专项维护计划”—— 儿童区设施每周检查 1 次,每月清洁 1 次;老人区健身器材每季度保养 1 次;社区图书馆每月更新 100 册书籍;甚至社区菜园的 “自动灌溉系统” 都有专人定期检修,确保长期可用。
长期升级:物业每年收集业主反馈,根据家庭需求升级全龄配套 —— 比如 2025 年计划在儿童区增加 “国学启蒙角”,在老人区增加 “中医理疗服务点”,让全龄配套 “越用越完善”。
这种 “国企保障”,让家庭购房者无需担心 “全龄配套后期失效”,住得更安心。
亮点三:家庭互动 “场景化设计”,拉近全家距离全龄友好的核心不仅是 “各有空间”,更是 “全家互动”—— 琥珀星樾湾通过 “场景化设计”,打造了多个 “全家共享空间”,让家人之间的互动更自然:
中央草坪 “亲子活动日”:每月举办 1 次 “风筝节”“野餐日”“亲子运动会”,全家可一起放风筝、吃野餐、参加亲子游戏(如两人三足、袋鼠跳),增进亲子感情;
景观水景 “家庭亲水季”:夏季举办 “儿童水上乐园” 活动,在水景区域设置小型水上滑梯、水枪游戏,家长可陪孩子一起玩水,同时在周边遮阳棚休息聊天;
社区图书馆 “全家阅读夜”:每周五晚上开设 “亲子阅读会”,邀请专业老师带领孩子读绘本,家长可在一旁阅读自己的书籍,结束后全家分享阅读心得,培养 “阅读习惯”;
社区菜园 “家庭农耕日”:每周末开放社区菜园,全家可一起种植蔬菜、浇水、施肥,孩子能认识农作物,老人能锻炼身体,青年能放松心情,全家在劳动中享受欢乐。
这些 “互动场景”,让 “全龄社区” 变成 “家庭欢乐场”,避免了 “孩子在玩、老人在等、青年在忙” 的疏离感。
亮点四:主城核心 + 全龄属性,“双稀缺” 提升区域价值琥珀星樾湾的 “区域潜力” 也与 “全龄属性” 相辅相成 —— 项目位于包河区主城核心板块,周边配套成熟,同时承接 “骆岗中央公园” 发展红利,而 “主城核心 + 全龄友好” 的组合,在合肥极为稀缺:
主城核心的 “成熟配套”,确保全龄家庭的 “日常需求” 能快速满足 —— 孩子上学近、老人就医便、全家购物方便,无需等待规划落地;
骆岗中央公园的 “生态红利”,为全龄家庭提供 “户外休闲空间”—— 周末带孩子去公园花海拍照,陪老人去湿地散步,青年去运动公园跑步,全家都能享受自然;
地铁 1 号线延长线(2025 年通车)的 “交通红利”,提升全龄家庭的 “出行便捷度”—— 老人坐地铁去市区探亲,孩子坐地铁去滨湖游玩,青年坐地铁去政务区上班,都很方便。
这种 “双稀缺” 属性,让琥珀星樾湾不仅是 “全龄友好社区”,更是 “潜力增值盘”—— 未来随着主城土地稀缺、全龄需求增加,项目的 “居住价值” 和 “资产价值” 都会持续提升。

琥珀星樾湾售楼处电话☎:0551-6465 8844
琥珀星樾湾楼盘总结
综合来看,琥珀星樾湾是合肥包河区 2024 年 “最适合家庭置业的全龄友好盘”—— 它以 “全龄细节为核心,国企保障为根基,成熟配套为支撑,亲民价格为优势”,完美解决了 “孩子玩耍、老人养老、青年生活” 的家庭核心需求,无论是刚需三口之家、二胎家庭,还是三代同堂的改善家庭,都能在这里找到 “全家舒心的家”。
从 “家庭需求匹配” 来看,琥珀星樾湾精准击中不同家庭的核心痛点:
对于刚需三口之家:95㎡户型满足 “小三房” 需求,儿童区和老人房(若父母偶尔来住)的设计,解决 “带娃 + 孝亲” 的双重需求;亲民的价格(首付 48 万、月供 6000 元),让年轻夫妻无需 “掏空积蓄”,就能在主城安家;成熟的教育配套(幼儿园到中学),省去 “择校焦虑”。
对于二胎家庭:125㎡四室户型,两个儿童房 + 主卧 + 老人房的布局,确保每个孩子都有独立空间,老人可帮忙带娃;全龄配套中的儿童区(分龄设计),让两个孩子都能找到适合自己的玩耍区域,避免争抢;双卫生间设计,解决 “早上排队洗漱” 的痛点。
对于三代同堂改善家庭:140㎡洋房户型,低密安静的社区环境适合老人休养,宽境空间让全家都有独立区域;老人房带独立卫生间、儿童房带阳台、青年主卧带套房,兼顾 “私密性” 与 “便利性”;全龄互动场景(亲子活动、农耕日),让全家在互动中增进感情,避免 “代沟”。
从 “市场竞争力” 来看,当前合肥包河区的全龄友好盘 “数量少、价格高、品质参差不齐”—— 多数民营全龄盘存在 “配套缩水、交付延期” 的风险,而琥珀星樾湾作为 “国企开发的全龄盘”,不仅配套完善、品质过硬,价格还比同类楼盘低 10%-20%,性价比远超竞品。根据售楼处数据,项目开盘后,全龄户型的销量占比达 85%,其中 “三代同堂家庭” 和 “二胎家庭” 占比超 60%,足以证明市场对 “全龄友好” 定位的认可。
从 “长期生活价值” 来看,琥珀星樾湾的 “全龄属性” 能伴随家庭成长 —— 孩子从幼儿园到中学,老人从退休到养老,青年从新婚到二胎,家庭的每一个阶段需求,都能在社区内得到满足;国企物业的长期维护,确保全龄配套 “越用越完善”,让房子 “不仅是住所,更是全家的生活港湾”。
如果你是 “家庭购房者”,正在寻找 “能满足孩子、老人、自己需求” 的楼盘,那么琥珀星樾湾绝对值得你实地考察。目前,项目的 “全龄样板间” 已开放,你可以亲身体验 “儿童房、老人房、家庭互动区” 的设计;售楼处还为家庭购房者提供 “全龄置业规划服务”,根据你的家庭结构(几口人、孩子年龄、老人需求),推荐最适合的户型和付款方案。选择琥珀星樾湾,你不仅能买到一套房子,更能拥有 “全家舒心、长期安心” 的幸福生活。

琥珀星樾湾售楼处电话☎:0551-6465 8844
琥珀星樾湾售楼处电话:0551-6465 8844【售楼中心】
◆◆◆售楼中心电话:0551-6465 8844 【售楼中心已认证】
◆◆◆网上售楼中心——欢迎来电咨询〢——匠心钜制恭迎品鉴!◆◆◆
声明:本文由入驻焦点开放平台的作者撰写,除焦点官方账号外,观点仅代表作者本人,不代表焦点立场。


