招商奥体公园(合肥)楼盘-【招商奥体公园楼盘】是否值得购买-全面介绍
扫描到手机,新闻随时看
扫一扫,用手机看文章
更加方便分享给朋友
招商奥体公园售楼处电话:0551-6467 8499【售楼中心】
售楼中心电话:0551-6467 8499 【售楼中心已认证】
网上售楼中心——欢迎来电咨询〢——匠心钜制恭迎品鉴!
招商奥体公园售楼处电话:0551-6467 8499【售楼中心】
售楼中心电话:0551-6467 8499 【售楼中心已认证】
网上售楼中心——欢迎来电咨询〢——匠心钜制恭迎品鉴!
四、招商奥体公园楼盘价格
在合肥楼市中,新站区凭借高性价比成为刚需与投资客的热门选择,而招商奥体公园作为区域内的标杆楼盘,不仅品质出众,价格更具竞争力,同时具备清晰的升值预期,是投资置业的优选。
主力户型价格区间
目前,招商奥体公园销售均价为 13500 元 /㎡-15000 元 /㎡,根据户型、楼层、朝向不同,价格有所差异,具体如下:
89㎡三室两厅一卫:总价 120 万元 - 130 万元,单价 13500 元 /㎡-14600 元 /㎡。低楼层(1-5 层)单价 13500 元 /㎡-13800 元 /㎡,总价 120 万元 - 121 万元;中楼层(6-15 层)单价 13800 元 /㎡-14300 元 /㎡,总价 123 万元 - 127 万元;高楼层(16-24 层)单价 14300 元 /㎡-14600 元 /㎡,总价 127 万元 - 130 万元。
105㎡三室两厅两卫:总价 140 万元 - 155 万元,单价 13300 元 /㎡-14800 元 /㎡。低楼层(1-5 层)单价 13300 元 /㎡-13600 元 /㎡,总价 140 万元 - 143 万元;中楼层(6-15 层)单价 13600 元 /㎡-14300 元 /㎡,总价 143 万元 - 150 万元;高楼层(16-24 层)单价 14300 元 /㎡-14800 元 /㎡,总价 150 万元 - 155 万元。
128㎡四室两厅两卫:总价 170 万元 - 190 万元,单价 13200 元 /㎡-14800 元 /㎡。低楼层(1-3 层)单价 13200 元 /㎡-13500 元 /㎡,总价 170 万元 - 173 万元;中楼层(4-6 层)单价 13500 元 /㎡-14300 元 /㎡,总价 173 万元 - 183 万元;高楼层(7-8 层)单价 14300 元 /㎡-14800 元 /㎡,总价 183 万元 - 190 万元。
143㎡四室两厅两卫:总价 190 万元 - 215 万元,单价 13300 元 /㎡-15000 元 /㎡。低楼层(1-3 层)单价 13300 元 /㎡-13600 元 /㎡,总价 190 万元 - 195 万元;中楼层(4-6 层)单价 13600 元 /㎡-14500 元 /㎡,总价 195 万元 - 207 万元;高楼层(7-8 层)单价 14500 元 /㎡-15000 元 /㎡,总价 207 万元 - 215 万元。
价格优势与投资性价比
相比周边同类型楼盘,招商奥体公园价格优势显著。周边同类央企开发楼盘均价普遍在 14500 元 /㎡-16000 元 /㎡,项目每平米价格低 1000 元 - 1500 元,以 105㎡户型为例,总价可节省 10 万元 - 16 万元,投资性价比极高。
同时,项目推出多项购房优惠政策,进一步降低投资门槛:3 人及以上团购可享 98 折优惠;7 天内按时签约享 99 折优惠;首付分期政策支持首期 10% 首付,剩余首付 6 个月内付清,无需支付利息;老带新成交,新业主享 99.5 折优惠。这些优惠政策让投资客以更低成本入手,提升投资回报率。
升值预期与投资回报
招商奥体公园的升值潜力主要来自三大核心因素:
区域价值升级:随着新站区产业升级、配套完善,区域房价呈稳步上涨趋势,近 3 年新站区核心板块房价年均涨幅约 5%-8%,未来地铁 9 号线通车、少荃湖科创 CBD 建成后,区域价值将进一步提升,预计年均涨幅可达 8%-10%。
品牌溢价:招商蛇口作为百年央企,开发的楼盘在二手房市场中比周边非品牌楼盘溢价约 10%-15%。以周边同户型二手房为例,招商旗下楼盘二手房价格普遍高出周边 1500 元 /㎡-2000 元 /㎡,品牌溢价效应显著。
配套兑现红利:项目周边地铁 9 号线、少荃湖科创 CBD、规划中小学等配套将在未来 3-5 年内陆续兑现,每一项配套的落地都将推动房价上涨,预计配套全部兑现后,项目房价有望上涨 20%-30%。
按照当前价格计算,投资 89㎡户型,5 年后预计总价可达 144 万元 - 169 万元,投资回报率约 20%-30%;投资 143㎡高端户型,因稀缺性更强,投资回报率有望达到 30%-40%,是合肥楼市中极具投资价值的楼盘。
招商奥体公园售楼处电话☎:0551-6467 8499
五、招商奥体公园楼盘项目亮点
作为合肥新站区的热门楼盘,招商奥体公园凭借众多突出亮点,成为购房者追捧的对象,其核心亮点主要体现在以下几个方面。
央企加持,品质保障
招商蛇口作为百年央企,拥有数十年的房地产开发经验,具备雄厚的资金实力和丰富的开发经验,始终坚持 “品质为王” 的开发理念,从建筑材料的选择到施工工艺的把控,都严格按照高标准执行。项目采用品牌建材,如断桥铝门窗、双层中空玻璃、品牌电梯等,保证了建筑的品质和居住的安全性。同时,招商蛇口拥有专业的施工团队和监理团队,全程把控施工质量,确保每一套房子都能达到高品质标准,让业主买得放心、住得安心。
奥体 IP 赋能,运动健康生活
招商奥体公园最大的亮点之一就是 “奥体” IP 加持,项目周边规划有大型体育场馆,包括足球场、篮球场、游泳馆、健身房等多种运动设施,业主可享受便捷的运动资源。同时,项目内部也融入了运动健康理念,规划了环形健身步道、儿童游乐区、老年活动中心、健身广场等多重运动配套,打造全龄段运动空间。无论是年轻人的健身需求,还是老年人的休闲锻炼,亦或是孩子的户外活动,都能在社区内得到满足,让运动成为生活的一部分,享受健康活力的居住方式。
低密生态,宜居环境
项目规划容积率仅 2.0.绿化率高达 40%,是区域内少有的低密生态社区。社区内部规划了约 5000㎡中央景观花园,种植了多种名贵绿植,打造四季有景的园林景观。同时,社区内还设置了景观水系、休闲步道、观景平台等,让业主在居家生活中就能享受自然美景。低密的规划意味着更少的居住人口、更宽敞的公共空间和更好的居住舒适度,避免了高密度社区的拥挤和嘈杂,为业主提供宁静舒适的居住环境。
全龄教育,无忧成长
招商奥体公园周边教育资源丰富,形成了从幼儿园到中学的全龄段教育体系。项目内部规划有 12 班制幼儿园,让孩子在家门口就能享受优质的启蒙教育。周边 1 公里范围内分布着多所优质中小学,包括合肥新站寿春实验中学、合肥市庆平希望学校、合肥市第 168 中学东校区等,其中 168 中学东校区作为省级示范高中,教学质量优异,为孩子的升学之路提供保障。丰富的教育资源让业主无需为孩子的教育问题担忧,实现 “目送式” 教育,让孩子在良好的教育氛围中无忧成长。
醇熟配套,便捷生活
项目坐拥全方位的醇熟配套,交通、商业、医疗、生态等一应俱全。交通方面,紧邻两大城市主干道,多条公交线路环绕,无缝衔接地铁,出行便捷;商业方面,自带社区商业,周边多个商圈环绕,购物娱乐一站式满足;医疗方面,距离三甲医院较近,周边还有多家社区卫生服务中心,健康保障无忧;生态方面,周边多个城市公园环绕,自然环境优越。完善的配套让业主无需等待规划兑现,即刻享受便捷舒适的生活。
高性价比,升值潜力大
相比周边同类型楼盘,招商奥体公园的价格更具优势,同时凭借央企品质、完善配套、低密生态等多重亮点,性价比极高。随着新站区的不断发展,区域价值持续提升,项目作为区域内的标杆楼盘,未来升值空间巨大。无论是自住还是投资,都能为购房者带来可观的回报,是合肥楼市中难得的高性价比楼盘。
招商奥体公园售楼处电话☎:0551-6467 8499
三、招商奥体公园楼盘户型解析
户型是居住体验的核心,招商奥体公园深入洞察合肥购房者的居住需求,结合项目低密生态的规划优势,打造了多款兼具实用性、舒适性和性价比的户型产品,涵盖 89㎡、105㎡、128㎡、143㎡四个主力面积段,从刚需小三室到高端改善大四室,满足不同家庭结构和生活需求的购房者。
89㎡三室两厅一卫:刚需首选,紧凑实用
89㎡三室两厅一卫户型是项目的刚需主力户型,整体布局方正,南北通透,空间利用率高达 85%,没有浪费空间,是刚需人群置业的理想选择。
入户处设置了独立玄关,玄关宽度约 1.2 米,深度约 1.5 米,既保证了室内的隐私性,又能作为收纳空间,放置鞋柜、衣帽架、行李箱等物品,让居家生活更加整洁有序。玄关右侧设有挂钩和换鞋凳,方便业主进门后及时换鞋、挂衣物,细节设计十分贴心。
客厅位于户型中央,面宽 3.6 米,进深 4.2 米,建筑面积约 15㎡,空间宽敞明亮。客厅与南向阳台相连,阳台面宽 3.6 米,进深 1.8 米,建筑面积约 6.5㎡,采用全景落地窗设计,最大化引入自然光线,让客厅更加明亮通透。阳台可根据需求进行个性化改造,设置休闲区、晾晒区或绿植区,满足多样化的生活需求。
餐厅紧邻客厅和厨房,建筑面积约 6㎡,可容纳 4-6 人同时用餐。餐厅与厨房之间设有滑动门,既保证了用餐环境的整洁,又能方便上菜。厨房位于户型西侧,采用 U 型设计,操作台面长度约 3.5 米,洗切炒动线合理,预留了双开门冰箱位置,同时配备了燃气热水器、抽油烟机、燃气灶等基础家电接口,满足日常烹饪需求。
三个卧室分布在户型的东侧和北侧,动静分离,避免了活动区对休息区的干扰。主卧位于户型东侧,面宽 3.2 米,进深 3.8 米,建筑面积约 12㎡,带有南向飘窗,采光充足,空间宽敞,可放置 1.8 米宽的床和衣柜。两个次卧分别位于户型北侧和东侧,面宽均为 2.7 米,进深 3.2 米,建筑面积约 8.6㎡,可作为儿童房、老人房或书房,满足不同家庭的居住需求。
卫生间位于户型北侧,建筑面积约 4.5㎡,采用干湿分离设计,将淋浴区与洗漱区、马桶区分开,提高了使用效率,避免了潮湿问题。卫生间配备了花洒、马桶、洗手盆等基础洁具,同时预留了洗衣机接口,方便业主使用。
105㎡三室两厅两卫:改善刚需,舒适升级
105㎡三室两厅两卫户型是在 89㎡户型基础上的升级版本,空间更加宽敞,舒适度更高,适合改善型刚需人群,既能满足家庭成员的居住需求,又能保证居住的舒适性。
入户玄关更加开阔,宽度约 1.5 米,深度约 1.8 米,可设置多功能收纳柜,满足家庭更多的收纳需求。玄关处采用大理石地面,与室内木地板形成鲜明对比,彰显品质感。
客厅面宽提升至 3.8 米,进深 4.5 米,建筑面积约 17㎡,空间更加宽敞明亮。客厅与南向阳台相连,阳台面宽 3.8 米,进深 2.0 米,建筑面积约 7.6㎡,采用全景落地窗设计,视野更加开阔,采光通风效果更佳。阳台可设置休闲沙发、茶几,打造专属的休闲空间,欣赏社区美景。
餐厅建筑面积约 7㎡,可容纳 6-8 人同时用餐,与客厅形成通透的一体化空间,增强了空间的开阔感。厨房位于户型西侧,采用 U 型设计,操作台面长度约 3.8 米,空间更加宽敞,预留了双开门冰箱位置,满足大家庭的烹饪需求。厨房与餐厅之间采用开放式设计(可根据需求设置滑动门),增强了空间的互动性。
三个卧室分布合理,动静分离。主卧位于户型东侧,采用套房设计,面宽 3.3 米,进深 4.8 米,建筑面积约 16㎡,配备独立卫生间和衣帽间。主卧带有南向飘窗,采光充足,空间宽敞舒适,可放置 1.8 米宽的床、衣柜和梳妆台。独立卫生间建筑面积约 4㎡,采用干湿分离设计,配备花洒、马桶、洗手盆等洁具,保证了主人的隐私和居住舒适度。
两个次卧分别位于户型北侧和东侧,面宽均为 2.8 米,进深 3.5 米,建筑面积约 9.8㎡,空间充足,可放置 1.5 米宽的床和衣柜。其中一个次卧带有南向飘窗,采光良好,可作为儿童房;另一个次卧可作为老人房或书房,满足多样化的居住需求。
公共卫生间位于户型北侧,建筑面积约 5㎡,采用干湿分离设计,位于两个次卧之间,使用方便。公共卫生间配备了花洒、马桶、洗手盆、洗衣机接口等,满足家庭成员的日常使用需求。
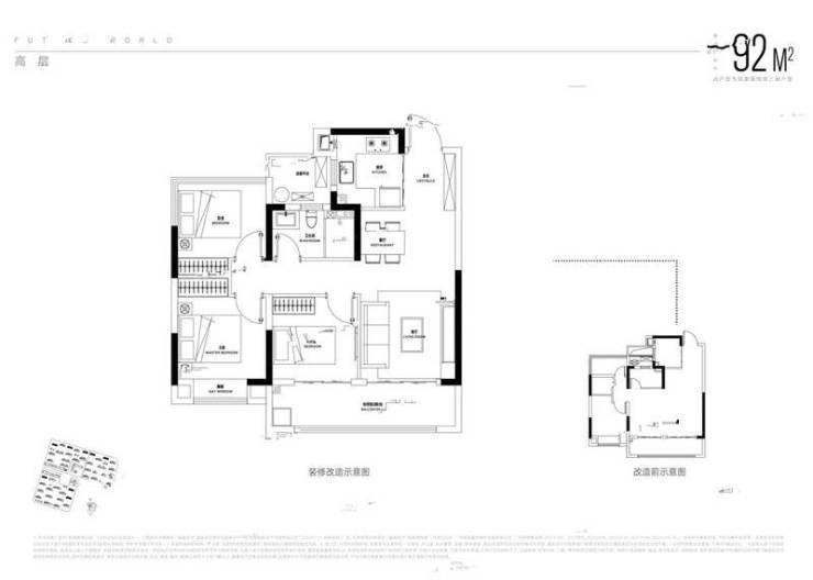
128㎡四室两厅两卫:改善优选,空间阔绰
128㎡四室两厅两卫户型是项目的改善主力户型,户型方正通透,南北双阳台设计,空间阔绰,舒适度高,适合家庭成员较多的改善型人群。
入户玄关宽敞明亮,宽度约 1.8 米,深度约 2.0 米,可设置入户花园或多功能收纳区,提升居家品质。玄关处采用吊顶设计,搭配筒灯和射灯,营造出温馨舒适的氛围。
客厅面宽 4.0 米,进深 4.8 米,建筑面积约 19㎡,空间宽敞开阔。客厅与南向景观阳台相连,阳台面宽 4.0 米,进深 2.0 米,建筑面积约 8㎡,采用全景落地窗设计,采光通风效果极佳。阳台可打造为空中花园,种植各种绿植花卉,或设置休闲茶室,享受惬意的休闲时光。
餐厅建筑面积约 8㎡,可容纳 8-10 人同时用餐,与客厅形成通透的一体化空间,增强了空间的开阔感。餐厅与北向生活阳台相连,北向阳台面宽 3.0 米,进深 1.8 米,建筑面积约 5.4㎡,可作为晾晒区、储物区或洗衣房,功能分区明确,提高了空间利用率。
厨房位于户型西侧,采用 L 型设计,操作台面长度约 4.0 米,空间宽敞,动线合理。厨房配备了燃气热水器、抽油烟机、燃气灶等基础家电接口,预留了双开门冰箱位置,满足大家庭的烹饪需求。厨房与餐厅相邻,用餐、上菜十分便捷。
四个卧室分布合理,动静分离,避免了活动区对休息区的干扰。主卧位于户型东侧,采用套房设计,面宽 3.5 米,进深 5.0 米,建筑面积约 17.5㎡,配备独立卫生间和步入式衣帽间。主卧带有南向全景飘窗,采光充足,空间宽敞奢华,可放置 2.0 米宽的床、衣柜和梳妆台,彰显主人身份。独立卫生间建筑面积约 5㎡,采用干湿分离设计,配备花洒、马桶、洗手盆、浴缸等洁具,享受高品质的卫浴体验。
两个南向次卧分别位于户型南侧和东侧,面宽均为 3.0 米,进深 3.8 米,建筑面积约 11.4㎡,空间充足,采光良好。其中一个次卧可作为儿童房,放置 1.5 米宽的床、书桌和衣柜;另一个次卧可作为老人房,方便老人日常生活。北向次卧位于户型北侧,面宽 2.8 米,进深 3.5 米,建筑面积约 9.8㎡,可作为书房、茶室或健身房,满足多样化的居住需求。
公共卫生间位于户型北侧,建筑面积约 5.5㎡,采用干湿分离设计,位于两个次卧之间,使用方便。公共卫生间配备了花洒、马桶、洗手盆、洗衣机接口等,满足家庭成员的日常使用需求。
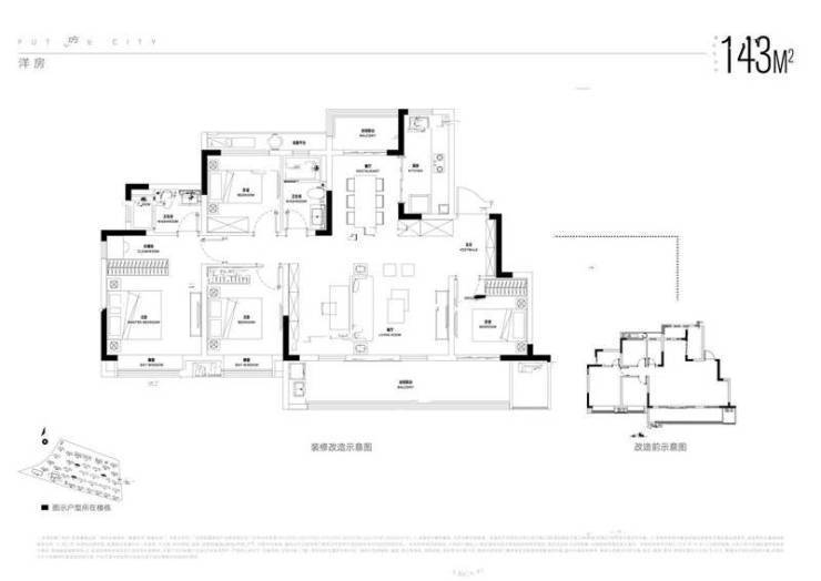
143㎡四室两厅两卫:高端改善,奢华舒适
143㎡四室两厅两卫户型是项目的高端改善户型,空间开阔,布局合理,品质感十足,适合追求高品质生活的改善型人群。
入户玄关采用子母门设计,彰显尊贵感。玄关宽度约 2.0 米,深度约 2.2 米,可设置大型收纳柜和展示区,收纳空间充足,同时提升了居家品质。玄关处采用大理石地面和吊顶设计,搭配水晶吊灯,营造出奢华大气的氛围。
客厅面宽 4.2 米,进深 5.0 米,建筑面积约 21㎡,空间宽敞开阔,气势十足。客厅与南向超宽阳台相连,阳台面宽 6.8 米,进深 2.0 米,建筑面积约 13.6㎡,采用全景落地窗设计,视野开阔,采光通风效果极佳。阳台可打造为多功能休闲区,设置休闲沙发、茶几、跑步机等,满足休闲、健身、观景等多种需求。
餐厅建筑面积约 9㎡,可容纳 10-12 人同时用餐,与客厅形成通透的一体化空间,增强了空间的开阔感。餐厅与北向生活阳台相连,北向阳台面宽 3.2 米,进深 1.8 米,建筑面积约 5.8㎡,可作为晾晒区、储物区或洗衣房,功能分区明确。
厨房位于户型西侧,采用中西厨设计,中厨封闭烹饪,避免油烟扩散;西厨可作为早餐台、吧台,满足多样化的烹饪需求。中厨采用 U 型设计,操作台面长度约 4.5 米,空间宽敞,动线合理,预留了双开门冰箱位置和各种家电接口。西厨与餐厅相邻,用餐便捷,同时增强了空间的互动性。
四个卧室分布合理,动静分离,私密性强。主卧位于户型东侧,采用豪华套房设计,面宽 3.6 米,进深 5.2 米,建筑面积约 18.7㎡,配备独立卫生间、步入式衣帽间和南向全景飘窗。主卧空间宽敞奢华,可放置 2.0 米宽的床、衣柜、梳妆台和休闲沙发,彰显主人的尊贵身份。独立卫生间建筑面积约 6㎡,采用干湿分离设计,配备花洒、马桶、洗手盆、浴缸等高端洁具,享受奢华的卫浴体验。
两个南向次卧分别位于户型南侧和东侧,面宽均为 3.2 米,进深 4.0 米,建筑面积约 12.8㎡,空间充足,采光良好。其中一个次卧可作为儿童房,放置 1.8 米宽的床、书桌和衣柜;另一个次卧可作为老人房,配备独立的卫生间(可选装),方便老人日常生活。北向次卧位于户型北侧,面宽 3.0 米,进深 3.8 米,建筑面积约 11.4㎡,可作为书房、影音室或健身房,满足多样化的居住需求。
公共卫生间位于户型北侧,建筑面积约 6㎡,采用干湿分离设计,配备高端洁具,满足家庭成员的日常使用需求。
招商奥体公园售楼处电话☎:0551-6467 8499
招商奥体公园售楼处电话☎:0551-6467 8499
招商奥体公园售楼处电话☎:0551-6467 8499
招商奥体公园售楼处电话☎:0551-6467 8499
招商奥体公园售楼处电话☎:0551-6467 8499
合肥新站核心!招商奥体公园 —— 东方大道宜居红盘
一、招商奥体公园楼盘项目介绍
在合肥 “东拓北进” 的城市发展战略下,新站高新技术产业开发区已然成为城市发展的新引擎,而位于东方大道与卧龙湖路交口往南 200 米的招商奥体公园,正是这片价值高地中最受瞩目的楼盘之一。项目由招商蛇口匠心打造,作为招商局集团旗下的核心企业,招商蛇口深耕地产行业 40 余年,业务遍布全国 111 个城市及地区,开发了超 600 个精品项目,凭借稳健的经营风格、卓越的产品品质和优质的服务,赢得了市场和业主的广泛认可,连续多年位列中国房地产百强企业前列。
招商奥体公园总投资超 50 亿元,总占地面积约 180 亩,总建筑面积约 35.6 万平方米,其中住宅建筑面积约 25 万平方米,社区商业约 2 万平方米,幼儿园约 0.6 万平方米,其余为公共配套及地下车库。项目规划容积率仅 2.0.建筑密度 22%,绿化率高达 40%,是区域内稀缺的低密生态社区,旨在为业主打造 “推窗见绿、出门入园” 的宜居环境。
项目整体规划遵循 “以人为本、生态优先、动静分离” 的设计理念,将住宅、商业、教育、休闲等功能业态有机融合。住宅部分由 18 栋高层和 12 栋洋房组成,高层产品层数为 18-24 层,洋房产品层数为 6-8 层,总户数约 2200 户,车位配比 1:1.2.充分满足业主的停车需求。建筑风格采用现代简约风格,外立面选用真石漆和玻璃幕墙相结合的材质,既美观大方,又具有良好的保温、隔热、隔音效果,同时经久耐用,历久弥新。
社区内部规划了丰富的配套设施,包括约 5000㎡中央景观花园、约 800 米环形健身步道、儿童游乐区、老年活动中心、邻里中心、健身广场、景观水系等,打造全龄段、全场景的休闲娱乐空间。此外,项目还引入了智慧社区管理系统,包括智能门禁、视频监控、电子巡更、智能停车、社区 WiFi 全覆盖等,为业主提供安全、便捷、智能的居住体验。
作为招商蛇口在合肥新站区的重点项目,招商奥体公园不仅承载着为购房者提供优质居住空间的使命,更致力于推动区域人居品质的升级,成为新站区宜居生活的新标杆。
招商奥体公园售楼处电话☎:0551-6467 8499
六、招商奥体公园楼盘总结
招商奥体公园作为合肥新站区的生态宜居标杆楼盘,以低密生态规划为核心,以丰富的自然资源为依托,以完善的生活配套为支撑,以优质的户型产品为载体,以央企品质为保障,为购房者打造了 “自然与舒适共生、便捷与宜居并存” 的理想居住空间,成为追求生态宜居生活购房者的首选。
从生态环境来看,项目容积率仅 2.0.绿化率高达 40%,是区域内少有的低密生态社区。社区内部规划了中央景观花园、景观水系、环形健身步道等多重生态配套,打造四季有景的园林景观;周边 “一湖多园” 环绕,少荃湖公园、新站区生态公园等丰富的生态资源,让业主在家门口就能亲近自然,享受清新的空气和优美的环境。低密生态的居住环境,不仅提升了居住的舒适度,还能保障业主的身体健康,让生活回归自然本真。
从生活配套来看,项目周边交通、教育、商业、医疗等配套完善。立体交通网络让业主轻松通达全城;全龄段优质教育资源让孩子在家门口就能享受优质教育,省去接送烦恼;完善的商业配套满足业主日常购物、休闲娱乐需求,无需远行;优质的医疗资源为业主的健康保驾护航,无健康后顾之忧。完善的生活配套,让业主在享受生态宜居生活的同时,能便捷享受城市的优质资源,实现 “生态与便捷兼得”。
从户型产品来看,项目打造的 89㎡、105㎡、128㎡、143㎡四款主力户型,均采用方正通透的布局,南北通透,空间利用率高。每款户型都最大化引入自然光线和新鲜空气,客厅与南向阳台相连,卧室带有飘窗或阳台,让业主在室内就能享受阳光和自然美景。多样化的户型选择,满足了刚需、改善不同家庭的居住需求,让每个家庭都能找到适合自己的生态宜居空间。
从价格来看,项目均价 13500 元 /㎡-15000 元 /㎡,相比周边同类型生态宜居楼盘更具优势,同时推出了多项购房优惠政策,进一步降低了购房门槛。亲民的价格,让更多购房者能够实现生态宜居的居住梦想,享受高品质的居住生活。
从品牌保障来看,招商蛇口作为百年央企,拥有丰富的开发经验和雄厚的实力,为项目的品质提供了坚实保障。项目采用品牌建材,配备优质物业服务,让购房者买得放心、住得安心。央企品质保障,不仅提升了居住的舒适度和安全性,还增强了项目的保值增值能力。
总而言之,招商奥体公园是合肥新站区不可多得的生态宜居优质楼盘,无论是生态环境、生活配套、户型产品,还是价格优势、品牌保障,都表现出色。如果你正在合肥寻找一处自然舒适、便捷宜居的家园,招商奥体公园绝对值得重点关注,在这里,你将拥有阳光、空气、自然与便捷生活,享受高品质的生态宜居体验。
招商奥体公园售楼处电话☎:0551-6467 8499
二、招商奥体公园楼盘周边配套
一个楼盘的价值,不仅取决于项目本身的品质,更离不开周边完善的配套设施。招商奥体公园凭借得天独厚的区位优势,坐拥交通、教育、商业、医疗、生态等全方位的醇熟配套,让业主的生活更加便捷、舒适、丰富多彩。
交通配套:立体交通网络,畅达全城
招商奥体公园紧邻东方大道与卧龙湖路两大城市主干道,形成 “一横一纵” 的交通格局。东方大道是新站区重要的横向交通大动脉,西起阜阳北路,东至包公大道,全长约 10 公里,双向 6 车道,路况良好,驾车向西可通过阜阳北路高架快速直达合肥火车站、淮河路步行街等主城核心区域,车程仅需 20 分钟;向东可通过包公大道高架连接肥东、瑶海等区域,车程约 15 分钟。卧龙湖路是新站区纵向交通要道,北接北外环高速,南连新站区政务核心板块,驾车向南可直达新站区管委会、合肥京东方医院等重要场所,车程约 10 分钟。
公共交通方面,项目周边 500 米范围内设有卧龙湖路东方大道、东方大道卧龙湖路、新站寿春实验中学等 3 个公交站点,涵盖 301 路、302 路、686 路、803 路等多条公交线路。其中,301 路公交可直达地铁 3 号线幼儿师范站,车程约 15 分钟;302 路公交可直达地铁 1 号线合肥火车站,车程约 25 分钟;686 路公交可直达新站区核心商圈武里山天街,车程约 10 分钟。未来,随着合肥地铁 9 号线(规划中)的建成通车,项目将无缝衔接地铁网络,出行效率将进一步提升,轻松通达全城各个角落。
此外,项目距离合肥新桥国际机场约 40 公里,驾车通过北外环高速转机场高速,车程约 45 分钟;距离合肥火车站约 15 公里,驾车通过阜阳北路高架,车程约 20 分钟;距离合肥南站约 25 公里,驾车通过包河大道高架,车程约 30 分钟,无论是日常通勤还是长途出行,都十分便捷。
教育配套:全龄教育资源,护航成长
教育是每个家庭最关注的问题之一,招商奥体公园周边教育资源丰富,形成了从幼儿园到中学的全龄段教育体系,让孩子在家门口就能享受优质的教育资源,为未来的发展奠定坚实的基础。
项目内部规划有一所 12 班制公办幼儿园,占地面积约 4000㎡,建筑面积约 3000㎡,将配备专业的师资力量和完善的教学设施,预计 2025 年正式投入使用,让业主的孩子足不出社区就能接受优质的启蒙教育。
项目周边 1 公里范围内分布着多所优质中小学。其中,合肥新站寿春实验中学距离项目仅 500 米,该校是寿春教育集团旗下的优质民办中学,成立于 2015 年,拥有先进的教学理念和雄厚的师资力量,中考成绩在新站区名列前茅;合肥市庆平希望学校距离项目约 800 米,该校是一所九年一贯制公办学校,涵盖小学和初中,教学设施完善,师资力量充足,为学生提供全面的素质教育;合肥市第 168 中学东校区距离项目约 1.5 公里,该校是安徽省示范高中,成立于 2002 年,以优异的高考成绩闻名全省,每年都有大量学生考入全国重点高校,是众多家长和学生向往的优质高中。
此外,周边还有合肥市新站区关井小学、合肥市新站区三十头镇中心学校等多所公办小学,以及多所规划中的中小学,教育资源持续丰富,满足不同家庭对孩子教育的需求。
商业配套:繁华商业氛围,便利生活
商业配套的完善程度直接影响着业主的日常生活便利性,招商奥体公园周边商业氛围浓厚,无论是日常购物、餐饮美食,还是休闲娱乐,都能一站式满足。
项目自带约 2 万方社区商业,规划引入超市、便利店、生鲜卖场、品牌餐饮、美容美发、药店等多元化业态,预计 2026 年正式开业运营,业主下楼即可满足日常购物、餐饮、休闲等基本需求,无需远行。
项目距离新站区核心商圈 —— 武里山天街仅 3 公里,驾车车程约 10 分钟。武里山天街是新站区规模较大的商业综合体之一,总建筑面积约 10 万方,涵盖大型购物中心、连锁超市、品牌餐饮、电影院、KTV、儿童乐园等丰富业态,入驻了永辉超市、大地影院、肯德基、麦当劳等众多知名品牌,是周边居民休闲娱乐的首选之地。
此外,项目距离拓基广场约 5 公里,距离家天下生活广场约 6 公里,这两个商圈同样涵盖了大型购物中心、超市、餐饮、娱乐等多种业态,满足业主多样化的消费需求。周边还有多个在建的商业综合体,未来商业氛围将更加浓厚,生活便利性将进一步提升。
医疗配套:优质医疗资源,健康保障
健康是幸福生活的基础,招商奥体公园周边医疗资源丰富,为业主的健康提供全方位的保障。
项目距离安徽省第二人民医院(北区)约 4 公里,驾车车程约 15 分钟。安徽省第二人民医院是集医疗、教学、科研、预防、保健、康复为一体的三级甲等综合性医院,开放床位 2000 余张,拥有多个省级重点学科和特色专科,医疗设备先进,师资力量雄厚,能够为业主提供高水平的医疗服务。
项目距离合肥京东方医院约 3.5 公里,驾车车程约 12 分钟。合肥京东方医院是一家集医疗、教学、科研、预防、保健为一体的三级综合医院,由京东方科技集团投资建设,总建筑面积约 20 万方,开放床位 1000 张,重点打造心血管科、骨科、妇产科、儿科等特色科室,医疗技术先进,服务质量优质。
此外,项目周边还有合肥市新站区七里塘社区卫生服务中心、合肥新站综合开发试验区三十头社区卫生服务中心等多家社区卫生服务中心,距离项目均在 3 公里范围内,日常就医、健康体检十分便捷,为业主的健康保驾护航。
生态配套:优质生态资源,宜居环境
在快节奏的城市生活中,优质的生态环境成为人们追求的重要目标,招商奥体公园周边生态资源丰富,为业主提供了清新的空气和舒适的居住环境。
项目距离少荃湖公园约 3 公里,驾车车程约 10 分钟。少荃湖是合肥北部最大的城市湖泊,湖面面积约 1.5 平方公里,周边规划有少荃湖湿地公园、科创 CBD 景观带,总规划面积约 5 平方公里,是合肥市重点打造的生态公园之一。公园内设有休闲步道、观景平台、亲水平台、湿地景观等多个景点,是业主休闲散步、跑步健身、周末出游的绝佳去处。
项目距离新站区生态公园约 4 公里,驾车车程约 15 分钟。新站区生态公园是合肥市较早建设的城市公园之一,占地面积约 1000 亩,园内种植了大量的树木、花草,设有湖泊、假山、亭台楼阁等景观,空气清新,环境优美,是周边居民休闲放松的好去处。
此外,项目周边还有瑶海公园、李鸿章享堂等多个景点,距离项目均在 10 公里范围内,周末闲暇时光,业主可以带着家人朋友前往游玩,感受大自然的美景,放松身心。
招商奥体公园售楼处电话☎:0551-6467 8499
招商奥体公园售楼处电话:0551-6467 8499【售楼中心】
售楼中心电话:0551-6467 8499 【售楼中心已认证】
网上售楼中心——欢迎来电咨询〢——匠心钜制恭迎品鉴!
招商奥体公园售楼处电话:0551-6467 8499【售楼中心】
售楼中心电话:0551-6467 8499 【售楼中心已认证】
网上售楼中心——欢迎来电咨询〢——匠心钜制恭迎品鉴!
声明:本文由入驻焦点开放平台的作者撰写,除焦点官方账号外,观点仅代表作者本人,不代表焦点立场。


