官网年度聚焦 @琥珀星樾湾楼盘户型图
扫描到手机,新闻随时看
扫一扫,用手机看文章
更加方便分享给朋友
琥珀星樾湾售楼处电话:0551-6465 8844【售楼中心】
◆◆◆售楼中心电话:0551-6465 8844 【售楼中心已认证】
◆◆◆网上售楼中心——欢迎来电咨询〢——匠心钜制恭迎品鉴!◆◆◆
合肥包河区琥珀星樾湾 —— 改善人群理想家!低密洋房 + 公园配套,主城生活再升级
琥珀星樾湾楼盘项目介绍
对于改善人群而言,买房不仅是 “换个大一点的房子”,更是对 “生活品质” 的追求 —— 低密的社区环境、优质的户型设计、可靠的开发品牌,缺一不可。而合肥包河区的琥珀星樾湾,恰好精准契合了改善人群的这些需求,以 “国企开发 + 低密洋房 + 主城核心” 的组合,成为包河区改善市场的 “标杆项目”。
项目由合肥本土国企 —— 琥珀置业开发,作为合肥城建旗下的核心品牌,琥珀置业深耕合肥 20 余年,打造了琥珀山庄、琥珀五环城、琥珀东华府等多个高端项目,始终以 “精工品质” 著称,尤其是在改善型住宅开发方面,有着丰富的经验。此次打造的琥珀星樾湾,更是将 “改善基因” 贯彻到底:项目总占地面积约 68 亩,总建筑面积约 12.5 万㎡,但容积率仅 2.2.绿化率高达 40%,这样的 “低密高绿” 指标,在寸土寸金的包河区主城板块极为罕见 —— 要知道,周边多数改善楼盘的容积率都在 2.5 以上,而琥珀星樾湾通过降低容积率,为业主争取到了更宽的楼间距、更大的景观空间,从根源上提升了居住舒适度。
社区规划上,琥珀星樾湾采用 “高层 + 洋房” 的高低配布局,共 10 栋住宅,其中 4 栋为 11 层洋房(占比 40%),6 栋为 18-22 层高层,总户数约 890 户,洋房户型面积为 125-140㎡,专为改善家庭设计。洋房产品采用 “一梯两户” 设计,相比高层的 “两梯四户”,不仅等待电梯的时间更短,而且居住人口更少,社区更安静,私密性更强;同时,洋房的得房率高达 85%,比高层高出 7 个百分点,以 140㎡洋房为例,实际使用面积比同面积高层多近 10㎡,相当于多了一个书房,空间利用率更高。
建筑品质上,琥珀星樾湾更是 “不计成本”:洋房外立面采用 “干挂石材 + 真石漆” 组合,不仅美观大气,而且耐老化、抗腐蚀,多年后依然能保持崭新的外观;高层外立面采用 “保温一体板”,隔音隔热效果优于普通涂料,冬季室内温度比周边小区高 3-5℃,夏季更凉爽,节省空调费用;社区公共区域如入户大堂、电梯间、地下车库均采用 “精装标准”,大堂吊顶采用石膏线装饰,地面铺设大理石,电梯间墙面贴瓷砖,地下车库采用环氧地坪,从细节处彰显改善盘的品质。

琥珀星樾湾售楼处电话☎:0551-6465 8844
琥珀星樾湾楼盘总结
综合来看,琥珀星樾湾是合肥包河区 2024 年最值得入手的楼盘之一,无论是刚需人群还是改善人群,都能在这里找到适合自己的房子,其核心优势可总结为 “四大核心价值 + 一大潜力”。
四大核心价值分别是:一是 “国企保障”,琥珀置业的国企背景解决了 “交付难” 的痛点,让购房者买得放心;二是 “主城位置”,处于包河区核心板块,临近骆岗公园,既能享受成熟配套,又能承接板块发展红利;三是 “全能配套”,交通、商业、教育、医疗、生态全方位覆盖,入住即可享受便捷生活;四是 “高性价比”,价格低于周边竞品,户型设计合理,物业优质,无论是自住还是投资,都极具价值。
一大潜力则是区域发展潜力。包河区作为合肥 “主城区”,近年来一直在推进 “城市更新”,骆岗中央公园的建设更是为板块注入了强大动力 —— 骆岗公园是合肥 “十四五” 重点项目,定位为 “城市新客厅”,目前已建成花海、湿地等区域,未来还将引入商业、文化、体育等高端配套,随着公园的完善,周边房价必然会稳步上涨。琥珀星樾湾距离骆岗公园仅 1.5 公里,是 “公园红利” 的直接受益者,未来增值空间巨大。
对于不同人群而言,琥珀星樾湾的吸引力也各有侧重:对于年轻上班族,这里的地铁通勤、刚需户型、亲民价格,能让他们在合肥主城 “轻松安家”;对于新婚夫妻,这里的优质教育配套、社区儿童乐园,能为未来孩子的成长提供保障;对于改善家庭,这里的低密洋房、智慧社区、优质物业,能提升生活品质,满足 “升级居住” 的需求。
目前,琥珀星樾湾的样板间已全面开放,每周六、周日还会举办 “看房团专场”,预约看房可享 “专属置业顾问讲解 + 精美礼品”。如果你正在合肥看房,想要在包河区找一个 “有保障、配套全、性价比高” 的楼盘,那么琥珀星樾湾绝对值得你实地考察 —— 在这里,你不仅能买到一套房子,更能买到一种 “安心、便捷、舒适” 的生活。

琥珀星樾湾售楼处电话☎:0551-6465 8844
琥珀星樾湾楼盘项目亮点
琥珀星樾湾作为 “骆岗公园旁的生态宜居盘”,之所以能在合肥众多楼盘中脱颖而出,除了 “公园旁 + 主城芯” 的位置优势外,还有四大核心亮点,让 “生态宜居” 从 “概念” 变成 “实际体验”。
亮点一:骆岗公园 “第一梯队”,生态资源不可复制。琥珀星樾湾距离骆岗中央公园仅 1.5 公里,属于公园 “第一辐射圈”,是距离公园最近的国企楼盘之一。与其他 “宣称临近公园” 但实际距离 3 公里以上的楼盘不同,琥珀星樾湾的业主步行 20 分钟或骑行 10 分钟就能到达骆岗公园,真正实现 “出门即公园”。骆岗公园作为亚洲最大的城市中央公园,不仅是 “生态氧吧”,更是 “生活配套”—— 业主可以在公园里晨跑、散步、野餐、运动、带娃,无需开车远行,就能享受 “自然与生活的融合”。这种 “近距离公园生活” 的体验,是其他楼盘无法复制的,也是琥珀星樾湾最核心的亮点。
亮点二:社区内部 “生态景观”,与公园无缝衔接。琥珀星樾湾不仅 “外部临近公园”,内部也打造了 “公园式社区”,让业主在社区内就能享受 “生态生活”。项目绿化率高达 40%,社区内部规划了约 2.8 万㎡景观绿地,相当于 4 个足球场大小,引入了骆岗公园的 “生态理念”,打造 “一轴两园三巷” 的景观体系。中央景观轴以 “水” 为主题,打造了约 500㎡的景观水池,搭配喷泉、水生植物,营造 “亲水生活”;两个主题花园分别种植樱花和桂花,春季樱花盛开、秋季桂花飘香,四季有景;三条特色巷道种植银杏、紫薇、海棠,打造 “一步一景” 的体验。此外,社区还规划了 “屋顶绿化” 和 “垂直绿化”,在高层屋顶种植绿植,在洋房墙面种植爬藤植物,进一步提升社区的绿化覆盖率,让社区内部景观与骆岗公园的外部景观 “无缝衔接”,业主在家门口就能享受 “公园般的环境”。
亮点三:绿色建筑标准,节能环保宜居。琥珀星樾湾严格按照 “国家绿色建筑二星级标准” 打造,从建材选择到施工工艺,都注重 “节能环保”,既减少对环境的破坏,又提升业主的居住舒适度。项目外墙采用 “保温一体板”,保温隔热效果优于普通涂料,冬季室内温度比周边小区高 3-5℃,夏季低 2-3℃,每年可节省空调费用约 2000 元;窗户选用断桥铝双层中空玻璃,隔音效果好,可隔绝外界 80% 以上的噪音,即使临近主干道,室内也能保持安静;社区采用 “雨水回收系统”,收集雨水用于灌溉社区绿植和冲洗路面,既节约水资源,又减少物业费支出;此外,社区还规划了 “太阳能路灯” 和 “充电桩车位”,太阳能路灯利用太阳能发电,减少能源消耗,充电桩车位满足新能源车主的充电需求,符合 “绿色环保” 理念。
亮点四:生态友好型社区配套,满足健康生活需求。为了匹配 “生态宜居” 的定位,琥珀星樾湾打造了一系列 “生态友好型配套”,满足业主的 “健康生活需求”。社区内规划了 500 米的 “生态健身步道”,步道采用环保材料铺设,周边种植绿植,业主可以在步道上晨跑、夜跑,呼吸新鲜空气;设置了 “户外健身区”,配备健身器材,如跑步机、单杠、双杠等,方便业主户外健身;打造了 “儿童生态乐园”,采用天然材料如木材、沙子、石头等,避免塑料污染,让孩子在自然环境中玩耍,培养环保意识;此外,社区还规划了 “社区农场”,业主可以租用小块土地种植蔬菜、花卉,体验 “农耕生活”,既锻炼身体,又能收获新鲜蔬菜,享受 “生态生活” 的乐趣。
这些亮点让琥珀星樾湾不仅是一个 “靠近公园的楼盘”,更是一个 “生态宜居的社区”,让业主真正享受 “在公园里生活,在自然中呼吸” 的品质生活。

琥珀星樾湾售楼处电话☎:0551-6465 8844
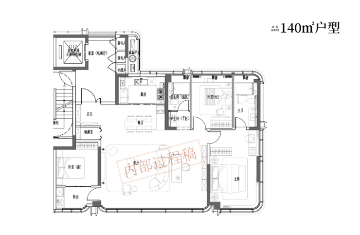
琥珀星樾湾楼盘户型解析
上班族对户型的需求,核心是 “实用、便捷、舒适”—— 既要满足 “休息、做饭、储物” 的基础需求,又要避免 “空间浪费”,还要兼顾 “偶尔招待朋友” 的需求。琥珀星樾湾针对上班族的 “通勤生活习惯”,设计了 95㎡、110㎡两款主力刚需户型,以及 125㎡改善户型,每一款都精准匹配不同阶段上班族的需求。
95㎡三室两厅一卫(单身 / 新婚上班族户型):小空间,高利用该户型专为 “单身上班族” 或 “新婚夫妻上班族” 设计,95㎡的紧凑空间,做到 “三室 + 全明”,无浪费面积,满足 “休息 + 办公 + 储物” 需求。户型采用 “三开间朝南” 布局,客厅、主卧、次卧均朝南,南向面宽达 9.8 米,确保 “休息区” 和 “活动区” 采光充足 —— 上班族白天上班,晚上回家需要 “明亮的空间” 缓解疲劳,客厅和主卧的充足采光,能让人心情更舒畅。客厅面宽 3.6 米,进深 4.5 米,餐客一体空间总面积约 16㎡,划分 “休息区”(摆放 L 型沙发 + 1.2 米茶几)和 “简易办公区”(靠近阳台一侧,摆放 1.2 米书桌),解决 “偶尔在家办公” 的需求 —— 下班后若有未完成的工作,可在书桌前处理,避免在床上办公影响休息;周末可在沙发上看电视、刷剧,放松身心。主卧面积约 12㎡,带 270° 飘窗,飘窗台面铺设大理石,可作为 “休闲区”—— 睡前坐在飘窗上看书、刷手机,或周末晒太阳,享受 “独处时光”;主卧摆放 1.8 米床 + 2 个床头柜 + 衣柜后,依然留有走动空间,不显得拥挤;衣柜采用 “顶天立地” 设计,储物空间充足,适合上班族存放四季衣物。次卧面积约 10㎡,可作为 “客房” 或 “储物间”—— 若有朋友偶尔来住,可摆放 1.5 米床;若暂时用不到,可改造成 “储物间”,存放行李箱、换季衣物、健身器材等,避免客厅杂乱。书房面积约 8㎡,可作为 “专属办公区” 或 “兴趣区”—— 摆放 1.2 米书桌 + 书柜,适合需要经常在家办公的上班族;或改成 “健身区”,摆放瑜伽垫、哑铃,下班后在家运动,无需去健身房。厨房采用 U 型设计,操作台面长达 2.8 米,“洗菜 - 切菜 - 炒菜” 动线合理,即使是 “厨房小白” 也能轻松操作;厨房预留了 “双开门冰箱位”(宽度 1.2 米),适合上班族储存速食、饮料、水果;厨房连接生活阳台,可放置洗衣机和杂物,保持厨房整洁。公共卫生间面积约 5㎡,做到 “干湿分离”,安装 “智能马桶”(支持加热、冲洗功能),冬天使用更舒适;卫生间预留了 “收纳柜” 位置,可存放洗漱用品、洗衣液等,避免台面杂乱;上班族早上洗漱、晚上洗澡,无需排队,使用便捷。
110㎡三室两厅两卫(三口之家上班族户型):功能全,更舒适该户型专为 “有孩子的上班族夫妻” 设计,在 95㎡户型的基础上,增加了一个卫生间,提升 “居住舒适度” 和 “私密性”,满足 “三口之家” 的生活需求。户型采用 “三开间朝南 + 南北通透” 布局,南向面宽达 10.5 米,客厅、主卧、次卧(儿童房)均朝南,北向为书房和厨房,空气对流性好,室内更干爽 —— 上班族平时没时间经常打扫,南北通透的户型能减少 “潮湿发霉”,降低家务负担。客厅面宽 3.9 米,进深 5 米,餐客一体空间总面积约 19.5㎡,划分 “家庭互动区”(摆放沙发、茶几、电视)和 “儿童游戏区”(靠近阳台,设置收纳式玩具柜)—— 下班后可陪孩子在游戏区玩耍,或全家一起看电视,增进亲子感情;周末可邀请同事、朋友来家聚餐,空间足够容纳 6-8 人。主卧采用 “套房设计”,面积约 15㎡,配备独立卫生间,满足上班族夫妻的 “私密性” 需求 —— 早上夫妻双方可同时洗漱,避免抢卫生间;晚上下班后可在独立卫生间泡澡放松,不影响孩子休息。主卧带 3.2 米宽飘窗,飘窗旁设置 “梳妆台”,女主人可化妆,男主人可在窗边看书,互不干扰;主卧衣柜采用 “步入式设计”,储物空间充足,可存放夫妻双方的衣物、配饰。儿童房面积约 11㎡,靠近主卧,方便上班族夫妻照顾孩子 —— 摆放 1.5 米床 + 书桌 + 衣柜,孩子可在房间学习、休息;房间预留了 “玩具收纳区”(墙面安装置物架),避免玩具散落客厅;儿童房朝南,采光充足,有利于孩子健康成长。书房面积约 9㎡,可作为 “上班族专属办公区”—— 摆放 1.4 米书桌 + 书柜,配备台灯、打印机,适合需要经常在家加班的上班族;书房与客厅之间采用 “玻璃隔断”,既能保持安静,又能看到客厅孩子的动态,兼顾 “工作” 与 “带娃”。公共卫生间面积约 5㎡,位于儿童房和书房之间,方便孩子和客人使用;卫生间做到 “干湿分离”,安装 “儿童马桶圈”(可拆卸)和 “洗手台台阶”(方便孩子自主洗漱),减少上班族的 “带娃负担”。厨房采用 L 型设计,操作台面长达 3.2 米,预留了 “嵌入式烤箱” 和 “洗碗机” 位置 —— 上班族周末可烤蛋糕、做饭,洗碗机则能减少 “洗碗时间”,多陪伴家人;厨房连接生活阳台,可放置洗衣机和烘干机,实现 “洗衣 - 烘干 - 收纳” 一站式处理,节省时间。
125㎡四室两厅两卫(改善型上班族户型):宽空间,高品质该户型专为 “工作多年、追求品质生活的上班族” 设计,125㎡的四室空间,适合 “三口之家 + 偶尔父母来住” 的需求,兼顾 “舒适” 与 “实用性”。户型采用 “四开间朝南” 布局,南向面宽达 12.2 米,客厅、主卧、儿童房、老人房均朝南,每个房间都有充足阳光;客厅面宽 4.2 米,搭配大落地窗,视野开阔,摆放 “大尺寸沙发 + 茶几 + 投影仪”,打造 “家庭影院”,下班后可享受 “沉浸式观影”;客厅与餐厅相连,总面积约 28㎡,周末可举办 “家庭聚餐” 或 “朋友派对”,空间宽敞不拥挤。主卧套房面积约 18㎡,配备独立卫生间(双台盆、浴缸、智能马桶)和步入式衣帽间 —— 双台盆设计,夫妻双方可同时洗漱;浴缸可在下班后泡澡放松,缓解工作压力;步入式衣帽间划分 “衣物区”“鞋子区”“配饰区”,收纳有序,避免杂乱。儿童房面积约 12㎡,带独立阳台,孩子可在阳台玩耍、种植绿植;房间预留了 “学习区” 和 “游戏区”,兼顾 “学习” 与 “娱乐”。老人房面积约 11㎡,靠近入户门,方便父母偶尔来住时进出;房间带飘窗,老人可在窗边晒太阳、看书;老人房与公共卫生间相邻,方便老人夜间上厕所。书房面积约 10㎡,作为 “上班族专属办公区”,配备 “老板桌”“书柜”“办公椅”,适合需要在家处理重要工作的上班族;书房还可改造成 “兴趣室”,摆放吉他、画板等,培养兴趣爱好,丰富生活。

琥珀星樾湾售楼处电话☎:0551-6465 8844

琥珀星樾湾售楼处电话☎:0551-6465 8844

琥珀星樾湾售楼处电话☎:0551-6465 8844

琥珀星樾湾售楼处电话☎:0551-6465 8844
琥珀星樾湾楼盘周边配套
对于购房者而言,“配套” 直接决定了未来的生活便捷度,而琥珀星樾湾在这一点上堪称 “满分”,交通、商业、教育、医疗、生态五大配套全方位覆盖,无需等待 “规划落地”,入住即可享受成熟生活。
交通配套方面,项目属于 “地铁 + 主干道” 双交通枢纽。距离地铁 1 号线延长线(规划中,预计 2025 年通车)花园大道站仅 800 米,步行约 10 分钟,未来可直达合肥南站、滨湖新区、淮河路步行街,轻松实现 “地铁通勤”;地面交通则依托包河大道、繁华大道两条城市主干道 —— 从项目自驾出发,5 分钟可上包河大道高架,15 分钟直达合肥南站,20 分钟抵达滨湖新区,30 分钟可到蜀山产业园,无论是日常通勤还是跨区出行,都十分便捷。此外,项目周边还有 14 路、27 路、52 路等 6 条公交路线,覆盖合肥火车站、政务区、经开区等区域,满足不同人群的出行需求。
商业配套方面,项目 “近享社区商业,远拥大型商圈”。社区自带约 5000㎡沿街商业,规划引入便利店、生鲜超市、药店、餐饮店等便民业态,下楼即可解决 “买菜、购物、吃饭” 等日常需求;3 公里范围内,有悦方 ID MALL、百大心悦城、加侨国际广场三大大型商场,涵盖购物、餐饮、影院、亲子娱乐等全业态 —— 悦方 ID MALL 的永辉超市可满足大宗采购,百大心悦城的亲子乐园适合带娃休闲,加侨国际广场的美食街则是朋友聚餐的好去处,无需长途奔波,即可享受一站式消费体验。
教育配套方面,项目周边 3 公里内有 5 所幼儿园、3 所小学、2 所中学,形成 “15 年一贯制” 教育圈。其中,距离项目最近的是包河区实验幼儿园(约 500 米),是公办一级幼儿园,师资稳定、收费合理;小学方面,项目划片范围大概率覆盖屯溪路小学(滨湖校区),该校是合肥知名公办小学,教学质量位列包河区前列,步行仅需 15 分钟;中学则有合肥市第四十八中学(望湖校区),距离项目约 2 公里,是合肥重点初中,历年中考成绩稳居全市前十。对于有孩子的家庭而言,无需 “孟母三迁”,在家门口就能享受优质教育资源,既省去了接送的麻烦,也给孩子更多休息时间。
医疗与生态配套同样亮眼。医疗方面,项目 2 公里内有包河区人民医院(二级综合医院),日常感冒、发烧、体检均可在此解决;5 公里内有安徽省立医院南区(三级甲等医院),是合肥顶尖的综合医院,可满足大病诊疗需求,为家人健康保驾护航。生态方面,项目西距骆岗中央公园仅 1.5 公里,该公园是亚洲最大的城市中央公园,总面积约 12.7 平方公里,涵盖湿地、花海、运动场馆等,周末带家人散步、野餐、运动都十分惬意;此外,项目北邻十五里河生态公园,沿河岸打造了健身步道,适合晨跑、夜跑,真正实现 “把家安在公园里”。

琥珀星樾湾售楼处电话☎:0551-6465 8844
琥珀星樾湾楼盘价格
对于追求 “生态宜居” 的购房者而言,最关心的问题莫过于 “是否要为‘公园旁’的位置支付过高的价格”。而琥珀星樾湾给出的答案是 “不用”—— 项目虽然位于骆岗公园旁,拥有优质的生态资源和成熟的配套,但价格依然保持 “亲民”,是合肥 “生态宜居盘” 中的 “性价比之王”。
从区域生态盘价格来看,骆岗公园周边 2024 年新房均价约 2.0-2.4 万 /㎡,其中距离公园 1-2 公里范围内的楼盘均价已达 2.2-2.4 万 /㎡,而琥珀星樾湾距离骆岗公园仅 1.5 公里,均价却仅 1.7-1.9 万 /㎡,低于周边竞品 10%-20%。具体来看,刚需户型(95㎡、110㎡)单价 1.7-1.8 万 /㎡,总价约 160-198 万;改善户型(125㎡、140㎡)单价 1.8-1.9 万 /㎡,总价约 225-266 万。这个价格在 “骆岗公园旁” 的楼盘中堪称 “洼地”—— 对比周边同位置的生态盘,如 XX 公园府的 95㎡户型总价约 180-190 万,琥珀星樾湾能省 20-2 万;对比滨湖新区的生态盘,那些区域的均价已达 1.9-2.2 万 /㎡,但距离骆岗公园更远,配套也不如琥珀星樾湾成熟,买琥珀星樾湾相当于 “用更低的价格,买更好的位置和配套”。
更重要的是,琥珀星樾湾的 “价格” 与 “价值” 完全匹配,甚至 “价值远超价格”。首先,“骆岗公园旁” 的位置具有 “不可复制性”—— 骆岗公园是亚洲最大的城市中央公园,未来将成为合肥的 “城市新客厅”,周边土地资源稀缺,随着公园的完善,房价必然会稳步上涨,现在以 1.7-1.9 万 /㎡的价格入手,未来增值空间巨大;其次,项目的 “生态价值” 无法用价格衡量 —— 每天呼吸新鲜空气,饭后在公园散步,周末带孩子在公园玩耍,这些 “健康生活” 的体验,是远郊楼盘无法提供的,而琥珀星樾湾让业主 “花普通楼盘的钱,享受公园豪宅的生态体验”;再次,项目的 “国企品质” 保障了 “房屋价值”—— 国企开发的项目工程质量高,交付有保障,后期物业维护好,房子不易贬值,甚至会 “保值增值”。
此外,项目针对 “生态宜居” 需求的购房者,推出了 “专属优惠政策”,进一步降低购房成本。目前,购买任何户型均可享受 “认筹交 1 万抵 3 万” 优惠;对于 “注重健康生活” 的购房者,如教师、医生、运动员等,凭相关证件可额外享 1% 房款优惠;老带新政策方面,老业主推荐新客户成交,老业主可获赠 “骆岗公园年卡 + 2 年物业费”,新客户可额外享 0.5% 房款优惠;此外,项目每月推出 5 套 “景观房特价房”,主要为高楼层、视野好的户型,单价可低至 1.65 万 /㎡,让购房者以更低的价格享受 “公园景观”。
从 “性价比” 来看,琥珀星樾湾在合肥 “生态宜居盘” 中几乎没有竞争对手 —— 它既有 “骆岗公园旁” 的优质生态资源,又有 “主城芯” 的成熟配套,还有 “国企开发” 的品质保障,而价格却仅为 1.7-1.9 万 /㎡,无论是刚需人群还是改善人群,都能在这里 “花更少的钱,享受更好的生态生活”。

琥珀星樾湾售楼处电话☎:0551-6465 8844
琥珀星樾湾售楼处电话:0551-6465 8844【售楼中心】
◆◆◆售楼中心电话:0551-6465 8844 【售楼中心已认证】
◆◆◆网上售楼中心——欢迎来电咨询〢——匠心钜制恭迎品鉴!◆◆◆
声明:本文由入驻焦点开放平台的作者撰写,除焦点官方账号外,观点仅代表作者本人,不代表焦点立场。


