官网年度聚焦 @琥珀星樾湾售楼中心发布:尊享Vip1对1专业置业顾问讲解️️看房需要提前电话预约
扫描到手机,新闻随时看
扫一扫,用手机看文章
更加方便分享给朋友
琥珀星樾湾售楼处电话:0551-6465 8844【售楼中心】
◆◆◆售楼中心电话:0551-6465 8844 【售楼中心已认证】
◆◆◆网上售楼中心——欢迎来电咨询〢——匠心钜制恭迎品鉴!◆◆◆
合肥包河区琥珀星樾湾 —— 国企精工盘!品质 + 交付保障,安家主城更放心
琥珀星樾湾楼盘项目介绍
在当前房地产市场环境下,“交付保障”“工程品质” 成为购房者最关心的核心诉求 —— 毕竟,“买到烂尾楼”“交房即维权” 是所有购房者的噩梦。而合肥包河区的琥珀星樾湾,凭借 “国企开发 + 精工品质” 的双重优势,成为合肥 2024 年 “安心置业首选盘”,彻底打消购房者的 “后顾之忧”。
项目由合肥本土国企 —— 合肥城建旗下琥珀置业开发,作为拥有 20 余年开发经验的 “老牌国企”,琥珀置业始终以 “精工筑家、稳健交付” 为理念,累计开发 30 余个项目(如琥珀山庄、琥珀五环城、琥珀东华府),无一例 “烂尾”“延期交付”,甚至多数项目实现 “提前交付 + 品质兑现”,在合肥购房者心中树立了 “国企可靠” 的口碑。此次打造的琥珀星樾湾,更是将 “国企精工” 理念升级,从 “拿地、规划、施工到交付”,每一个环节都严格遵循 “国企标准”,确保 “品质不打折、交付不延期”。
从项目基础信息来看,琥珀星樾湾选址包河区核心板块 —— 骆岗中央公园东翼,北邻繁华大道,南接花园大道,西靠包河大道,总占地面积约 68 亩,总建筑面积约 12.5 万㎡,容积率 2.2.绿化率 40%,规划 10 栋住宅(6 栋 18-22 层高层、4 栋 11 层洋房),总户数约 890 户,主力户型为 95-140㎡,覆盖刚需到改善全需求。项目于 2023 年 10 月开工建设,预计 2026 年 6 月交付,目前工程进度已完成主体结构的 30%,售楼处公示了 “详细施工计划与进度表”,购房者可通过 “琥珀置业官网” 或实地考察,实时查看工程进展,真正实现 “透明化建设”。
“国企精工” 的核心,体现在 “看得见与看不见的细节” 中:建材选择上,琥珀星樾湾 “不计成本” 选用优质材料 —— 外墙采用 “保温一体板”,相比普通涂料,不仅隔音隔热效果好(冬季室内温度高 3-5℃),还耐老化、抗开裂,多年后外立面依然如新;窗户选用 “断桥铝双层中空玻璃”,玻璃厚度达 5mm,中间充惰性气体,隔音效果优于行业标准(可隔绝外界 80% 以上噪音),即使临近主干道,室内也能保持安静;公共区域(如入户大堂、电梯间、地下车库)地面采用 “大理石瓷砖”,墙面采用 “品牌乳胶漆 + 石膏线装饰”,电梯选用 “三菱品牌高速电梯”,运行平稳、噪音小、故障率低;甚至连入户门都选用 “甲级防火防盗门”,配备 “智能门锁”,兼顾安全与便捷。
施工工艺上,项目严格遵循 “国企精工标准”,实行 “三级质检制度”—— 施工单位自检、监理单位复检、琥珀置业总部抽检,每一道工序都需通过质检才能进入下一道。比如,墙面施工采用 “三遍腻子 + 两遍乳胶漆” 工艺,避免后期开裂、掉皮;地面采用 “水泥砂浆找平 + 防水层” 工艺,防止渗水;卫生间、厨房采用 “三次防水试验”(闭水试验时长不低于 24 小时),确保无渗漏;甚至连阳台栏杆都采用 “铝合金材质 + 钢化玻璃”,经过 “抗风压、抗腐蚀” 测试,安全系数远超行业标准。此外,项目还引入 “智慧工地系统”,通过摄像头实时监控施工过程,确保施工规范,避免 “偷工减料”。
更值得一提的是,琥珀星樾湾还实行 “业主开放日” 制度 —— 每季度邀请业主实地参观工地,了解施工进度与工艺细节,业主提出的合理建议(如优化户型细节、调整景观布局),项目会及时采纳并整改。这种 “透明化、互动式” 的建设模式,让购房者 “亲眼看到品质、亲身感受进度”,进一步增强 “安家信心”。

琥珀星樾湾售楼处电话☎:0551-6465 8844
琥珀星樾湾楼盘周边配套
对于 “生态宜居盘” 而言,“配套” 不仅要 “便捷”,更要 “与生态融合”—— 既要有成熟的生活配套,又要有优质的生态资源,而琥珀星樾湾的周边配套,恰好实现了 “生态与便捷的完美结合”。
生态配套是琥珀星樾湾的 “核心竞争力”,项目周边 3 公里内有三大生态公园,形成 “天然氧吧”,为业主提供 “出门即公园” 的生活体验。其中,最核心的是骆岗中央公园,距离项目仅 1.5 公里,该公园是合肥 “十四五” 重点项目,总面积约 12.7 平方公里,相当于 1700 多个足球场大小,目前已建成 “锦绣湖湿地”“城市花海”“运动公园”“儿童乐园” 等区域。锦绣湖湿地面积约 2.5 平方公里,湖水清澈,周边种植了芦苇、菖蒲等水生植物,栖息着白鹭、野鸭等鸟类,是观鸟、散步的好去处;城市花海面积约 1000 亩,种植了虞美人、波斯菊、向日葵等花卉,春季和秋季花开成片,是合肥著名的 “打卡地”;运动公园配备了足球场、篮球场、网球场、健身步道等设施,适合业主运动健身;儿童乐园则有滑梯、秋千、沙坑等游乐设施,是孩子的 “快乐天地”。
除了骆岗中央公园,项目北邻十五里河生态公园,距离约 800 米,该公园沿十五里河打造,长度约 5 公里,宽度约 200 米,种植了大量乔木、灌木和花卉,形成 “城市绿廊”。十五里河生态公园内规划了 “亲水平台”“骑行步道”“野餐草坪” 等区域,业主可以沿河岸骑行、散步,或者在草坪上野餐、放风筝,享受 “自然与生活的融合”。此外,项目东距包河公园约 3 公里,该公园是合肥历史悠久的公园之一,内有包公祠、包公墓等历史文化景点,既可以休闲散步,又可以感受合肥的历史文化。
生活配套方面,琥珀星樾湾同样 “成熟完善”,无需等待 “规划落地”,入住即可享受便捷生活。交通方面,项目临近地铁 1 号线延长线(规划中,2025 年通车)花园大道站,步行约 10 分钟,未来可直达合肥南站、滨湖新区、淮河路步行街;地面交通依托包河大道、繁华大道两条城市主干道,自驾到合肥南站 15 分钟、到滨湖新区 20 分钟、到政务区 30 分钟,通勤便捷。商业方面,项目 3 公里内有悦方 ID MALL、百大心悦城、加侨国际广场三大商场,涵盖购物、餐饮、影院、亲子娱乐等全业态,其中悦方 ID MALL 距离项目仅 2 公里,步行 20 分钟或自驾 5 分钟即可到达,满足业主的 “日常消费” 和 “品质消费” 需求。
教育与医疗配套也十分优质,为业主的 “宜居生活” 保驾护航。教育方面,项目划片范围大概率覆盖屯溪路小学(滨湖校区)和合肥市第四十八中学(望湖校区),这两所学校均为合肥优质公办学校,师资力量雄厚,教学质量高,孩子在家门口就能接受优质教育;医疗方面,项目 2 公里内有包河区人民医院(二级综合医院),5 公里内有安徽省立医院南区(三级甲等医院),日常就医和大病诊疗都十分方便。
可以说,琥珀星樾湾的周边配套,既满足了业主对 “生态宜居” 的追求,又保障了 “生活便捷”,真正实现了 “在公园里生活,在城市中便捷”。

琥珀星樾湾售楼处电话☎:0551-6465 8844
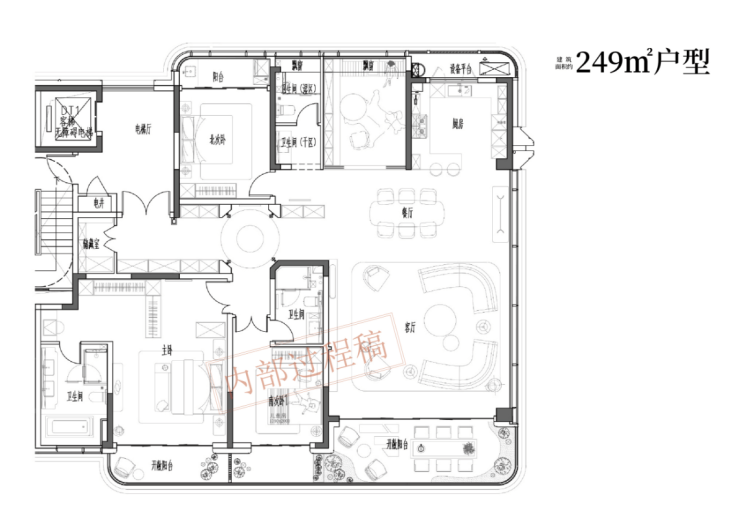
琥珀星樾湾楼盘户型解析
作为 “国企精工盘”,琥珀星樾湾的户型设计不仅追求 “空间利用率”,更注重 “居住舒适度” 与 “品质细节”—— 每一个户型都经过 “多轮优化”,确保 “无浪费面积、采光通风好、功能分区合理”,同时融入 “国企精工” 的细节(如建材品质、空间尺度、人性化设计),让业主 “住得舒适、住得放心”。
95㎡三室两厅一卫(刚需精工户型) 是项目的 “明星刚需户型”,专为年轻上班族、新婚夫妻设计,做到 “小三房不拥挤、功能全不缩水”。该户型采用 “三开间朝南” 布局,客厅、主卧、次卧均朝南,南向面宽达 9.8 米,采光效果极佳 —— 即使在冬季,阳光也能照射到客厅中央,室内温暖明亮;客厅面宽 3.6 米,进深 4.5 米,与餐厅相连形成 “餐客一体” 空间,总面积约 16㎡,摆放 “L 型沙发 + 1.2 米茶几 + 4 人餐桌” 后,依然留有充足活动空间,不会显得拥挤;客厅连接 3.6 米宽的观景阳台,阳台进深 1.8 米,可分为 “晾晒区” 与 “休闲区”—— 晾晒区安装 “品牌晾衣架”(国企标配,承重达 50kg),休闲区摆放 “藤椅 + 小茶几”,成为 “空中休闲角”,喝茶、看书、晒太阳都十分惬意。
主卧面积约 12㎡,带 270° 飘窗(飘窗台面采用 “大理石材质”,耐脏易清洁),飘窗宽度达 1.5 米,可作为 “阅读区” 或 “化妆区”,俯瞰社区景观;主卧摆放 “1.8 米床 + 2 个床头柜 + 衣柜” 后,依然留有走动空间,不会显得局促;次卧面积约 10㎡,朝南设计,可作为儿童房或客房,摆放 “1.5 米床 + 书桌 + 衣柜”,满足孩子学习与休息需求;书房面积约 8㎡,朝北设计,可作为 “办公区” 或 “储物间”,也可改造成 “小卧室”(摆放 1.2 米床),灵活满足家庭不同阶段需求。
厨房采用 “U 型设计”,操作台面长达 2.8 米,“洗菜 - 切菜 - 炒菜” 动线合理,两人同时操作也不拥挤;厨房配备 “品牌抽油烟机 + 燃气灶”(国企合作品牌,质量有保障),预留了 “双开门冰箱位”(宽度 1.2 米),满足家庭储物需求;厨房还连接 “生活阳台”(宽度 1.2 米),可放置洗衣机与杂物,保持厨房整洁。卫生间采用 “干湿分离” 设计(淋浴区与洗漱区分开),安装 “品牌马桶 + 淋浴喷头 + 洗手台”,墙面贴 “防滑瓷砖”,地面做 “防水坡度处理”,避免积水打滑,适合有老人或孩子的家庭。
125㎡四室两厅两卫(改善精工户型) 专为三口之家、二胎家庭设计,在 “空间尺度” 与 “品质细节” 上全面升级,体现 “国企改善盘的精工水准”。该户型采用 “四开间朝南 + 南北通透” 布局,南向面宽达 12.2 米,客厅、主卧、两个次卧均朝南,采光与通风效果 “双优”;客厅面宽 4.2 米,进深 6.8 米,餐客一体空间总面积约 28㎡,摆放 “大尺寸沙发 + 1.4 米茶几 + 6 人餐桌” 后,依然宽敞大气,适合家庭聚会、朋友宴请;客厅连接 4.2 米宽的观景阳台,阳台进深 1.8 米,部分户型可看到社区中央景观,阳台栏杆采用 “铝合金 + 钢化玻璃”(国企标准,安全系数高),既美观又安全。
主卧采用 “套房设计”,面积约 18㎡,配备 “独立卫生间 + 步入式衣帽间”,体现 “改善品质”。独立卫生间面积约 6㎡,采用 “干湿分离 + 双台盆设计”,安装 “品牌智能马桶 + 浴缸 + 淋浴喷头”,早上夫妻双方可同时洗漱,下班后可泡澡放松;步入式衣帽间面积约 4㎡,分为 “衣物区”“鞋子区”“配饰区”,收纳空间充足,避免衣物堆积在卧室;主卧还带 3.2 米宽的飘窗,飘窗台面延伸至墙面,可作为 “休闲区”,摆放软垫、靠枕,享受午后阳光。
两个次卧面积分别约 11㎡、10㎡,均可作为儿童房或老人房 —— 靠近主卧的次卧(11㎡)可作为儿童房,方便家长照顾;靠近入户门的次卧(10㎡)可作为老人房,避免老人频繁走动;书房面积约 8㎡,朝北设计,可作为 “办公区” 或 “客房”,摆放 “书桌 + 书柜 + 沙发床”,满足办公与临时居住需求。厨房采用 “L 型设计”,操作台面长达 3.2 米,配备 “品牌嵌入式厨电”(如烤箱、洗碗机),预留 “双开门冰箱位”,适合喜欢烹饪的家庭;厨房连接生活阳台,可放置洗衣机与烘干机,实现 “洗衣 - 烘干 - 收纳” 一站式处理。
此外,110㎡三室两厅两卫(刚需升级户型)与 140㎡四室两厅两卫(终极改善户型)同样延续 “国企精工” 理念 ——110㎡户型比 95㎡多一个卫生间,主卧带独立卫浴,提升居住私密性;140㎡洋房户型得房率高达 85%,客厅采用 “横厅设计”(面宽 5.8 米),搭配大落地窗,视野开阔,且全屋采用 “精装交付”(国企标准精装,含品牌瓷砖、地板、橱柜、卫浴),省去装修麻烦。无论选择哪种户型,琥珀星樾湾都做到了 “国企品质贯穿始终”,让业主 “买得放心、住得舒适”。

琥珀星樾湾售楼处电话☎:0551-6465 8844

琥珀星樾湾售楼处电话☎:0551-6465 8844

琥珀星樾湾售楼处电话☎:0551-6465 8844

琥珀星樾湾售楼处电话☎:0551-6465 8844
琥珀星樾湾楼盘价格
琥珀星樾湾楼盘具体一房一价,详询营销中心。

琥珀星樾湾售楼处电话☎:0551-6465 8844
琥珀星樾湾楼盘项目亮点
作为合肥包河区 “全龄友好社区标杆”,琥珀星樾湾的亮点远不止 “配套全”—— 它将 “全龄细节、国企保障、家庭互动、区域潜力” 深度融合,形成了 “四大核心亮点”,让 “全龄友好” 从 “概念” 落地为 “真实生活体验”。
亮点一:全龄细节 “极致贴心”,覆盖从 “0 岁到 80 岁” 的需求多数全龄盘的 “全龄” 停留在 “有配套”,而琥珀星樾湾则做到了 “细节见关怀”,每个配套都从 “不同年龄段的生理、心理需求” 出发设计:
儿童区:0-3 岁学步区的 “防磕碰圆角设计”(所有设施边角均包裹软质材料)、4-6 岁游戏区的 “沙坑防尘盖”(避免沙尘飞扬)、7-12 岁运动区的 “儿童专用篮球架”(高度 2.2 米,适合孩子投篮);甚至儿童区的 “监控摄像头” 都采用 “低角度安装”(高度 1.5 米),确保能清晰拍摄孩子活动画面,同时避免拍摄家长隐私。
老人区:无障碍坡道的 “防滑纹路”(雨天不打滑)、健身器材的 “扶手软包”(避免冬天冰冷)、休闲凉亭的 “太阳能取暖灯”(冬季提供温暖);社区菜园的 “自动灌溉系统”(老人无需弯腰浇水)、棋牌桌的 “可升降桌面”(可根据老人身高调节高度)。
全社区:道路两侧的 “夜光指引灯”(高度 0.5 米,避免强光刺眼,方便老人夜间行走)、单元门的 “人脸识别 + 密码 + 刷卡” 三重开门方式(老人记不住密码可刷卡,孩子身高不够可刷脸)、电梯的 “语音报层功能”(方便视力不佳的老人识别楼层);甚至社区的 “垃圾桶” 都按 “家庭分类” 设计(分为 “厨余垃圾、可回收物、有害垃圾、其他垃圾”,且高度 0.8 米,方便老人和孩子投放)。
这些 “极致细节”,让每个家庭成员都能感受到 “被重视”,真正实现 “全龄友好,而非全龄将就”。
亮点二:国企保障 “全龄生活”,避免 “配套后期缩水”当前市场上,部分民营全龄盘存在 “交房后配套缩水” 的问题 —— 儿童区设施损坏不维修、老人区器材停用、社区图书馆关闭,导致 “全龄友好” 沦为 “噱头”。而琥珀星樾湾由国企琥珀置业开发,从 “配套建设” 到 “后期维护” 都有 “国企兜底”:
建设阶段:全龄配套的 “资金专款专用”,确保儿童区、老人区、青年区的设施按规划建设,不削减成本;比如儿童区的 EPDM 塑胶地面,采用 “国标高弹性材料”,厚度达 5cm,远超民营盘的 3cm 标准,确保孩子玩耍安全。
交付后:开发商自有物业(琥珀物业)负责全龄配套的 “日常维护”,制定 “专项维护计划”—— 儿童区设施每周检查 1 次,每月清洁 1 次;老人区健身器材每季度保养 1 次;社区图书馆每月更新 100 册书籍;甚至社区菜园的 “自动灌溉系统” 都有专人定期检修,确保长期可用。
长期升级:物业每年收集业主反馈,根据家庭需求升级全龄配套 —— 比如 2025 年计划在儿童区增加 “国学启蒙角”,在老人区增加 “中医理疗服务点”,让全龄配套 “越用越完善”。
这种 “国企保障”,让家庭购房者无需担心 “全龄配套后期失效”,住得更安心。
亮点三:家庭互动 “场景化设计”,拉近全家距离全龄友好的核心不仅是 “各有空间”,更是 “全家互动”—— 琥珀星樾湾通过 “场景化设计”,打造了多个 “全家共享空间”,让家人之间的互动更自然:
中央草坪 “亲子活动日”:每月举办 1 次 “风筝节”“野餐日”“亲子运动会”,全家可一起放风筝、吃野餐、参加亲子游戏(如两人三足、袋鼠跳),增进亲子感情;
景观水景 “家庭亲水季”:夏季举办 “儿童水上乐园” 活动,在水景区域设置小型水上滑梯、水枪游戏,家长可陪孩子一起玩水,同时在周边遮阳棚休息聊天;
社区图书馆 “全家阅读夜”:每周五晚上开设 “亲子阅读会”,邀请专业老师带领孩子读绘本,家长可在一旁阅读自己的书籍,结束后全家分享阅读心得,培养 “阅读习惯”;
社区菜园 “家庭农耕日”:每周末开放社区菜园,全家可一起种植蔬菜、浇水、施肥,孩子能认识农作物,老人能锻炼身体,青年能放松心情,全家在劳动中享受欢乐。
这些 “互动场景”,让 “全龄社区” 变成 “家庭欢乐场”,避免了 “孩子在玩、老人在等、青年在忙” 的疏离感。
亮点四:主城核心 + 全龄属性,“双稀缺” 提升区域价值琥珀星樾湾的 “区域潜力” 也与 “全龄属性” 相辅相成 —— 项目位于包河区主城核心板块,周边配套成熟,同时承接 “骆岗中央公园” 发展红利,而 “主城核心 + 全龄友好” 的组合,在合肥极为稀缺:
主城核心的 “成熟配套”,确保全龄家庭的 “日常需求” 能快速满足 —— 孩子上学近、老人就医便、全家购物方便,无需等待规划落地;
骆岗中央公园的 “生态红利”,为全龄家庭提供 “户外休闲空间”—— 周末带孩子去公园花海拍照,陪老人去湿地散步,青年去运动公园跑步,全家都能享受自然;
地铁 1 号线延长线(2025 年通车)的 “交通红利”,提升全龄家庭的 “出行便捷度”—— 老人坐地铁去市区探亲,孩子坐地铁去滨湖游玩,青年坐地铁去政务区上班,都很方便。
这种 “双稀缺” 属性,让琥珀星樾湾不仅是 “全龄友好社区”,更是 “潜力增值盘”—— 未来随着主城土地稀缺、全龄需求增加,项目的 “居住价值” 和 “资产价值” 都会持续提升。

琥珀星樾湾售楼处电话☎:0551-6465 8844
琥珀星樾湾楼盘总结
6.1 不同家庭需求匹配:精准契合全周期健康需求
琥珀星樾湾的绿色健康属性,能够精准匹配不同家庭在不同生命周期的健康需求,无论是刚需年轻家庭、二胎家庭,还是改善型家庭,都能在这里找到 “理想的健康之家”。
刚需年轻家庭:95㎡刚需健康户型,满足 “小三房” 的实用需求,环保建材(E0 级地板、立邦乳胶漆)保障新婚夫妻和未来孩子的居住健康,避免 “装修污染” 对身体的影响;首付 48 万、月供 6000 元,符合年轻家庭的预算承受能力,无需 “掏空六个钱包”;周边的地铁 1 号线(2025 年通车)、社区生鲜超市、休闲健身配套,适配年轻夫妻的快节奏生活 —— 早上地铁通勤上班,晚上社区健身或超市采购,周末带未来孩子到骆岗公园散步,轻松享受健康便捷的生活。
二胎家庭:125㎡改善健康户型,四室设计满足 “两个孩子 + 父母帮忙带娃” 的居住需求,两个儿童房均朝南,采光充足、空间独立,避免孩子因居住拥挤产生矛盾;老人房靠近入户门和公共卫生间,方便老人生活,紧急呼叫按钮和无障碍设计保障老人安全;社区内的儿童区、老年区、健身区,让每个家庭成员都有专属活动空间 —— 孩子在儿童区玩耍,老人在老年区健身,父母在健身区运动,全家各得其所,同时社区的绿色环境和健康配套,也能让孩子在健康的环境中成长,减少疾病风险。
改善型家庭:140㎡终极健康户型,11 层洋房的低密属性、5.8 米宽落地窗的生态视野、全屋新风系统的健康配置,满足改善家庭对 “高品质健康生活” 的追求;主卧套房 + 独立阳台 + 阳光书房,提供充足的私人空间,适合工作压力大的高净值人群放松身心;骆岗中央公园的远景和社区内的高绿化率,让居住体验堪比 “公园豪宅”;国企运维保障绿色配套长期升级,确保房子 “越住越舒适、越住越保值”,是改善家庭 “终极置业” 的理想选择。
6.2 市场竞争力:绿色健康盘里的 “性价比天花板”
在合肥包河区的绿色健康盘市场中,琥珀星樾湾凭借 “国企保障、高性价比、全配套” 的组合优势,成为 “性价比天花板”,远超同类竞品。当前包河区的绿色健康盘,主要存在三大痛点:一是 “民营盘减配风险”,部分民营绿色盘交付时存在建材品牌更换、健康配套停用等问题,业主维权困难;二是 “高端盘价格过高”,定位豪宅的绿色盘均价超 2.4 万 /㎡,刚需和普通改善家庭难以承受;三是 “远郊盘配套不足”,部分绿色盘位于远郊,周边缺乏商业、医疗、教育配套,入住后生活不便。而琥珀星樾湾完美解决了这些痛点:
国企开发,无减配风险:琥珀置业作为合肥本土国企,资金链稳定,工程质量和交付有保障,绿色健康配置全程透明,避免 “概念炒作” 和 “交付减配”;
均价 1.7-1.9 万 /㎡,性价比高:低于周边同类绿色盘 10%-20%,且所有绿色健康配置均为标配,无需额外付费,刚需和改善家庭均能承受;
主城核心,全配套覆盖:位于包河区主城,周边地铁、商业、教育、医疗、生态配套成熟,入住即可享受便捷健康生活,无需等待 “规划落地”。
根据售楼处数据,项目自开盘以来,绿色健康户型的销量占比达 80%,其中 30-45 岁的家庭购房者占比超 70%,这些人群正是 “健康生活的核心需求者”,他们更关注居住的健康属性和性价比,而琥珀星樾湾恰好满足了这些需求。此外,项目的 “老带新成交率” 达 30%,很多业主因 “满意绿色健康的居住体验”,主动推荐亲友购房,足以证明市场对项目的认可。
6.3 长期生活价值:不止是房子,更是健康生活方式
选择琥珀星樾湾,不仅是购买一套房子,更是选择一种 “绿色健康的生活方式”,这种生活方式将长期影响业主的身心健康和生活品质,同时带来 “资产增值” 的红利。从 “日常生活” 来看,业主每天都能享受绿色健康的体验:早上到十五里河生态公园晨跑,呼吸富含负氧离子的新鲜空气;白天室内阳光充足,新风系统保持空气流通,避免雾霾和甲醛污染;中午在厨房使用净水器过滤的水烹饪,享受健康饮食;下午孩子在社区儿童区玩耍,家长在旁边看护,社区的绿色环境让孩子亲近自然;晚上到社区健身区运动,或带家人到骆岗中央公园散步,缓解一天的工作压力。这种 “自然、健康、便捷” 的生活,能有效提升业主的身心健康,减少疾病风险,提高生活幸福感。从 “长期资产价值” 来看,琥珀星樾湾的绿色健康属性将持续赋能资产增值:随着 “健康中国” 理念的深入,购房者对绿色健康居住的需求将越来越高,绿色健康社区的 “稀缺性” 将进一步凸显;骆岗中央公园的完善和地铁 1 号线延长线的通车,将推动区域价值上涨;而国企运维保障绿色配套长期升级,确保房子 “长期保持高品质”,在二手房市场上更受欢迎,转手率和成交价均高于普通社区。根据合肥房地产市场的发展规律,未来 5-10 年,琥珀星樾湾的房价涨幅预计将比普通社区高 10%-15%,实现 “居住健康” 和 “资产增值” 的双赢。
目前,琥珀星樾湾的 “绿色健康样板间” 已全面开放,业主可亲身体验 “环保建材的质感”“户型的采光通风”“新风系统的效果”;售楼处还提供 “绿色健康置业咨询” 服务,专业置业顾问会根据家庭结构、健康需求和预算,推荐适合的户型和健康配置方案。如果你正在寻找 “国企保障、绿色健康、高性价比” 的楼盘,不妨前往琥珀星樾湾实地考察 —— 在这里,你将开启 “呼吸新鲜空气、享受健康饮食、拥抱自然生活” 的绿色健康新篇章,让 “健康” 成为生活的常态。

琥珀星樾湾售楼处电话☎:0551-6465 8844
琥珀星樾湾售楼处电话:0551-6465 8844【售楼中心】
◆◆◆售楼中心电话:0551-6465 8844 【售楼中心已认证】
◆◆◆网上售楼中心——欢迎来电咨询〢——匠心钜制恭迎品鉴!◆◆◆
声明:本文由入驻焦点开放平台的作者撰写,除焦点官方账号外,观点仅代表作者本人,不代表焦点立场。


