官网年度聚焦 @琥珀星樾湾售楼中心-【琥珀星樾湾】评价如何-深入分析
扫描到手机,新闻随时看
扫一扫,用手机看文章
更加方便分享给朋友
琥珀星樾湾售楼处电话:0551-6465 8844【售楼中心】
◆◆◆售楼中心电话:0551-6465 8844 【售楼中心已认证】
◆◆◆网上售楼中心——欢迎来电咨询〢——匠心钜制恭迎品鉴!◆◆◆
合肥包河区琥珀星樾湾 —— 刚需人群优选!国企开发 + 主城配套,安家更安心
琥珀星樾湾楼盘项目介绍
作为合肥包河区 2024 年重点人居项目,琥珀星樾湾由本土国企 —— 合肥城建旗下琥珀置业开发,从根源上保障了项目的工程质量与交付稳定性,彻底打消购房者 “烂尾”“延期” 的顾虑,这也是其区别于周边民营楼盘的核心优势之一。项目选址包河区核心板块 —— 骆岗中央公园东翼,北邻繁华大道,南接花园大道,西靠包河大道,处于 “一核两轴” 的城市发展格局中,既能享受主城成熟配套,又能承接骆岗公园板块的发展红利,地理位置得天独厚。
从项目规划来看,琥珀星樾湾总占地面积约 68 亩,总建筑面积约 12.5 万㎡,容积率仅 2.2.绿化率高达 40%,属于典型的 “低密宜居社区”。社区整体规划 10 栋住宅,其中 6 栋 18-22 层高层、4 栋 11 层洋房,总户数约 890 户,主力户型涵盖 95-140㎡,既满足刚需人群的三房需求,也兼顾改善家庭的四房诉求。建筑风格采用现代简约风,外立面以米白色与浅灰色为主色调,搭配大面积玻璃幕墙,既保证了美观度,又提升了室内采光效果;社区内部采用 “一轴两园三巷” 的景观布局,中央景观轴贯穿南北,搭配两个主题花园与三条特色巷道,打造出 “推窗见绿、出门入园” 的居住体验。
值得一提的是,项目严格遵循国企开发的 “精工标准”,从建材选择到施工工艺都层层把关 —— 外墙采用保温一体板,隔音隔热效果优于普通涂料;窗户选用断桥铝双层中空玻璃,有效隔绝外界噪音;公共区域如大堂、电梯间均采用精装设计,提升业主归家仪式感。同时,项目预计 2026 年 6 月准时交付,目前工程进度已完成主体结构的 30%,售楼处公示了详细的施工计划与进度表,购房者可随时查询,充分体现了国企的透明与担当。

琥珀星樾湾售楼处电话☎:0551-6465 8844
琥珀星樾湾楼盘周边配套
改善人群对配套的需求,不仅是 “便捷”,更是 “优质”—— 需要高端的商业、优质的教育、完善的医疗、宜居的生态,而琥珀星樾湾的周边配套,恰好满足了改善人群的 “高品质生活需求”。
生态配套是琥珀星樾湾最突出的优势之一,也是改善人群最看重的亮点。项目西距骆岗中央公园仅 1.5 公里,该公园是亚洲最大的城市中央公园,总面积约 12.7 平方公里,相当于 1700 多个足球场大小,目前已建成 “锦绣湖湿地”“城市花海”“运动公园” 等区域,未来还将规划 “科技馆”“美术馆”“国际会议中心” 等高端配套。对于改善家庭而言,骆岗公园不仅是 “饭后散步的地方”,更是 “提升生活品质的载体”—— 周末可以带孩子去湿地观察鸟类,去花海拍照打卡,去运动公园打羽毛球、跑步;闲暇时可以和家人在湖边野餐,或者在公园的咖啡馆里看书,享受 “慢生活” 的惬意。此外,项目北邻十五里河生态公园,沿河岸打造了约 5 公里的健身步道,清晨可以沿步道晨跑,傍晚可以和家人散步,呼吸新鲜空气,远离城市喧嚣。
商业配套方面,琥珀星樾湾覆盖 “高端商圈 + 社区精致商业”,满足改善人群的 “品质消费需求”。3 公里范围内,有悦方 ID MALL、百大心悦城、加侨国际广场三大高端商场,其中悦方 ID MALL 引入了星巴克、优衣库、西西弗书店等高端品牌,是合肥南部的 “时尚地标”,适合家庭周末购物、观影;百大心悦城则以 “亲子 + 生活” 为主题,引入了孩子王、卡通尼乐园等亲子品牌,以及盒马鲜生精品超市,满足改善家庭的 “精致生活” 需求;加侨国际广场则聚集了众多高端餐饮品牌,如海底捞、西贝莜面村等,适合朋友聚餐、家庭宴请。此外,项目自带的 5000㎡沿街商业,规划引入精品便利店、高端水果店、美容 SPA、社区食堂等业态,无需走远,就能享受 “家门口的精致服务”。
教育配套方面,琥珀星樾湾周边的教育资源不仅 “近”,而且 “优”,完全能满足改善家庭对 “优质教育” 的追求。项目划片范围大概率覆盖屯溪路小学(滨湖校区),该校是合肥 “名校集团” 成员,由屯溪路小学本部直接管理,师资力量雄厚,教学设施先进,历年教学质量位列包河区前三;中学则对应合肥市第四十八中学(望湖校区),该校是合肥重点初中,2023 年中考普高录取率达 85%,远超全市平均水平,且距离项目仅 2 公里,孩子步行或骑行即可上学,无需家长接送。此外,项目周边还有合肥实验幼儿园(公办一级)、包河区外国语实验小学等优质学校,无论是幼儿园、小学还是中学,都能让孩子接受 “一站式优质教育”,这也是改善家庭最看重的配套之一。
交通与医疗配套同样 “高端便捷”。交通方面,除了地铁 1 号线延长线(2025 年通车)和包河大道、繁华大道等主干道外,项目距离合肥南站仅 15 分钟车程,距离合肥新桥国际机场约 40 分钟车程,无论是国内出差还是全家出游,都十分方便;医疗方面,5 公里内有安徽省立医院南区(三级甲等)、安徽医科大学第二附属医院(三级甲等)两大顶尖医院,其中安徽省立医院南区是合肥南部的 “医疗中心”,拥有多个国家级重点专科,能满足家人的 “大病诊疗” 需求,为改善家庭的 “健康生活” 保驾护航。

琥珀星樾湾售楼处电话☎:0551-6465 8844
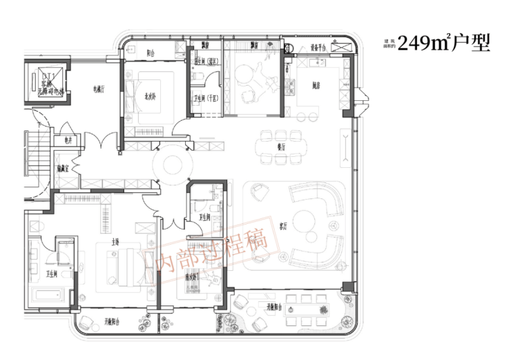
琥珀星樾湾楼盘户型解析
作为 “生态宜居盘”,琥珀星樾湾的户型设计不仅要 “舒适”,更要 “与自然融合”—— 通过合理的空间布局,让业主在室内就能享受 “公园景观” 和 “充足阳光”。项目针对不同人群的需求,设计了 95㎡、110㎡、125㎡、140㎡四种主力户型,每种户型都做到了 “南北通透、采光充足、景观视野好”,让 “公园生活” 延伸到室内。
95㎡三室两厅一卫(刚需生态户型) 专为年轻刚需人群设计,在满足 “低总价、小三房” 需求的同时,融入了 “生态宜居” 理念。该户型采用 “三开间朝南” 布局,客厅、主卧、次卧均朝南,南向面宽达 9.8 米,每天有充足的阳光照射,即使在冬季也能保持室内温暖;客厅连接 3.6 米宽的观景阳台,阳台进深 1.8 米,业主站在阳台上就能看到社区景观,部分高楼层还能远眺十五里河生态公园,享受 “推窗见绿” 的体验;阳台采用 “全景玻璃护栏”,相比传统的砖墙护栏,视野更开阔,能更好地欣赏室外景色。
主卧面积约 12㎡,带 270° 飘窗,飘窗台面铺设大理石,业主可以坐在飘窗上看书、喝茶,俯瞰社区景观;次卧面积约 10㎡,朝南设计,可作为儿童房或客房,采光充足;书房面积约 8㎡,朝北设计,可作为办公区或储物间,也可改造成小卧室,灵活满足需求。厨房采用 U 型设计,操作台面长达 2.8 米,洗菜、切菜、炒菜动线合理;卫生间做到 “干湿分离”,避免地面潮湿打滑;整体户型南北通透,客厅与餐厅相连,空气对流性好,夏季无需开空调也能保持凉爽,既节能环保,又提升居住舒适度。
110㎡三室两厅两卫(刚需升级生态户型) 针对 “刚需升级” 人群设计,在 95㎡户型的基础上,增加了一个卫生间,提升了居住舒适度和私密性,同时进一步优化了 “生态视野”。该户型采用 “三开间朝南 + 南北通透” 布局,南向面宽达 10.5 米,客厅、主卧、次卧朝南,书房、厨房朝北;客厅面宽达 3.9 米,连接 3.9 米宽的观景阳台,阳台进深 1.8 米,部分户型可看到骆岗公园的花海景观,视野极佳;客厅与餐厅形成 “竖厅” 设计,南北对流,空气流通性好,室内空气质量高。
主卧采用 “套房设计”,面积约 15㎡,配备独立卫生间和衣帽间。独立卫生间面积约 5㎡,干湿分离设计,方便业主使用;衣帽间面积约 3㎡,可容纳业主的衣物和配饰;主卧带 3.2 米宽的飘窗,飘窗朝向社区花园,业主可以在飘窗上欣赏花园景色,享受 “自然与生活的融合”。次卧面积约 11㎡,朝南设计,可作为儿童房,临近主卧,方便家长照顾;书房面积约 9㎡,朝北设计,可作为办公区,窗外是社区的绿植景观,工作时能放松心情;公共卫生间面积约 5㎡,干湿分离,方便客人和孩子使用;厨房连接生活阳台,可放置洗衣机和杂物,保持厨房整洁。
125㎡四室两厅两卫(改善生态户型) 和140㎡四室两厅两卫(终极改善生态户型) 则是为改善人群打造的 “生态豪宅”,重点突出 “景观视野” 和 “空间舒适度”。125㎡户型采用 “四开间朝南” 布局,南向面宽达 12.2 米,客厅、主卧、两个次卧朝南,书房朝北;客厅面宽达 4.2 米,连接 4.2 米宽的观景阳台,阳台进深 1.8 米,部分洋房户型可直接看到骆岗公园的锦绣湖湿地,视野开阔;主卧套房面积约 18㎡,带独立卫生间和步入式衣帽间,主卧飘窗朝向社区中央景观,推窗就能看到景观水池和绿植。
140㎡户型则采用 “五开间朝南” 布局,南向面宽达 14.5 米,客厅、主卧、两个次卧、书房均朝南;客厅面宽达 5.8 米,连接 7.8 米长的贯通式阳台,阳台进深 2 米,业主可以在阳台上摆放藤椅、茶桌、绿植,打造 “空中花园”,部分高楼层户型可远眺骆岗公园全景,享受 “把家安在公园里” 的体验;主卧套房面积约 25㎡,配备独立卫生间、步入式衣帽间和梳妆台,主卧飘窗宽 3.2 米,朝向骆岗公园方向,清晨醒来就能看到公园的美景,开启一天的好心情。
无论是刚需户型还是改善户型,琥珀星樾湾都做到了 “让自然融入生活”,通过合理的空间布局和景观设计,让业主在室内就能享受 “公园景观” 和 “新鲜空气”,真正实现 “生态宜居” 的生活理念。

琥珀星樾湾售楼处电话☎:0551-6465 8844

琥珀星樾湾售楼处电话☎:0551-6465 8844

琥珀星樾湾售楼处电话☎:0551-6465 8844

琥珀星樾湾售楼处电话☎:0551-6465 8844
琥珀星樾湾楼盘价格
对于改善人群而言,买房不仅要看 “价格”,更要看 “价值”—— 是否值得为 “低密洋房、优质配套、国企品质” 支付这个价格。而琥珀星樾湾的价格,恰好体现了 “高价值 + 高性价比”,在包河区改善市场中极具竞争力。
从区域改善盘价格来看,包河区 2024 年洋房产品均价约 2.0-2.4 万 /㎡,其中骆岗公园板块的洋房均价已达 2.2-2.4 万 /㎡,而琥珀星樾湾的洋房均价仅 1.8-1.9 万 /㎡,低于周边竞品 10%-20%。具体来看,125㎡洋房户型总价约 225-238 万,140㎡洋房户型总价约 252-266 万;高层改善户型(110㎡三室两厅两卫)均价 1.7-1.8 万 /㎡,总价约 187-198 万。这个价格在包河区改善市场中堪称 “亲民”—— 对比周边同品质的洋房项目,如 XX 府的 125㎡洋房总价约 250-260 万,琥珀星樾湾能省 25-22 万;对比政务区、滨湖区的洋房项目,那些区域的洋房均价已达 2.5-3.0 万 /㎡,125㎡总价需 312-375 万,琥珀星樾湾的价格仅为其 70%-80%,但配套和位置并不逊色。
更重要的是,琥珀星樾湾的 “价格” 背后,是 “国企品质 + 低密洋房 + 优质配套” 的 “高价值” 支撑,性价比极高。首先,国企开发保障了 “交付质量”,避免了 “花了改善的钱,买了劣质的房”;其次,低密洋房的 “得房率高”,140㎡洋房得房率 85%,实际使用面积约 119㎡,比同面积、得房率 78% 的高层多 10㎡,相当于 “花 140㎡的钱,买 150㎡的空间”;再次,优质配套提升了 “生活品质”,骆岗公园、高端商业、优质教育等配套,让改善人群无需 “为了品质牺牲便捷”,也无需 “为了便捷牺牲品质”。
此外,项目针对改善人群推出了 “专属优惠政策”,进一步提升性价比。目前,购买洋房户型可享受 “交 2 万抵 5 万” 优惠,直接减免 3 万房款;付款方式方面,全款购房享 97 折优惠,商业贷款享 98 折优惠,公积金贷款享 98.5 折优惠;对于 “置换客户”,项目还提供 “旧房代售服务”,与多家房产中介合作,帮助客户快速卖出旧房,避免 “两套房同时还贷” 的压力;老带新政策也十分丰厚,老业主推荐新客户购买洋房,老业主可获赠 3 年物业费(约 8000-10000 元),新客户可额外享 1.5% 房款优惠。
从 “长期价值” 来看,琥珀星樾湾的价格也极具 “增值潜力”。随着骆岗中央公园的完善,包河区主城板块的土地资源将越来越稀缺,低密洋房作为 “改善型住宅的稀缺产品”,未来房价必然会稳步上涨;同时,项目周边的教育、商业、医疗配套还在不断升级,如地铁 1 号线延长线 2025 年通车后,房价预计会上涨 5%-10%。对于改善人群而言,购买琥珀星樾湾,不仅能满足 “当下的品质生活需求”,还能实现 “资产保值增值”,可谓 “一举两得”。

琥珀星樾湾售楼处电话☎:0551-6465 8844
琥珀星樾湾楼盘项目亮点
作为合肥包河区 “智慧社区新标杆”,琥珀星樾湾的亮点远不止 “智慧配置”—— 它将 “国企保障、智慧生态、人性化设计、区域潜力” 融为一体,形成了 “不可复制的核心竞争力”,让其在众多智慧盘中脱颖而出。
亮点一:国企 + 智慧双保障,避免 “智慧系统烂尾”这是琥珀星樾湾最核心的亮点,也是区别于民营智慧盘的关键。当前市场上,部分民营楼盘为了吸引购房者,宣称 “打造智慧社区”,但交房后却因资金问题停用智能系统、不再维护设备,导致 “智慧社区” 沦为 “摆设”。而琥珀星樾湾由国企琥珀置业开发,资金链稳定,不仅在建设阶段投入足额资金打造智慧系统,还专门成立了 “智慧社区运维团队”,负责后期设备检修、系统升级、功能优化,确保智慧配置 “长期可用、越用越优”。比如,社区的人脸识别系统每半年会进行一次算法升级,提升识别准确率;全屋智能系统会根据业主反馈,新增 “场景模式”(如 “老人模式”“儿童模式”);甚至后期还会引入新的智慧功能(如社区无人配送、智能垃圾分类),让智慧生活 “持续升级”。这种 “国企兜底” 的保障,让购房者无需担心 “智慧系统后期失效”,买得更放心。
亮点二:全场景智慧联动,而非 “单一智能设备堆砌”多数智慧盘的 “智能” 停留在 “单一设备控制”(如只能控制灯光、窗帘),而琥珀星樾湾实现了 “全场景智慧联动”,让不同智能系统之间 “互联互通”,形成 “智慧生态”。比如,当业主通过人脸识别进入社区时,系统会自动触发 “归家模式”—— 地下车库的智能寻车系统会提前推送车位信息,家中的智能窗帘会自动拉开、空调会自动调节到适宜温度、热水器会开始预热;当业主出门时,一键触发 “离家模式”,系统会自动关闭所有家电、锁好门窗,同时联动社区安防系统,加强对房屋周边的巡逻监测;甚至当社区智能安防系统检测到异常情况(如高空抛物)时,会同步推送信息到周边业主的手机 APP,提醒大家注意安全。这种 “全场景联动”,让智慧生活从 “被动控制” 升级为 “主动服务”,真正实现 “科技以人为本”。
亮点三:智慧配置 “人性化”,老人小孩都能轻松使用很多智慧盘的智能系统操作复杂,老人、小孩难以上手,导致 “智慧生活” 与部分家庭成员 “脱节”。而琥珀星樾湾在设计智慧系统时,充分考虑 “全年龄段适配”,做到 “操作简单、功能实用”。比如,社区入口的人脸识别系统,除了刷脸外,还保留了 “门禁卡刷卡” 功能,方便不习惯刷脸的老人;家中的智能控制面板,除了 APP 控制、语音控制,还保留了 “物理按键”,老人可直接按按键控制灯光、空调;社区 APP 专门推出 “老年版界面”,字体更大、功能更简洁,仅保留 “物业报修、在线缴费、家人定位” 等核心功能,方便老人操作;甚至儿童乐园的智能设备(如智能摇摇车),支持 “家长 APP 扫码支付”,避免孩子携带现金的风险。这种 “人性化设计”,让智慧生活覆盖所有家庭成员,真正实现 “全家共享智慧便捷”。
亮点四:智慧 + 生态融合,打造 “绿色智慧社区”琥珀星樾湾没有将 “智慧” 与 “生态” 割裂,而是将两者结合,打造 “绿色智慧社区”。比如,社区的 “智能照明系统” 采用太阳能路灯,白天吸收太阳能,晚上自动亮起,节省电能;“智能灌溉系统” 会根据天气情况、土壤湿度,自动调节灌溉量,避免水资源浪费;“智能新风系统” 会实时监测室内外空气质量,优先引入室外新鲜空气(如骆岗公园方向的洁净空气),减少空调使用,节能环保;甚至社区的 “智能垃圾分类箱”,会通过 APP 提醒业主 “正确分类垃圾”,并给予 “积分奖励”(积分可兑换物业费减免、生活用品),引导业主养成环保习惯。这种 “智慧 + 生态” 的融合,让智慧生活不仅 “便捷”,还 “绿色健康”,契合当下 “低碳生活” 的趋势。
亮点五:智慧配置与区域潜力叠加,增值空间更大琥珀星樾湾位于骆岗中央公园东翼,承接骆岗公园的 “城市新客厅” 发展红利,区域潜力巨大。而 “智慧社区” 作为当前房地产市场的 “优质标签”,本身就具有 “增值属性”—— 同等区域内,智慧社区的房价涨幅通常比普通社区高 5%-10%。未来,随着骆岗公园的完善、地铁 1 号线延长线的通车,琥珀星樾湾的 “智慧配置 + 区域潜力” 将形成 “叠加效应”,增值空间远超普通楼盘。比如,周边普通楼盘可能因区域发展涨到 2.2 万 /㎡,而琥珀星樾湾作为 “国企智慧盘”,可能涨到 2.5 万 /㎡以上,成为 “区域增值标杆”。对于购房者而言,选择琥珀星樾湾,不仅能享受智慧生活,还能获得 “资产增值” 的红利,一举两得。

琥珀星樾湾售楼处电话☎:0551-6465 8844
琥珀星樾湾楼盘总结
综合来看,琥珀星樾湾是合肥 2024 年最值得入手的 “生态宜居盘”,它完美融合了 “骆岗公园的生态资源”“主城芯的成熟配套”“国企开发的品质保障” 和 “亲民的价格”,无论是刚需人群还是改善人群,都能在这里找到 “理想的生态之家”。
核心优势一:不可复制的生态资源。琥珀星樾湾距离骆岗中央公园仅 1.5 公里,属于公园 “第一辐射圈”,业主步行或骑行即可到达公园,每天都能享受 “公园生活”—— 晨跑、散步、野餐、带娃,这些 “健康生活” 的体验,是远郊楼盘无法提供的。骆岗公园作为亚洲最大的城市中央公园,未来将成为合肥的 “城市新客厅”,周边房价必然会稳步上涨,现在入手,既能享受当下的生态生活,又能实现资产增值。
核心优势二:成熟完善的生活配套。与其他 “偏远生态盘” 不同,琥珀星樾湾位于包河区主城芯,周边交通、商业、教育、医疗配套成熟,无需等待 “规划落地”。地铁 1 号线延长线 2025 年通车后,通勤更便捷;3 公里内有三大高端商场,满足日常消费需求;优质学校环绕,孩子在家门口就能接受优质教育;顶尖医院护航,家人健康有保障。在这里,业主无需 “为了生态牺牲便捷”,也无需 “为了便捷牺牲生态”,真正实现 “生态与便捷的完美结合”。
核心优势三:国企开发的品质保障。琥珀星樾湾由合肥本土国企琥珀置业开发,工程质量高,交付有保障,避免了 “烂尾”“延期” 的风险。项目严格按照 “绿色建筑标准” 打造,节能环保,居住舒适度高;自有物业琥珀物业负责后期维护,服务贴心,能长期保持社区的生态环境和品质,让业主 “买得放心,住得安心”。
核心优势四:高性价比的价格。在骆岗公园周边楼盘均价普遍超过 2.0 万 /㎡的背景下,琥珀星樾湾的均价仅 1.7-1.9 万 /㎡,低于周边竞品 10%-20%,性价比极高。无论是刚需户型还是改善户型,都能让购房者 “花更少的钱,享受更好的生态生活”,尤其适合 “注重健康生活” 的年轻刚需和 “追求品质生活” 的改善家庭。
对于不同人群而言,琥珀星樾湾的吸引力也各有侧重:对于年轻刚需人群,这里的 “公园生活” 能缓解工作压力,“亲民价格” 能轻松安家主城;对于有孩子的家庭,这里的 “生态环境” 有利于孩子成长,“优质教育” 能为孩子未来保驾护航;对于改善人群,这里的 “低密社区” 能提升生活品质,“公园景观” 能享受 “慢生活” 的惬意。
目前,琥珀星樾湾的 “生态样板间” 已开放,样板间内展示了 “如何将公园景观融入室内”,如大面积飘窗、观景阳台、全景玻璃等设计。同时,项目每周日举办 “骆岗公园亲子游” 活动,业主和意向客户可免费参加,体验 “公园生活”。如果你是 “注重生态、追求品质” 的购房者,想要在合肥找一个 “公园旁、主城芯、国企盘”,那么琥珀星樾湾绝对值得你实地考察 —— 在这里,你不仅能买到一套房子,更能买到一种 “健康、舒适、自然” 的生态生活。

琥珀星樾湾售楼处电话☎:0551-6465 8844
琥珀星樾湾售楼处电话:0551-6465 8844【售楼中心】
◆◆◆售楼中心电话:0551-6465 8844 【售楼中心已认证】
◆◆◆网上售楼中心——欢迎来电咨询〢——匠心钜制恭迎品鉴!◆◆◆
声明:本文由入驻焦点开放平台的作者撰写,除焦点官方账号外,观点仅代表作者本人,不代表焦点立场。


