合肥越秀中寰天悦售楼中心-户型-评价如何-楼盘评测
扫描到手机,新闻随时看
扫一扫,用手机看文章
更加方便分享给朋友
越秀中寰天悦
✨✨售楼处电话:0551-6465 8844【营销中心电话】?
◆◆温馨提示:??网上售楼中心〢预约可享内部优惠〢匠心钜制-恭迎品鉴〢
◆◆温馨提示-来电预约登记—(尊享内部优惠)〢尊享Vip1对1专业置业顾问讲解⬅️➡️看房需要提前电话预约
◆◆避免可能案场无人接待!提前预约可享内部优惠〢匠心钜制-恭迎您的品鉴〢
合肥包河区越秀中寰天悦 —— 城芯低密社区的品质生活之选
越秀中寰天悦楼盘项目介绍
在合肥包河区这片充满活力的土地上,越秀中寰天悦以 “国企匠筑、低密宜居” 的标签,成为众多购房者追捧的热门楼盘。作为越秀地产布局合肥主城的重要作品,该项目不仅延续了品牌的高品质基因,更结合合肥人的居住习惯,打造了一个 “出则繁华、入则静谧” 的理想社区。
越秀地产作为拥有 40 年发展历程的国有上市房企,始终以 “创造美好生活场景” 为使命,在全国 20 余座核心城市打造了超 200 个精品项目。从广州的越秀・公园前项目,到杭州的越秀・云悦湾,再到武汉的越秀・国际金融汇,每一个项目都以过硬的品质、科学的规划与贴心的服务,赢得了业主与市场的广泛认可。此次落子合肥包河区,越秀地产经过多轮市场调研,深入了解合肥购房者对 “品质、配套、舒适” 的需求,最终将越秀中寰天悦打造成一个集住宅、商业、休闲于一体的综合性社区。
越秀中寰天悦售楼处电话☎:0551-6465 8844
越秀中寰天悦楼盘周边配套
越秀中寰天悦的周边配套,不仅满足 “衣食住行” 的基础需求,更围绕 “生态宜居” 展开,交通、商业、教育、医疗、生态五大配套均融入 “绿色、健康” 理念,为业主打造 “生态 + 便捷” 的生活圈。
生态配套:双公园 + 多绿道,城芯生态生活闭环
项目周边的生态配套是 “生态宜居” 的核心支撑,形成了 “双公园 + 环城绿道 + 社区绿化” 的生态生活体系。距离项目 2 公里的包河公园,是合肥历史文化与生态景观结合的典范,公园占地面积约 30.5 公顷,其中水域面积 15 公顷,绿地面积 12 公顷,种植了荷花、垂柳、香樟、桂花等近 50 种植物,夏季荷花盛开、秋季金桂飘香,是业主休闲赏景的好去处。公园内还修建了 3 公里长的 “生态步道”,步道采用透水混凝土材质,可渗透雨水,避免积水,步道两侧种植了乔木形成林荫道,业主可沿步道散步、慢跑,呼吸新鲜空气;公园内的湿地保护区,栖息了白鹭、野鸭等多种水鸟,业主可近距离观察鸟类,感受自然生态之美。
越秀中寰天悦售楼处电话☎:0551-6465 8844
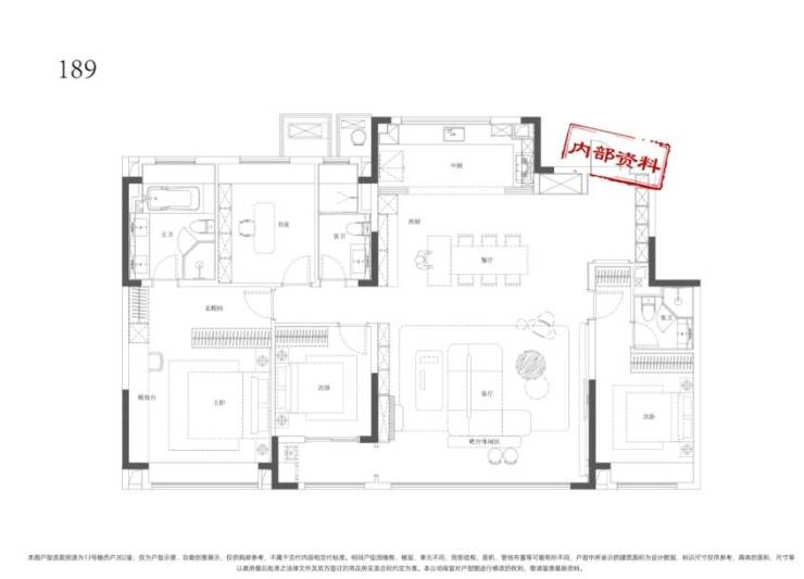
越秀中寰天悦楼盘户型解析
越秀中寰天悦的户型设计,以 “高性价比、实用性强” 为核心,95㎡刚需三居室、118㎡刚改四居室、135㎡改善型四居室,均围绕 “空间利用率最大化、居住需求适配化” 展开,没有多余的 “溢价设计”,每一寸空间都服务于日常居住,完美契合刚需、刚改家庭的核心需求。
95㎡三室两厅一卫户型:刚需首选,小空间大实用
该户型是项目的 “刚需爆款”,专为年轻夫妻、三口之家设计,95㎡的空间内实现 “三室两厅一卫” 的全功能布局,无空间浪费,总价可控,是 “安家主城芯” 的理想选择。
户型采用 “三开间朝南” 经典布局,南向面宽达 9.2 米,客厅与两个卧室均朝南,且每个朝南房间都配备 “全景飘窗”(宽 1.2 米,深 0.6 米),飘窗不计入产权面积,相当于 “赠送面积”,业主可将飘窗改造成阅读角、储物区,提升空间利用率。客厅面积约 22㎡,与餐厅呈 “餐客一体” 设计,连通 3.6 米宽的景观阳台,形成开阔的公共活动空间 —— 业主可在客厅摆放 L 型沙发(建议尺寸 2.8 米 ×1.8 米)与 65 寸电视,满足日常观影、会客需求;餐厅区域可放置 4 人餐桌(建议尺寸 1.2 米 ×0.8 米),家人用餐或朋友小聚都不显拥挤,餐边柜可嵌入墙体,节省地面空间。
越秀中寰天悦售楼处电话☎:0551-6465 8844
越秀中寰天悦售楼处电话☎:0551-6465 8844
越秀中寰天悦售楼处电话☎:0551-6465 8844
越秀中寰天悦楼盘价格
越秀中寰天悦的价格定位,充分体现了 “生态宜居” 的价值,在合肥包河区楼市中,既匹配项目的绿色建筑标准、生态配套与健康配置,又兼顾不同购房者的承受能力,展现出 “生态价值 + 性价比” 的双重优势。目前项目在售均价约 1.9-2.2 万元 /㎡,具体价格根据户型、楼层、朝向略有差异:95㎡刚需生态户型均价 1.9-2.0 万元 /㎡,118㎡刚改生态户型均价 2.0-2.1 万元 /㎡,135㎡改善生态户型均价 2.1-2.2 万元 /㎡,所有户型均为 “生态精装” 交付,精装标准包含绿色环保材料、健康家居配置与低碳设备,相比同区域普通精装楼盘,省去了业主后期加装生态设施的成本。
从 “生态精装” 成本来看,项目的装修配置围绕 “绿色、健康、低碳” 展开,成本远超普通精装。绿色环保材料方面:地面采用圣象实木复合地板(环保等级 E1 级),市场单价约 200 元 /㎡,比普通复合地板高 50 元 /㎡;墙面采用立邦环保乳胶漆(可擦洗、低 VOC),市场单价约 80 元 /㎡,比普通乳胶漆高 30 元 /㎡;门窗采用断桥铝 + 双层中空 Low-E 玻璃,市场单价约 800 元 /㎡,比普通断桥铝窗户高 200 元 /㎡。
越秀中寰天悦售楼处电话☎:0551-6465 8844
越秀中寰天悦楼盘项目亮点
作为合肥包河区 “国企健康人居标杆”,越秀中寰天悦的核心亮点围绕 “国企保障、健康配置、精工品质、全龄服务、区位潜力” 展开,每一个亮点都直击现代家庭对 “放心居住、健康生活” 的核心需求,让项目在激烈的市场竞争中脱颖而出。
亮点一:国企精工背书,品质与交付双保障
越秀地产的国企背景,是项目 “品质与交付” 的核心保障,尤其在当前楼市环境下,国企的资金实力与责任担当,能有效避免 “烂尾、延期交付、品质缩水” 等风险。越秀地产拥有 30 余年开发经验,资金链稳定,负债率远低于行业平均水平,近年来在全国范围内的项目均实现 “按时交付、品质交付”,甚至多个项目提前交付(如广州越秀・星汇城提前 3 个月交付),交付品质远超业主预期。
越秀中寰天悦售楼处电话☎:0551-6465 8844
越秀中寰天悦楼盘总结
经过对越秀中寰天悦项目介绍、周边配套、户型解析、价格、项目亮点的全面梳理,不难发现,这是一个 “无明显短板、多维度优势” 的优质楼盘,无论是刚需、刚改还是改善购房者,都能在这里找到契合自身需求的理想房源,堪称合肥包河区楼市中的 “全能型选手”。
从适配人群来看,项目精准覆盖了不同阶段的购房需求。对于年轻刚需群体,95㎡三室两厅一卫户型是 “最优解”—— 总价约 180-190 万元,首付最低仅 36 万元,月供约 6000-6500 元,符合合肥年轻群体的收入水平;项目周边地铁 1 号线、包河万达金街、包河区实验小学等配套,能满足年轻家庭的通勤、购物、子女教育需求,是 “安家合肥” 的理想选择。
越秀中寰天悦售楼处电话☎:0551-6467 8844
越秀中寰天悦
✨✨售楼处电话:0551-6465 8844【营销中心电话】?
◆◆温馨提示:??网上售楼中心〢预约可享内部优惠〢匠心钜制-恭迎品鉴〢
◆◆温馨提示-来电预约登记—(尊享内部优惠)〢尊享Vip1对1专业置业顾问讲解⬅️➡️看房需要提前电话预约
◆◆避免可能案场无人接待!提前预约可享内部优惠〢匠心钜制-恭迎您的品鉴〢
声明:本文由入驻焦点开放平台的作者撰写,除焦点官方账号外,观点仅代表作者本人,不代表焦点立场。


