好房热搜NO1|琥珀星樾湾(合肥)营销中心-【琥珀星樾湾】评价如何-全面介绍
扫描到手机,新闻随时看
扫一扫,用手机看文章
更加方便分享给朋友
琥珀星樾湾售楼处电话:0551-6465 8844【售楼中心】
◆◆◆售楼中心电话:0551-6465 8844 【售楼中心已认证】
◆◆◆网上售楼中心——欢迎来电咨询〢——匠心钜制恭迎品鉴!◆◆◆
琥珀星樾湾楼盘户型解析
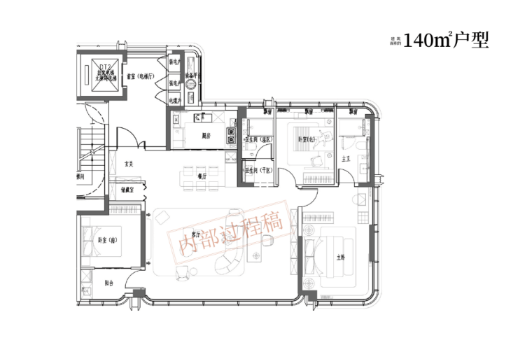
户型是居住体验的 “核心载体”,琥珀星樾湾针对不同人群的需求,设计了 95㎡、110㎡、125㎡、140㎡四种主力户型,每种户型都做到了 “空间利用率高、采光通风好、布局合理”,尤其契合刚需与改善家庭的居住需求。
95㎡三室两厅一卫(刚需首选) 是项目最受欢迎的户型,专为年轻上班族、新婚夫妻设计。该户型采用 “三开间朝南” 布局,客厅、主卧、次卧均朝南,南向面宽达 9.8 米,每天上午 9 点至下午 4 点都有充足阳光,即使在冬季也能保持室内温暖;客厅连接 3.6 米宽的观景阳台,阳台进深 1.8 米,既可作为晾晒区,也可摆放休闲桌椅,打造 “空中花园”;主卧面积约 12㎡,带 270° 飘窗,不仅增加了使用空间,还能俯瞰社区景观;厨房采用 U 型设计,操作台面长达 2.8 米,洗菜、切菜、炒菜动线合理,两人同时操作也不拥挤;卫生间做到 “干湿分离”,洗漱区与淋浴区分开,避免地面潮湿打滑,适合有老人或孩子的家庭。整体来看,95㎡户型没有浪费面积,每个空间都能充分利用,首付仅需 48-54 万,月供约 6000 元,完全在刚需人群的预算范围内,实现 “一步到位” 的三房梦想。
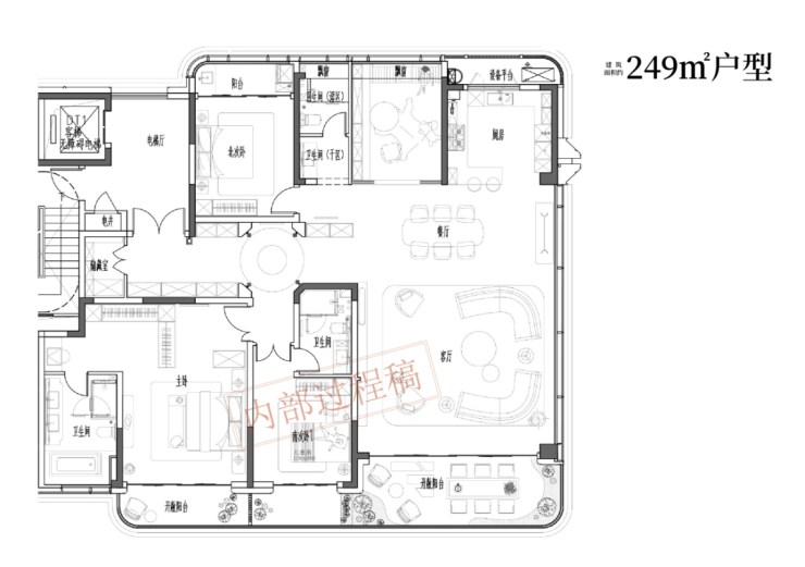
125㎡四室两厅两卫(改善主力) 则针对三口之家、二胎家庭设计,空间更宽敞,功能更齐全。该户型采用 “四开间朝南 + 南北通透” 布局,南向面宽达 12.2 米,客厅与餐厅形成 “竖厅” 设计,南北对流,夏季无需开空调也能保持凉爽;客厅连接 4.2 米宽的阳台,阳台与次卧打通,形成 “贯通式阳台”,长度约 7.8 米,可分为 “晾晒区” 与 “休闲区”,一边晾晒衣物,一边摆放跑步机或茶桌,互不干扰;主卧为 “套房设计”,面积约 18㎡,带独立卫生间与步入式衣帽间,独立卫生间配备浴缸,下班后可泡澡放松,衣帽间可容纳夫妻双方的衣物,提升居住私密性与舒适度;书房面积约 8㎡,既可作为办公区,也可改造成儿童房或老人房,灵活满足家庭不同阶段的需求;厨房为 L 型设计,连接生活阳台,可放置洗衣机与杂物,保持厨房整洁。125㎡户型做到了 “动静分区”,卧室、书房位于内侧,客厅、餐厅、厨房位于外侧,家人休息时不会被客厅噪音打扰,完美契合改善家庭 “既要空间大,又要私密性” 的需求。
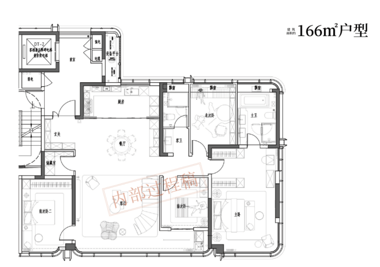
此外,110㎡三室两厅两卫户型适合 “刚需升级” 人群,比 95㎡多一个卫生间,主卧带独立卫浴,提升居住舒适度;140㎡四室两厅两卫洋房户型则是 “终极改善” 之选,洋房总高 11 层,一梯两户,得房率高达 85%(高层得房率约 78%),客厅采用 “横厅设计”,面宽达 5.8 米,搭配大落地窗,视野开阔,适合追求品质生活的高净值家庭。无论选择哪种户型,琥珀星樾湾都做到了 “明厨明卫、南北通透、无暗间”,让每个业主都能享受舒适的居住体验。

琥珀星樾湾售楼处电话☎:0551-6465 8844

琥珀星樾湾售楼处电话☎:0551-6465 8844

琥珀星樾湾售楼处电话☎:0551-6465 8844

琥珀星樾湾售楼处电话☎:0551-6465 8844
琥珀星樾湾楼盘价格
在合肥,“智慧社区” 往往与 “高房价” 挂钩 —— 多数主打智慧配置的楼盘,均价普遍比同区域普通楼盘高 10%-15%。但琥珀星樾湾作为 “国企开发的智慧社区”,却打破了这一惯例,在提供 “全场景智慧配置” 的同时,保持了 “亲民的价格”,成为合肥包河区 “智慧盘性价比之王”。
从区域智慧盘价格对比来看,包河区 2024 年主打 “智慧社区” 的楼盘,均价普遍在 2.0-2.3 万 /㎡,比如位于包河大道附近的某民营智慧盘,高层均价 2.1 万 /㎡,洋房均价 2.3 万 /㎡,且部分智慧配置(如全屋智能控制系统)需要 “额外付费升级”;而琥珀星樾湾的均价仅 1.7-1.9 万 /㎡,不仅低于周边智慧盘 10%-20%,且所有智慧配置(如智慧安防、智慧出行、基础全屋智能系统)均为 “标配”,无需额外付费,相当于 “花普通楼盘的钱,享受智慧楼盘的配置”。
具体到户型价格,琥珀星樾湾的性价比优势更为明显:
刚需智慧户型:95㎡三室两厅一卫,单价 1.7-1.8 万 /㎡,总价约 160-171 万,首付最低 48 万(按 30% 首付计算),月供约 6000 元(按 LPR+20BP,贷款 30 年计算)。对比周边同面积智慧盘(总价约 180-190 万),一套房能省 20-19 万,相当于普通上班族 2-3 年的工资,且无需额外支付智慧系统费用。
刚需升级智慧户型:110㎡三室两厅两卫,单价 1.75-1.85 万 /㎡,总价约 192.5-203.5 万,首付最低 57.75 万,月供约 7200 元。该户型比 95㎡多一个卫生间,且智慧配置更丰富(如主卧智能控制面板、公共卫生间智能浴霸),性价比远超周边同类型智慧户型。
改善智慧户型:125㎡四室两厅两卫,单价 1.8-1.9 万 /㎡,总价约 225-237.5 万,首付最低 67.5 万,月供约 8500 元;140㎡洋房智慧户型,单价 1.85-1.95 万 /㎡,总价约 259-273 万,首付最低 77.7 万,月供约 9800 元。对比周边同面积洋房智慧盘(总价约 280-300 万),140㎡户型能省 21-27 万,且得房率高达 85%(周边智慧盘洋房得房率约 80%),实际使用面积更大,智慧配置更全面(如智能新风系统、全屋温控系统)。
更重要的是,琥珀星樾湾针对 “智慧社区” 购房者,推出了 “专属优惠政策”,进一步降低购房成本:
智慧配置礼包:即日起购房,可免费升级 “全屋智能进阶套餐”(含智能门锁、智能摄像头、智能音箱各 1 台),市场价值约 5000 元,无需额外付费;
付款优惠:全款购房享 97 折优惠,商业贷款享 98 折优惠,公积金贷款享 98.5 折优惠,且支持 “组合贷”,满足不同购房者的付款需求;
老带新奖励:老业主推荐新客户成交,老业主可获赠 “智慧社区运维年费”(价值 2000 元 / 年,含智能设备检修、系统升级服务),新客户可额外享 1% 房款优惠;
智慧特价房:每月推出 5 套 “智慧特价房”,主要为高层中间楼层,单价可低至 1.65 万 /㎡,且智慧配置不缩水,性价比更高。
从 “长期价值” 来看,琥珀星樾湾的智慧配置还能 “降低生活成本”:比如智能温控系统可节省 15%-20% 的空调电费,智能新风系统减少空气净化器使用成本,智能安防系统降低居家安全风险(如燃气泄漏、盗窃)。这些 “隐性节省”,进一步提升了项目的性价比。对于追求 “智慧生活” 的购房者而言,选择琥珀星樾湾,不仅能以低预算入手 “国企智慧盘”,还能长期享受 “科技带来的便捷与节省”,堪称 “明智之选”。

琥珀星樾湾售楼处电话☎:0551-6465 8844
琥珀星樾湾楼盘周边配套
对于追求 “智慧生活” 的购房者而言,“社区内的智能配置” 只是基础,“周边配套与智慧生活的契合度” 同样重要 —— 毕竟,智慧生活不仅限于社区内部,更需要外部配套的 “协同支撑”。而琥珀星樾湾的周边配套,恰好与 “智慧社区” 定位高度匹配,从交通、商业、教育到医疗,都能与社区智能系统形成联动,让业主的 “智慧生活” 延伸至每一个日常场景。
智慧交通配套让通勤更高效 —— 项目紧邻地铁 1 号线延长线(规划中,2025 年通车)花园大道站,步行约 10 分钟即可到达。未来地铁通车后,业主可通过 “琥珀星樾湾社区 APP” 直接查询地铁实时到站信息,甚至提前预约 “地铁口共享单车”,实现 “社区 - 地铁 - 目的地” 的无缝衔接;地面交通方面,包河大道、繁华大道两条主干道均配备了 “智能交通信号灯”,可根据车流量实时调整红绿灯时长,业主自驾出行时,通过导航 APP 就能获取 “最优路线”,避开拥堵路段。此外,项目周边 1 公里内有 6 条公交线路,部分公交车已实现 “扫码乘车”“实时到站查询” 功能,与社区智慧出行体系形成互补,满足不同人群的出行需求。
智慧商业配套满足品质消费 —— 项目 3 公里范围内,悦方 ID MALL、百大心悦城、加侨国际广场三大商场均已实现 “智慧化运营”。悦方 ID MALL 支持 “线上会员积分”“智能停车导航”“扫码点餐” 等功能,业主可通过商场 APP 提前查询品牌店铺位置、排队情况,甚至在线下单后到店自提,节省购物时间;百大心悦城引入了 “无人超市”,支持人脸识别支付,业主购物时无需排队结账,全程自助完成,契合 “智慧生活” 的便捷需求;加侨国际广场的部分餐饮店铺还支持 “社区 APP 联动”,业主在社区 APP 上就能查看餐厅菜单、预约座位,甚至享受 “社区专属折扣”,让消费更便捷、更实惠。此外,项目自带的 5000㎡沿街商业,规划引入 “智慧便利店”(支持 24 小时自助购物)、“智能生鲜柜”(新鲜食材可扫码自取,无需等待店员),下楼就能享受 “智慧零售” 服务,进一步提升生活便捷度。
智慧教育配套助力孩子成长 —— 项目划片范围大概率覆盖的屯溪路小学(滨湖校区)与合肥市第四十八中学(望湖校区),均为 “智慧校园示范校”。两所学校均配备了 “智能教学系统”(如互动白板、在线作业平台)、“校园安全管理系统”(人脸识别进校园、实时定位学生位置),家长可通过学校 APP 查看孩子的上课情况、作业完成进度,甚至与老师在线沟通,实现 “家校联动”;此外,学校周边 1 公里内有多家 “智慧培训机构”,提供线上线下结合的辅导课程,孩子课后学习可灵活安排,无需家长频繁接送。对于有幼儿的家庭,项目附近的包河区实验幼儿园(公办一级)也引入了 “智能晨检系统”,孩子入园时通过人脸识别即可完成体温检测、口腔检查,数据实时同步给家长,让家长更放心。
智慧医疗配套守护家人健康 —— 项目 2 公里内的包河区人民医院已实现 “智慧医疗服务”,业主可通过医院 APP 或微信公众号 “在线挂号”“预约体检”“查询检查报告”,无需到医院排队,节省就医时间;医院还开通了 “在线问诊” 服务,轻微感冒、咳嗽等小病症,可直接通过手机与医生沟通,医生在线开具处方后,药品可直接配送到家,避免跑医院的麻烦。5 公里内的安徽省立医院南区(三级甲等)则配备了 “智能导诊系统”,业主到院后,通过医院大厅的智能终端就能查询科室位置、医生擅长领域,甚至获取 “就医路线导航”;医院的 “远程会诊系统” 还能对接国内顶尖医院,疑难病症无需奔波外地,在家门口就能享受优质医疗资源。这些智慧医疗配套,与社区内的 “健康监测设备”(如部分老年活动区配备的智能血压仪)形成联动,为业主的健康生活保驾护航。

琥珀星樾湾售楼处电话☎:0551-6465 8844
琥珀星樾湾楼盘总结
综合来看,琥珀星樾湾是合肥包河区 2024 年 “最值得入手的国企精工盘”—— 它完美解决了购房者 “担心品质、担心交付、担心配套、担心性价比” 四大核心顾虑,无论是刚需人群还是改善人群,都能在这里找到 “安心、舒适、有潜力” 的家。
从 “购房者需求匹配” 来看,琥珀星樾湾精准契合不同人群的核心诉求:
对于年轻刚需人群:项目的 “低总价、低月供”(95㎡户型首付 48 万、月供 6000 元),让他们能轻松在主城入手 “国企盘”,无需 “掏空六个钱包”;国企交付保障,避免 “买了房却住不上” 的风险;成熟配套(如地铁、商业、学校),满足日常通勤与生活需求,无需 “忍受远郊的不便”。
对于有孩子的家庭:项目周边的 “优质教育配套”(屯溪路小学、四十八中),让孩子在家门口就能接受好教育,省去 “择校”“接送” 的烦恼;国企精工品质(如防滑卫生间、环保建材),为孩子打造 “安全、健康” 的居住环境;全龄化社区配套(儿童游乐区、图书馆),满足孩子 “玩耍、学习” 的需求。
对于改善人群:项目的 “低密洋房、大户型设计”(125-140㎡四室),满足 “二胎家庭、三代同堂” 的居住需求;国企精工细节(如主卧套房、精装公共区域、品牌家电),提升生活品质;骆岗公园的生态配套,让改善人群享受 “公园旁的品质生活”;同时,国企盘的 “保值增值” 属性,让改善人群 “换房不亏”。
从 “市场竞争力” 来看,当前合肥包河区的国企盘 “数量少、价格高”(如政务区某国企盘均价 2.5 万 /㎡以上),而琥珀星樾湾作为 “主城核心区的国企精工盘”,均价仅 1.7-1.9 万 /㎡,且配套成熟、品质过硬,性价比远超同类楼盘。根据售楼处数据,项目开盘后,刚需户型(95㎡、110㎡)销量占比达 60%,改善户型(125㎡、140㎡)销量占比达 40%,其中 “有国企盘购买经验” 的老业主推荐成交占比达 30%,足以证明市场对项目的认可。
从 “长期价值” 来看,琥珀星樾湾的 “国企品质 + 主城位置 + 骆岗公园红利”,决定了其 “长期保值增值” 的属性。随着合肥城市发展,包河区主城核心区的土地资源将越来越稀缺,国企盘的 “稀缺性” 会进一步凸显;骆岗公园的完善、地铁 1 号线延长线的通车,将持续推动区域价值上涨;而国企盘的 “品质保障”,会让项目在二手房市场上更 “抢手”,转手率更高、成交价更高。
如果你正在合肥看房,想要 “买得放心、住得舒适、有潜力”,那么琥珀星樾湾绝对值得你实地考察。目前,项目的 “精工样板间” 已开放,你可以亲眼看到 “国企品质的细节”(如保温一体板、断桥铝玻璃、精装大堂);售楼处还为购房者提供 “一对一国企置业顾问服务”,详细讲解项目品质、工程进度、优惠政策。选择琥珀星樾湾,你不仅能买到一套 “国企精工房”,更能拥有 “安心、便捷、有潜力” 的主城生活。

琥珀星樾湾售楼处电话☎:0551-6465 8844
琥珀星樾湾楼盘项目亮点
作为合肥包河区 “智慧社区新标杆”,琥珀星樾湾的亮点远不止 “智慧配置”—— 它将 “国企保障、智慧生态、人性化设计、区域潜力” 融为一体,形成了 “不可复制的核心竞争力”,让其在众多智慧盘中脱颖而出。
亮点一:国企 + 智慧双保障,避免 “智慧系统烂尾”这是琥珀星樾湾最核心的亮点,也是区别于民营智慧盘的关键。当前市场上,部分民营楼盘为了吸引购房者,宣称 “打造智慧社区”,但交房后却因资金问题停用智能系统、不再维护设备,导致 “智慧社区” 沦为 “摆设”。而琥珀星樾湾由国企琥珀置业开发,资金链稳定,不仅在建设阶段投入足额资金打造智慧系统,还专门成立了 “智慧社区运维团队”,负责后期设备检修、系统升级、功能优化,确保智慧配置 “长期可用、越用越优”。比如,社区的人脸识别系统每半年会进行一次算法升级,提升识别准确率;全屋智能系统会根据业主反馈,新增 “场景模式”(如 “老人模式”“儿童模式”);甚至后期还会引入新的智慧功能(如社区无人配送、智能垃圾分类),让智慧生活 “持续升级”。这种 “国企兜底” 的保障,让购房者无需担心 “智慧系统后期失效”,买得更放心。
亮点二:全场景智慧联动,而非 “单一智能设备堆砌”多数智慧盘的 “智能” 停留在 “单一设备控制”(如只能控制灯光、窗帘),而琥珀星樾湾实现了 “全场景智慧联动”,让不同智能系统之间 “互联互通”,形成 “智慧生态”。比如,当业主通过人脸识别进入社区时,系统会自动触发 “归家模式”—— 地下车库的智能寻车系统会提前推送车位信息,家中的智能窗帘会自动拉开、空调会自动调节到适宜温度、热水器会开始预热;当业主出门时,一键触发 “离家模式”,系统会自动关闭所有家电、锁好门窗,同时联动社区安防系统,加强对房屋周边的巡逻监测;甚至当社区智能安防系统检测到异常情况(如高空抛物)时,会同步推送信息到周边业主的手机 APP,提醒大家注意安全。这种 “全场景联动”,让智慧生活从 “被动控制” 升级为 “主动服务”,真正实现 “科技以人为本”。
亮点三:智慧配置 “人性化”,老人小孩都能轻松使用很多智慧盘的智能系统操作复杂,老人、小孩难以上手,导致 “智慧生活” 与部分家庭成员 “脱节”。而琥珀星樾湾在设计智慧系统时,充分考虑 “全年龄段适配”,做到 “操作简单、功能实用”。比如,社区入口的人脸识别系统,除了刷脸外,还保留了 “门禁卡刷卡” 功能,方便不习惯刷脸的老人;家中的智能控制面板,除了 APP 控制、语音控制,还保留了 “物理按键”,老人可直接按按键控制灯光、空调;社区 APP 专门推出 “老年版界面”,字体更大、功能更简洁,仅保留 “物业报修、在线缴费、家人定位” 等核心功能,方便老人操作;甚至儿童乐园的智能设备(如智能摇摇车),支持 “家长 APP 扫码支付”,避免孩子携带现金的风险。这种 “人性化设计”,让智慧生活覆盖所有家庭成员,真正实现 “全家共享智慧便捷”。
亮点四:智慧 + 生态融合,打造 “绿色智慧社区”琥珀星樾湾没有将 “智慧” 与 “生态” 割裂,而是将两者结合,打造 “绿色智慧社区”。比如,社区的 “智能照明系统” 采用太阳能路灯,白天吸收太阳能,晚上自动亮起,节省电能;“智能灌溉系统” 会根据天气情况、土壤湿度,自动调节灌溉量,避免水资源浪费;“智能新风系统” 会实时监测室内外空气质量,优先引入室外新鲜空气(如骆岗公园方向的洁净空气),减少空调使用,节能环保;甚至社区的 “智能垃圾分类箱”,会通过 APP 提醒业主 “正确分类垃圾”,并给予 “积分奖励”(积分可兑换物业费减免、生活用品),引导业主养成环保习惯。这种 “智慧 + 生态” 的融合,让智慧生活不仅 “便捷”,还 “绿色健康”,契合当下 “低碳生活” 的趋势。
亮点五:智慧配置与区域潜力叠加,增值空间更大琥珀星樾湾位于骆岗中央公园东翼,承接骆岗公园的 “城市新客厅” 发展红利,区域潜力巨大。而 “智慧社区” 作为当前房地产市场的 “优质标签”,本身就具有 “增值属性”—— 同等区域内,智慧社区的房价涨幅通常比普通社区高 5%-10%。未来,随着骆岗公园的完善、地铁 1 号线延长线的通车,琥珀星樾湾的 “智慧配置 + 区域潜力” 将形成 “叠加效应”,增值空间远超普通楼盘。比如,周边普通楼盘可能因区域发展涨到 2.2 万 /㎡,而琥珀星樾湾作为 “国企智慧盘”,可能涨到 2.5 万 /㎡以上,成为 “区域增值标杆”。对于购房者而言,选择琥珀星樾湾,不仅能享受智慧生活,还能获得 “资产增值” 的红利,一举两得。

琥珀星樾湾售楼处电话☎:0551-6465 8844
合肥包河区琥珀星樾湾 —— 刚需人群优选!国企开发 + 主城配套,安家更安心
琥珀星樾湾楼盘项目介绍
作为合肥包河区 2024 年重点人居项目,琥珀星樾湾由本土国企 —— 合肥城建旗下琥珀置业开发,从根源上保障了项目的工程质量与交付稳定性,彻底打消购房者 “烂尾”“延期” 的顾虑,这也是其区别于周边民营楼盘的核心优势之一。项目选址包河区核心板块 —— 骆岗中央公园东翼,北邻繁华大道,南接花园大道,西靠包河大道,处于 “一核两轴” 的城市发展格局中,既能享受主城成熟配套,又能承接骆岗公园板块的发展红利,地理位置得天独厚。
从项目规划来看,琥珀星樾湾总占地面积约 68 亩,总建筑面积约 12.5 万㎡,容积率仅 2.2.绿化率高达 40%,属于典型的 “低密宜居社区”。社区整体规划 10 栋住宅,其中 6 栋 18-22 层高层、4 栋 11 层洋房,总户数约 890 户,主力户型涵盖 95-140㎡,既满足刚需人群的三房需求,也兼顾改善家庭的四房诉求。建筑风格采用现代简约风,外立面以米白色与浅灰色为主色调,搭配大面积玻璃幕墙,既保证了美观度,又提升了室内采光效果;社区内部采用 “一轴两园三巷” 的景观布局,中央景观轴贯穿南北,搭配两个主题花园与三条特色巷道,打造出 “推窗见绿、出门入园” 的居住体验。
值得一提的是,项目严格遵循国企开发的 “精工标准”,从建材选择到施工工艺都层层把关 —— 外墙采用保温一体板,隔音隔热效果优于普通涂料;窗户选用断桥铝双层中空玻璃,有效隔绝外界噪音;公共区域如大堂、电梯间均采用精装设计,提升业主归家仪式感。同时,项目预计 2026 年 6 月准时交付,目前工程进度已完成主体结构的 30%,售楼处公示了详细的施工计划与进度表,购房者可随时查询,充分体现了国企的透明与担当。

琥珀星樾湾售楼处电话☎:0551-6465 8844
琥珀星樾湾售楼处电话:0551-6465 8844【售楼中心】
◆◆◆售楼中心电话:0551-6465 8844 【售楼中心已认证】
◆◆◆网上售楼中心——欢迎来电咨询〢——匠心钜制恭迎品鉴!◆◆◆
声明:本文由入驻焦点开放平台的作者撰写,除焦点官方账号外,观点仅代表作者本人,不代表焦点立场。


