招商奥体公园楼盘户型图/电话号码/值得买吗/周边配套
扫描到手机,新闻随时看
扫一扫,用手机看文章
更加方便分享给朋友
招商奥体公园售楼处电话:0551-6467 8499【售楼中心】
售楼中心电话:0551-6467 8499 【售楼中心已认证】
网上售楼中心——欢迎来电咨询〢——匠心钜制恭迎品鉴!
招商奥体公园售楼处电话:0551-6467 8499【售楼中心】
售楼中心电话:0551-6467 8499 【售楼中心已认证】
网上售楼中心——欢迎来电咨询〢——匠心钜制恭迎品鉴!
合肥新站投资优选!招商奥体公园 —— 价值高地的潜力红盘
一、招商奥体公园楼盘项目介绍
在合肥城市发展 “东拓北进” 的宏伟蓝图下,新站高新技术产业开发区凭借国家级开发区的政策红利、完善的产业布局和持续升级的城市配套,已然成为合肥最具投资潜力的区域之一。而坐落于东方大道与卧龙湖路交口往南 200 米的招商奥体公园,正是这片价值高地中最值得关注的投资标杆楼盘。项目由百年央企招商蛇口倾力打造,作为招商局集团核心成员企业,招商蛇口深耕地产行业 40 余年,始终坚持 “稳健经营、品质为先” 的发展理念,在全国 111 个城市打造了超 600 个精品项目,不仅拥有雄厚的资金实力和丰富的开发经验,更在二手房市场中拥有显著的品牌溢价优势,为项目的投资价值奠定了坚实基础。
招商奥体公园总占地面积约 180 亩,总建筑面积超 35 万平方米,总投资超 50 亿元,是新站区重点规划的大型综合性社区。项目规划容积率仅 2.0.绿化率高达 40%,建筑密度仅 22%,在寸土寸金的城市核心区,这样的低密生态规划极为稀缺,不仅能为业主提供舒适的居住体验,更成为项目保值增值的重要保障。项目整体规划涵盖高层住宅、洋房、社区商业、公办幼儿园等多种业态,其中住宅总户数约 2200 户,车位配比 1:1.2.充分满足业主居住与停车需求。
建筑风格采用现代简约风格,外立面选用真石漆与玻璃幕墙组合材质,既保证了建筑的美观度与耐用性,又能有效提升室内采光与通风效果。社区内部规划了约 5000㎡中央景观花园、800 米环形健身步道、全龄段休闲配套及智慧社区系统,全方位提升居住品质。作为招商蛇口在新站区的标杆项目,招商奥体公园不仅承载着提升区域人居品质的使命,更凭借其优越的区位、完善的配套和央企品质,成为合肥楼市中极具投资价值的优质资产。
招商奥体公园售楼处电话☎:0551-6467 8499
二、招商奥体公园楼盘周边配套
一个楼盘的价值,不仅取决于项目本身的品质,更离不开周边完善的配套设施。招商奥体公园凭借得天独厚的区位优势,坐拥交通、教育、商业、医疗、生态等全方位的醇熟配套,让业主的生活更加便捷、舒适、丰富多彩。
交通配套:立体交通网络,畅达全城
招商奥体公园紧邻东方大道与卧龙湖路两大城市主干道,形成 “一横一纵” 的交通格局。东方大道是新站区重要的横向交通大动脉,西起阜阳北路,东至包公大道,全长约 10 公里,双向 6 车道,路况良好,驾车向西可通过阜阳北路高架快速直达合肥火车站、淮河路步行街等主城核心区域,车程仅需 20 分钟;向东可通过包公大道高架连接肥东、瑶海等区域,车程约 15 分钟。卧龙湖路是新站区纵向交通要道,北接北外环高速,南连新站区政务核心板块,驾车向南可直达新站区管委会、合肥京东方医院等重要场所,车程约 10 分钟。
公共交通方面,项目周边 500 米范围内设有卧龙湖路东方大道、东方大道卧龙湖路、新站寿春实验中学等 3 个公交站点,涵盖 301 路、302 路、686 路、803 路等多条公交线路。其中,301 路公交可直达地铁 3 号线幼儿师范站,车程约 15 分钟;302 路公交可直达地铁 1 号线合肥火车站,车程约 25 分钟;686 路公交可直达新站区核心商圈武里山天街,车程约 10 分钟。未来,随着合肥地铁 9 号线(规划中)的建成通车,项目将无缝衔接地铁网络,出行效率将进一步提升,轻松通达全城各个角落。
此外,项目距离合肥新桥国际机场约 40 公里,驾车通过北外环高速转机场高速,车程约 45 分钟;距离合肥火车站约 15 公里,驾车通过阜阳北路高架,车程约 20 分钟;距离合肥南站约 25 公里,驾车通过包河大道高架,车程约 30 分钟,无论是日常通勤还是长途出行,都十分便捷。
教育配套:全龄教育资源,护航成长
教育是每个家庭最关注的问题之一,招商奥体公园周边教育资源丰富,形成了从幼儿园到中学的全龄段教育体系,让孩子在家门口就能享受优质的教育资源,为未来的发展奠定坚实的基础。
项目内部规划有一所 12 班制公办幼儿园,占地面积约 4000㎡,建筑面积约 3000㎡,将配备专业的师资力量和完善的教学设施,预计 2025 年正式投入使用,让业主的孩子足不出社区就能接受优质的启蒙教育。
项目周边 1 公里范围内分布着多所优质中小学。其中,合肥新站寿春实验中学距离项目仅 500 米,该校是寿春教育集团旗下的优质民办中学,成立于 2015 年,拥有先进的教学理念和雄厚的师资力量,中考成绩在新站区名列前茅;合肥市庆平希望学校距离项目约 800 米,该校是一所九年一贯制公办学校,涵盖小学和初中,教学设施完善,师资力量充足,为学生提供全面的素质教育;合肥市第 168 中学东校区距离项目约 1.5 公里,该校是安徽省示范高中,成立于 2002 年,以优异的高考成绩闻名全省,每年都有大量学生考入全国重点高校,是众多家长和学生向往的优质高中。
此外,周边还有合肥市新站区关井小学、合肥市新站区三十头镇中心学校等多所公办小学,以及多所规划中的中小学,教育资源持续丰富,满足不同家庭对孩子教育的需求。
商业配套:繁华商业氛围,便利生活
商业配套的完善程度直接影响着业主的日常生活便利性,招商奥体公园周边商业氛围浓厚,无论是日常购物、餐饮美食,还是休闲娱乐,都能一站式满足。
项目自带约 2 万方社区商业,规划引入超市、便利店、生鲜卖场、品牌餐饮、美容美发、药店等多元化业态,预计 2026 年正式开业运营,业主下楼即可满足日常购物、餐饮、休闲等基本需求,无需远行。
项目距离新站区核心商圈 —— 武里山天街仅 3 公里,驾车车程约 10 分钟。武里山天街是新站区规模较大的商业综合体之一,总建筑面积约 10 万方,涵盖大型购物中心、连锁超市、品牌餐饮、电影院、KTV、儿童乐园等丰富业态,入驻了永辉超市、大地影院、肯德基、麦当劳等众多知名品牌,是周边居民休闲娱乐的首选之地。
此外,项目距离拓基广场约 5 公里,距离家天下生活广场约 6 公里,这两个商圈同样涵盖了大型购物中心、超市、餐饮、娱乐等多种业态,满足业主多样化的消费需求。周边还有多个在建的商业综合体,未来商业氛围将更加浓厚,生活便利性将进一步提升。
医疗配套:优质医疗资源,健康保障
健康是幸福生活的基础,招商奥体公园周边医疗资源丰富,为业主的健康提供全方位的保障。
项目距离安徽省第二人民医院(北区)约 4 公里,驾车车程约 15 分钟。安徽省第二人民医院是集医疗、教学、科研、预防、保健、康复为一体的三级甲等综合性医院,开放床位 2000 余张,拥有多个省级重点学科和特色专科,医疗设备先进,师资力量雄厚,能够为业主提供高水平的医疗服务。
项目距离合肥京东方医院约 3.5 公里,驾车车程约 12 分钟。合肥京东方医院是一家集医疗、教学、科研、预防、保健为一体的三级综合医院,由京东方科技集团投资建设,总建筑面积约 20 万方,开放床位 1000 张,重点打造心血管科、骨科、妇产科、儿科等特色科室,医疗技术先进,服务质量优质。
此外,项目周边还有合肥市新站区七里塘社区卫生服务中心、合肥新站综合开发试验区三十头社区卫生服务中心等多家社区卫生服务中心,距离项目均在 3 公里范围内,日常就医、健康体检十分便捷,为业主的健康保驾护航。
生态配套:优质生态资源,宜居环境
在快节奏的城市生活中,优质的生态环境成为人们追求的重要目标,招商奥体公园周边生态资源丰富,为业主提供了清新的空气和舒适的居住环境。
项目距离少荃湖公园约 3 公里,驾车车程约 10 分钟。少荃湖是合肥北部最大的城市湖泊,湖面面积约 1.5 平方公里,周边规划有少荃湖湿地公园、科创 CBD 景观带,总规划面积约 5 平方公里,是合肥市重点打造的生态公园之一。公园内设有休闲步道、观景平台、亲水平台、湿地景观等多个景点,是业主休闲散步、跑步健身、周末出游的绝佳去处。
项目距离新站区生态公园约 4 公里,驾车车程约 15 分钟。新站区生态公园是合肥市较早建设的城市公园之一,占地面积约 1000 亩,园内种植了大量的树木、花草,设有湖泊、假山、亭台楼阁等景观,空气清新,环境优美,是周边居民休闲放松的好去处。
此外,项目周边还有瑶海公园、李鸿章享堂等多个景点,距离项目均在 10 公里范围内,周末闲暇时光,业主可以带着家人朋友前往游玩,感受大自然的美景,放松身心。
招商奥体公园售楼处电话☎:0551-6467 8499
三、招商奥体公园楼盘户型解析
招商奥体公园深入洞察运动健康家庭的居住需求,打造了多款兼具运动属性、实用性和舒适性的户型产品,涵盖 89㎡、105㎡、128㎡、143㎡四个主力面积段,从刚需小三室到高端改善大四室,满足不同运动家庭的居住需求,让运动与生活完美融合。
89㎡三室两厅一卫:刚需运动户,紧凑实用
89㎡三室两厅一卫户型是刚需运动家庭的首选,整体布局方正,南北通透,空间利用率高达 85%,同时预留了灵活的运动空间,让小户型也能享受运动健康生活。
入户处设置独立玄关,宽度 1.2 米,深度 1.5 米,可作为运动装备收纳区,放置运动鞋、运动包、瑜伽垫等物品,让居家环境整洁有序。玄关右侧设有挂钩和换鞋凳,方便业主运动回家后及时换鞋、挂衣物,细节设计贴心。
客厅位于户型中央,面宽 3.6 米,进深 4.2 米,空间宽敞明亮。客厅与南向阳台相连,阳台面宽 3.6 米,进深 1.8 米,采用全景落地窗设计,采光通风极佳。阳台可打造为小型运动区,放置瑜伽垫、跑步机等小型运动器材,业主可在阳光中进行晨练、瑜伽等运动,享受健康生活。
餐厅紧邻客厅和厨房,面积约 6㎡,可容纳 4-6 人同时用餐。餐厅与厨房之间设有滑动门,既保证了用餐环境的整洁,又能方便上菜,让业主运动后能及时补充能量。
厨房位于户型西侧,采用 U 型设计,操作台面长 3.5 米,洗切炒动线合理,预留双开门冰箱位置。厨房靠近餐厅,用餐、上菜便捷,适合家庭日常烹饪,为运动提供充足的营养支持。
三个卧室分布在户型东侧和北侧,动静分离,避免了运动区对休息区的干扰。主卧位于户型东侧,面宽 3.2 米,进深 3.8 米,带有南向飘窗,采光充足,空间宽敞,可放置 1.8 米宽的床和衣柜。两个次卧面宽均为 2.7 米,空间充足,其中一个次卧可作为运动休闲区,放置哑铃、弹力带等小型健身器材,或作为瑜伽、冥想空间;另一个次卧可作为儿童房或书房,满足家庭多样化需求。
卫生间位于户型北侧,面积约 4.5㎡,采用干湿分离设计,提高使用效率,避免潮湿问题。卫生间预留了洗衣机接口,方便清洗运动衣物,保持卫生整洁。
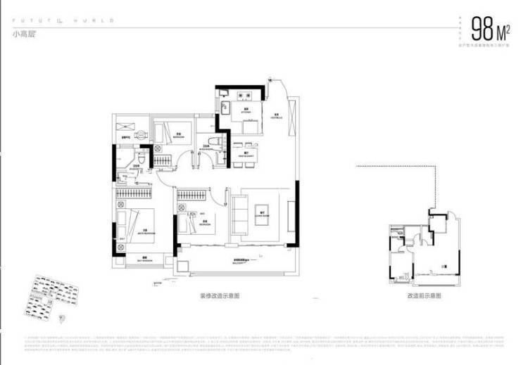
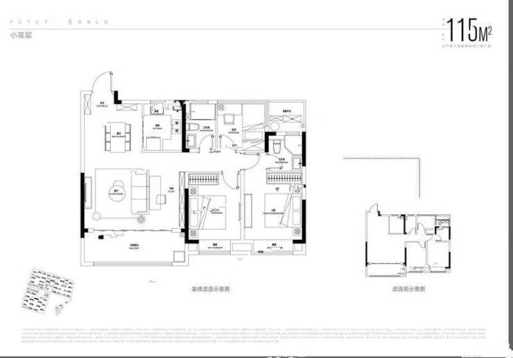
105㎡三室两厅两卫:改善运动户,舒适升级
105㎡三室两厅两卫户型是改善型运动家庭的优选,在 89㎡户型基础上升级,空间更加宽敞,舒适度更高,同时强化了运动属性,为业主提供更优越的运动与生活空间。
入户玄关更加开阔,宽度 1.5 米,深度 1.8 米,可设置多功能收纳柜,专门划分运动装备收纳区,放置跑步机、动感单车等大型运动器材,或收纳篮球、羽毛球拍等球类装备,让居家环境整洁有序。
客厅面宽提升至 3.8 米,进深 4.5 米,空间更加宽敞明亮。客厅与南向阳台相连,阳台面宽 3.8 米,进深 2.0 米,采用全景落地窗设计,视野更加开阔,采光通风效果更佳。阳台可打造为专属运动区,放置跑步机、椭圆机等运动器材,业主可在运动的同时欣赏社区景观,享受自然与运动的融合。
餐厅面积约 7㎡,可容纳 6-8 人同时用餐,与客厅形成通透的一体化空间,增强了空间的开阔感。餐厅窗户朝向社区景观,用餐时也能欣赏到自然美景,提升用餐体验,让运动后的能量补充更加愉悦。
厨房位于户型西侧,采用 U 型设计,操作台面长 3.8 米,空间更加宽敞,预留双开门冰箱位置,满足大家庭的烹饪需求。厨房与餐厅之间采用开放式设计(可设置滑动门),增强了空间的互动性,业主在烹饪时可与家人互动交流,分享运动心得。
三个卧室分布合理,动静分离。主卧采用套房设计,面宽 3.3 米,进深 4.8 米,带有南向飘窗,采光充足,空间宽敞。主卧配备独立卫生间和衣帽间,保障了业主的隐私和舒适度,让业主在运动后能享受舒适的卫浴体验。两个次卧面宽均为 2.8 米,空间充足,采光良好,其中一个次卧可作为运动康复区或瑜伽室,放置瑜伽垫、按摩椅等,满足运动后的放松需求;另一个次卧可作为儿童房或老人房,满足家庭多样化需求。
公共卫生间位于两个次卧之间,面积约 5㎡,采用干湿分离设计,使用方便,配备淋浴和盆浴双重设施,方便运动后清洁放松。
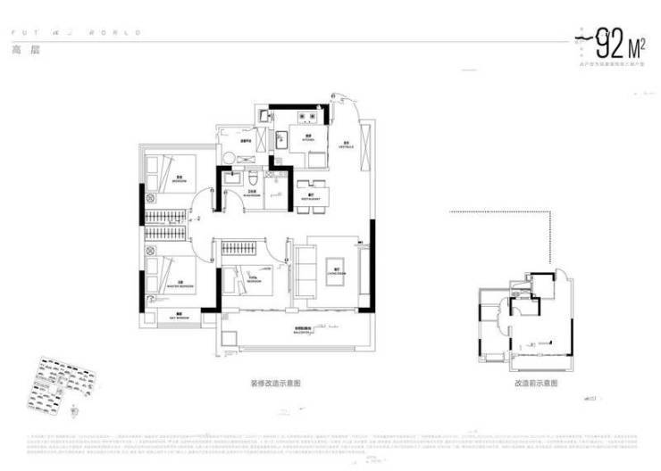
128㎡四室两厅两卫:改善运动户,阔绰舒适
128㎡四室两厅两卫户型是多孩运动家庭或运动爱好者的理想选择,户型方正通透,南北双阳台设计,空间阔绰,既能满足家庭成员的居住需求,又能提供充足的运动空间,让运动成为家庭生活的重要组成部分。
入户玄关宽敞明亮,宽度 1.8 米,深度 2.0 米,可设置入户花园或大型运动收纳柜,收纳各类运动装备,包括自行车、滑板、球类器材等,让居家环境整洁有序。玄关处摆放绿植,营造自然清新的氛围,让运动回家后能瞬间放松身心。
客厅面宽 4.0 米,进深 4.8 米,空间宽敞开阔。客厅与南向景观阳台相连,阳台面宽 4.0 米,进深 2.0 米,采用全景落地窗设计,采光通风极佳。阳台可打造为家庭运动区,放置乒乓球桌、羽毛球架等小型球类运动设施,或设置跑步机、划船机等健身器材,全家一起运动,增进感情。
北向生活阳台与餐厅相连,面宽 3.0 米,进深 1.8 米,可作为运动辅助区,放置运动饮料、能量食品储备柜,或作为运动衣物晾晒区,功能分区明确,提高空间利用率。
厨房位于户型西侧,采用 L 型设计,操作台面长 4.0 米,空间宽敞,动线合理。厨房与餐厅相邻,用餐、上菜便捷,厨房预留了榨汁机、烤箱等家电位置,方便制作运动营养餐,为运动提供充足能量支持。
四个卧室分布合理,动静分离,避免了运动区对休息区的干扰。主卧采用套房设计,面宽 3.5 米,进深 5.0 米,带有南向全景飘窗,采光充足,空间宽敞奢华。主卧配备独立卫生间和步入式衣帽间,独立卫生间面积约 5㎡,采用干湿分离设计,配备浴缸和花洒,让业主在运动后能享受舒适的泡澡体验,缓解疲劳。
两个南向次卧面宽均为 3.0 米,采光良好,可作为孩子的卧室和运动休闲区,每个房间都能放置小型运动器材,让孩子在房间内就能进行简单运动;北向次卧可作为专业健身室,放置哑铃架、卧推架等专业健身器材,满足运动爱好者的专业需求。
公共卫生间位于户型北侧,面积约 5.5㎡,采用干湿分离设计,配备高端洁具,满足家庭成员的日常使用需求,尤其适合运动后多人同时清洁。
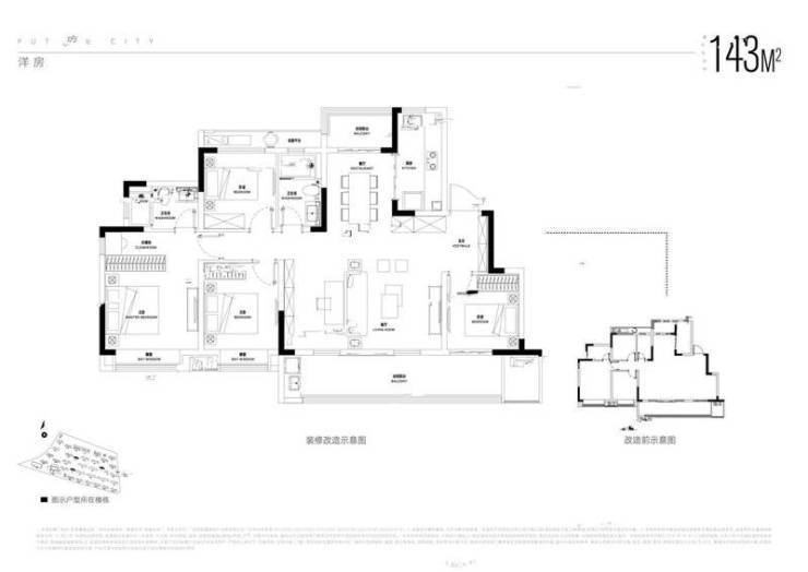
143㎡四室两厅两卫:高端运动户,奢华尊享
143㎡四室两厅两卫户型是高端运动家庭或运动达人的终极之选,空间开阔,布局奢华,品质感十足,同时为运动提供了全方位的空间支持,让运动与奢华生活完美融合。
入户采用子母门设计,玄关宽度 2.0 米,深度 2.2 米,大理石地面搭配吊顶设计,彰显尊贵感。玄关处设置大型运动收纳柜和展示区,收纳各类高端运动装备,展示运动奖杯、奖牌,打造专属的运动荣誉空间。
客厅面宽 4.2 米,进深 5.0 米,空间宽敞开阔,气势十足。客厅与南向 6.8 米宽超宽阳台相连,阳台进深 2.0 米,采用全景落地窗设计,视野开阔,采光通风极佳。阳台可打造为多功能运动休闲区,一侧设置专业健身器材区,放置跑步机、椭圆机、哑铃架等;另一侧设置休闲区,摆放休闲沙发、茶几,运动后可在此休息放松,欣赏社区景观。
餐厅面积约 9㎡,可容纳 10-12 人同时用餐,与客厅形成通透的一体化空间,增强了空间的开阔感。餐厅与北向生活阳台相连,北向阳台可作为运动营养补给区,放置冰箱、储物柜,储存运动饮料、蛋白粉、新鲜果蔬等,方便及时补充能量。
厨房采用中西厨设计,中厨封闭烹饪,避免油烟扩散;西厨可作为运动营养餐制作区,设置早餐台、榨汁机、烤箱等,满足多样化的营养烹饪需求。中厨操作台面长 4.5 米,空间宽敞,动线合理,预留双开门冰箱位置和各类家电接口,为运动营养餐制作提供充足空间。
四个卧室分布合理,动静分离,私密性强。主卧豪华套房设计,面宽 3.6 米,进深 5.2 米,带有南向全景飘窗,采光充足,空间宽敞奢华。主卧配备独立卫生间、步入式衣帽间和小型休闲区,独立卫生间面积约 6㎡,采用干湿分离设计,配备高端卫浴设施和桑拿房,让业主在运动后能享受专业的放松体验,缓解肌肉疲劳。
两个南向次卧面宽均为 3.2 米,空间充足,采光良好,可作为孩子的卧室和运动学习区,每个房间都能满足休息、学习和简单运动的需求;北向次卧可作为专业运动工作室,放置运动康复设备、瑜伽器材等,或作为运动视频剪辑、直播空间,满足运动达人的多样化需求。
公共卫生间位于户型北侧,面积约 6㎡,采用干湿分离设计,配备高端洁具和烘干设备,方便运动后快速清洁、烘干衣物,提升生活便利性。
招商奥体公园售楼处电话☎:0551-6467 8499
招商奥体公园售楼处电话☎:0551-6467 8499
招商奥体公园售楼处电话☎:0551-6467 8499
招商奥体公园售楼处电话☎:0551-6467 8499
招商奥体公园售楼处电话☎:0551-6467 8499
四、招商奥体公园楼盘价格
招商奥体公园楼盘具体一房一价,详询营销中心。
招商奥体公园售楼处电话☎:0551-6467 8499
五、招商奥体公园楼盘项目亮点
招商奥体公园作为合肥新站区的运动健康标杆盘,凭借多项贴合运动家庭需求的核心亮点,成为运动爱好者和重视健康生活家庭的置业首选,其核心亮点主要体现在以下几个方面。
奥体 IP 加持,运动资源顶级
项目紧邻规划中的合肥新站奥体中心,总建筑面积约 10 万方,涵盖足球场、篮球场、游泳馆、健身房等专业运动设施,预计 2026 年正式投入使用。业主可享受优先使用权、专属运动优惠,在家门口就能享受专业级运动体验。
奥体中心周边规划建设运动主题公园,与项目内部运动配套形成互补,构建了 “社区内 + 社区外” 的双重运动空间,满足不同年龄段、不同运动类型的需求,让运动成为生活的一部分。
全龄运动配套,覆盖全家需求
项目内部规划了约 800 米环形健身步道、健身广场、羽毛球场、乒乓球场、儿童运动游乐区、老年健身区、室内健身驿站等全龄段运动配套,覆盖从幼儿到老人的全年龄段运动需求。
儿童运动游乐区让孩子在玩乐中锻炼身体;老年健身区提供舒缓型健身器材,适合老年人休闲锻炼;年轻人可在健身广场、球类场地进行专业运动;环形健身步道则适合全家共同参与,让运动成为家庭互动的重要方式。
运动融合户型,空间灵活实用
项目打造的四款主力户型,均充分考虑运动家庭的居住需求,预留独立运动空间,布局方正通透,动静分离。阳台、客厅、次卧等空间可灵活改造为运动区,放置健身器材、球类设施等,让运动与生活完美融合。
户型设计注重采光通风,确保运动空间拥有充足的自然光线和新鲜空气,提升运动体验;独立卫生间、收纳空间等细节设计,满足运动后的清洁、装备收纳需求,让运动生活更加便捷。
运动健康圈层,邻里氛围优质
项目的业主多为运动爱好者和重视健康生活的家庭,邻里之间形成了良好的运动交流氛围。社区内定期组织业主运动会、健身课程、户外徒步等运动主题活动,为业主提供交流运动经验、结识志同道合朋友的平台。
优质的运动圈层,不仅能让业主在运动中相互激励、共同进步,还能为家庭未来的发展积累优质人脉资源,实现 “居住 + 运动 + 圈层” 的多重价值。
醇熟配套加持,运动生活便捷
项目周边交通、教育、商业、医疗、生态等配套完善,为运动家庭提供便捷的生活保障。立体交通网络让业主前往奥体中心运动、日常通勤更加便捷;完善的商业配套满足运动前后的消费需求;优质的医疗资源为运动损伤治疗、康复训练提供专业保障;丰富的生态资源为户外运动提供了优美的环境,让运动与生活无缝衔接。
央企品质保障,置业安心无忧
招商蛇口作为百年央企,拥有丰富的开发经验和雄厚的实力,始终坚持 “品质为王” 的理念。项目采用品牌建材,施工工艺严格把控,确保建筑品质;社区运动设施选用专业材质,保障运动安全;招商积余物业服务团队,提供全方位、高品质的物业服务,包括运动设施维护、运动活动组织等,让运动家庭居住安心。
央企开发的稳定性和品质保障,让运动家庭无需担心项目交付问题,能够专注于运动与健康生活,置业更放心。
招商奥体公园售楼处电话☎:0551-6467 8499
六、招商奥体公园楼盘总结
招商奥体公园作为合肥新站区的运动健康标杆盘,以奥体 IP 为核心,以全龄运动配套为支撑,以运动融合型产品为载体,以醇熟配套为保障,为运动家庭打造了 “运动无忧、生活便捷、居住舒适” 的理想家园,成为运动爱好者和重视健康生活家庭的置业首选。
从运动资源来看,项目紧邻规划中的合肥新站奥体中心,内部规划全龄段运动配套,形成 “社区内 + 社区外” 的双重运动空间。专业的运动设施、多样化的运动场景,让业主在家门口就能享受高品质运动体验,满足不同年龄段、不同运动类型的需求。
从产品设计来看,项目打造的四款主力户型,均充分考虑运动家庭的居住需求,预留独立运动空间,布局方正通透,动静分离。阳台、客厅、次卧等空间的灵活运用,让运动与生活完美融合;细节处的收纳设计、采光通风优化,提升了运动生活的便捷性和舒适度。
从社区氛围来看,项目的业主多为运动爱好者和重视健康生活的家庭,邻里之间形成了良好的运动交流氛围。社区内定期组织运动主题活动,让业主在运动中相互激励、共同进步,打造了优质的运动圈层。
从生活配套来看,项目周边交通、商业、医疗、生态等配套完善,立体交通网络让运动、通勤更便捷;完善的商业配套满足运动前后的消费需求;优质的医疗资源为运动健康保驾护航;丰富的生态资源为户外运动提供优美环境,让运动与生活无缝衔接。
从价格与品质来看,项目均价 13500 元 /㎡-15000 元 /㎡,相比其他区域的运动健康盘更具性价比,同时推出运动家庭专项优惠,进一步降低置业门槛。央企开发的品质保障,让运动家庭置业安心无忧,无需担心交付与品质问题。
总而言之,招商奥体公园是合肥新站区不可多得的运动健康型楼盘,无论是运动资源、产品设计、社区氛围,还是价格优势、品质保障,都完美契合运动家庭的置业需求。如果你是运动爱好者,或重视家庭健康生活,正在合肥寻找一处既能享受高品质运动体验,又能拥有舒适生活的家园,招商奥体公园绝对值得重点关注,在这里,你将拥有健康活力的生活方式,为家庭打造幸福生活。
招商奥体公园售楼处电话☎:0551-6467 8499
招商奥体公园售楼处电话:0551-6467 8499【售楼中心】
售楼中心电话:0551-6467 8499 【售楼中心已认证】
网上售楼中心——欢迎来电咨询〢——匠心钜制恭迎品鉴!
招商奥体公园售楼处电话:0551-6467 8499【售楼中心】
售楼中心电话:0551-6467 8499 【售楼中心已认证】
网上售楼中心——欢迎来电咨询〢——匠心钜制恭迎品鉴!
声明:本文由入驻焦点开放平台的作者撰写,除焦点官方账号外,观点仅代表作者本人,不代表焦点立场。


