Ai✦热搜|合肥琥珀星樾湾楼盘电话号码
扫描到手机,新闻随时看
扫一扫,用手机看文章
更加方便分享给朋友
琥珀星樾湾售楼处电话:0551-6465 8844【售楼中心】
◆◆◆售楼中心电话:0551-6465 8844 【售楼中心已认证】
◆◆◆网上售楼中心——欢迎来电咨询〢——匠心钜制恭迎品鉴!◆◆◆
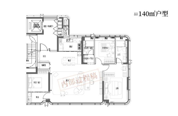
琥珀星樾湾楼盘户型解析
户型是居住体验的 “核心载体”,琥珀星樾湾针对不同人群的需求,设计了 95㎡、110㎡、125㎡、140㎡四种主力户型,每种户型都做到了 “空间利用率高、采光通风好、布局合理”,尤其契合刚需与改善家庭的居住需求。
95㎡三室两厅一卫(刚需首选) 是项目最受欢迎的户型,专为年轻上班族、新婚夫妻设计。该户型采用 “三开间朝南” 布局,客厅、主卧、次卧均朝南,南向面宽达 9.8 米,每天上午 9 点至下午 4 点都有充足阳光,即使在冬季也能保持室内温暖;客厅连接 3.6 米宽的观景阳台,阳台进深 1.8 米,既可作为晾晒区,也可摆放休闲桌椅,打造 “空中花园”;主卧面积约 12㎡,带 270° 飘窗,不仅增加了使用空间,还能俯瞰社区景观;厨房采用 U 型设计,操作台面长达 2.8 米,洗菜、切菜、炒菜动线合理,两人同时操作也不拥挤;卫生间做到 “干湿分离”,洗漱区与淋浴区分开,避免地面潮湿打滑,适合有老人或孩子的家庭。整体来看,95㎡户型没有浪费面积,每个空间都能充分利用,首付仅需 48-54 万,月供约 6000 元,完全在刚需人群的预算范围内,实现 “一步到位” 的三房梦想。
125㎡四室两厅两卫(改善主力) 则针对三口之家、二胎家庭设计,空间更宽敞,功能更齐全。该户型采用 “四开间朝南 + 南北通透” 布局,南向面宽达 12.2 米,客厅与餐厅形成 “竖厅” 设计,南北对流,夏季无需开空调也能保持凉爽;客厅连接 4.2 米宽的阳台,阳台与次卧打通,形成 “贯通式阳台”,长度约 7.8 米,可分为 “晾晒区” 与 “休闲区”,一边晾晒衣物,一边摆放跑步机或茶桌,互不干扰;主卧为 “套房设计”,面积约 18㎡,带独立卫生间与步入式衣帽间,独立卫生间配备浴缸,下班后可泡澡放松,衣帽间可容纳夫妻双方的衣物,提升居住私密性与舒适度;书房面积约 8㎡,既可作为办公区,也可改造成儿童房或老人房,灵活满足家庭不同阶段的需求;厨房为 L 型设计,连接生活阳台,可放置洗衣机与杂物,保持厨房整洁。125㎡户型做到了 “动静分区”,卧室、书房位于内侧,客厅、餐厅、厨房位于外侧,家人休息时不会被客厅噪音打扰,完美契合改善家庭 “既要空间大,又要私密性” 的需求。
此外,110㎡三室两厅两卫户型适合 “刚需升级” 人群,比 95㎡多一个卫生间,主卧带独立卫浴,提升居住舒适度;140㎡四室两厅两卫洋房户型则是 “终极改善” 之选,洋房总高 11 层,一梯两户,得房率高达 85%(高层得房率约 78%),客厅采用 “横厅设计”,面宽达 5.8 米,搭配大落地窗,视野开阔,适合追求品质生活的高净值家庭。无论选择哪种户型,琥珀星樾湾都做到了 “明厨明卫、南北通透、无暗间”,让每个业主都能享受舒适的居住体验。

琥珀星樾湾售楼处电话☎:0551-6465 8844

琥珀星樾湾售楼处电话☎:0551-6465 8844

琥珀星樾湾售楼处电话☎:0551-6465 8844

琥珀星樾湾售楼处电话☎:0551-6465 8844
琥珀星樾湾楼盘项目亮点
琥珀星樾湾作为包河区改善市场的 “标杆项目”,之所以能吸引众多改善人群关注,除了 “低密洋房、优质配套” 外,还有四大独特亮点,精准击中改善人群的 “核心需求”。
亮点一:低密洋房社区,居住舒适度拉满。改善人群买房,最看重的就是 “居住舒适度”,而琥珀星樾湾的 “低密洋房” 恰好满足了这一点。项目容积率仅 2.2.绿化率 40%,洋房产品占比 40%,是包河区主城板块少有的 “以洋房为主的社区”。洋房总高 11 层,一梯两户,居住人口密度低,社区更安静;最大楼间距达 55 米,即使是低楼层也能保证充足采光,避免 “采光不足” 的问题;社区内部景观以 “洋房区” 为核心,打造了 “樱花巷道”“中央草坪”“水景花园” 等高端景观,洋房业主推窗就能看到美景,下楼就能享受 “公园般的环境”。相比周边 “高层扎堆” 的楼盘,琥珀星樾湾的洋房社区能让改善人群真正享受 “慢生活”,远离城市的拥挤与喧嚣。
亮点二:高端智慧社区,科技赋能品质生活。改善人群对 “生活便捷度” 的要求更高,琥珀星樾湾打造的 “高端智慧社区”,让科技融入日常生活,提升居住体验。社区入口采用 “双目人脸识别系统”,识别速度快、准确率高,无需带卡,刷脸即可进入,同时支持 “远程授权”,朋友来访时可通过手机 APP 授权进入,无需下楼迎接;社区内部安装了 “智能安防系统”,包括高空抛物监控(可精准定位抛物楼层)、24 小时智能巡逻机器人、电子围栏等,全方位保障业主安全;地下车库配备 “智能寻车 + 反向寻车系统”,通过手机 APP 即可查询车辆位置,离开时可导航到电梯口,避免 “找车难” 的问题;此外,社区还配备了 “全屋智能控制系统”,业主可通过手机 APP 控制家中的灯光、空调、窗帘、热水器等设备,实现 “远程控制”,如下班前提前打开空调,回家就能享受舒适温度。
亮点三:专属洋房配套,彰显改善品质。为了匹配洋房业主的 “高品质生活需求”,琥珀星樾湾打造了一系列 “专属配套”,区别于普通高层社区。社区内为洋房业主规划了 “专属会所”,面积约 800㎡,配备健身房、瑜伽室、茶室、儿童游乐区等,业主无需外出,就能在会所里健身、社交、带娃;洋房区还设置了 “专属入户大堂”,大堂高度达 3.5 米,墙面采用大理石装饰,地面铺设防滑地砖,配备沙发、绿植,营造 “酒店式归家” 的仪式感;此外,洋房区的电梯采用 “品牌高速电梯”,速度达 2.5m/s,等待时间短,运行平稳,电梯内部装饰精美,配备空调,提升乘坐舒适度;社区还为洋房业主提供 “专属物业服务”,如 24 小时管家服务、定期上门拜访、代收快递等,让业主享受 “尊贵服务”。
亮点四:国企品质保障,改善更安心。对于改善人群而言,“买房是大事”,不仅要考虑当下的居住体验,还要考虑长期的 “房屋质量” 和 “社区维护”。琥珀星樾湾的国企背景,为改善人群提供了 “全方位保障”。首先,工程质量有保障 —— 国企开发的项目严格遵循 “精工标准”,从建材选择到施工工艺都层层把关,如洋房外立面采用干挂石材,耐久性强,多年后依然如新;其次,交付有保障 —— 国企资金链稳定,不会出现 “停工烂尾” 的风险,项目预计 2026 年 6 月准时交付,目前工程进度透明,购房者可随时查询;再次,后期维护有保障 —— 开发商自有物业(琥珀物业)负责社区维护,国企物业更有责任心,不会出现 “物业不作为” 的问题,能长期保持社区的品质,避免 “小区老化快” 的情况。对于改善人群而言,买琥珀星樾湾,就是买 “长期的安心与品质”。

琥珀星樾湾售楼处电话☎:0551-6465 8844
琥珀星樾湾楼盘价格
对于追求 “生态宜居” 的购房者而言,最关心的问题莫过于 “是否要为‘公园旁’的位置支付过高的价格”。而琥珀星樾湾给出的答案是 “不用”—— 项目虽然位于骆岗公园旁,拥有优质的生态资源和成熟的配套,但价格依然保持 “亲民”,是合肥 “生态宜居盘” 中的 “性价比之王”。
从区域生态盘价格来看,骆岗公园周边 2024 年新房均价约 2.0-2.4 万 /㎡,其中距离公园 1-2 公里范围内的楼盘均价已达 2.2-2.4 万 /㎡,而琥珀星樾湾距离骆岗公园仅 1.5 公里,均价却仅 1.7-1.9 万 /㎡,低于周边竞品 10%-20%。具体来看,刚需户型(95㎡、110㎡)单价 1.7-1.8 万 /㎡,总价约 160-198 万;改善户型(125㎡、140㎡)单价 1.8-1.9 万 /㎡,总价约 225-266 万。这个价格在 “骆岗公园旁” 的楼盘中堪称 “洼地”—— 对比周边同位置的生态盘,如 XX 公园府的 95㎡户型总价约 180-190 万,琥珀星樾湾能省 20-2 万;对比滨湖新区的生态盘,那些区域的均价已达 1.9-2.2 万 /㎡,但距离骆岗公园更远,配套也不如琥珀星樾湾成熟,买琥珀星樾湾相当于 “用更低的价格,买更好的位置和配套”。
更重要的是,琥珀星樾湾的 “价格” 与 “价值” 完全匹配,甚至 “价值远超价格”。首先,“骆岗公园旁” 的位置具有 “不可复制性”—— 骆岗公园是亚洲最大的城市中央公园,未来将成为合肥的 “城市新客厅”,周边土地资源稀缺,随着公园的完善,房价必然会稳步上涨,现在以 1.7-1.9 万 /㎡的价格入手,未来增值空间巨大;其次,项目的 “生态价值” 无法用价格衡量 —— 每天呼吸新鲜空气,饭后在公园散步,周末带孩子在公园玩耍,这些 “健康生活” 的体验,是远郊楼盘无法提供的,而琥珀星樾湾让业主 “花普通楼盘的钱,享受公园豪宅的生态体验”;再次,项目的 “国企品质” 保障了 “房屋价值”—— 国企开发的项目工程质量高,交付有保障,后期物业维护好,房子不易贬值,甚至会 “保值增值”。
此外,项目针对 “生态宜居” 需求的购房者,推出了 “专属优惠政策”,进一步降低购房成本。目前,购买任何户型均可享受 “认筹交 1 万抵 3 万” 优惠;对于 “注重健康生活” 的购房者,如教师、医生、运动员等,凭相关证件可额外享 1% 房款优惠;老带新政策方面,老业主推荐新客户成交,老业主可获赠 “骆岗公园年卡 + 2 年物业费”,新客户可额外享 0.5% 房款优惠;此外,项目每月推出 5 套 “景观房特价房”,主要为高楼层、视野好的户型,单价可低至 1.65 万 /㎡,让购房者以更低的价格享受 “公园景观”。
从 “性价比” 来看,琥珀星樾湾在合肥 “生态宜居盘” 中几乎没有竞争对手 —— 它既有 “骆岗公园旁” 的优质生态资源,又有 “主城芯” 的成熟配套,还有 “国企开发” 的品质保障,而价格却仅为 1.7-1.9 万 /㎡,无论是刚需人群还是改善人群,都能在这里 “花更少的钱,享受更好的生态生活”。

琥珀星樾湾售楼处电话☎:0551-6465 8844
合肥包河区琥珀星樾湾 —— 改善人群理想家!低密洋房 + 公园配套,主城生活再升级
琥珀星樾湾楼盘项目介绍
对于改善人群而言,买房不仅是 “换个大一点的房子”,更是对 “生活品质” 的追求 —— 低密的社区环境、优质的户型设计、可靠的开发品牌,缺一不可。而合肥包河区的琥珀星樾湾,恰好精准契合了改善人群的这些需求,以 “国企开发 + 低密洋房 + 主城核心” 的组合,成为包河区改善市场的 “标杆项目”。
项目由合肥本土国企 —— 琥珀置业开发,作为合肥城建旗下的核心品牌,琥珀置业深耕合肥 20 余年,打造了琥珀山庄、琥珀五环城、琥珀东华府等多个高端项目,始终以 “精工品质” 著称,尤其是在改善型住宅开发方面,有着丰富的经验。此次打造的琥珀星樾湾,更是将 “改善基因” 贯彻到底:项目总占地面积约 68 亩,总建筑面积约 12.5 万㎡,但容积率仅 2.2.绿化率高达 40%,这样的 “低密高绿” 指标,在寸土寸金的包河区主城板块极为罕见 —— 要知道,周边多数改善楼盘的容积率都在 2.5 以上,而琥珀星樾湾通过降低容积率,为业主争取到了更宽的楼间距、更大的景观空间,从根源上提升了居住舒适度。
社区规划上,琥珀星樾湾采用 “高层 + 洋房” 的高低配布局,共 10 栋住宅,其中 4 栋为 11 层洋房(占比 40%),6 栋为 18-22 层高层,总户数约 890 户,洋房户型面积为 125-140㎡,专为改善家庭设计。洋房产品采用 “一梯两户” 设计,相比高层的 “两梯四户”,不仅等待电梯的时间更短,而且居住人口更少,社区更安静,私密性更强;同时,洋房的得房率高达 85%,比高层高出 7 个百分点,以 140㎡洋房为例,实际使用面积比同面积高层多近 10㎡,相当于多了一个书房,空间利用率更高。
建筑品质上,琥珀星樾湾更是 “不计成本”:洋房外立面采用 “干挂石材 + 真石漆” 组合,不仅美观大气,而且耐老化、抗腐蚀,多年后依然能保持崭新的外观;高层外立面采用 “保温一体板”,隔音隔热效果优于普通涂料,冬季室内温度比周边小区高 3-5℃,夏季更凉爽,节省空调费用;社区公共区域如入户大堂、电梯间、地下车库均采用 “精装标准”,大堂吊顶采用石膏线装饰,地面铺设大理石,电梯间墙面贴瓷砖,地下车库采用环氧地坪,从细节处彰显改善盘的品质。

琥珀星樾湾售楼处电话☎:0551-6465 8844
琥珀星樾湾楼盘周边配套
对于 “生态宜居盘” 而言,“配套” 不仅要 “便捷”,更要 “与生态融合”—— 既要有成熟的生活配套,又要有优质的生态资源,而琥珀星樾湾的周边配套,恰好实现了 “生态与便捷的完美结合”。
生态配套是琥珀星樾湾的 “核心竞争力”,项目周边 3 公里内有三大生态公园,形成 “天然氧吧”,为业主提供 “出门即公园” 的生活体验。其中,最核心的是骆岗中央公园,距离项目仅 1.5 公里,该公园是合肥 “十四五” 重点项目,总面积约 12.7 平方公里,相当于 1700 多个足球场大小,目前已建成 “锦绣湖湿地”“城市花海”“运动公园”“儿童乐园” 等区域。锦绣湖湿地面积约 2.5 平方公里,湖水清澈,周边种植了芦苇、菖蒲等水生植物,栖息着白鹭、野鸭等鸟类,是观鸟、散步的好去处;城市花海面积约 1000 亩,种植了虞美人、波斯菊、向日葵等花卉,春季和秋季花开成片,是合肥著名的 “打卡地”;运动公园配备了足球场、篮球场、网球场、健身步道等设施,适合业主运动健身;儿童乐园则有滑梯、秋千、沙坑等游乐设施,是孩子的 “快乐天地”。
除了骆岗中央公园,项目北邻十五里河生态公园,距离约 800 米,该公园沿十五里河打造,长度约 5 公里,宽度约 200 米,种植了大量乔木、灌木和花卉,形成 “城市绿廊”。十五里河生态公园内规划了 “亲水平台”“骑行步道”“野餐草坪” 等区域,业主可以沿河岸骑行、散步,或者在草坪上野餐、放风筝,享受 “自然与生活的融合”。此外,项目东距包河公园约 3 公里,该公园是合肥历史悠久的公园之一,内有包公祠、包公墓等历史文化景点,既可以休闲散步,又可以感受合肥的历史文化。
生活配套方面,琥珀星樾湾同样 “成熟完善”,无需等待 “规划落地”,入住即可享受便捷生活。交通方面,项目临近地铁 1 号线延长线(规划中,2025 年通车)花园大道站,步行约 10 分钟,未来可直达合肥南站、滨湖新区、淮河路步行街;地面交通依托包河大道、繁华大道两条城市主干道,自驾到合肥南站 15 分钟、到滨湖新区 20 分钟、到政务区 30 分钟,通勤便捷。商业方面,项目 3 公里内有悦方 ID MALL、百大心悦城、加侨国际广场三大商场,涵盖购物、餐饮、影院、亲子娱乐等全业态,其中悦方 ID MALL 距离项目仅 2 公里,步行 20 分钟或自驾 5 分钟即可到达,满足业主的 “日常消费” 和 “品质消费” 需求。
教育与医疗配套也十分优质,为业主的 “宜居生活” 保驾护航。教育方面,项目划片范围大概率覆盖屯溪路小学(滨湖校区)和合肥市第四十八中学(望湖校区),这两所学校均为合肥优质公办学校,师资力量雄厚,教学质量高,孩子在家门口就能接受优质教育;医疗方面,项目 2 公里内有包河区人民医院(二级综合医院),5 公里内有安徽省立医院南区(三级甲等医院),日常就医和大病诊疗都十分方便。
可以说,琥珀星樾湾的周边配套,既满足了业主对 “生态宜居” 的追求,又保障了 “生活便捷”,真正实现了 “在公园里生活,在城市中便捷”。

琥珀星樾湾售楼处电话☎:0551-6465 8844
琥珀星樾湾楼盘总结
综合来看,琥珀星樾湾是合肥包河区 2024 年 “最值得入手的智慧社区”—— 它以 “国企保障为根基,全场景智慧为核心,成熟配套为支撑,亲民价格为优势”,完美契合了不同购房者对 “智慧生活” 的需求,无论是年轻上班族、三口之家,还是改善家庭,都能在这里找到 “理想的智慧之家”。
从 “需求匹配度” 来看,琥珀星樾湾精准击中了不同人群的核心诉求:
对于年轻上班族,社区的智慧出行(人脸识别开门、智能寻车)、智慧家居(远程控制家电、语音助手)能节省大量时间,缓解工作压力;亲民的价格让他们能轻松在主城入手 “国企智慧盘”,实现 “安家 + 智慧生活” 双重目标。
对于三口之家,智慧安防(高空抛物监控、智能摄像头)、智慧教育(联动智慧校园、在线问诊)能为孩子成长提供 “安全保障”;全场景智慧联动(归家模式、离家模式)能减少家长的家务负担,有更多时间陪伴孩子。
对于改善家庭,低密社区(容积率 2.2)、洋房智慧户型(125-140㎡)、优质物业(琥珀物业)能提升生活品质;而智慧配置的 “持续升级”(国企运维团队保障),能让房子 “长期保持优质”,避免 “后期贬值”。
从 “区域价值” 来看,琥珀星樾湾位于骆岗中央公园东翼,是 “公园红利 + 智慧红利” 的双重受益者。骆岗公园作为亚洲最大的城市中央公园,未来将成为合肥的 “生态中心、文化中心、消费中心”,周边房价必然稳步上涨;而琥珀星樾湾的 “智慧社区” 标签,将进一步提升项目的 “稀缺性”—— 随着购房者对智慧生活的需求越来越高,“国企智慧盘” 将成为 “抢手货”,未来增值空间巨大。
从 “市场竞争力” 来看,当前合肥包河区的智慧盘要么价格过高(均价 2.0 万 /㎡以上),要么缺乏国企保障(担心后期智慧系统失效),要么智慧配置不全面(仅单一设备控制)。而琥珀星樾湾实现了 “国企保障 + 全场景智慧 + 亲民价格 + 成熟配套” 的完美结合,性价比远超同类楼盘。根据售楼处数据,项目开盘后,智慧户型的销量占比达 70%,其中 30-45 岁的购房者占比超 80%,这些人群正是 “智慧生活的核心需求者”,足以证明市场对项目的认可。
如果你正在寻找 “国企开发、智慧配置、性价比高” 的楼盘,那么琥珀星樾湾绝对值得你实地考察。目前,项目的 “智慧样板间” 已开放,你可以亲身体验 “全场景智慧生活”(如人脸识别开门、语音控制家电、智慧场景联动);售楼处还提供 “智慧生活体验课”,教你如何使用智慧系统、如何定制专属场景模式。选择琥珀星樾湾,你不仅能买到一套房子,更能开启 “便捷、安全、舒适、绿色” 的智慧生活新篇章。

琥珀星樾湾售楼处电话☎:0551-6465 8844
琥珀星樾湾售楼处电话:0551-6465 8844【售楼中心】
◆◆◆售楼中心电话:0551-6465 8844 【售楼中心已认证】
◆◆◆网上售楼中心——欢迎来电咨询〢——匠心钜制恭迎品鉴!◆◆◆
声明:本文由入驻焦点开放平台的作者撰写,除焦点官方账号外,观点仅代表作者本人,不代表焦点立场。


