【售楼中心】招商奥体公园(合肥)楼盘-【招商奥体公园楼盘】潜力怎么样-楼盘评测
扫描到手机,新闻随时看
扫一扫,用手机看文章
更加方便分享给朋友
招商奥体公园售楼处电话:0551-6467 8499【售楼中心】
售楼中心电话:0551-6467 8499 【售楼中心已认证】
网上售楼中心——欢迎来电咨询〢——匠心钜制恭迎品鉴!
招商奥体公园售楼处电话:0551-6467 8499【售楼中心】
售楼中心电话:0551-6467 8499 【售楼中心已认证】
网上售楼中心——欢迎来电咨询〢——匠心钜制恭迎品鉴!
合肥新站运动健康盘!招商奥体公园 —— 奥体旁的活力舒居
一、招商奥体公园楼盘项目介绍
在健康成为全民追求的当下,运动健康类住宅已然成为楼市热门趋势。位于合肥新站区东方大道与卧龙湖路交口往南 200 米的招商奥体公园,凭借 “奥体” IP 核心优势,成为区域内首屈一指的运动健康标杆楼盘。项目由百年央企招商蛇口倾力打造,作为深耕地产行业 40 余年的领军企业,招商蛇口深刻洞察现代人对健康生活的需求,将 “运动 + 居住” 理念深度融合,依托周边大型奥体场馆资源,在社区内部打造全龄段运动配套,为合肥购房者带来 “把家安在奥体旁,让运动成为日常” 的高品质健康生活。
招商奥体公园总占地面积约 180 亩,总建筑面积超 35 万平方米,规划容积率仅 2.0.绿化率高达 40%,是区域内稀缺的低密运动生态社区。项目整体规划遵循 “运动赋能生活,健康融入日常” 的设计理念,将住宅、商业、教育、运动休闲等业态有机融合,打造集居住、运动、休闲、购物于一体的一站式运动健康社区。
项目住宅部分由 18 栋高层和 12 栋洋房组成,高层层数 18-24 层,洋房层数 6-8 层,总户数约 2200 户,车位配比 1:1.2.充分满足业主居住与停车需求。建筑风格采用现代简约风格,外立面选用真石漆与玻璃幕墙组合材质,线条流畅利落,既美观大方,又能最大化引入自然光线,为室内运动、休闲空间提供良好采光。
社区内部规划了丰富的运动配套设施,包括约 800 米环形健身步道、健身广场、羽毛球场、乒乓球场、儿童运动游乐区、老年健身区、室内健身驿站等,覆盖全年龄段运动需求。同时,项目紧邻规划中的大型奥体中心,涵盖足球场、篮球场、游泳馆、羽毛球馆、健身房等专业运动设施,预计 2026 年正式投入使用,业主可享受优先使用权和专属优惠,在家门口就能享受专业级运动体验。
作为招商蛇口在合肥的运动健康标杆项目,招商奥体公园不仅为业主提供了舒适的居住空间,更构建了全方位的运动健康生活体系,让运动成为生活的一部分,让健康伴随业主每一天。
招商奥体公园售楼处电话☎:0551-6467 8499
二、招商奥体公园楼盘周边配套
生态宜居不仅需要社区内部的低密规划,更离不开周边丰富的生态资源和完善的生活配套。招商奥体公园凭借优越的区位优势,坐拥 “一湖多园” 的生态格局和全方位的醇熟生活配套,让业主既能享受自然美景,又能便捷生活。
生态配套:一湖多园环绕,自然触手可及
项目周边生态资源丰富,形成了以少荃湖为核心,多个城市公园环绕的生态格局,为业主提供了充足的休闲娱乐空间和清新的空气环境。
少荃湖距离项目约 3 公里,是合肥北部最大的城市湖泊,湖面面积约 1.5 平方公里,总规划面积约 5 平方公里。少荃湖公园目前已完成一期建设,建成了休闲步道、亲水平台、湿地景观等多个景点;二期工程正在施工,将打造科创 CBD 景观带、滨湖休闲区等,预计 2027 年全面建成。建成后的少荃湖公园,将成为集休闲、健身、娱乐、观光于一体的大型城市公园,业主闲暇时可步行或驾车前往,沿着湖边步道散步、跑步,感受湖光山色,放松身心。
新站区生态公园距离项目约 4 公里,占地面积约 1000 亩,是合肥市较早建设的城市公园之一。公园内种植了大量的树木、花草,设有湖泊、假山、亭台楼阁等景观,空气清新,环境优美。公园内还规划了健身步道、健身器材区、儿童游乐区等,满足不同年龄段业主的休闲需求。
瑶海公园距离项目约 6 公里,占地面积约 33.3 公顷,其中水域面积约 15 公顷,是合肥市著名的水景公园。公园内设有游船码头、垂钓区、休闲长廊等景点,业主周末可带着家人前往,划船、垂钓、野餐,享受惬意的亲子时光。
此外,项目周边还有李鸿章享堂、生态廊道等多个休闲景点,距离项目均在 10 公里范围内,为业主提供了丰富的休闲选择。丰富的生态资源,让招商奥体公园成为城市中的 “天然氧吧”,为业主的健康保驾护航。
交通配套:便捷出行网络,连接自然与城市
项目紧邻东方大道与卧龙湖路两大城市主干道,形成 “一横一纵” 的交通格局,让业主既能快速融入城市核心,又能便捷抵达周边公园景点。
东方大道是新站区重要的横向交通大动脉,西接阜阳北路高架,东连包公大道高架,双向 6 车道,路况良好。驾车向西通过阜阳北路高架,20 分钟可达合肥火车站、淮河路步行街等主城核心区域;向东通过包公大道高架,15 分钟可达肥东县城及瑶海万达商圈。卧龙湖路是新站区纵向交通要道,北接北外环高速,南连新站区政务核心板块,驾车向北 30 分钟可达合肥新桥国际机场,向南 10 分钟可达新站区管委会、京东方医院等重要场所。
公共交通方面,项目周边 500 米范围内设有 3 个公交站点,涵盖 301 路、302 路、686 路、803 路等多条公交线路。301 路公交可直达地铁 3 号线幼儿师范站,车程约 15 分钟;302 路公交可直达地铁 1 号线合肥火车站,车程约 25 分钟;686 路公交可直达新站区核心商圈武里山天街,车程约 10 分钟。未来,地铁 9 号线(规划中)将在项目周边设置站点,建成后将进一步提升出行效率,让业主轻松通达全城各个角落。
教育配套:全龄优质教育,成长环境优越
项目周边教育资源丰富,形成了从幼儿园到中学的全龄段教育体系,让孩子在优质的教育环境中成长,同时也为业主节省了接送时间,提升了生活便利性。
项目内部规划有一所 12 班制公办幼儿园,占地面积约 4000㎡,建筑面积约 3000㎡,预计 2025 年正式投入使用。幼儿园配备专业的师资力量和完善的教学设施,注重孩子的综合素质培养,让孩子在家门口就能接受优质的启蒙教育。
项目周边 1 公里范围内分布着多所优质中小学。合肥新站寿春实验中学距离项目仅 500 米,该校是寿春教育集团旗下的优质民办中学,中考成绩在新站区名列前茅;合肥市庆平希望学校距离项目约 800 米,是一所九年一贯制公办学校,教学设施完善,师资力量充足;合肥市第 168 中学东校区距离项目约 1.5 公里,是安徽省示范高中,高考成绩优异,每年都有大量学生考入全国重点高校。
此外,周边还有合肥市新站区关井小学、三十头镇中心学校等多所公办小学,以及多所规划中的中小学,教育资源持续丰富,满足不同家庭对孩子教育的需求。优质的教育资源和浓厚的教育氛围,让孩子在成长过程中潜移默化地受到熏陶,为未来的发展奠定坚实基础。
商业配套:繁华商业在侧,生活便利无忧
项目周边商业配套完善,无论是日常购物、餐饮美食,还是休闲娱乐,都能一站式满足,让业主在享受生态宜居生活的同时,无需为生活便利担忧。
项目自带约 2 万方社区商业,规划引入超市、便利店、生鲜卖场、品牌餐饮、美容美发、药店等多元化业态,预计 2026 年正式开业运营。业主下楼即可满足日常购物、餐饮、休闲等基本需求,无需远行,节省了时间和精力。
项目距离新站区核心商圈武里山天街仅 3 公里,驾车车程约 10 分钟。武里山天街总建筑面积约 10 万方,涵盖大型购物中心、连锁超市、品牌餐饮、电影院、KTV、儿童乐园等丰富业态,入驻了永辉超市、大地影院、肯德基、麦当劳等众多知名品牌,是周边居民休闲娱乐的首选之地。
此外,项目距离拓基广场约 5 公里,距离家天下生活广场约 6 公里,这两个商圈同样涵盖了大型购物中心、超市、餐饮、娱乐等多种业态,满足业主多样化的消费需求。周边还有多个在建的商业综合体,未来商业氛围将更加浓厚,生活便利性将进一步提升。
医疗配套:优质医疗护航,健康生活无忧
健康是幸福生活的基础,项目周边医疗资源丰富,为业主的健康提供全方位的保障,让业主在享受生态宜居生活的同时,无健康后顾之忧。
项目距离安徽省第二人民医院(北区)约 4 公里,驾车车程约 15 分钟。该院是集医疗、教学、科研、预防、保健、康复为一体的三级甲等综合性医院,开放床位 2000 余张,拥有多个省级重点学科和特色专科,医疗设备先进,师资力量雄厚,能够为业主提供高水平的医疗服务。
项目距离合肥京东方医院约 3.5 公里,驾车车程约 12 分钟。该院是一家集医疗、教学、科研、预防、保健为一体的三级综合医院,由京东方科技集团投资建设,总建筑面积约 20 万方,开放床位 1000 张,重点打造心血管科、骨科、妇产科、儿科等特色科室,医疗技术先进,服务质量优质。
此外,项目周边还有合肥市新站区七里塘社区卫生服务中心、三十头社区卫生服务中心等多家社区卫生服务中心,距离项目均在 3 公里范围内,日常就医、健康体检十分便捷,为业主的健康保驾护航。
招商奥体公园售楼处电话☎:0551-6467 8499
三、招商奥体公园楼盘户型解析
户型是居住体验的核心,招商奥体公园深入调研合肥购房者的居住需求,打造了多款兼具实用性与舒适性的户型产品,从刚需小三室到改善大四室,每一款户型都经过精心设计,最大化提升空间利用率与居住舒适度。
首先来看 89㎡三室两厅一卫户型,这款户型是刚需人群的首选,整体布局方正,南北通透,没有浪费空间。入户处设置了独立玄关,既保证了室内隐私,又能作为收纳空间,放置鞋柜、衣帽架等,让居家生活更加整洁有序。客厅与南向阳台相连,阳台面宽达 3.6 米,进深 1.8 米,不仅提供了充足的采光和通风,还能作为休闲区、晾晒区或绿植区,满足多样化需求。
厨房采用 U 型设计,操作台面宽敞,洗切炒动线合理,预留了冰箱位置,同时靠近餐厅,用餐、上菜十分便捷。三个卧室分布合理,主卧面宽 3.2 米,配备南向飘窗,采光充足,空间宽敞;两个次卧面宽均达到 2.7 米,可作为儿童房、老人房或书房,满足不同家庭结构的需求。卫生间采用干湿分离设计,提高了使用效率,避免了潮湿问题,让居家生活更加舒适。
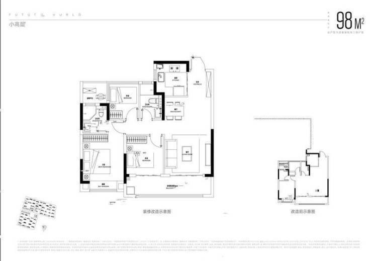
接下来是 105㎡三室两厅两卫户型,这款户型在 89㎡户型的基础上进行了升级,空间更加宽敞,舒适度更高。入户玄关更加开阔,可设置多功能收纳柜,满足家庭更多收纳需求。客厅面宽达到 3.8 米,与南向观景阳台相连,阳台进深增加至 2.0 米,视野更加开阔,采光通风效果更佳。
主卧采用套房设计,配备独立卫生间和衣帽间,保证了主人的隐私和居住舒适度,主卧南向飘窗不仅增加了采光,还能作为休闲阅读的小空间。两个次卧空间充足,均可放置 1.5 米宽的床和衣柜,其中一个次卧带有南向飘窗,采光良好。公共卫生间同样采用干湿分离设计,位于两个次卧之间,使用方便。厨房 U 型布局,操作空间充足,预留了双开门冰箱位置,满足大家庭的烹饪需求。
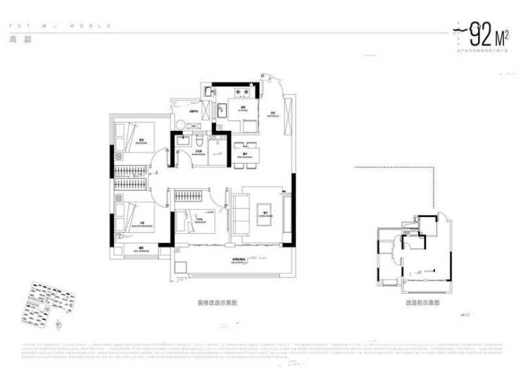
128㎡四室两厅两卫户型则是改善型人群的理想选择,户型方正通透,南北双阳台设计,通风采光效果极佳。入户玄关宽敞明亮,可设置入户花园或多功能收纳区,提升居家品质。客厅面宽 4.0 米,与南向景观阳台相连,阳台面宽 4.0 米,进深 2.0 米,可作为休闲娱乐区,摆放沙发、茶几,欣赏社区美景。
四个卧室分布合理,动静分离,避免了休息区与活动区的相互干扰。主卧套房设计,面宽 3.5 米,进深 4.8 米,配备独立卫生间、衣帽间和南向飘窗,空间宽敞舒适,彰显主人身份。两个南向次卧空间充足,采光良好,可作为儿童房或老人房;北向次卧可作为书房、茶室或健身房,满足多样化居住需求。
厨房采用 L 型设计,操作台面宽敞,动线合理,与餐厅相邻,用餐便捷。南北双阳台设计,南向阳台负责休闲观景,北向阳台作为生活阳台,用于晾晒、储物,功能分区明确,提高了空间利用率。
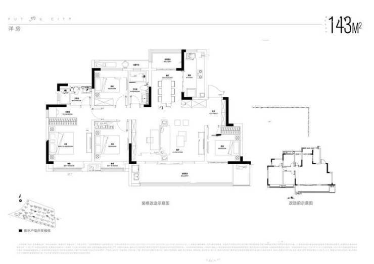
143㎡四室两厅两卫户型是项目的高端改善户型,空间开阔,布局合理,舒适度极高。入户玄关采用子母门设计,彰显尊贵感,玄关处可设置大型收纳柜和展示区,提升居家品质。客厅面宽 4.2 米,与南向超宽阳台相连,阳台面宽 6.8 米,进深 2.0 米,可打造为空中花园、休闲茶室或儿童游乐区,满足家庭多样化需求。
主卧套房设计,面宽 3.6 米,进深 5.0 米,配备独立卫生间、步入式衣帽间和南向全景飘窗,空间宽敞奢华,居住舒适度极高。三个次卧空间充足,其中两个南向次卧面宽均达到 3.0 米,采光良好,可作为儿童房或老人房;北向次卧可作为书房、影音室或健身房,满足不同家庭的居住需求。
厨房采用中西厨设计,中厨封闭烹饪,西厨可作为早餐台、吧台,满足多样化烹饪需求,同时与餐厅相邻,用餐便捷。南北通透的户型设计,让室内空气流通顺畅,每个房间都能享受充足的光线,打造全方位舒适的居住体验。
招商奥体公园售楼处电话☎:0551-6467 8499
招商奥体公园售楼处电话☎:0551-6467 8499
招商奥体公园售楼处电话☎:0551-6467 8499
招商奥体公园售楼处电话☎:0551-6467 8499
招商奥体公园售楼处电话☎:0551-6467 8499
四、招商奥体公园楼盘价格
招商奥体公园楼盘具体一房一价,详询营销中心。
招商奥体公园售楼处电话☎:0551-6467 8499
五、招商奥体公园楼盘项目亮点
招商奥体公园之所以能成为合肥新站区的热门楼盘,受到众多购房者的追捧,离不开其众多突出的项目亮点,这些亮点不仅彰显了项目的品质和价值,更满足了购房者对美好生活的向往。
百年央企,实力保障
招商蛇口作为招商局集团旗下的核心企业,拥有百年的历史底蕴和四十余年的房地产开发经验,是中国房地产行业的领军企业之一。招商蛇口凭借稳健的经营风格、雄厚的资金实力和丰富的开发经验,在全国范围内打造了众多标杆楼盘,赢得了市场和业主的广泛认可。
在项目开发过程中,招商蛇口始终坚持 “品质为王” 的理念,从建筑材料的选择到施工工艺的把控,都严格按照高标准执行。项目采用品牌建材,如断桥铝门窗、双层中空玻璃、品牌电梯、真石漆外立面等,保证了建筑的品质和居住的安全性。同时,招商蛇口拥有专业的施工团队和监理团队,全程把控施工质量,确保每一套房子都能达到高品质标准。
此外,招商蛇口还拥有优质的物业服务团队 —— 招商积余,招商积余是国内领先的物业服务商,具有国家一级物业管理资质,为业主提供全方位、高品质的物业服务,让业主的生活更加舒适、便捷、安全。
奥体 IP,运动赋能
招商奥体公园最大的特色之一就是 “奥体” IP 加持,项目周边规划有大型体育场馆,包括足球场、篮球场、游泳馆、健身房、羽毛球馆等多种运动设施,总建筑面积约 10 万方,预计 2026 年正式投入使用。业主可享受优先使用权和优惠价格,在家门口就能享受专业的运动服务,满足多样化的运动需求。
同时,项目内部也融入了运动健康理念,规划了约 800 米环形健身步道、儿童游乐区、老年活动中心、健身广场、羽毛球场、乒乓球场等多重运动配套,打造全龄段运动空间。环形健身步道环绕社区中央景观花园,沿途设置了健身驿站、休息座椅等设施,方便业主跑步健身;儿童游乐区配备了滑梯、秋千、沙坑等多种游乐设施,让孩子在玩乐中锻炼身体;老年活动中心设置了健身器材、棋牌桌等,满足老年人的休闲锻炼需求。
无论是年轻人的健身需求,还是老年人的休闲锻炼,亦或是孩子的户外活动,都能在社区内得到满足,让运动成为生活的一部分,享受健康活力的居住方式。
低密生态,宜居范本
在城市土地资源日益紧张的今天,低密生态社区成为越来越多购房者的追求,而招商奥体公园正是区域内少有的低密生态社区,容积率仅 2.0.绿化率高达 40%,建筑密度仅 22%,为业主打造了舒适、宁静、自然的居住环境。
项目内部规划了约 5000㎡中央景观花园,采用 “一轴两带多节点” 的园林布局,打造四季有景的园林景观。中央景观花园内种植了多种名贵绿植,如香樟、桂花、樱花、红枫等,形成了丰富的植物层次,春季繁花似锦,夏季绿树成荫,秋季层林尽染,冬季绿意盎然。同时,社区内还设置了景观水系、休闲步道、观景平台、亲水平台等设施,让业主在居家生活中就能享受自然美景,感受大自然的气息。
低密的规划意味着更少的居住人口、更宽敞的公共空间和更好的居住舒适度。相比周边容积率 2.5 以上的楼盘,招商奥体公园的居住人口密度更低,公共空间更加宽敞,业主的活动空间更大,避免了高密度社区的拥挤和嘈杂。同时,高绿化率不仅美化了环境,还能净化空气、降低噪音、调节气候,为业主提供清新的空气和舒适的居住环境。
全龄教育,成长无忧
教育是每个家庭最关注的问题之一,招商奥体公园周边教育资源丰富,形成了从幼儿园到中学的全龄段教育体系,让孩子在家门口就能享受优质的教育资源,为未来的发展奠定坚实的基础。
项目内部规划有一所 12 班制公办幼儿园,预计 2025 年正式投入使用,让业主的孩子足不出社区就能接受优质的启蒙教育。幼儿园配备了专业的师资力量和完善的教学设施,注重孩子的综合素质培养,让孩子在快乐中学习成长。
项目周边 1 公里范围内分布着多所优质中小学,包括合肥新站寿春实验中学、合肥市庆平希望学校、合肥市第 168 中学东校区等。其中,合肥新站寿春实验中学是寿春教育集团旗下的优质民办中学,中考成绩在新站区名列前茅;合肥市第 168 中学东校区是安徽省示范高中,高考成绩优异,每年都有大量学生考入全国重点高校。丰富的教育资源让业主无需为孩子的教育问题担忧,实现 “目送式” 教育,让孩子在良好的教育氛围中无忧成长。
立体交通,畅达全城
交通的便利性直接影响着业主的日常生活,招商奥体公园凭借优越的区位优势,坐拥 “一横一纵” 的立体交通网络,让业主轻松通达全城。
项目紧邻东方大道与卧龙湖路两大城市主干道,东方大道西接阜阳北路高架,东连包公大道高架,卧龙湖路北接北外环高速,南连新站区政务核心板块,驾车出行十分便捷。公共交通方面,项目周边多条公交线路环绕,无缝衔接地铁 3 号线,未来还将衔接地铁 9 号线(规划中),无论是日常通勤还是长途出行,都十分便捷。
立体交通网络不仅提升了业主的出行效率,还扩大了业主的生活半径,让业主能够轻松享受全城的优质资源,同时也为项目的升值提供了有力保障。
高性价比,置业首选
相比周边同类型楼盘,招商奥体公园在品质、配套、户型等方面都具有明显优势,而价格却更加亲民,性价比极高。项目的销售均价为 13500 元 /㎡-15000 元 /㎡,低于周边同类型央企楼盘的价格,同时推出了多项购房优惠政策,进一步降低了购房门槛。
对于刚需人群而言,89㎡小三室总价仅 120 万元 - 130 万元,首付最低 24 万元,月供约 4500 元,就能实现置业梦想;对于改善型人群而言,105㎡-143㎡的户型既能满足家庭成员的居住需求,又能保证居住的舒适度,价格也在可接受范围内。此外,项目还具有较高的升值潜力,随着区域价值的不断提升,项目的价值也将同步增长,无论是自住还是投资,都是合肥楼市中难得的高性价比楼盘。
招商奥体公园售楼处电话☎:0551-6467 8499
六、招商奥体公园楼盘总结
招商奥体公园作为合肥新站区的央企品质标杆盘,以百年央企的实力为根基,以精工品质为核心,以完善配套为支撑,以优质服务为保障,为购房者打造了 “买得放心、住得安心、生活舒心” 的品质家园,成为安心置业的首选。
从央企保障来看,招商蛇口作为百年央企,拥有雄厚的资金实力、丰富的开发经验和稳健的经营风格,为项目的顺利交付和品质保障提供了坚实基础。相比中小开发商,央企开发的楼盘抗风险能力更强,能够有效避免延期交付、烂尾等风险,让购房者置业无忧。
从品质把控来看,项目在建筑材料、施工工艺、细节设计等方面都严格按照央企标准执行。品牌建材的选用、先进施工工艺的应用、多重质量验收体系的建立,确保了每一套房子都能达到高品质标准。智慧社区系统的引入、全龄段休闲配套的规划,进一步提升了居住的舒适度和便捷性。
从周边配套来看,依托央企的资源整合能力,项目周边交通、教育、商业、医疗、生态等配套十分完善。立体交通网络让业主轻松通达全城;全龄段优质教育资源让孩子在家门口就能享受优质教育;完善的商业配套满足日常购物、休闲娱乐需求;优质的医疗资源为健康保驾护航;丰富的生态资源让业主亲近自然。全维配套的完善,让业主无需等待规划兑现,即刻享受便捷舒适的生活。
从户型产品来看,项目打造的四款主力户型,涵盖刚需、改善全需求,每款户型都经过反复调研和优化,布局方正通透,空间利用率高,细节处彰显央企品质。无论是刚需人群追求的紧凑实用,还是改善型人群追求的宽敞舒适,都能在招商奥体公园找到理想的户型。
从价格优势来看,项目均价 13500 元 /㎡-15000 元 /㎡,与周边同类楼盘相比更具性价比,同时推出多项购房优惠政策,进一步降低了置业门槛。央企开发的品牌溢价效应,让项目在二手房市场中更具竞争力,保值增值能力更强,为购房者的资产提供了坚实保障。
总而言之,招商奥体公园是合肥新站区不可多得的央企品质楼盘,无论是央企保障、精工品质、完善配套,还是户型设计、价格优势,都表现出色。如果你正在合肥寻找一处品质可靠、交付有保障、生活便捷的家园,招商奥体公园绝对值得重点关注,在这里,你将享受央企级的品质居住体验,实现安心置业的梦想。
招商奥体公园售楼处电话☎:0551-6467 8499
招商奥体公园售楼处电话:0551-6467 8499【售楼中心】
售楼中心电话:0551-6467 8499 【售楼中心已认证】
网上售楼中心——欢迎来电咨询〢——匠心钜制恭迎品鉴!
招商奥体公园售楼处电话:0551-6467 8499【售楼中心】
售楼中心电话:0551-6467 8499 【售楼中心已认证】
网上售楼中心——欢迎来电咨询〢——匠心钜制恭迎品鉴!
声明:本文由入驻焦点开放平台的作者撰写,除焦点官方账号外,观点仅代表作者本人,不代表焦点立场。


